NEU - Luxuriöses Reihenhaus in Ruhelage – Ihr Refugium in Wien

Haus zur Miete in 1220 Wien - Gesamtmiete: 2.600,00 € / Objektnummer: 1124/1209
Ausstattung: Boden Bad Gäste-WC Balkon Terrasse

Preisinformationen

Gesamtmiete:
2.600,00 € / Monat
Provision:
Gemäß Erstauftraggeberprinzip bezahlt der Abgeber die Provision.

Fakten

Objektnummer:
1124/1209
Objekttyp:
Haus
Balkon:
2
Terrasse:
1
Balkonfläche:
11,52 m²
Wohnfläche:
146,24 m²
Badezimmer:
2
Toilette:
3
Baujahr:
2020
Neubau:
Ja
Zustand:
Erstbezug
Verfügbarkeit:
Verfügbar

Beschreibung

EXPOSÉ – REIHENHAUS AGAVENWEG 22, 1220 WIEN, HAUS 15

„EXKLUSIVES WOHNEN IM GRÜNEN – IHR REIHENHAUS MIT GROSSZÜGIGEM GARTEN“

OBJEKTART: REIHENHAUS

BAUART: NEUBAU / ERSTBEZUG

ZUSTAND: SCHLÜSSELFERTIG

VERFÜGBARE EINHEITEN: 15 REIHENHÄUSER

STELLPLÄTZE: 19 PKW-STELLPLÄTZE (OPTIONAL, €80 BRUTTO/MONAT)

-------------

OBJEKTBESCHREIBUNG – HAUS 15

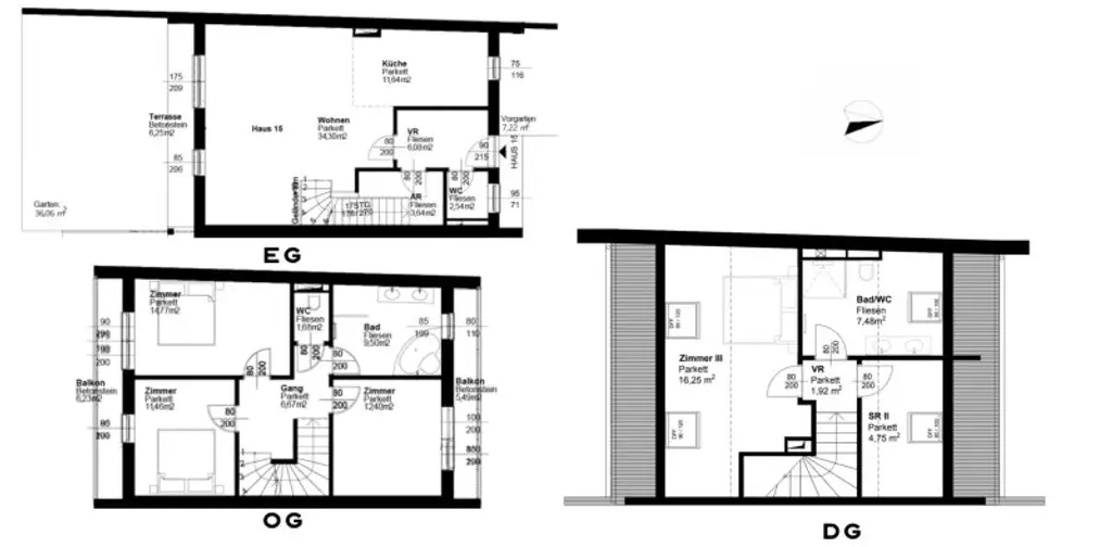
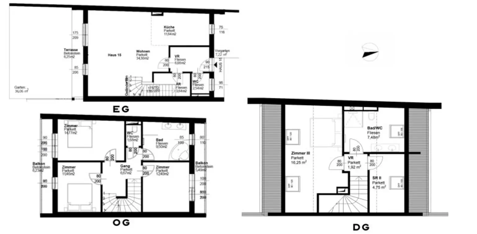
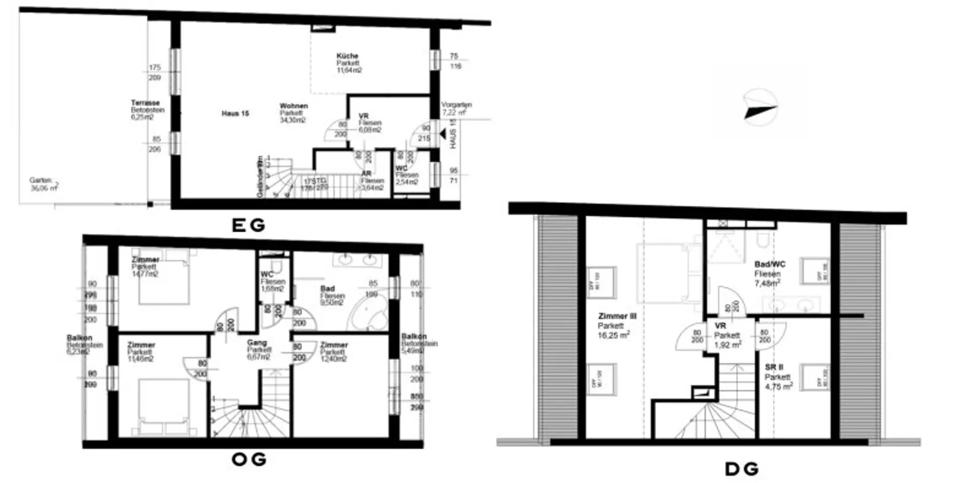
Willkommen in Ihrem neuen Zuhause: Das exklusive Reihenhaus Haus 15 im Agavenweg 22, 1220 Wien vereint modernen Wohnkomfort mit einer ruhigen Lage. Mit 145 m² Wohnfläche auf drei Ebenen (EG / OG / DG) bietet das Haus ausreichend Platz für Familien oder Paare, die Wert auf Stil, Raum und Qualität legen.

Besondere Highlights:

*
Wohnfläche: 145 m²

*
Zimmer: 4-5

*
Garten & Terrasse: Großzügig angelegt, mindestens 24 m², ideal für entspannte Stunden im Freien

*
Keller: Nicht vorhanden

*
Mietpreis: 2.600 € / Monat

Die Fertigstellung ist voraussichtlich Dezember 2024, alle Einheiten werden schlüsselfertig übergeben – bereit zum Einzug ohne zusätzlichen Aufwand.

-------------

WEITERE ATTRAKTIVE REIHENHÄUSER IN AGAVENWEG 22

HAUS
WOHNFLÄCHE
ZIMMER
NETTOMIETE (BRUTTO)

Haus 1
128 m²
4-5
2.500 €

Haus 2
127 m²
4-5
2.600 €

Haus 3
107 m²
4-5
2.400 €

Haus 4
128 m²
4-5
2.550 €

Haus 6
120 m²
4-5
2.500 €

Haus 7
128 m²
4-5
2.550 €

Haus 8
127 m²
4-5
2.700 €

Haus 9
127 m²
4-5
2.550 €

Haus 10
128 m²
4-5
2.500 €

Haus 12
130 m²
4-5
2.550 €

Haus 13
128 m²
4-5
2.500 €

-------------

LAGE & INFRASTRUKTUR

Die Reihenhäuser liegen in einer ruhigen Wohngegend mit perfekter Anbindung an die Wiener Innenstadt:

*
Buslinien: 24A, 85A, 89A, 97A (fußläufig erreichbar, ca. 2–3 Min.)

*
U-Bahn: U1 Kagraner Platz & U2 Hausfeldstraße in 10–15 Busminuten

*
Straßenbahn: Linie 26, ca. 2 km entfernt

Einkauf & Versorgung:

*
Penny – 1,24 km

*
Billa – 1,65 km

*
Bipa – 1,05 km

Gesundheit:

*
Allgemeinarzt – 1,33 km

*
Zahnarzt – 1,72 km

*
Apotheke – 1,88 km

Freizeit & Sport:

*
Motorikpark – 2,13 km

*
Ferienzentrum Ost – 2,26 km

*
Reitsportanlage – 0,56 km

Bildung:

*
Kindergarten & Volksschule Breitenlee fußläufig erreichbar

-------------

ENERGIE & AUSSTATTUNG

*
Heizwärmebedarf: 49 kWh/m²a – Energieklasse B

*
Schlüsselfertig, moderne Ausstattung

*
Großzügiger Garten/Terrasse bei allen Einheiten ≥ 24 m²

*
Keller bei 5 Häusern verfügbar

-------------

Optional:

*
PKW-Stellplätze: 19 verfügbar, €80 brutto/Monat

Gerne stehen wir Ihnen für weitere Informationen sowie zur Vereinbarung eines persönlichen Besichtigungstermins zur Verfügung.

📞 Telefon: +43 664 548 90 68
📧 E-Mail: info@crownconsulting.at

Wir freuen uns auf Ihre Kontaktaufnahme.

-------------

Dieses Projekt verbindet hochwertiges, familienfreundliches Wohnen mit ruhiger Lage und optimaler Infrastruktur. Haus 15 ist perfekt für alle, die exklusiven Wohnkomfort und viel Platz für Garten, Freizeit und Familie suchen.

Der Immobilienmakler erklärt, dass er – entgegen dem in der Immobilienwirtschaft üblichen Geschäftsgebrauch des Doppelmaklers – einseitig nur für den Vermieter tätig ist.

Infrastruktur / Entfernungen

Gesundheit
Arzt <2.000m
Apotheke <2.000m
Klinik <2.000m
Krankenhaus <4.500m

Kinder & Schulen
Schule <500m
Kindergarten <1.500m
Universität <3.500m
Höhere Schule <3.500m

Nahversorgung
Supermarkt <500m
Bäckerei <500m
Einkaufszentrum <3.000m

Sonstige
Geldautomat <2.000m
Bank <2.000m
Post <2.000m
Polizei <2.500m

Verkehr
Bus <500m
U-Bahn <2.500m
Straßenbahn <2.000m
Bahnhof <2.500m
Autobahnanschluss <2.000m

Angaben Entfernung Luftlinie / Quelle: OpenStreetMap
Beschreibung weiterlesen

Lage und Verkehrsanbindung

Autobahn A23
U-Bahnlinie U1 Kagraner Platz ,U2 Hausfeldstraße
Buslinien 24A, 97A

Energieeffizienz

HWB:
43,2 kWh/(m²*a)
HWB Klasse:
B
fGEE:
0,8
fGEE Klasse:
A
Energieausweisart:
Energiebedarfs-ausweis
Gültig bis:
03.05.2030

Grundriss

Lageplan

1220 Wien | Wien 22., Donaustadt

Lade...
Olga Troll

Olga Troll

Crown Consulting GmbH

Lade...

Fotomix

Bild 1 Bild 2 Bild 3 Bild 4 Bild 5 Bild 6 Bild 7 Bild 8 Bild 9 Bild 10 Bild 11 Bild 12 Bild 13