NEU - Maisonette in der Heinrichstraße 119 Top 10 - nahe der UNI

Wohnung zur Miete in 8010 Graz - Gesamtmiete: 902,84 € / Objektnummer: 1939/217689
Ausstattung: Bad Abstellraum Zentralheizung Balkon

Preisinformationen

Gesamtmiete:
902,84 € / Monat
Betriebskosten netto:
354,02 € / Monat
Heizkosten netto:
169,17 €
Umsatzsteuer:
63,62 €
Kaution:
3 Bruttomonatsmieten
Provision:
Gemäß Erstauftraggeberprinzip bezahlt der Abgeber die Provision.

Fakten

Objektnummer:
1939/217689
Objekttyp:
Wohnung
Balkon:
2
Balkonfläche:
16 m²
Keller Fläche:
2 m²
Wohnfläche:
78,39 m²
Zimmer:
2,5
Badezimmer:
1
Toilette:
1
Stockwerk:
2
Verfügbarkeit:
Verfügbar
Verfügbar ab:
sofort

Beschreibung

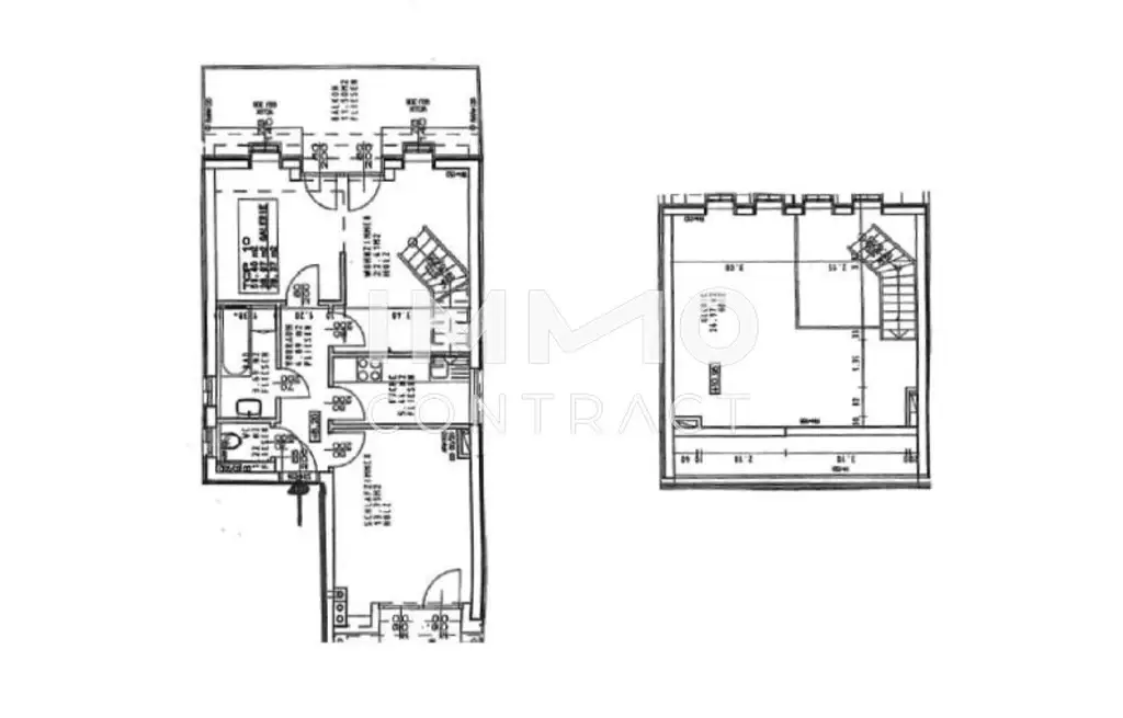
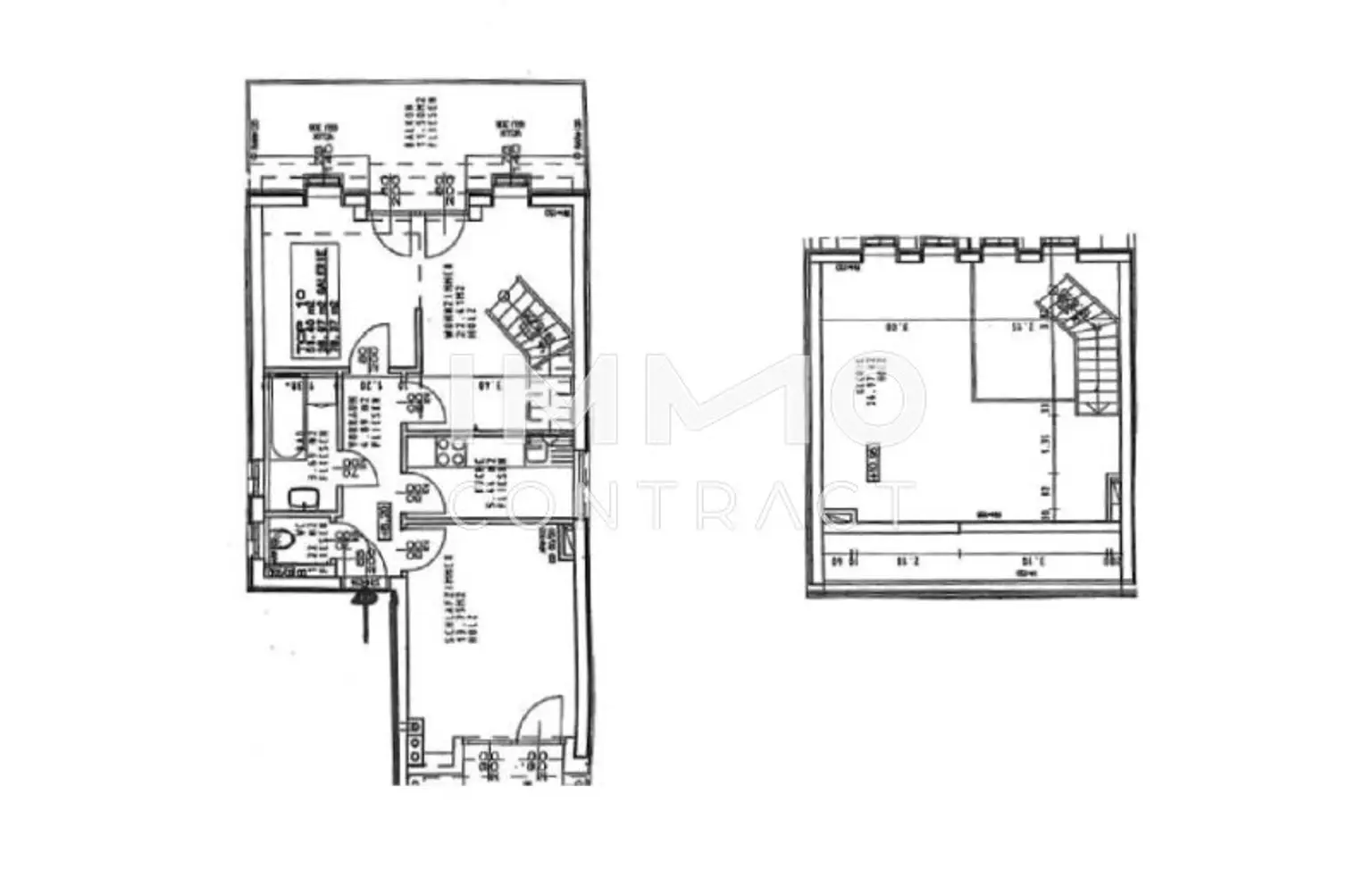
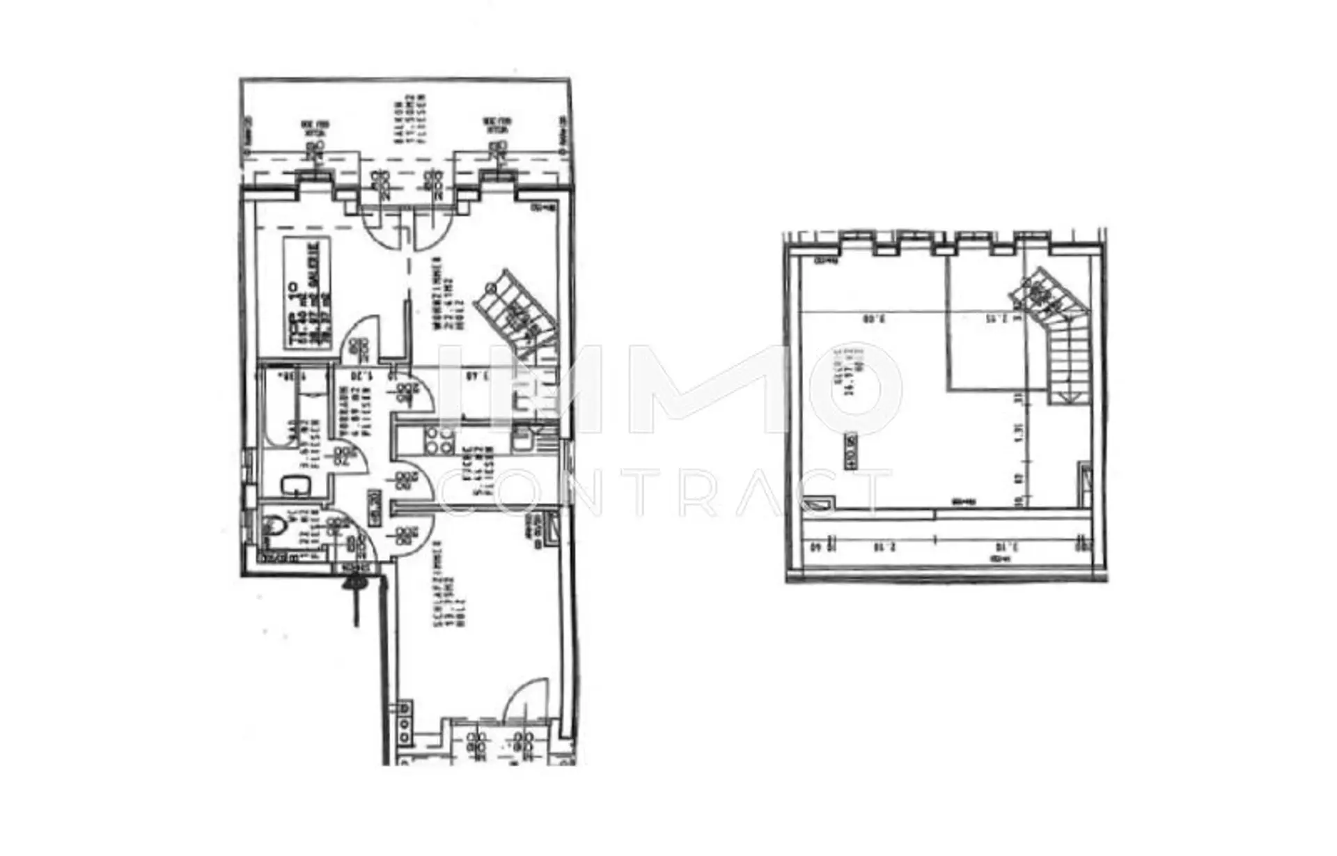
Diese ca. 78,39m² große Wohnung befindet sich im 2/3 OG des Hauses Heinrichstraße 119 nahe der UNI.

RAUMAUFTEILUNG: Vorraum, Küche, zur Galerie offener Wohnraum, Galerie, Schlafzimmer, getrennte sanitäre Einrichtungen, Kellerabteil, Balkon.

AUSSTATTUNG: Die Wohnung ist mit Parkettböden in dem Wohn- und Schlafraum sowie Fliesenböden in den sanitären Räumen ausgestattet. Das Badezimmer ist unter anderem mit einer Badewanne, einem Fenster und einem Waschmaschinenanschluss ausgestattet. Darüber hinaus verfügt die Wohnung über eine Einbauküche. Die Wohnung wird zentral beheizt.

LAGE: zentrale Lage in der Heinrichstraße 119

PARKEN: Es besteht die Möglichkeit, Parkplätze in der hauseigenen Tiefgarage anzumieten.

Der Immobilienmakler erklärt, dass er - entgegen dem in der Immobilienwirtschaft üblichen Geschäftsgebrauch des Doppelmaklers - einseitig nur für den Vermieter tätig ist.

Der Immobilienmakler erklärt, dass er – entgegen dem in der Immobilienwirtschaft üblichen Geschäftsgebrauch des Doppelmaklers – einseitig nur für den Vermieter tätig ist.

Infrastruktur / Entfernungen

Gesundheit
Arzt <50m
Apotheke <650m
Klinik <775m
Krankenhaus <750m

Kinder & Schulen
Schule <600m
Kindergarten <275m
Universität <225m
Höhere Schule <1.250m

Nahversorgung
Supermarkt <300m
Bäckerei <75m
Einkaufszentrum <2.075m

Sonstige
Geldautomat <650m
Bank <650m
Post <925m
Polizei <1.000m

Verkehr
Bus <75m
Straßenbahn <300m
Bahnhof <1.725m
Autobahnanschluss <5.875m

Angaben Entfernung Luftlinie / Quelle: OpenStreetMap
Beschreibung weiterlesen

Lage und Verkehrsanbindung

zentrale Lage in der Heinrichstraße 119 - nahe der UNI

Energieeffizienz

HWB:
79,8 kWh/(m²*a)
HWB Klasse:
C
fGEE:
1,24
fGEE Klasse:
C
Energieausweisart:
Energiebedarfs-ausweis

Grundriss

Lageplan

8010 Graz | Graz (Stadt)

Lade...
Jan Sarkantyu

Jan Sarkantyu
Regionalmanager

IMMOcontract Immobilien Vermittlung GmbH

Lade...

Fotomix

Bild 1 Bild 2 Bild 3 Bild 4 Bild 5 Bild 6 Bild 7 Bild 8 Bild 9 Bild 10 Bild 11