NEU - Maßgeschneidertes Eigenheim in sonniger Aussichtslage Nähe Lassnitzhöhe

Haus zum Kauf in 8302 Nestelbach bei Graz - Kaufpreis: 579.270 € / Objektnummer: 6541
Ausstattung: Zentralheizung Balkon Terrasse
Hausfoto Beispiel
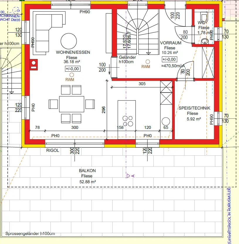
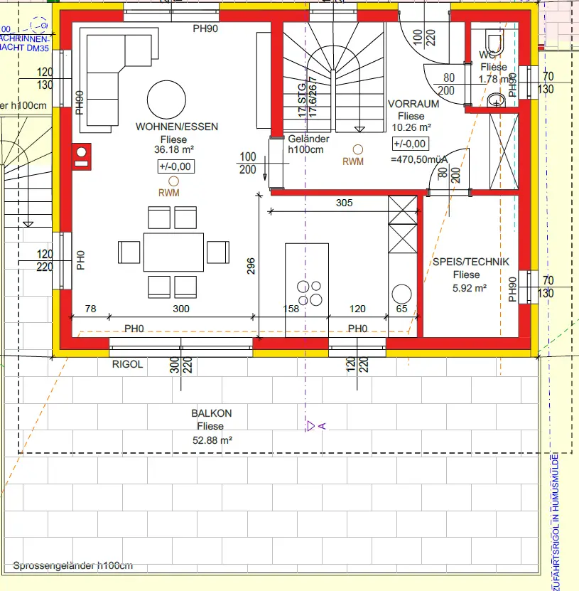
Grundriss EG
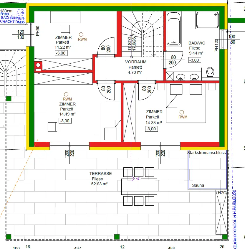
Grundriss OG
20240621_114855_resized
20240621_115240_resized

Preisinformationen

Kaufpreis:
579.270 €
Provision:
3.00 %

Fakten

Objektnummer:
6541
Objekttyp:
Haus
Balkon:
1
Terrasse:
1
Wohnfläche:
108,35 m²
Grundstücksfläche:
906 m²
Zimmer:
4
Badezimmer:
1
Toilette:
2
Baujahr:
2026
Zustand:
Erstbezug
Verfügbarkeit:
Verfügbar

Beschreibung

Sie wünschen sich ein Eigenheim, das genau zu Ihnen passt? Dieses Projekt bietet Ihnen die Möglichkeit, Ihr zukünftiges Zuhause maßgeschneidert nach Ihren Vorstellungen zu gestalten – in hochwertiger, ziegelmassiver Bauweise mit modernem Pultdach und in schlüsselfertiger Ausführung.

Aktuell ist ein Haus mit ca. 108,35m² Wohnfläche als Beispiel geplant – gerne können jedoch Größe, Raumaufteilung und Materialien individuell angepasst werden. Ihre persönlichen Wünsche fließen direkt in die Planung ein – so entsteht ein Zuhause, das exakt Ihren Vorstellungen entspricht.

Das Angebot umfasst:
- Die gesamte Einreichplanung inklusive Energieausweis
- Den Grundstückskaufpreis inklusive aller Kaufnebenkosten
- Eine Fixpreisgarantie bis zur Fertigstellung des Rohbaus
- Schlüsselfertig inklusive Luftwärmepumpe

Das Grundstück befindet sich in sonniger Aussichtslage, mit einer geregelten Zufahrt über Eigentum – eine ruhige, naturnahe Umgebung mit viel Lebensqualität.

Sie möchten mehr erfahren?
Gerne sende ich Ihnen eine detaillierte Leistungsbeschreibung zu oder berate Sie persönlich – lassen Sie uns gemeinsam den ersten Schritt zu Ihrem Traumhaus machen!
Angaben gemäß gesetzlichem Erfordernis:
Heizwärmebedarf: 38.0 kWh/(m²a)
Klasse Heizwärmebedarf: C
Beschreibung weiterlesen

Energieeffizienz

HWB:
38 kWh/(m²*a)
HWB Klasse:
C
Energieausweisart:
Energiebedarfs-ausweis

Lageplan

8302 Nestelbach bei Graz | Weiz

Lade...
Dietmar Weiss

Dietmar Weiss

IMMOXX. GmbH

Lade...

Fotomix

Hausfoto Beispiel Grundriss EG Grundriss OG 20240621_114855_resized 20240621_115240_resized