NEU - Miete mit Kaufoption: Helle, moderne Doppelhaushälfte im Erstbezug in familienfreundlicher Lage

Haus zur Miete in 7344 Stoob - Gesamtmiete: 926,54 € / Objektnummer: 1939/162201
Ausstattung: Boden Bad Gäste-WC Abstellraum Fußbodenheizung Garten
WZ 2
WZ 1
WZ 4
SZ 1
Wohnzimmer 2
SZ 4
SZ 3
Bad
Vorraum
Galerie
BT1 Parkplätze
BT1 vorne Eingang 1
Gärten
BT1 hintere Reihe
Gesamt vorne 1
Vogelperspektive
haus 6 Online

Preisinformationen

Gesamtmiete:
926,54 € / Monat
Umsatzsteuer:
84,23 €
Provision:
Gemäß Erstauftraggeberprinzip bezahlt der Abgeber die Provision.

Fakten

Objektnummer:
1939/162201
Objekttyp:
Haus
Wohnfläche:
106,3 m²
Gartenfläche:
123,77 m²
Zimmer:
5
Badezimmer:
1
Toilette:
2
Baujahr:
2025
Neubau:
Ja
Zustand:
Erstbezug
Verfügbarkeit:
Verfügbar

Beschreibung

Sie lieben das Besondere,.....

.... schätzen die Natur und möchten doch modern wohnen mit viel Platz für die Familie? Genau hier können Sie all Ihre Wohnträume verwirklichen!

In ruhiger Lage von Stoob, direkt am Ufer des Stoober Bachs, warten diese 16 Doppelhaushälften, die in massiver, energieeffizienter Bauweise errichtet wurden, auf ihre Bewohner.
Alle Einheiten verfügen über 5 Zimmer, Terrassen und Eigengärten. Bei der Konzeptionierung wurde auf optimale Nutzbarkeit geachtet, was sich in praktischen und großzügigen Grundrissen widerspiegelt. Wohnkomfort und Qualität stehen im Vordergrund.

Helle Wohnräume, wohnliche Eichenparkettböden, elegantes Feinsteinzeug, hochwertige Sanitäranlagen und elektrische Außenjalousien repräsentieren die qualitätvolle Ausstattung.

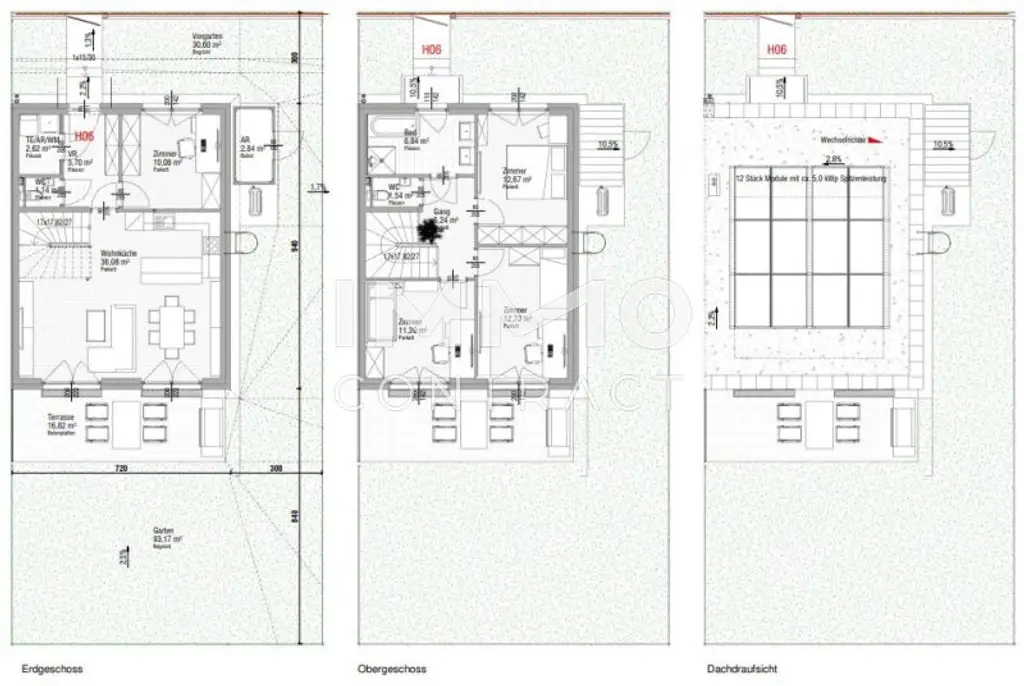
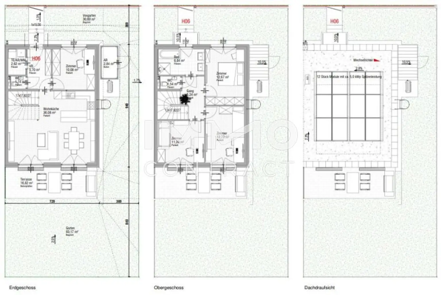
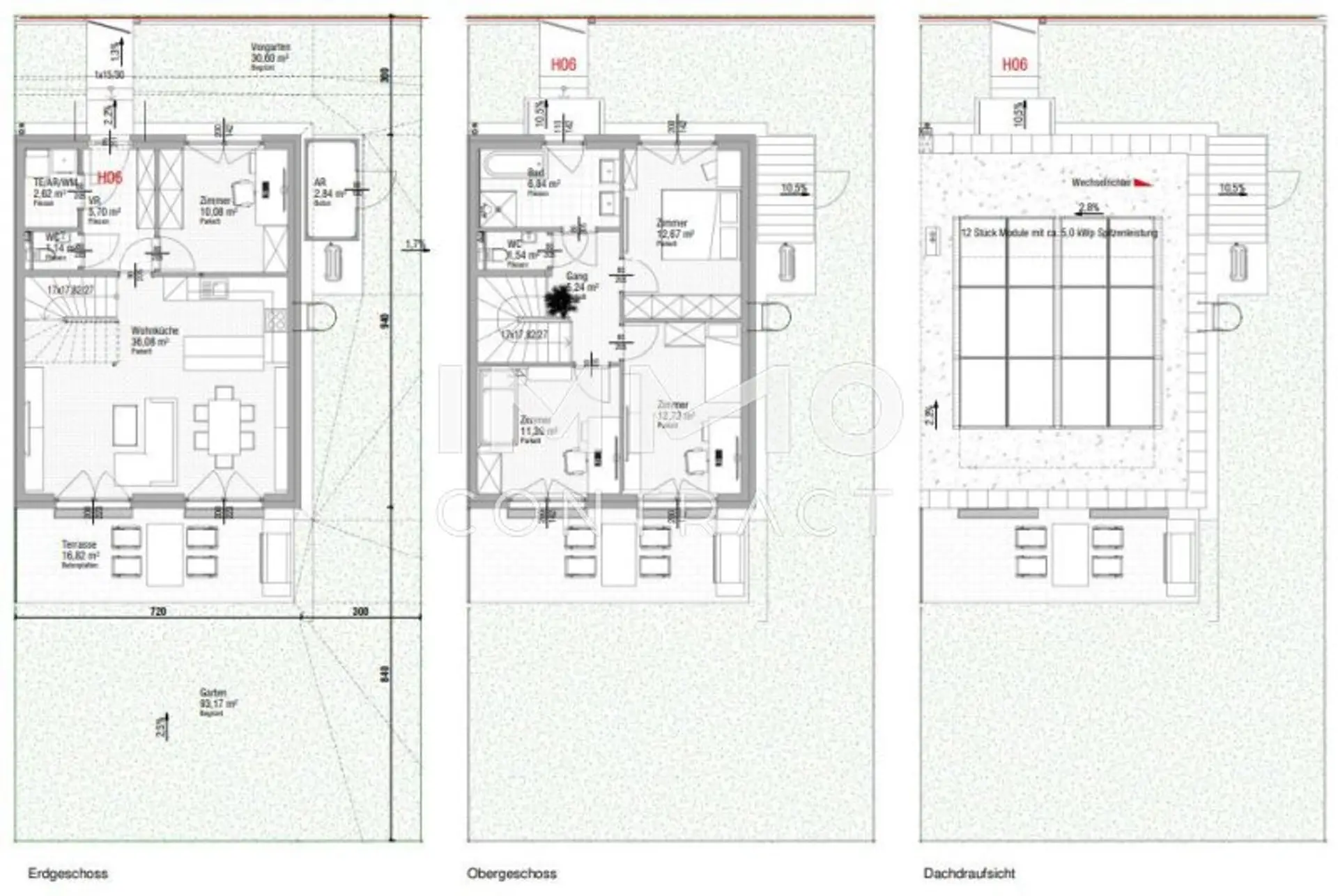
Das Erdgeschoß besteht aus einem großen Wohn-/Esszimmer mit integrierter Küche, Gäste-/Arbeitszimmer, Technikraum, Vorzimmer und WC. Die Küche ist nicht möbliert - so haben Sie die Möglichkeit, Ihre eigenen Einrichtungsideen umzusetzen.
Über eine offene Holztreppe gelangen Sie ins 1. Obergeschoß mit 3 großzügigen Schlafzimmern, geräumigem Bad mit Badewanne, Dusche, Doppelwaschbecken und Fenster, und einem separaten WC.

Geheizt wird mittels Luftwärmepumpe - eine Fußbodenheizung sorgt für Behaglichkeit, die zentrale Lüftungsanlage mit Wärmerückgewinnung garantiert frische Luft und ein gesundes Raumklima. Die Photovoltaikanlage sorgt für mehr Unabhängigkeit vom Stromanbieter und hält Ihre Energiekosten auf einem Niedrigstand.

Große Eigengärten laden zur Erholung vom Alltagsstress ein - eine Ruheoase für die ganze Familie!
Jeder Einheit sind 2 Pkw-Stellplätze zugeordnet - jeweils in einem Carport und einem Abstellplatz im Freien.

Haus 6
Dieses Haus hat eine Wohnfläche von 106,03 m2, der Garten ist 123,77 m2 groß und befindet sich in der hinteren Reihe der Anlage - familiär, gemütlich und mit Freiraum für die ganze Familie.

Es handelt sich hierbei um ein freifinanziertes Haus mit Kaufoption:
- Finanzierungsbeitrag € 51.455,30 - Miete € 926,54 (inkl. BK und Ust.)

Vereinbaren Sie noch heute einen unverbindlichen Besichtigungstermin. Ich freue mich, Ihnen dieses traumhafte Projekt näher bringen zu dürfen!

Frau Simone VASICEK 0676 / 841 420 605

Der Immobilienmakler erklärt, dass er – entgegen dem in der Immobilienwirtschaft üblichen Geschäftsgebrauch des Doppelmaklers – einseitig nur für den Vermieter tätig ist.

Infrastruktur / Entfernungen

Gesundheit
Arzt <4.000m
Apotheke <4.000m
Krankenhaus <3.500m

Kinder & Schulen
Schule <500m
Kindergarten <5.500m

Nahversorgung
Supermarkt <2.000m
Bäckerei <4.500m
Einkaufszentrum <2.000m

Sonstige
Bank <4.000m
Geldautomat <4.000m
Post <500m
Polizei <4.000m

Verkehr
Bus <500m
Bahnhof <500m
Autobahnanschluss <2.500m

Angaben Entfernung Luftlinie / Quelle: OpenStreetMap
Beschreibung weiterlesen

Lage und Verkehrsanbindung

Die Marktgemeinde Stoob liegt im Bezirk Oberpullendorf, mitten im reizvollen Mittelburgenland. Die Umgebung ist ruhig, grün und ideal für Menschen, die naturnah wohnen, aber dennoch eine gute Grundversorgung erreichen möchten.

Grundriss

Lageplan

7344 Stoob | Oberpullendorf

Lade...
Simone Vasicek

Simone Vasicek
Regionalmanagerin NÖ Süd & Burgenland

IMMOcontract Immobilien Vermittlung GmbH

Lade...

Fotomix

WZ 2 WZ 1 WZ 4 SZ 1 Wohnzimmer 2 SZ 4 SZ 3 Bad Vorraum Galerie BT1 Parkplätze BT1 vorne Eingang 1 Gärten BT1 hintere Reihe Gesamt vorne 1 Vogelperspektive