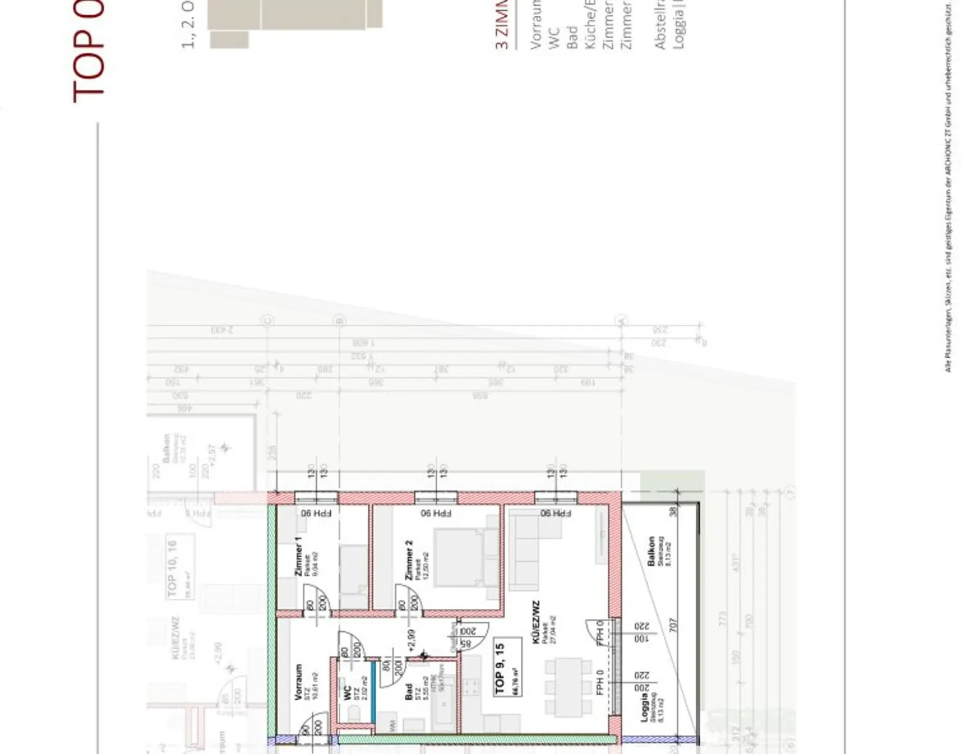
NEU - Mietkauf FUTURE+ Molln Beispiel TOP 9

Wohnung zur Miete in 4591 Molln - Gesamtmiete: 615,40 €

Preisinformationen

Gesamtmiete:
615,40 € / Monat
Vermittlungsprovision:
Ja

Fakten

Objekttyp:
Wohnung
Terrasse:
1
Nutzfläche:
66 m²
Zimmer:
3
Neubau:
Ja
Verfügbarkeit:
Verfügbar

Beschreibung

WISSENSWERTES ZU IHRER WOHNUNG IN MOLLN Kompakter Baukörper mit optimaler Ausrichtung 16 Wohnungen auf drei Geschoßen Jede Wohnung ist barrierefrei mit dem Lift erreichbar Exklusive Wohnungsausstattung Große…

ARCHIONIC Immobilien GmbH

Lade...

Fotomix

Bild 1 Bild 2 Bild 3 Bild 4