NEU - Mietwohnung in Ruhlelage

Wohnung zur Miete in 1180 Wien - Gesamtmiete: 999,00 € / Objektnummer: 2860

Preisinformationen

Gesamtmiete:
999,00 € / Monat
Betriebskosten netto:
152,68 € / Monat
Umsatzsteuer:
90,82 €
Kaution:
3 Bruttomonatsmieten
Provision:
Gemäß Erstauftraggeberprinzip bezahlt der Abgeber die Provision.

Fakten

Objektnummer:
2860
Objekttyp:
Wohnung
Nutzfläche:
54,53 m²
Zimmer:
2
Badezimmer:
1
Toilette:
1
Verfügbarkeit:
Verfügbar

Beschreibung

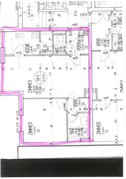
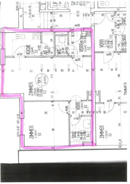
Es gelangt eine ruhig gelegene Mietwohnung mit ca. 54 qm Nutzfläche in die Vermarktung. Die Wohnung liegt im 2. Liftstock eines Neubaus in der Semperstraße, im 18. Bezirk.

Die 2-Zimmerwohnung teilt sich wie folgt auf

* Wohnzimmer
* Küche
* 1 Schlafzimmer
* Badezimmer
* separates WC
* Abstellraum 

Die genaue Raumaufteilung entnehmen Sie bitte dem beiliegenden Grundrissplan und den Bildern. Die Wohnung ist in den begrünten Innenhof ausgerichtet und ist dadurch sehr ruhig gelegen.

Lage und Infrastruktur

Die Anbindung an das öffentliche Verkehrsnetz ist sehr gut. Die U-Bahn Station U6 Nußdorfer Straße sowie die U-Bahn Station U6 Währinger Straße sind zu Fuß in wenigen Minuten zu erreichen. Nahegelegene Geschäfte des täglichen Bedarfs, sowie Restaurants und die Nähe zum Währinger Park, werten den Standort dieser Wohnung zusätzlich auf. 

Zusätzliche Kosten

* Heizkosten € 57,26 zzgl. USt. (monatlich Akonto, Stand 2025)
* Warmwasser € 24,54 zzgl USt. (monatlich Akonto, Stand 2025)
* Mietvertragserrichtungskosten € 220,- zzgl. USt. (einmalig)

Sonstiges

Das Mietverhältnis wird befristet auf 5 Jahre abgeschlossen. Die Wohnung kann ab sofort bezogen werden.

Für weitere Informationen und einen Besichtigungstermin stellen Sie bitte eine Anfrage.

Die Angaben über das angebotene Objekt erfolgen mit der Sorgfalt eines ordentlichen Immobilienmaklers; für die Richtigkeit solcher Angaben, die auf Informationen der über das Objekt Verfügungsberechtigten beruhen, wird keine Gewähr geleistet. Die Bilder können vom IST-Zustand abweichen. Zusätzlich erlauben wir uns darauf hinzuweisen, dass zum Abgeber ein wirtschaftliches und persönliches Naheverhältnis besteht.

Wir weisen darauf hin, dass zwischen dem Vermittler und dem zu vermittelnden Dritten ein familiäres oder wirtschaftliches Naheverhältnis besteht.

Der Immobilienmakler erklärt, dass er – entgegen dem in der Immobilienwirtschaft üblichen Geschäftsgebrauch des Doppelmaklers – einseitig nur für den Vermieter tätig ist.

Infrastruktur / Entfernungen

Gesundheit
Arzt 500m
Apotheke 500m
Klinik 500m
Krankenhaus 1.000m

Kinder & Schulen
Schule 500m
Kindergarten 500m
Universität 500m
Höhere Schule 500m

Nahversorgung
Supermarkt 500m
Bäckerei 500m
Einkaufszentrum 2.000m

Sonstige
Geldautomat 500m
Bank 500m
Post 500m
Polizei 1.000m

Verkehr
Bus 500m
U-Bahn 500m
Straßenbahn 500m
Bahnhof 500m
Autobahnanschluss 1.500m

Angaben Entfernung Luftlinie / Quelle: OpenStreetMap
Beschreibung weiterlesen

Lage und Verkehrsanbindung

Währinger Park, WIFI, U-Bahn Station Nußdorferstraße und Währinger Straße Volksoper

Energieeffizienz

HWB:
109 kWh/(m²*a)
HWB Klasse:
D
fGEE:
1,65
fGEE Klasse:
C
Energieausweisart:
Energiebedarfs-ausweis
Gültig bis:
31.07.2035

Grundriss

Lageplan

1180 Wien | Wien 18., Währing

Lade...
Mathias Stockert

Mathias Stockert

Mathias Stockert

Lade...

Fotomix

Bild 1 Bild 2 Bild 3 Bild 4 Bild 5 Bild 6 Bild 7 Bild 8 Bild 9 Bild 10 Bild 11 Bild 12