NEU - Moderne 1,5-Zimmer Wohnung mit Loggia

Wohnung zur Miete in 1200 Wien - Gesamtmiete: 949,00 € / Objektnummer: 25979
Ausstattung: Barrierefrei Boden Fahrstuhl Bad Tiefgarage Parkplatz Fahrradraum Abstellraum Zentralheizung Loggia

Preisinformationen

Gesamtmiete:
949,00 € / Monat
Betriebskosten netto:
115,27 € / Monat
Heizkosten netto:
47,38 €
Umsatzsteuer:
81,11 €
Kaution:
3 Bruttomonatsmieten
Provision:
Gemäß Erstauftraggeberprinzip bezahlt der Abgeber die Provision.

Fakten

Objektnummer:
25979
Objekttyp:
Wohnung
Loggia:
1
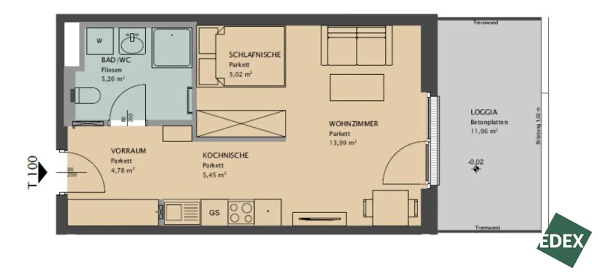
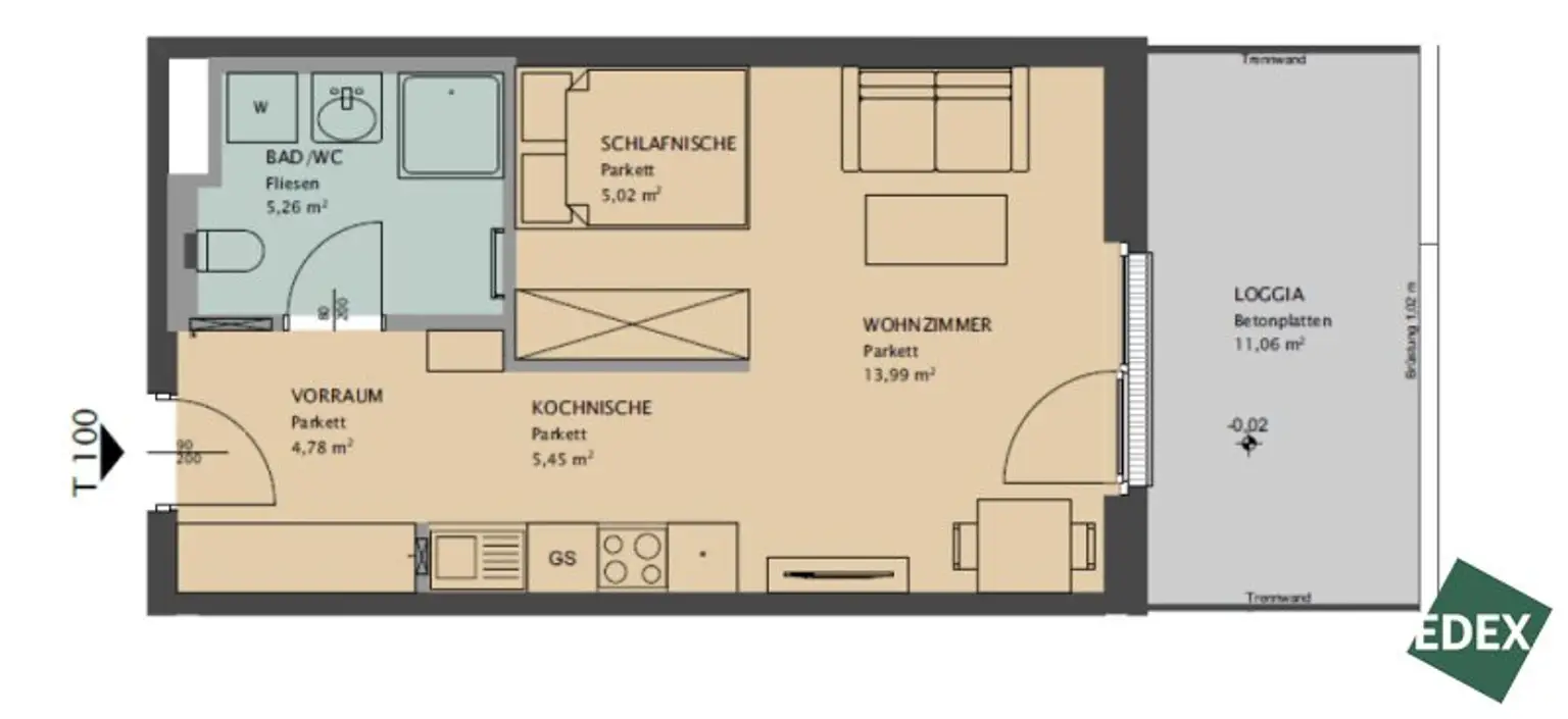
Wohnfläche:
34,5 m²
Loggia Fläche:
11,06 m²
Nutzfläche:
45,56 m²
Zimmer:
1,5
Badezimmer:
1
Toilette:
1
Stockwerk:
5
Neubau:
Ja
Zustand:
Gepflegt
Verfügbarkeit:
Verfügbar

Beschreibung

Die angezeigten Fotos sind Beispielfotos von einer vergleichbaren Wohnung im Haus!

Highlights

* Modernes Wohnen in Brigittenau
* Loggia
* Zentrale Lage
* Tiefgarage
* Einbauküche

Objektbeschreibung

Ab sofort gelangt zur Vermietung eine 1,5-Zimmer Wohnung in urbaner Atmosphäre. Die helle Wohnung verfügt über einen Vorraum, ein modernes Badezimmer mit Dusche, Waschmaschinenanschluss und WC, einen Wohnbereich mit einer modernen, offenen Küche, sowie über eine Loggia. Die 3-fach-verglasten Fenster sind mit elektrischer Außenbeschattung ausgestattet. Die Wohnräume sind mit schönem Parkettboden ausgestattet und die Nassräume mit Fliesen verlegt.

Bei Bedarf kann ein Garagenplatz in der hauseigenen Tiefgarage um monatlich EUR 99,- angemietet werden.

Infrastruktur

Die Lage der Wohnung bietet eine hervorragende Infrastruktur, die nahezu keine Wünsche offenlässt. Unzählige Restaurants, Bars, Einkaufsmöglichkeiten sowie Sport- und Kulturangebote befinden sich in der Nähe. Die Millenium-City und die benachbarte Brigitta-Passage bieten unzählige Einkaufsmöglichkeiten in der näheren Umgebung. Das Naherholungsgebiet rund um den Donaukanal sowie der Donau & Donauinsel sind fußläufig erreichbar. In wenigen Gehminuten erreichen Sie die Straßenbahnstation Höchstädtplatz (Linien 1/2/30/31/33), die U6-Station Dresdner Straße und den Bahnhof Handelskai.

Der Immobilienmakler erklärt, dass er – entgegen dem in der Immobilienwirtschaft üblichen Geschäftsgebrauch des Doppelmaklers – einseitig nur für den Vermieter tätig ist.

Infrastruktur / Entfernungen

Gesundheit
Arzt <500m
Apotheke <500m
Klinik <500m
Krankenhaus <1.000m

Kinder & Schulen
Schule <500m
Kindergarten <500m
Universität <500m
Höhere Schule <1.000m

Nahversorgung
Supermarkt <500m
Bäckerei <500m
Einkaufszentrum <500m

Sonstige
Geldautomat <500m
Bank <500m
Post <500m
Polizei <500m

Verkehr
Bus <500m
U-Bahn <500m
Straßenbahn <500m
Bahnhof <1.000m
Autobahnanschluss <1.000m

Angaben Entfernung Luftlinie / Quelle: OpenStreetMap
Beschreibung weiterlesen

Lage und Verkehrsanbindung

Brigittenau, Dresdner Straße

Höchstädtplatz

Energieeffizienz

HWB:
20,08 kWh/(m²*a)
HWB Klasse:
A
fGEE:
0,82
fGEE Klasse:
A
Energieausweisart:
Energiebedarfs-ausweis
Gültig bis:
09.10.2028

Grundriss

Lageplan

1200 Wien | Wien 20., Brigittenau

Lade...
Veronika Petrosyan

Veronika Petrosyan
Consultant

EDEX Immobilien GmbH

Lade...

Fotomix

Bild 1 Bild 2 Bild 3 Bild 4 Bild 5 Bild 6 Bild 7 Bild 8 Bild 9 Bild 10 Bild 11