NEU - Moderne 2 Zimmer Single-und Pärchenwohnung

Wohnung zur Miete in 1170 Wien - Gesamtmiete: 895,00 € / Objektnummer: 19898
Ausstattung: Barrierefrei Boden Fahrstuhl Bad Gäste-WC Kabel/Satelliten-TV Alarmanlage Tiefgarage Parkplatz Fahrradraum Fernwärme

Preisinformationen

Gesamtmiete:
895,00 € / Monat
Betriebskosten netto:
94,30 € / Monat
Umsatzsteuer:
81,36 €
Kaution:
3 Bruttomonatsmieten
Provision:
Gemäß Erstauftraggeberprinzip bezahlt der Abgeber die Provision.

Fakten

Objektnummer:
19898
Objekttyp:
Wohnung
Keller Fläche:
3 m²
Wohnfläche:
47,33 m²
Nutzfläche:
47,33 m²
Zimmer:
2
Badezimmer:
1
Toilette:
1
Stockwerk:
1
Baujahr:
2014
Neubau:
Ja
Zustand:
Neuwertig
Verfügbarkeit:
Verfügbar
Verfügbar ab:
01.10.2022

Beschreibung

Die ruhig gelegene Wohnung eignet sich sehr gut als Single -und Pärchenwohnung die den gehobenen Anspruch bevorzugen! Das Haus wurde 2014 errichtet, die Wohnung ist insgesamt noch in einem sehr neuwertigem Zustand!

Highlights:

* Hohe Energieeffizienz (Energieklasse A), durch kontrollierte Wohnraumlüftung
* Raumlüftungssystem und Heizung mit Fernwärme
* Sehr gute Infrastruktur und Verkehrsanbindung
* Ein Garagenplatz könnte optional im Haus um 120 Euro angemietet werden.

Bezugstermin: ab sofort
 

Lage und Umgebung:

Das 2014 erbaute Haus befindet sich in der Umgebung des Konkressbades und der Hernalser Hauptstraße. Demnach haben Sie eine sehr gute Verkehrsanbindung mit den Straßenbahnlinien 43, 44 und 10 den Buslinien 42A und 44A sowie der Vorortelinie S45 (Hernals).
In der nahen Umgebung finden sich einige Einkaufsmöglichkeiten (Merkur, Spar, Billa, Bipa). Für Freizeitsportler (Laufen, Schwimmen, Radfahren) bietet sich das Kongreßbad und die Nähe zu Pötzleinsdorf oder Neustift am Walde sehr gut an.

 

Ausstattung und Aufteilung:
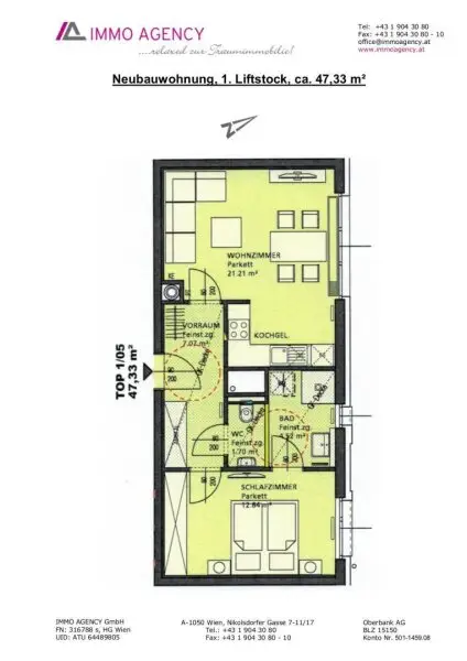
Die Wohnung befindets sich im 1. Liftstock und ist barrierefrei erreichbar. Sie zeichnet sich durch die zentrale Raumaufteilung aus und ist mit Parkettböden und Fliesen ausgestattet. Die Einbauküche ist noch neuwertig und mit Kühlschrank, Gefrierschrank, Mikrowelle, Herd und Geschirrspüler ausgestattet. Durch die großen Fensterflächen im Wohnbereich wirkt die Wohnung sehr hell und freundlich.
Die wenig befahrene Straße vor dem Haus trägt zur Ruheoase bei - durch die kontrollierte Wohnraumlüftung erhalten Sie auch bei geschlossenem Fenster Frischluft. In beiden Zimmern befinden sich Internet und TV Anschlüsse - das Haus verfügt über eine SAT-Anlage die genutzt werden kann.Beheizt wird das Objekt mit Fernwärme.

Zur zusätzlichen Ausstattung zählen noch eine Video-Gegensprechanlage , eine Alarmanlage und elektrische Jalousien in allen Räumen.

Raumaufteilung:

* Eingangsbereich/Garderobe, ca. 7,07 m²
* WC mit Handwaschbecken, ca. 1,70 m²
* Bad mit Dusche, ca. 4,52 m²
* Wohnküche (voll ausgestattet), ca. 21,21 m²
* Schlafzimmer, ca. 12,84 m²
* GESAMTFLÄCHE, ca. 47,33 m²
* Ein Kellerabteil, ca. 3 m², ist der Wohnung zugeteilt.

Über den Eingang gelangt man in den Vorraum/Garderobe von wo aus man in die Wohnküche, in das WC und in das Schlafzimmer gehen kann. Das Badezimmer mit Dusche (Waschmaschinenanschluss und Fenster vorhanden) sind vom Schlafzimmer aus begehbar.
Im Haus befindet sich ein  Fahrradraum sowie ein kleiner allgemeiner Garten mit Sandkiste und Bänken.

Die Wohnung wird auf 4 Jahre befristet vermietet - nach Rücksprache und Situation der Eigentümer kann jedoch verlängert werden. 

Energieklasse: A; 16,34 kWh/m2.a fGEE: A; 0,79

 

Kosten bei Mietvertragsabschluss:

* ca. 3 BMM Kaution: € 2.700,-
* keine Mietvertragserrichtungskosten

Für Fragen und zur Terminvereinbarung stehe ich sehr gerne zur Verfügung.

Bitte nutzen Sie hierfür das vollständig ausgefüllte Anfrageformular auf der Immobilienplattform, gerne auch mit Terminvorschlägen!

Wir weisen darauf hin, dass zwischen dem Vermittler und dem zu vermittelnden Dritten ein familiäres oder wirtschaftliches Naheverhältnis besteht.

Der Immobilienmakler erklärt, dass er – entgegen dem in der Immobilienwirtschaft üblichen Geschäftsgebrauch des Doppelmaklers – einseitig nur für den Vermieter tätig ist.
Beschreibung weiterlesen

Lage und Verkehrsanbindung

Kongreßbad

Energieeffizienz

HWB:
16,84 kWh/(m²*a)
HWB Klasse:
A
fGEE:
0,83
fGEE Klasse:
A
Energieausweisart:
Energiebedarfs-ausweis
Gültig bis:
15.05.2024

Grundriss

Lageplan

1170 Wien | Wien 17., Hernals

Lade...
Daniel Egger

Daniel Egger
KAUF/MIETE - Wohnimmobilien in Wien und Umgebung

IMMO AGENCY GmbH

Lade...

Fotomix

Bild 1 Bild 2 Bild 3 Bild 4 Bild 5 Bild 6 Bild 7 Bild 8 Bild 9 Bild 10 Bild 11 Bild 12 Bild 13 Bild 14