NEU - Moderne 2-Zimmer-Wohnung im Zentrum von Leopoldsdorf - südseitig - grosser Balkon - PKW-Stellplatz

Wohnung zur Miete in 2333 Leopoldsdorf - Gesamtmiete: 879,00 € / Objektnummer: 199397029
Ausstattung: Barrierefrei Boden Fahrstuhl Wohnküche / offene Küche Kabel/Satelliten-TV Zentralheizung Fußbodenheizung Balkon

Preisinformationen

Gesamtmiete:
879,00 € / Monat
Betriebskosten netto:
79,99 € / Monat
Umsatzsteuer:
79,91 €
Kaution:
3 Bruttomonatsmieten
Provision:
Gemäß Erstauftraggeberprinzip bezahlt der Abgeber die Provision.

Fakten

Objektnummer:
199397029
Objekttyp:
Wohnung
Balkon:
1
Balkonfläche:
12,33 m²
Keller Fläche:
1,36 m²
Wohnfläche:
45,57 m²
Zimmer:
2
Badezimmer:
1
Toilette:
1
Stockwerk:
1
Baujahr:
2021
Neubau:
Ja
Zustand:
Erstbezug
Verfügbarkeit:
Verfügbar

Beschreibung

Zur Vermietung gelangt eine moderne 2-Zimmer-Wohnung im Zentrum von Leopoldsdorf.

Die lichtdurchflutete Wohnung befindet sich im 1.Obergeschoß einer im Jahr 2022 fertiggestellten Wohnhausanlage und weist eine Wohnfläche von ca. 45 m² sowie einen geräumigen, südseitigen Balkon mit ca. 12 m² auf.

Die Böden wurden mit hochwertigem Eichenparkett ausgestattet und die Sanitärräumlichkeiten schön verfliest. Eine vollausgestattete Einbauküche ist ebenfalls vorhanden.

Beheizt wird die Wohnung mittels Fußbodenheizung und Fernwärme. Außerdem wurden alle Verglasungen mit außenliegenden Raffstores ausgestattet.

Ein Kellerabteil ist der Wohnung ebenso zugeschrieben und ist im Mietpreis bereits enthalten.

 

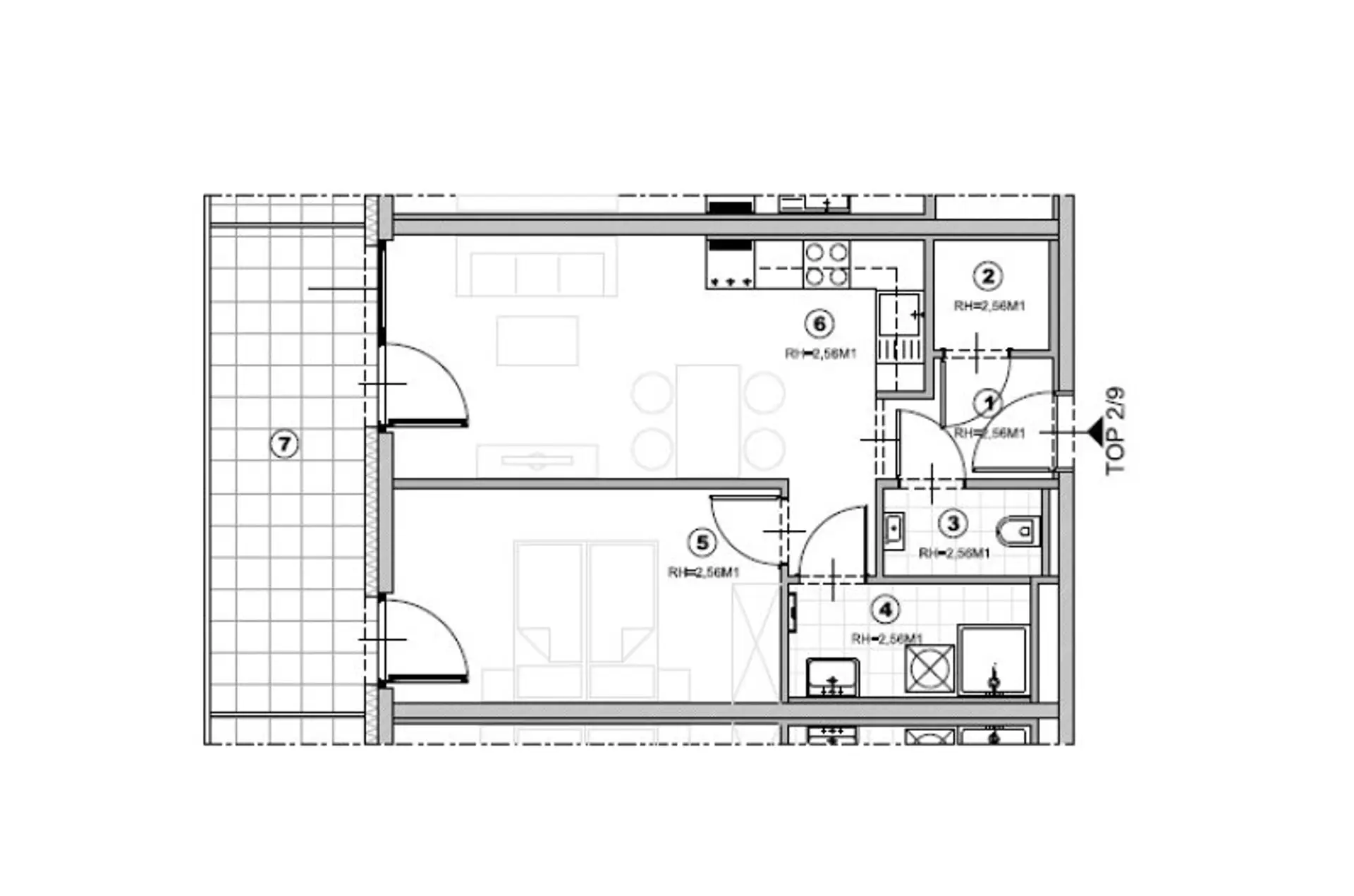
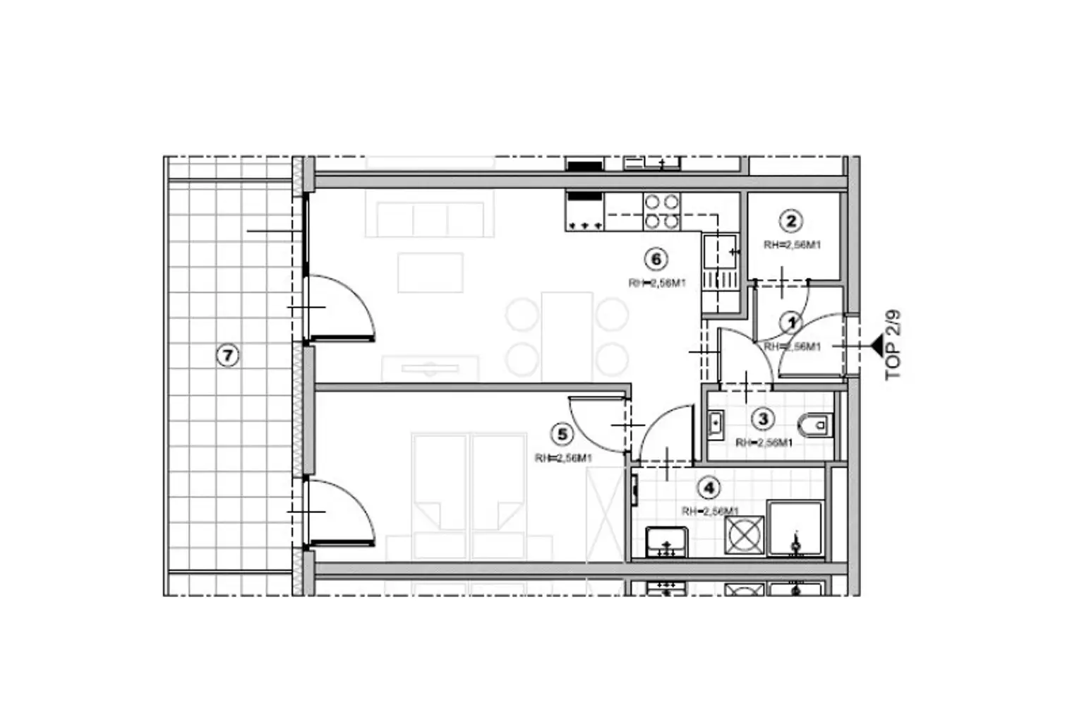
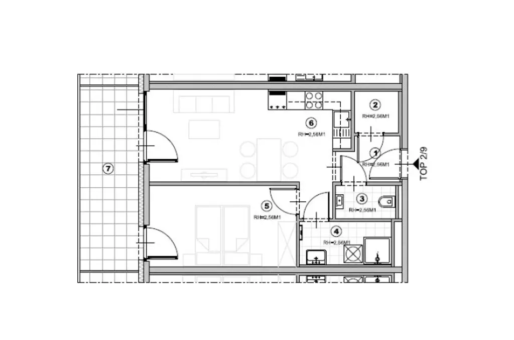
Bei den im Inserat ersichtlichen Fotos sowie dem virtuellen Rundgang handelt es sich um die idente und daneben befindliche Nachbarwohnung. (Grundriss gespiegelt)

 

ECKDATEN:

* Lage: 1. Obergeschoß mit Lift
* Wohnnutzfläche: ca. 45 m²
* Terrasse: ca. 12,33 m²
* 2 Zimmer

 

Der Grundriss gliedert sich wie folgt:

* Vorraum
* Abstellraum
* WC
* Wohnküche mit Zugang zum geräumigen, südseitigen Balkon
* Schlafzimmer
* Badezimmer mit Dusche, Waschtisch und Waschmaschinenanschluss

 

VIRTUELLER RUNDGANG:

https://my.matterport.com/show/?m=zvduA6TzjgP

(Link bitte kopieren und in Ihren Browser einfügen)

 

Monatliche Kosten:

Miete netto: 719,10 €

Betriebskosten brutto: 87,99 €

Akonto Kaltwasser brutto: 9,93 € (Abrechnung nach tatsächlichem Verbrauch)

Akonto Heizung und Warmwasser brutto: 69,62 € (Abrechnung nach tatsächlichem Verbrauch)

10% USt. der Nettomiete: 71,91 €

Gesamt inkl. BK, kalt pro Monat: 879,00 €

Gesamt inkl. Heizung, Warm- und Kaltwasser pro Monat: 958,55 € (+ optional PKW-Stellplatz 100,00 € pro Monat)

 

Verfügbar: ab 01.01.2026

Befristung: bis 5 Jahre vorerst

PKW-Stellplatz: optional in der Tiefgarage (Doppelstellplatz - 2 hintereinander mit 10 x 2,5m) 100,00 € pro Monat brutto inkl. BK (bei Anmietung gemeinsam mit der Wohnung statt € 120,00 p.m. für externe Mieter)

 

"ÜBERZEUGEN SIE SICH SELBST! ANSEHEN LOHNT SICH!"
 

Für weitere Details stehen wir Ihnen gerne jederzeit unter 01 / 997 72 90 [tel:019977290] zur Verfügung.

Der Immobilienmakler erklärt, dass er – entgegen dem in der Immobilienwirtschaft üblichen Geschäftsgebrauch des Doppelmaklers – einseitig nur für den Vermieter tätig ist.

Infrastruktur / Entfernungen

Gesundheit
Arzt 275m
Apotheke 50m
Klinik 5.400m
Krankenhaus 7.575m

Kinder & Schulen
Schule 200m
Kindergarten 200m
Universität 5.650m
Höhere Schule 8.675m

Nahversorgung
Supermarkt 200m
Bäckerei 3.300m
Einkaufszentrum 3.975m

Sonstige
Geldautomat 150m
Bank 150m
Post 175m
Polizei 350m

Verkehr
Bus 125m
U-Bahn 3.750m
Straßenbahn 5.850m
Bahnhof 1.975m
Autobahnanschluss 1.500m

Angaben Entfernung Luftlinie / Quelle: OpenStreetMap
Beschreibung weiterlesen

Lage und Verkehrsanbindung

Hauptstraße 11, 2333 Leopoldsdorf

Energieeffizienz

HWB:
33,87 kWh/(m²*a)
HWB Klasse:
B
fGEE:
0,85
fGEE Klasse:
A
Energieausweisart:
Energiebedarfs-ausweis
Gültig bis:
20.12.2026

Grundrisse

Lageplan

2333 Leopoldsdorf | Bruck an der Leitha

Lade...
Dominic Lorenz

Dominic Lorenz
Geschäftsführer

Lorenz Real Construct Immobilien GmbH

Virtuelle Tour

Anrufen
Lade...

Fotomix

Bild 1 Bild 2 Bild 3 Bild 4 Bild 5 Bild 6 Bild 7 Bild 8 Bild 9 Bild 10 Bild 11 Bild 12 Bild 13 Bild 14 Bild 15 Bild 16 Bild 17 Bild 18 Bild 19 Bild 20