NEU - Moderne 4-Zimmer Wohnung mit Loggia am Wienerberg

Wohnung zum Kauf in 1100 Wien - Kaufpreis: 899.000 € / Objektnummer: 13948
Ausstattung: Barrierefrei Boden Fahrstuhl Wohnküche / offene Küche Bad Möbliert Fernwärme Loggia

Preisinformationen

Kaufpreis:
899.000 €

Fakten

Objektnummer:
13948
Objekttyp:
Wohnung
Loggia:
1
Loggia Fläche:
11 m²
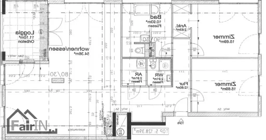
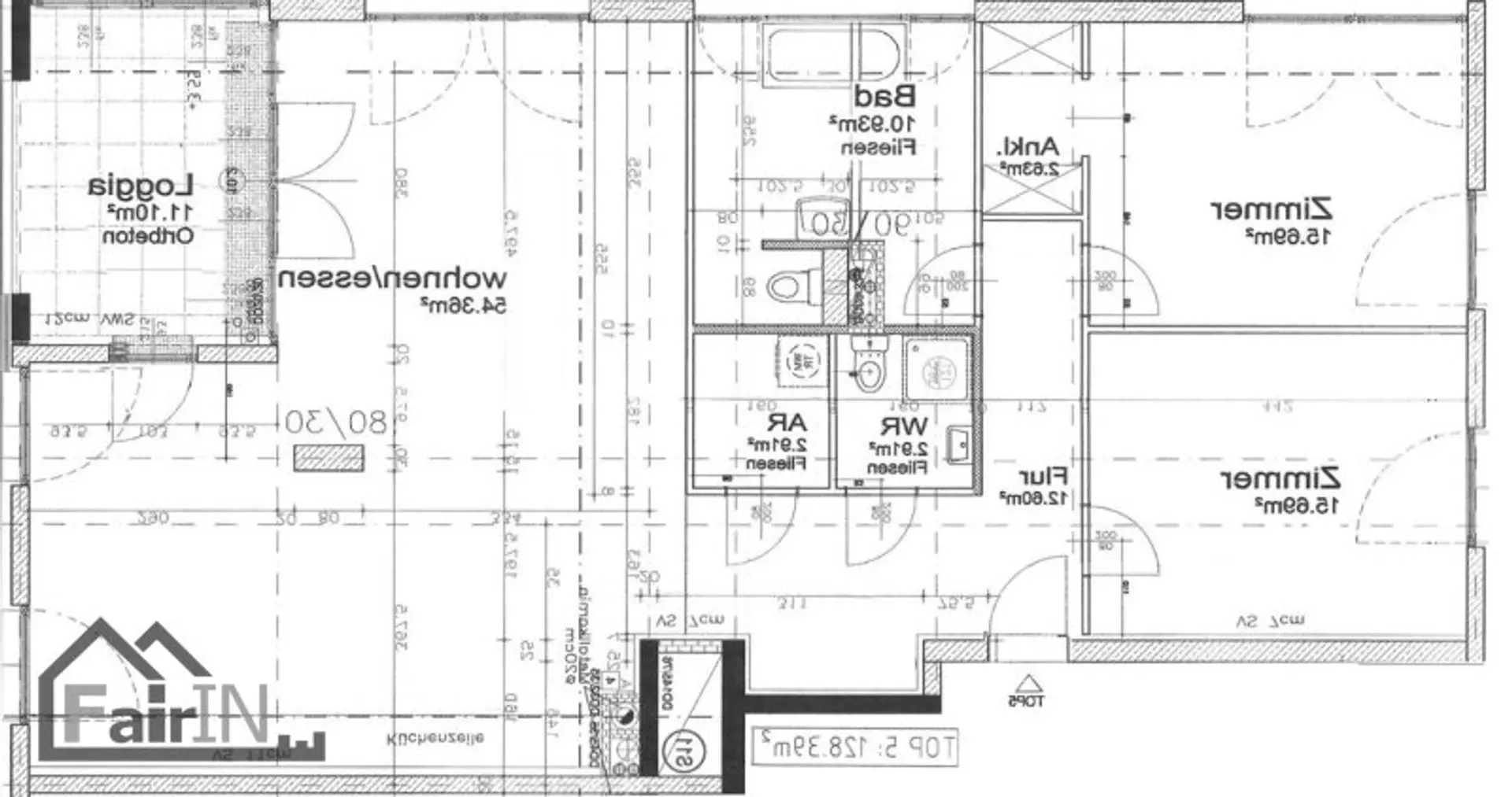
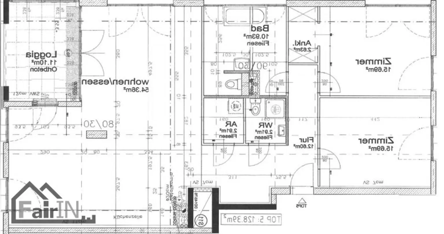
Nutzfläche:
127 m²
Zimmer:
4
Badezimmer:
2
Toilette:
2
Stockwerk:
3
Baujahr:
2004
Neubau:
Ja
Verfügbarkeit:
Verfügbar

Beschreibung

OBJEKTBESCHREIBUNG:

Diese attraktive 4-Zimmer Wohnung befindet sich in der Hertha-Firnberg-Straße, 1100 Wien, im 3. Liftstock eines gepflegten Wohnhauses aus dem Jahr 2004. Sie überzeugt durch eine großzügige Raumaufteilung sowie eine sonnige Loggia mit direktem Blick ins Naherholungsgebiet Wienerberg – ein echtes Highlight für Naturliebhaber.

Die Wohnung ist bequem mit dem Lift erreichbar. Beim Betreten empfängt Sie ein heller, freundlicher Vorraum mit ausreichend Platz für eine Garderobe. Von hier aus gelangen Sie in das lichtdurchflutete Wohnzimmer mit offener Wohnküche, das durch seine Großzügigkeit viel Raum zum Leben, Genießen und Entspannen bietet.

Die Wohnung verfügt über eine Wohnzimmer mit Küche ,drei Schlafzimmer, zwei Badezimmer sowie zwei Toiletten und eine Loggia, was sie ideal für Familien oder Paare mit Platzbedarf macht. Ein Abstellraum sorgt zusätzlich für praktischen Stauraum.

Ein Garagenplatz kann optional angemietet werden.

-------------

AUSSTATTUNG:

*
Voll ausgestattete Einbauküche

*
Fliesen in den Nassräumen

*
Klimaanlage im Wohnzimmer

*
Sonnige Loggia 

*
Abstellraum

*
Eigenes Kellerabteil

*
Lift im Haus

-------------

LAGE:

Die Wohnung liegt in einer der grünsten Wohngegenden Wiens, direkt am Naherholungsgebiet Wienerberg. Hier genießen Sie Ruhe und Natur, ohne auf eine ausgezeichnete Infrastruktur verzichten zu müssen. Einkaufsmöglichkeiten, Restaurants sowie ein Kino finden Sie im nahegelegenen Twin-Tower-Areal.

Die hervorragende Verkehrsanbindung sowie die schnelle Erreichbarkeit der A2 (Südautobahn) machen die Lage besonders attraktiv für Pendler und Ausflüge ins Wiener Umland.

 

Für einen Besichtigungstermin bitte wir um Voranmeldung per Telefon oder E-Mail/Anfrage.

_Für weitere Informationen stehen wir Ihnen gerne zur Verfügung._

Ihr Fairin Immobilien Team
E-Mail: ib@fairin.at

 

Kaufnebenkosten:
3,5% Grunderwerbsteuer, 
1,1% Grundbucheintragungsgebühr, 
3,0% Maklerhonorar + 20 % MwSt.
_% Vertragserrichtungskosten + 20 % MwSt

Bitte haben Sie dafür Verständnis, dass wir Ihnen aufgrund einer neuen Verbraucherrechte-Richtlinie 2011/83/EU bzw. Verbraucherrechte-Richtlinie-Umsetzungsgesetz(VRUG) vom 13.06.2014 genaue Unterlagen zu unseren Objekten, und Besichtigungsmöglichkeiten, erst dann zuschicken können, wenn Sie bestätigen, dass Sie unser sofortiges Tätigwerden wünschen und über Ihre Rücktrittsrechte (die Kenntnis vom Verlust des Rücktrittsrechts nach § 11 FAGG) aufgeklärt wurden. Sie bekommen nach Ihrer Anfrage ein Mail mit genaueren Objektinformation und Provisionsvereinbarung. Diese Information und Provisionsvereinbahrung muss dann vor Besichtigung von Ihnen bestätigt werden. Ihre Daten werden selbstverständlich vertraulich behandelt.

Wir sind als Doppelmakler tätig und vertreten gleichermaßen die Interessen des Käufers als auch des Verkäufers.

_Alle Angaben zu dieser Wohnung basieren auf den Informationen des Eigentümers, für Richtig- und Vollständigkeit kann keine Gewähr übernommen werden._ Der Immobilienmakler erklärt, dass er - entgegen dem in der Immobilienwirtschaft üblichen Geschäftsgebrauch des Doppelmaklers - einseitig nur für den Vermieter tätig ist.

Firmenname: FairIN OG
Adresse: 1120 Wien, Spittelbreitengasse 46/5/R03
Eingang: 1120 Wien, Schwenkgasse 31
Telefon : +43 1 952 75 13 [tel:+4319527513]

Infrastruktur / Entfernungen

Gesundheit
Arzt <500m
Apotheke <500m
Klinik <500m
Krankenhaus <500m

Kinder & Schulen
Schule <500m
Kindergarten <500m
Universität <2.000m
Höhere Schule <1.500m

Nahversorgung
Supermarkt <500m
Bäckerei <500m
Einkaufszentrum <1.500m

Sonstige
Geldautomat <500m
Bank <500m
Post <500m
Polizei <1.500m

Verkehr
Bus <500m
U-Bahn <1.000m
Straßenbahn <1.000m
Bahnhof <1.000m
Autobahnanschluss <2.000m

Angaben Entfernung Luftlinie / Quelle: OpenStreetMap
Beschreibung weiterlesen

Lage und Verkehrsanbindung

Wienerberg

Energieeffizienz

HWB:
51,63 kWh/(m²*a)
HWB Klasse:
C
fGEE:
1,03
fGEE Klasse:
C
Energieausweisart:
Energiebedarfs-ausweis
Gültig bis:
16.05.2033

Grundriss

Lageplan

1100 Wien | Wien 10., Favoriten

Lade...
FAIRIN OG Team

FAIRIN OG Team
Immobilienberater/in

FAIRIN OG

Lade...

Fotomix

Bild 1 Bild 2 Bild 3 Bild 4 Bild 5 Bild 6 Bild 7 Bild 8 Bild 9 Bild 10 Bild 11 Bild 12 Bild 13 Bild 14 Bild 15 Bild 16 Bild 17 Bild 18 Bild 19 Bild 20 Bild 21