Moderne Gewerbefläche Nähe Rochusmarkt

Immobilie zur Miete in 1030 Wien / Objektnummer: 26471
Ausstattung:

Preisinformationen

Gesamtmiete (exkl. USt.):
5.837,03 € / Monat
Betriebskosten netto:
1.379,57 € / Monat
Miete/m² netto:
8,95 €
Kaution:
6 Bruttomonatsmieten

Fakten

Objektnummer:
26471
Nutzfläche:
498,04 m²
Verfügbarkeit:
Verfügbar

Beschreibung

Beschreibung

Zwischen Rochusmarkt und Kardinal Nagl-Platz gelangt diese ca. 498 m² große Gewerbefläche zur Vermietung. Das Büro befindet sich im Erdgeschoss eines gepflegten Neubaus im Wohnpark Erdberg. 

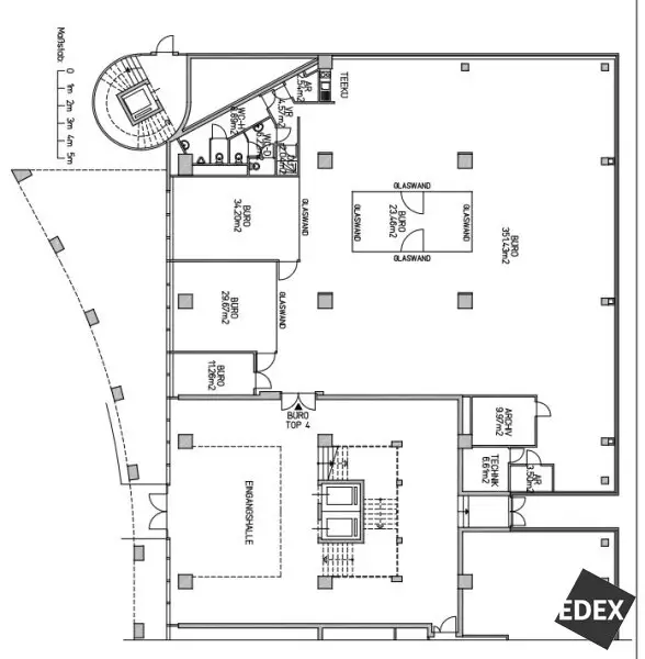
Das Objekt verfügt über eine offene, großzügige Fläche von welcher 3 zusätzliche, abgetrennte Büroräume zu erreichen sind. Zudem gibt es eine Teeküche, einen Abstellraum, ein Archiv, ein Technikraum, separate Damen und Männer Toiletten sowie eine Dusche.  

Die Büroräume verfügen über eine tolle Fensterfront wodurch das Tageslicht optimal eingefangen wird. Durch die ausgezeichnete Lage im Wohnpark Erdberg ist eine ruhige Arbeitsumgebung gewährleistet. 

Das Objekt ist ebenfalls hervorragend mit den öffentlichen Verkehrsmitteln zu erreichen. In unmittelbarer Nähe befinden sich die U3-Stationen Rochusmarkt und Kardinal Nagl-Platz, die Buslinie 77A und 74A sowie die Straßenbahnlinien 1 und O. Geschäfte für den täglichen Bedarf, zahlreiche gute Restaurants und Bars können bequem zu Fuß erreicht werden. 

Alle genannten Preise verstehen sich exklusive der gesetzlichen Umsatzsteuer.

Aufteilung: 

*
1 offener, großflächiger Raum 

*
3 Büroräume 

*
Teeküche 

*
Abstellraum 

*
Archiv 

*
Technikraum 

*
separate Damen und Herren WCs 

*
separate Dusche 

 

Verkehrsanbindung 

U-Bahn: U3 (Rochusmarkt, Kardinal Nagl-Platz) 

Straßenbahn: Linie 1, O 

Bus:Linie 77A, 74A 

 

Alle Preise verstehen sich zzgl. der gesetzlichen Umsatzsteuer.

Infrastruktur / Entfernungen

Gesundheit
Arzt <500m
Apotheke <500m
Klinik <500m
Krankenhaus <1.000m

Kinder & Schulen
Schule <500m
Kindergarten <500m
Universität <1.000m
Höhere Schule <500m

Nahversorgung
Supermarkt <500m
Bäckerei <500m
Einkaufszentrum <500m

Sonstige
Geldautomat <500m
Bank <500m
Post <500m
Polizei <500m

Verkehr
Bus <500m
U-Bahn <500m
Straßenbahn <1.000m
Bahnhof <500m
Autobahnanschluss <1.500m

Angaben Entfernung Luftlinie / Quelle: OpenStreetMap
Beschreibung weiterlesen

Lage und Verkehrsanbindung

Rochusmarkt

Energieeffizienz

HWB:
41 kWh/(m²*a)
HWB Klasse:
B
fGEE:
0,96
fGEE Klasse:
B
Energieausweisart:
Energiebedarfs-ausweis
Gültig bis:
12.04.2029

Grundriss

Lageplan

1030 Wien | Wien 3., Landstraße

Lade...
Harald Anderlik

Harald Anderlik
Leitung Büroimmobilien

EDEX Immobilien GmbH

Lade...

Fotomix

Bild 1 Bild 2 Bild 3 Bild 4 Bild 5 Bild 6 Bild 7