NEU - Moderner Büroneubau am Franzosengraben - Flexible Flächen mit Top Anbindung

Büro zur Miete in 1030 Wien / Objektnummer: 1532/188
Ausstattung: Fahrstuhl Garage Parkplatz

Preisinformationen

Gesamtmiete (exkl. USt.):
8.740,80 € / Monat
Betriebskosten netto:
2.063,80 € / Monat
Umsatzsteuer:
1.748,16 €
Miete/m² netto:
11,00 €
Kaution:
6 Bruttomonatsmieten
Vermittlungsprovision:
Ja
Provision:
3 Bruttomonatsmieten zzgl. 20% USt.

Fakten

Objektnummer:
1532/188
Objekttyp:
Büro
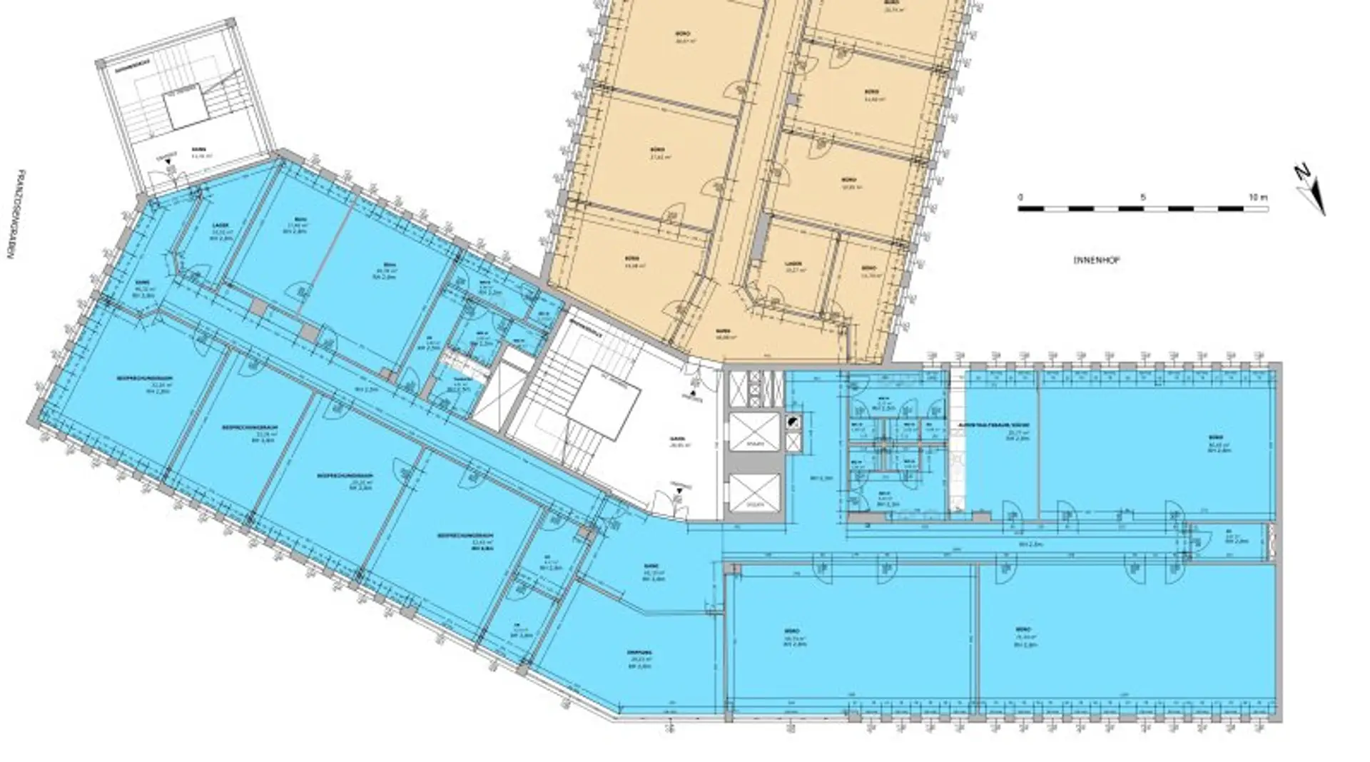
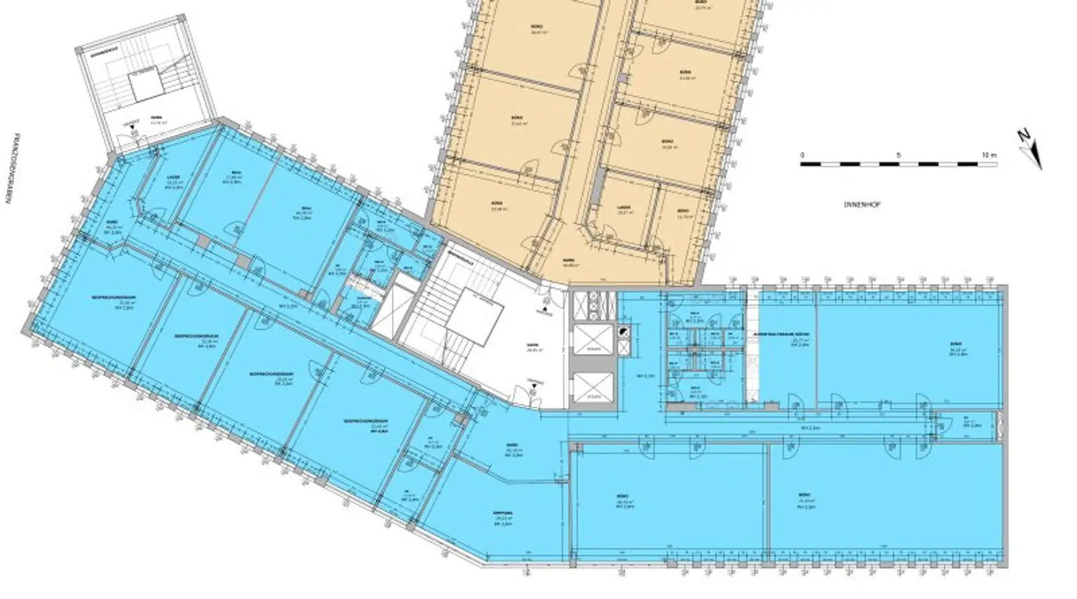
Nutzfläche:
607 m²
Verfügbarkeit:
Verfügbar

Beschreibung

Die Büroimmobilie überzeugt durch moderne Ausstattung, flexible Raumaufteilung und eine gut angebundene Lage im Herzen des 3. Bezirks. Helle Räume, hochwertige Oberflächen und praktische Details wie Teeküche, Serverraum und Rückzugsbereiche schaffen ideale Bedingungen für produktives Arbeiten.

Fast Facts:

* ca. 607 m²
* Miete + BK: 8.740,80 € (zzgl. 20% USt.) monatlich

Highlights:

* Flexible Raumgestaltung
* Top-Anbindung & zentrale Lage
* Moderne Infrastruktur & Ausstattung

 
Kosteninformationen:
Miete: 11 € /m2 / Monat netto
Betriebskosten: 3,40 € /m2 / Monat netto
Gesamt: 10.488,96 € (inkl. 20% USt.) monatlich

Dank der hervorragenden Verkehrsanbindung sind sowohl öffentliche Verkehrsmittel als auch wichtige Verkehrsrouten rasch erreichbar. Das Stadtzentrum sowie der Flughafen sind nur wenige Fahrminuten entfernt.

Kontaktieren Sie uns gerne jederzeit für nähere Informationen oder einen Besichtigungstermin.

Ich freue mich auf Ihre Nachricht!

 

Sie sind noch nicht fündig geworden? Hinterlegen Sie gerne Ihren Suchwunsch unter folgendem Link und wir informieren Sie sobald wir etwas passendes anbieten können.

Suchagent anlegen [https://imfora.service.immo/registrieren/de] - https://imfora.service.immo/registrieren/de

Wir weisen darauf hin, dass zwischen dem Vermittler und dem zu vermittelnden Dritten ein familiäres oder wirtschaftliches Naheverhältnis besteht.

Infrastruktur / Entfernungen

Gesundheit
Arzt <500m
Apotheke <500m
Klinik <500m
Krankenhaus <1.500m

Kinder & Schulen
Schule <1.000m
Kindergarten <1.000m
Universität <1.000m
Höhere Schule <1.000m

Nahversorgung
Supermarkt <500m
Bäckerei <500m
Einkaufszentrum <500m

Sonstige
Geldautomat <500m
Bank <1.000m
Post <1.000m
Polizei <1.500m

Verkehr
Bus <500m
U-Bahn <500m
Straßenbahn <1.000m
Bahnhof <500m
Autobahnanschluss <500m

Angaben Entfernung Luftlinie / Quelle: OpenStreetMap
Beschreibung weiterlesen

Lage und Verkehrsanbindung

Das moderne Bürogebäude befindet sich im 3. Bezirk, unweit der Landstraßer Hauptstraße. Die Lage besticht durch perfekte Anbindung an den öffentlichen Verkehr, Nähe zum Stadtzentrum und ein vielfältiges gastronomisches Angebot in direkter Umgebung.

Grundriss

Lageplan

1030 Wien | Wien 3., Landstraße

Lade...
Andreas Ebner

Andreas Ebner

Imfora Vertriebsgesellschaft mbH

Lade...

Fotomix

Bild 1 Bild 2 Bild 3