NEU - Modernes Arbeiten im Ares Tower!

Immobilie zur Miete in 1220 Wien / Objektnummer: 19875/24
Ausstattung: Barrierefrei

Preisinformationen

Betriebskosten netto:
2.436,15 € / Monat
Miete/m² netto:
14,50 €
Miete/m² netto ab:
14,50 €
Miete/m² netto bis:
14,50 €
Vermittlungsprovision:
Ja
Provision:
3 Bruttomonatsmieten zzgl. 20% USt.

Fakten

Objektnummer:
19875/24
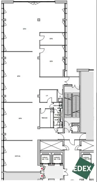
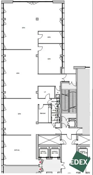
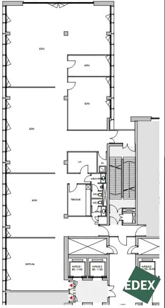
Nutzfläche:
447 m²
Stockwerk:
7
Verfügbarkeit:
Verfügbar

Beschreibung

Beschreibung

Der Ares Tower ist eines der effizientesten Bürogebäude Wiens, das durch höchste Flexibilität sowie seine ruhige und unaufdringliche Eleganz besticht. Besonders effizient ist der Grundriss des Turmes, welcher eine optimale Nutzung der Mietfläche ermöglicht. Die Fläche kann zudem sehr einfach an die Wünsche bzw. Raumprofil des Mieters angepasst werden.

Die hochwertige Ausstattung und die optimale Infrastruktur ermöglichen eine Arbeitswelt auf höchstem Niveau.

Die angegebenen Betriebskosten i.H.v. EUR 5,45/m² verstehen sich inkl. Heizung und Kühlung. 

 

Ausstattung

- Doppelboden

- öffenbare Fenster

- Low Rise / High Rise Lifte

- Portier

- Kühlung (Kühlbalken)

- Parkgarage

- Restaurant

- Eventlocation (Wolke 19)

 

Verkehrsanbindung

Sowohl mit öffentlichen als auch mit privaten Verkehrsmitteln leicht erreichbar. Vom „alten“ in das neue Stadtzentrum sind es mit U-Bahn (Station U1: VIC, Kaisermühlen), Auto oder Fahrrad nur wenige Minuten.

Direkt um die Vienna DC findet sich außerdem Wiens beliebtestes Freizeit- und Erholungsgebiet, die Donauinsel und der Donaupark.

Lage

Als Teil des erfolgreichen Bürostandortes Vienna DC Donau-City profitiert der Ares-Tower von hervorragender Infrastruktur. Zahlreiche Gastronomiebetriebe, Supermärkte, Bäckereien, Bankfilialen, ein Drogeriemarkt und zwei Trafiken sorgen für umfassende Versorgung. Zwei Kindergärten und ein Ärztezentrum ergänzen das Angebot perfekt.

Zudem ist optimale Verkehrsanbindung, sowohl an die Autobahn als auch an die U-Bahn gegeben.

Für entspannte Mittagspausen oder nach der Arbeit bieten Donaupark und Donauinsel beinahe endlose Grünflächen und zahlreiche Sportmöglichkeiten, und das nur wenige Schritte vom Arbeitsplatz entfernt. 

 

Alle Preisangaben verstehen sich zzgl. 20% USt.

 

Infrastruktur / Entfernungen

Gesundheit
Arzt <500m
Apotheke <500m
Klinik <1.500m
Krankenhaus <2.500m

Kinder & Schulen
Schule <500m
Kindergarten <500m
Universität <2.000m
Höhere Schule <3.000m

Nahversorgung
Supermarkt <500m
Bäckerei <500m
Einkaufszentrum <2.000m

Sonstige
Geldautomat <500m
Bank <500m
Post <500m
Polizei <1.000m

Verkehr
Bus <500m
U-Bahn <500m
Straßenbahn <1.500m
Bahnhof <500m
Autobahnanschluss <500m

Angaben Entfernung Luftlinie / Quelle: OpenStreetMap
Beschreibung weiterlesen

Lage und Verkehrsanbindung

Uno City

Energieeffizienz

HWB:
61 kWh/(m²*a)
HWB Klasse:
B
Energieausweisart:
Energiebedarfs-ausweis

Grundriss

Lageplan

1220 Wien | Wien 22., Donaustadt

Lade...
Harald Anderlik

Harald Anderlik
Consultant

EDEX Immobilien GmbH

Lade...

Fotomix

Bild 1 Bild 2 Bild 3 Bild 4 Bild 5 Bild 6 Bild 7