NEU - MODERNES EINFAMILIENHAUS MIT POOL, DOPPELGARAGE UND HERRLICHEM GARTEN – NAHE WIEN

Haus zum Kauf in 2521 Trumau - Kaufpreis: 729.000 € / Objektnummer: 19322
Ausstattung: Boden Wohnküche / offene Küche Bad Kabel/Satelliten-TV Alarmanlage Garage Parkplatz Fußbodenheizung Terrasse
Haus Hinteransicht
EINGANG/VORZIMMER
EINGANG
Wohnzimmer
KÜCHE
Luxus Bad
SCHLAFZIMMER
Gang/Obergeschoss
Hauswirtschaftsraum
Schrankraum
Schrankraum
Outdoorküche
Outdoorküche
Doppelgarage
Erdgeschoss plus Doppelgarage
Obergeschoss

Preisinformationen

Kaufpreis:
729.000 €
Vermittlungsprovision:
Ja
Provision:
3% des Kaufpreises zzgl. 20% USt.

Fakten

Objektnummer:
19322
Objekttyp:
Haus
Terrasse:
2
Wohnfläche:
149 m²
Grundstücksfläche:
463 m²
Zimmer:
4
Badezimmer:
1
Toilette:
2
Baujahr:
2012
Zustand:
Neuwertig
Verfügbarkeit:
Verfügbar

Beschreibung

Dieses moderne Einfamilienhaus überzeugt durch hochwertige Ausstattung, durchdachtes Raumkonzept und stilvolles Wohnambiente. Lichtdurchflutete Räume, ein großzügiger Wohn- und Essbereich sowie die exklusive Küche mit Bosch-Top-Geräten schaffen ein Zuhause, das Komfort, Eleganz und Funktionalität perfekt vereint.

Im Obergeschoss erwarten Sie ein stilvolles Schlafzimmer, ein Kinderzimmer und ein flexibel nutzbares Zimmer. Das luxuriöse Badezimmer mit freistehender Badewanne, Walk-in-Dusche und Infrarotkabine verwandelt den Alltag in eine private Wellnessoase.

Der Außenbereich überzeugt mit einem Meerwasser-Pool, einer Terrasse mit elektrisch ausfahrbarer Überdachung, einer Outdoorküche und einer gemütlichen Feuerstelle – ein herrlich gestalteter, pflegeleichter Garten ohne Rasen, ideal für sonnige Tage, genussvolle Abende im Freien und gesellige Stunden mit Familie und Freunden.

Moderne Energiefeatures wie ein wasserführender Kamin, eine Solaranlage und eine energiesparende Wärmepumpe sorgen für effiziente Beheizung und niedrige Energiekosten. Praktische Details wie die Doppelgarage mit direkter Schleuse ins Haus, Hauswirtschaftsraum mit erhöhtem Podest, Klimaanlage im Schlafzimmer und separate Gästetoilette runden das Angebot ab.

Die Immobilie liegt in Trumau, in einer ruhigen, familienfreundlichen Umgebung mit schneller Anbindung:

Die Südautobahn, Abfahrt Traiskirchen, ist in 3 Minuten erreichbar, Wien in nur 10 Minuten. Einkaufsmöglichkeiten, Schulen, öffentliche Verkehrsmittel und Freizeiteinrichtungen sind ebenfalls schnell erreichbar – ideal für Familien.

 

 

HIGHLIGHTS AUF EINEN BLICK:

*
Top gepflegtes Einfamilienhaus mit durchdachtem Raumkonzept

*
Lichtdurchfluteter Wohn- und Essbereich mit direktem Zugang zu Terrasse, Pool und pflegeleichtem Garten

*
Moderne DAN- Küche mit hochwertigen Bosch-Geräten

*
Hauswirtschaftsraum mit Waschmaschine und Trockner auf erhöhtem Podest

*
Hochwertiges Badezimmer mit freistehender Badewanne, Walk-in-Dusche und Infrarotkabine

*
3-fach verglaste Fenster (Holz/Aluminium) mit außenliegenden elektrisch bedienbaren Raffrollos 

*
Klimaanlage

*
Direkter Zugang zur Doppelgarage über eine Schleuse

*
Alarmanlage (alle Fenster und Türen sind gesichert)

*
Sonniger, pflegeleichter Garten mit Meerwasser-Pool

*
Terrasse mit elektrisch ausfahrbarer Überdachung

*
Überdachte Outdoorküche

*
Energieeffizient: wasserführender Kamin, Solaranlage und energiesparende Premium-Wärmepumpe (Vaillant)

*
Ruhige, familienfreundliche Lage mit schneller Anbindung nach Wien

 

SEHEN SIE DAS OBJEKT SCHON JETZT AUS DER VOGELPERSPEKTIVE!

HIER EIN KURZES DROHNEN-VIDEO:

https://www.youtube.com/watch?v=fdK_kvNq-T8  

 

INTERESSE GEWECKT?
Lassen Sie sich dieses außergewöhnliche Zuhause nicht entgehen.

Für persönliche Beratung, detaillierte Informationen, Besichtigungen oder Fragen zur Finanzierung steht Ihnen Herr Loibelsberger gerne zur Verfügung.

Kontaktieren Sie mich direkt über diese Immobilienplattform unter Angabe von Namen, Telefonnummer und E-Mail-Adresse!

 

DIE EQUILIBRIA IMMOBILIEN GMBH WURDE "_EXKLUSIV BEAUFTRAGT_" DIESE TRAUMIMMOBILIE ZU VERMARKTEN.

 

Infrastruktur / Entfernungen

Gesundheit
Arzt <1.000m
Apotheke <1.000m
Klinik <5.000m
Krankenhaus <6.500m

Kinder & Schulen
Kindergarten <500m
Schule <500m
Höhere Schule <9.000m

Nahversorgung
Supermarkt <500m
Bäckerei <2.500m
Einkaufszentrum <4.000m

Sonstige
Bank <1.000m
Geldautomat <1.000m
Post <500m
Polizei <500m

Verkehr
Bus <500m
Bahnhof <1.000m
Autobahnanschluss <2.500m
Straßenbahn <4.500m
Flughafen <7.500m

Angaben Entfernung Luftlinie / Quelle: OpenStreetMap
Beschreibung weiterlesen

Energieeffizienz

HWB:
38,9 kWh/(m²*a)
HWB Klasse:
B
fGEE:
0,72
fGEE Klasse:
A
Energieausweisart:
Energiebedarfs-ausweis
Gültig bis:
03.03.2036

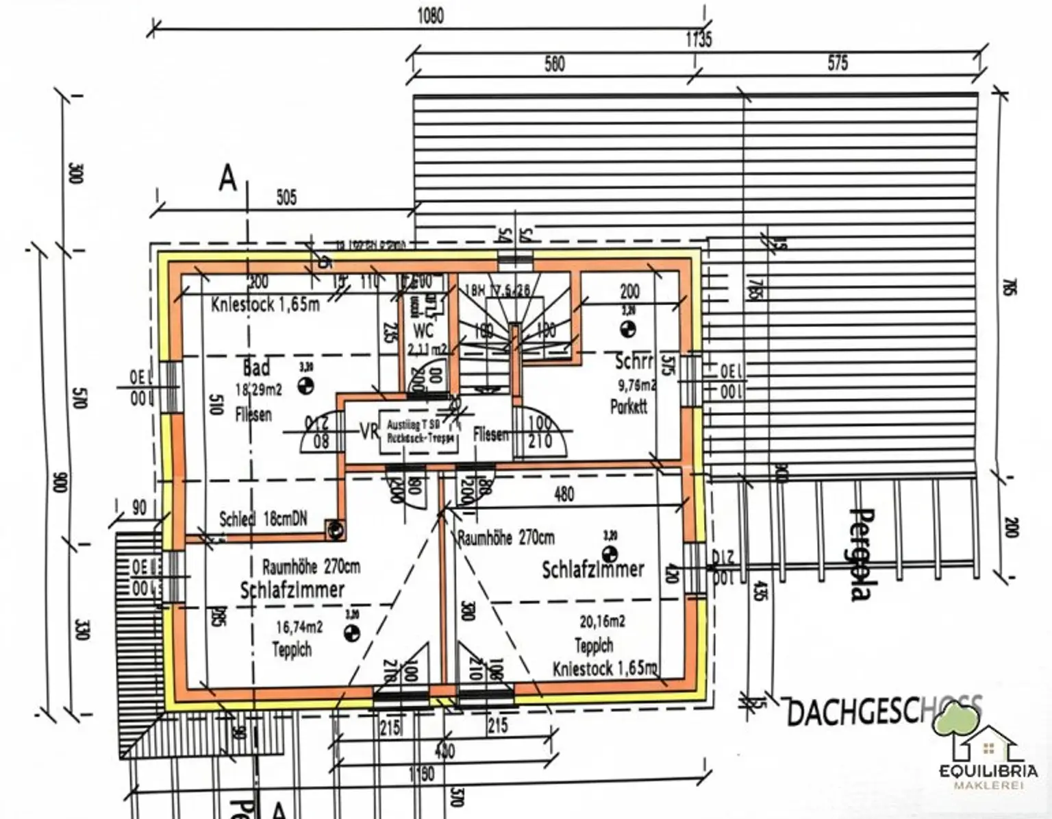
Grundrisse

Lageplan

2521 Trumau | Baden

Lade...
Martin Loibelsberger

Martin Loibelsberger
Immobilienberater

equilibria Immobilienmanagement GmbH & Co KG

Lade...

Fotomix

Bild 1 Bild 2 Bild 3 Haus Hinteransicht Bild 5 Bild 6 Bild 7 EINGANG/VORZIMMER EINGANG Wohnzimmer Bild 11 KÜCHE Bild 13 Luxus Bad Bild 15 SCHLAFZIMMER Gang/Obergeschoss Hauswirtschaftsraum Schrankraum Schrankraum Bild 21 Bild 22 Bild 23 Bild 24 Bild 25 Outdoorküche Outdoorküche Doppelgarage