NEU - Modernes Wohnen im Smart Quadrat!

Wohnung zur Miete in 8020 Graz - Gesamtmiete: 795,00 € / Objektnummer: 74629
Ausstattung: Boden Fahrstuhl Wohnküche / offene Küche Bad Fußbodenheizung Balkon
Stiegenhaus

Preisinformationen

Gesamtmiete:
795,00 € / Monat
Betriebskosten netto:
129,40 € / Monat
Umsatzsteuer:
72,27 €
Kaution:
2.385,00 €
Provision:
Gemäß Erstauftraggeberprinzip bezahlt der Abgeber die Provision.

Fakten

Objektnummer:
74629
Objekttyp:
Wohnung
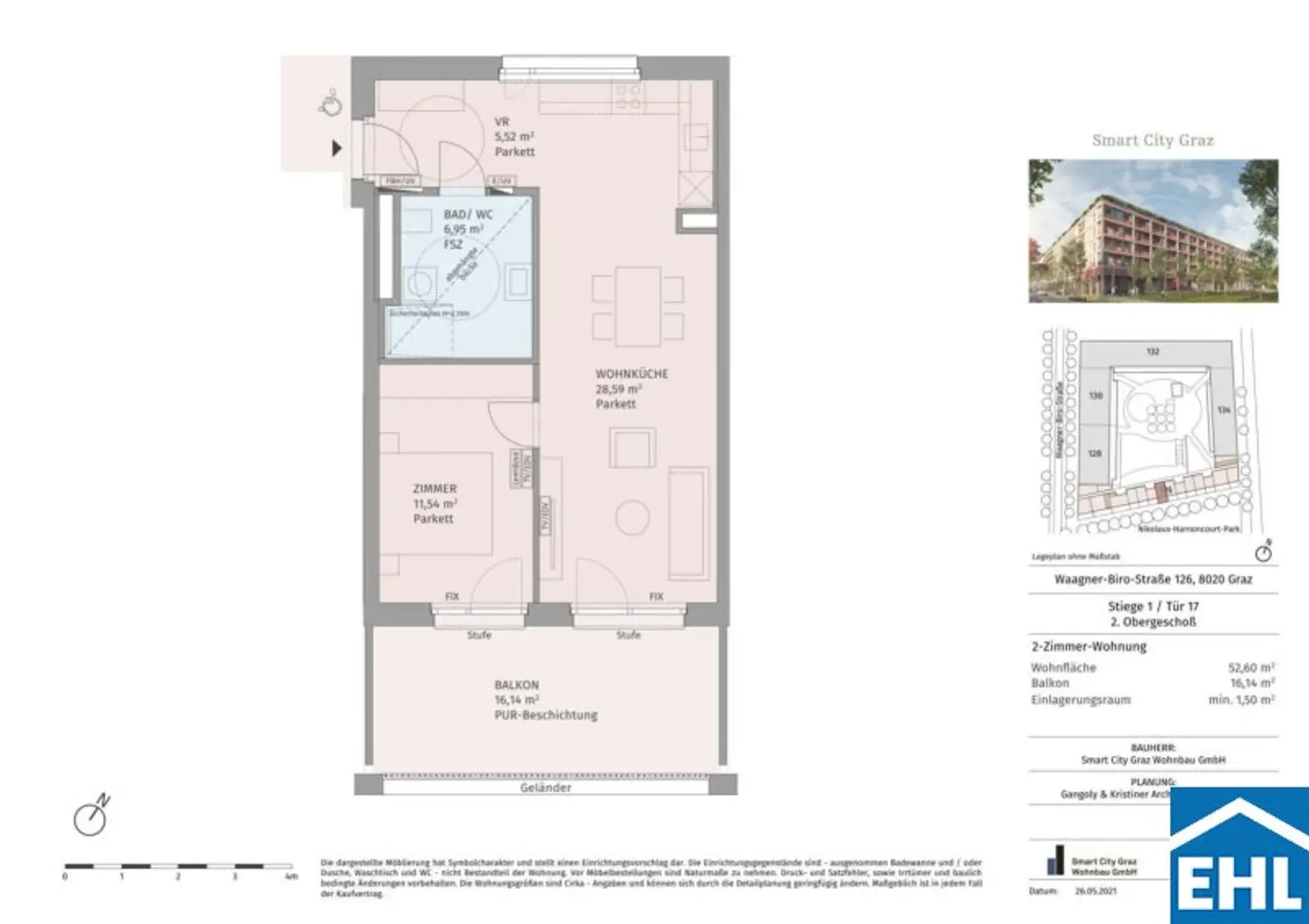
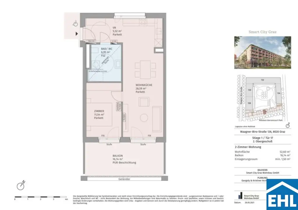
Balkon:
1
Balkonfläche:
16,14 m²
Keller Fläche:
1,5 m²
Wohnfläche:
52,6 m²
Zimmer:
2
Badezimmer:
1
Toilette:
1
Stockwerk:
2
Neubau:
Ja
Zustand:
Erstbezug
Verfügbarkeit:
Verfügbar

Beschreibung

Modernes Wohnen im Smart Quadrat – Ihr Zuhause im Herzen der Smart City Graz

Das moderne Wohnprojekt Smart Quadrat im Herzen der Smart City Graz wartet mit einer Vielzahl an Vorteilen für Familien, Studenten, junge Berufstätige, Senioren und kreative Köpfe auf, die im modernen, ruhigeren Stadtteil von Graz zu Hause und nur wenige Minuten vom lebendigen, pulsierenden Stadtzentrum entfernt leben wollen.

Smarte Grundrisse, großzügige Wohnräume und ein vielfältiger Wohnungsmix gewährleisten höchsten Wohnkomfort und bieten die passende Wohnung für jedes Raumbedürfnis und jede Lebensphase.

Den zukünftigen Smart Quadrat-Bewohnern stehen zudem eine Vielzahl an Gemeinschaftsräumen, wie z.B. Fitnessräume, Shared Offices, Indoorspielplätze sowie ein Spielplatz im Innenhof, Washing-Lounges, eine Fahrradwerkstatt, Hobby- & Freizeiträume sowie Stellplätze in der hauseigenen Garage zur Verfügung. Ein Nahversorger und eine Bäckerei mit Caféhaus befinden sich ebenfalls direkt im Wohnkomplex. Weitere Geschäfte des täglichen Bedarfs, Ärzte, Schulen und Gastronomielokale sind fußläufig erreichbar. Auch eine große Parkanlage wird derzeit auf dem Nachbargrundstück realisiert. Ein perfekter Mix aus urbanem Leben und privater Erholung!

Smart Quadrat ist ein Teil des innovativen Stadtviertels Smart City. Eine neue Straßenbahnlinie bringt Sie im Handumdrehen und umweltfreundlich zu Ihrem Zielort in Graz.

Sollte doch einmal ein Auto benötigt werden, steht Bewohnern des Smart Quadrats die Möglichkeit zur Verfügung gleich gegenüber durch ein Car Sharing Modell ein Auto zu mieten, um so kostengünstig und flexibel von A nach B zu gelangen. Um Ihr eigenes Fahrzeug vor der Witterung zu schützen, werden im Smart Quadrat auch Tiefgaragenparkplätze angeboten, welche zusätzlich angemietet werden können. Ebenso sind Abstellplätze für Fahrräder vorhanden.

Nicht nur das Projekt selbst, sondern auch sein Standort überzeugt mit einer optimalen Infrastruktur und Nahversorgung: Ihren Einkauf können Sie problemlos zu Fuß erledigen. Die gute Anbindung ans Stadtzentrum eröffnet Ihnen außerdem zahlreiche weitere Freizeitmöglichkeiten und kulturelle Angebote. 

Ausstattung:

Details, auf die Sie sind im neuen Wohnraum freuen können:

* Vinyl oder Parkettböden
* Hochwertige Fliesen in den Nassräumen
* Markenküchen
* Badezimmer mit Dusche oder Badewanne
* Fußbodenheizung und Fußbodenkühlung
* Fernwärme
* Aufzüge
* Lagerabteile
* Tiefgaragenstellplätze
* Fahrradabstellplätze

Heizung und Warmwasser werden nach Verbrauch abgerechnet.
    
Öffentliche Verkehrsanbindung:
Straßenbahn: 6 
Buslinie: 40, 48, 52, 62, 65, 65A, 67, N1
Bahn: Graz Hauptbahnhof (12min via Straßenbahnlinie 6)

Befristung: 5 Jahre, 1 Jahr Kündigungsverzicht, 3 Monate Kündigungsfrist

Nebenkosten 
3 BMM Kaution

Wir weisen darauf hin, dass zwischen dem Vermittler und dem zu vermittelnden Dritten ein familiäres oder wirtschaftliches Naheverhältnis besteht.

Der Immobilienmakler erklärt, dass er – entgegen dem in der Immobilienwirtschaft üblichen Geschäftsgebrauch des Doppelmaklers – einseitig nur für den Vermieter tätig ist.

Infrastruktur / Entfernungen

Gesundheit
Arzt <500m
Apotheke <500m
Klinik <250m
Krankenhaus <1.000m

Kinder & Schulen
Schule <250m
Kindergarten <250m
Universität <1.500m
Höhere Schule <1.500m

Nahversorgung
Supermarkt <250m
Bäckerei <250m
Einkaufszentrum <1.250m

Sonstige
Geldautomat <500m
Bank <500m
Post <500m
Polizei <1.000m

Verkehr
Bus <250m
Straßenbahn <250m
Autobahnanschluss <4.750m
Bahnhof <1.250m

Angaben Entfernung Luftlinie / Quelle: OpenStreetMap
Beschreibung weiterlesen

Energieeffizienz

HWB:
25,58 kWh/(m²*a)
HWB Klasse:
B
fGEE:
0,81
fGEE Klasse:
A
Energieausweisart:
Energiebedarfs-ausweis
Gültig bis:
04.04.2033

Dokumente

Grundriss

Lageplan

8020 Graz | Graz (Stadt)

Lade...
Gerald Bruchmann

Gerald Bruchmann
Immobilienberater

EHL Wohnen GmbH

Lade...

Fotomix

Bild 1 Bild 2 Bild 3 Bild 4 Bild 5 Bild 6 Bild 7 Bild 8 Bild 9 Bild 10 Stiegenhaus Bild 12 Bild 13 Bild 14 Bild 15 Bild 16 Bild 17 Bild 18 Bild 19 Bild 20 Bild 21 Bild 22 Bild 23 Bild 24