NEU - Modernisierte Dachgeschosswohnung mit Balkon & Blick auf die Burgruine Kirchschlag

Wohnung zum Kauf in 2860 Kirchschlag in der Buckligen Welt - Kaufpreis: 105.000 € / Objektnummer: 1417601
Ausstattung: Boden Bad Gäste-WC Möbliert Abstellraum Balkon

Preisinformationen

Kaufpreis:
105.000 €
Betriebskosten netto:
125,00 € / Monat
Heizkosten netto:
80,00 €
Vermittlungsprovision:
Ja
Provision:
3.780,00 € inkl. 20% USt.

Fakten

Objektnummer:
1417601
Objekttyp:
Wohnung
Balkon:
1
Balkonfläche:
4 m²
Wohnfläche:
51 m²
Lagerfläche:
16 m²
Zimmer:
2
Badezimmer:
1
Toilette:
1
Baujahr:
1966
Altbau:
Ja
Letzte Sanierung:
2021
Zustand:
Modernisiert
Verfügbarkeit:
Verfügbar
Verfügbar ab:
sofort

Beschreibung

MODERNISIERTE, GEMÜTLICHE DACHGESCHOSSWOHNUNG MIT BALKON IN KIRCHSCHLAG

 

Zum Verkauf gelangt eine hochwertig modernisierte Dachgeschosswohnung mit rund 51 m² Wohnfläche in attraktiver Lage von Kirchschlag in der Buckligen Welt.

 

Die Wohnung wurde umfassend modernisiert und präsentiert sich in einem sehr gepflegten, neuwertigen und modernen Zustand.

Im Zuge der Modernisierung wurden sämtliche Böden erneuert, Wände sauber verputzt & gestrichen und die gesamte Elektrik auf den neuesten Stand gebracht.

Das Badezimmer wurde ebenfalls vollständig erneuert - neu verfliest und mit einer neuen Duschwanne ausgestattet.

Zusätzlich wurde eine neue Einbauküche installiert. Diese ist mit Herd, Backofen, Dunstabzug und Kühlschrank ausgestattet und fügt sich modern und funktional in die gemütliche Wohnung ein.

Im letzten Jahr wurden alle Dachflächenfenster erneuert, welche mit einer Dreh- Kipp Funktion ausgestattet und mit Rollos zum Abdunkeln versehen sind.

Ein besonderes Highlight ist der kleine Balkon beim Schlafzimmer mit wunderschönem Blick auf die historische Burgruine Kirchschlag – ideal zum Entspannen und Genießen der idyllischen Umgebung.

 

Beheizt wird die Wohnung durch Heizkörper welche mit einer Fernwärmeheizung betrieben werden. Im Wohnzimmer gibt es auch noch zusätzlich einen Anschluss für einen Kamin.

 

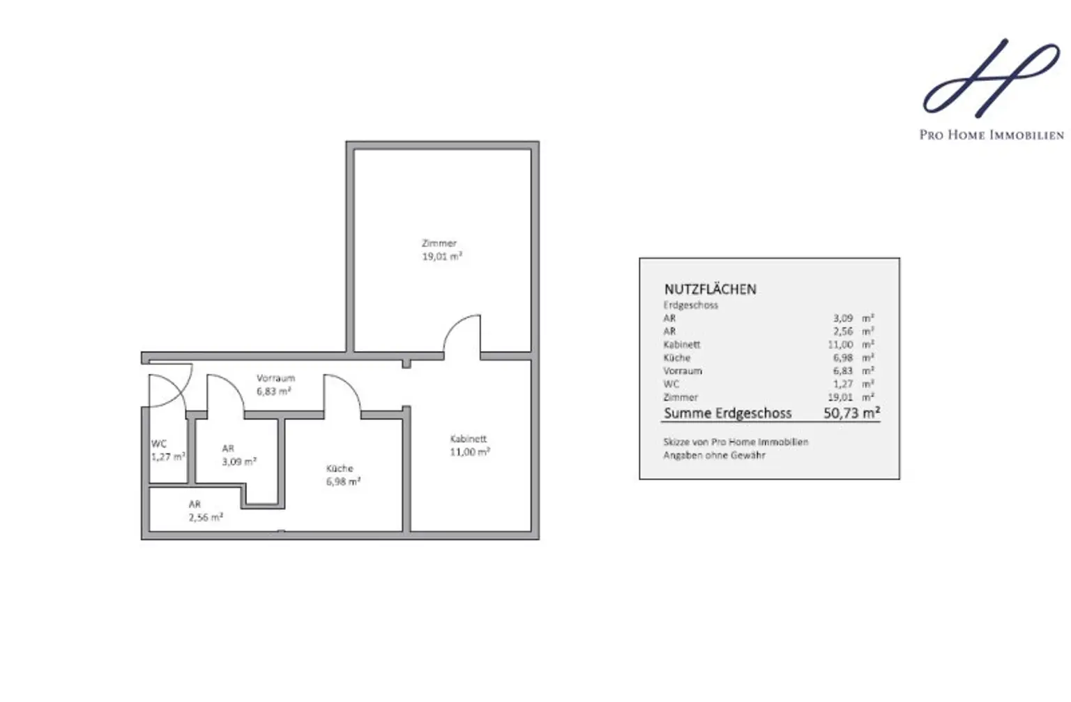
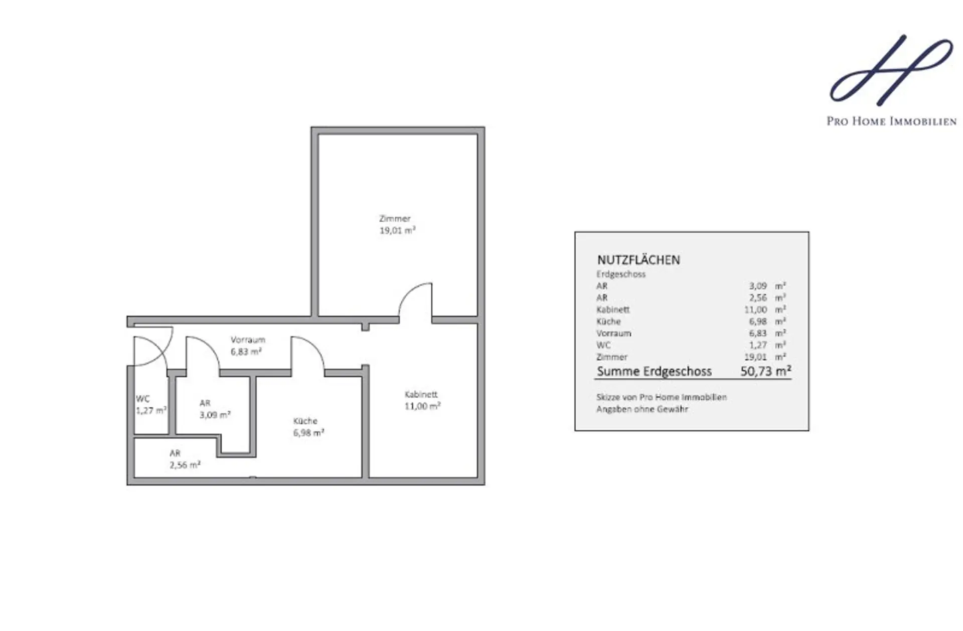
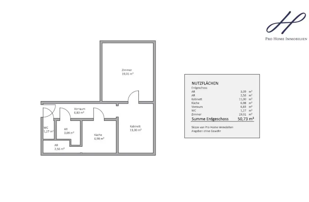
DIE DURCHDACHTE RAUMAUFTEILUNG EIGNET SICH IDEAL FÜR SINGLES ODER PAARE:

*
Vorraum / Gang

*
Badezimmer mit Dusche, Fenster & Waschmaschinenanschluss

*
Separates WC

*
Küche mit neuen Einbauschränken & kleiner Abstellkammer

*
Wohnzimmer

*
Schlafzimmer mit Balkon

 

* Kellerabteil mit rund 16m²

 

 

Eine ideale Gelegenheit für Eigennutzer oder Anleger, die eine modernisierte, sofort beziehbare Dachgeschosswohnung mit hochwertiger Ausstattung und besonderem Ausblick in attraktiver Lage suchen!

 

Kontaktieren Sie uns gerne unter office@pro-home-immobilien.at oder unter 0664 885 444 22 für einen persönlichen Besichtigungstermin!

 

 

Der Vermittler ist als Doppelmakler tätig.
Beschreibung weiterlesen

Lage und Verkehrsanbindung

Diese charmante Dachgeschoßwohnung befindet sich in der malerischen Region Kirchschlag in der Buckligen Welt, Niederösterreich. Umgeben von sanften Hügeln und idyllischen Landschaften, bietet die Lage Ruhe und Erholung pur. Die Nähe zur Natur lädt zu Wanderungen und Freizeitaktivitäten ein, während die gute Anbindung an die umliegenden Städte eine perfekte Kombination aus ländlicher Idylle und urbanem Leben ermöglicht.
Kirchschlag bietet eine intakte Nahversorgung mit Supermärkten, Drogerien, Bäckerei, Fleischerei, Post, Banken und weiteren Geschäften. Es gibt mehrere Ärzte - einen Zahnarzt, eine Apotheke und Tierärzte, was die medizinische Basisversorgung abdeckt. Ebenso vielfältig ist die Gastronomie mit Gasthäusern und Restaurants, auch touristisch gut ausgerichtet.
Im Ort gibt es Kindergarten, Volksschule sowie Neue Mittelschule, die zum Teil auch Tagesbetreuung anbieten.
Die Gemeinde bietet sportliche Anlagen wie Fußballplätze, Tennis, Mountainbike-Strecken sowie saisonale Angebote wie ein Schwimmbad und eine Eislauffläche im Winter.

Energieeffizienz

HWB:
147,5 kWh/(m²*a)
HWB Klasse:
E
fGEE:
2,76
fGEE Klasse:
E
Energieausweisart:
Energiebedarfs-ausweis
Gültig bis:
03.12.2031

Grundriss

Lageplan

2860 Kirchschlag in der Buckligen Welt | Wiener Neustadt (Land)

Lade...
Johannes Baldauf

Johannes Baldauf
Geschäftsführung

PRO HOME Immobilien GmbH

Lade...

Fotomix

Bild 1 Bild 2 Bild 3 Bild 4 Bild 5 Bild 6 Bild 7 Bild 8 Bild 9 Bild 10 Bild 11 Bild 12 Bild 13 Bild 14 Bild 15 Bild 16