NEU - Mödling: Teilsaniertes Einfamilienhaus in bester Wohnlage

Haus zum Kauf in 2340 Mödling - Kaufpreis: 747.000 € / Objektnummer: 2533/6770
Ausstattung: Bad Gäste-WC Garage Parkplatz Fußbodenheizung Garten
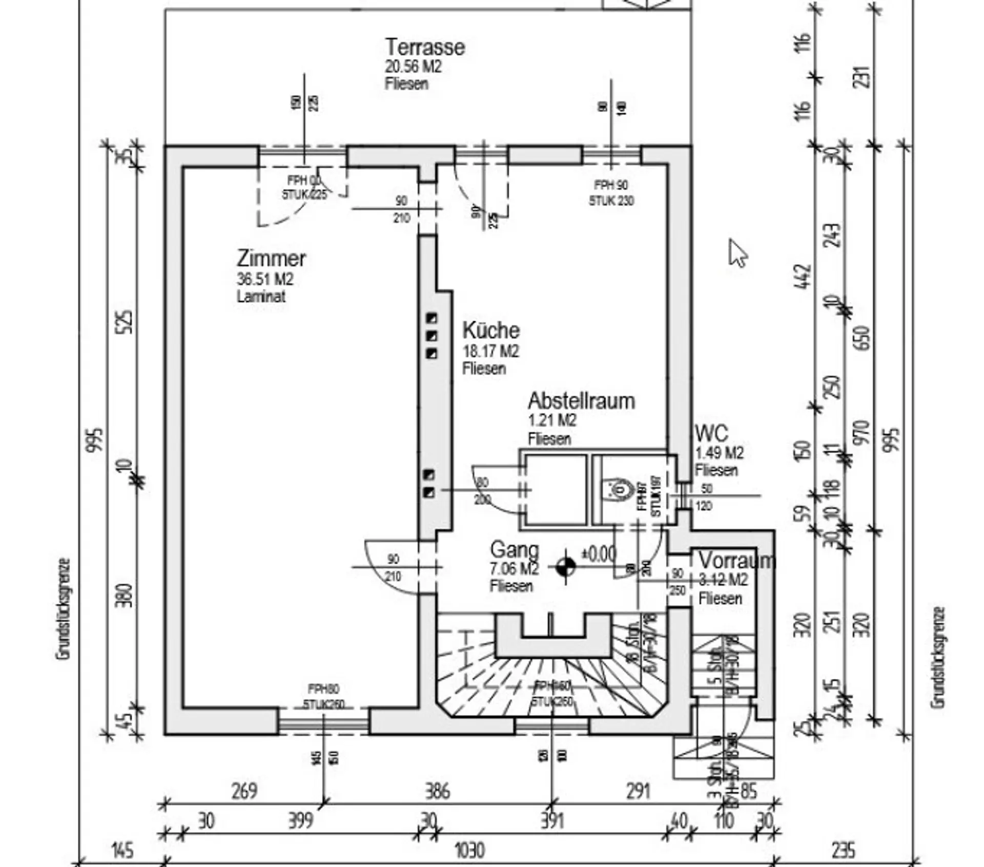
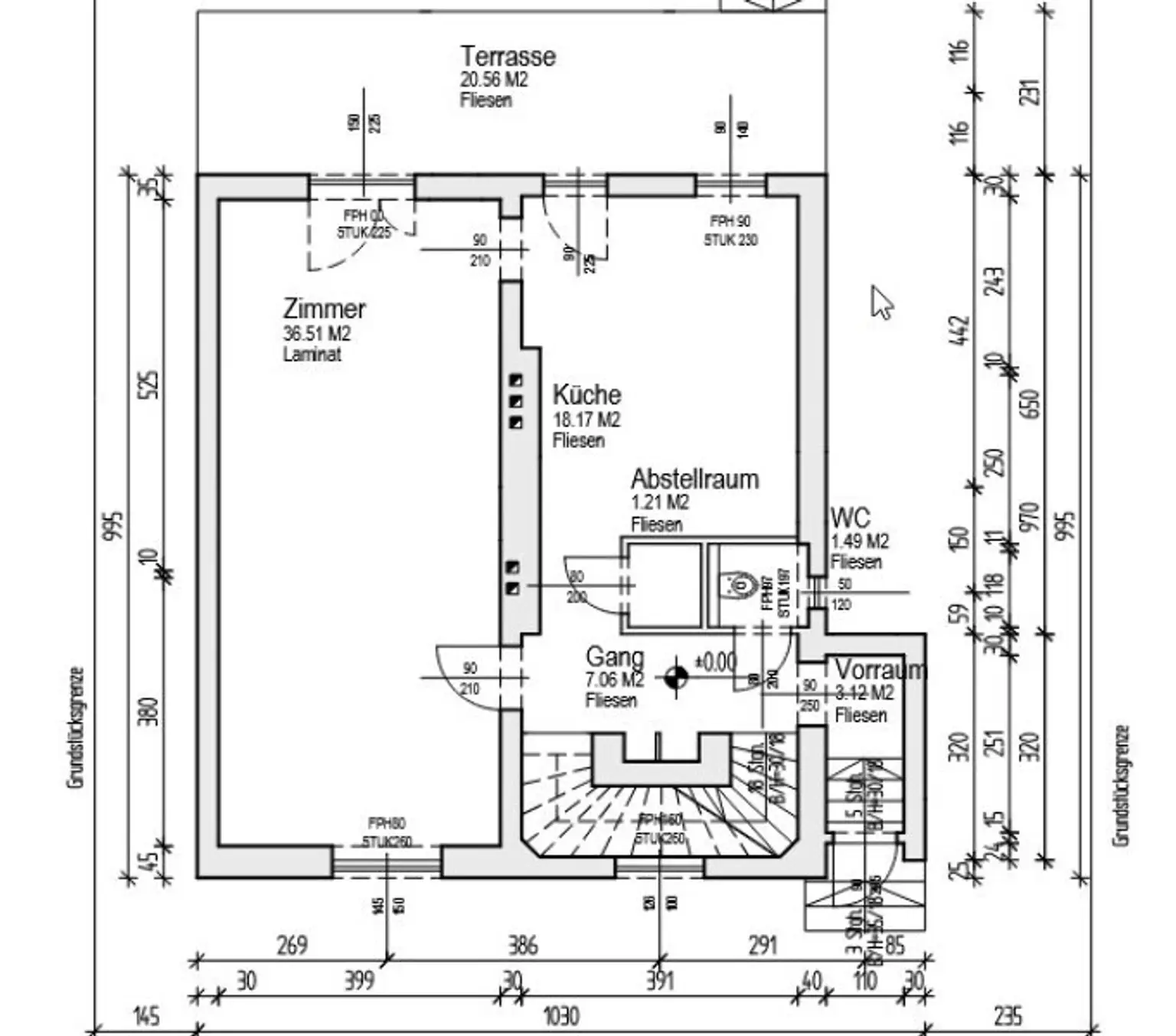
Grundriss EG
Grundriss OG
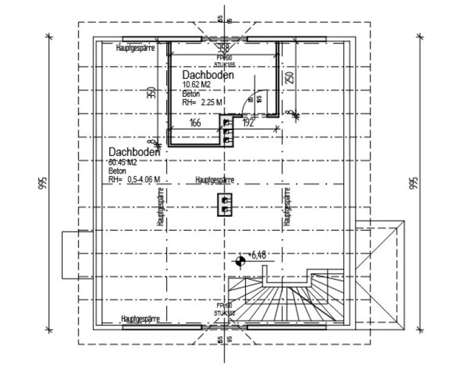
Grundriss DG
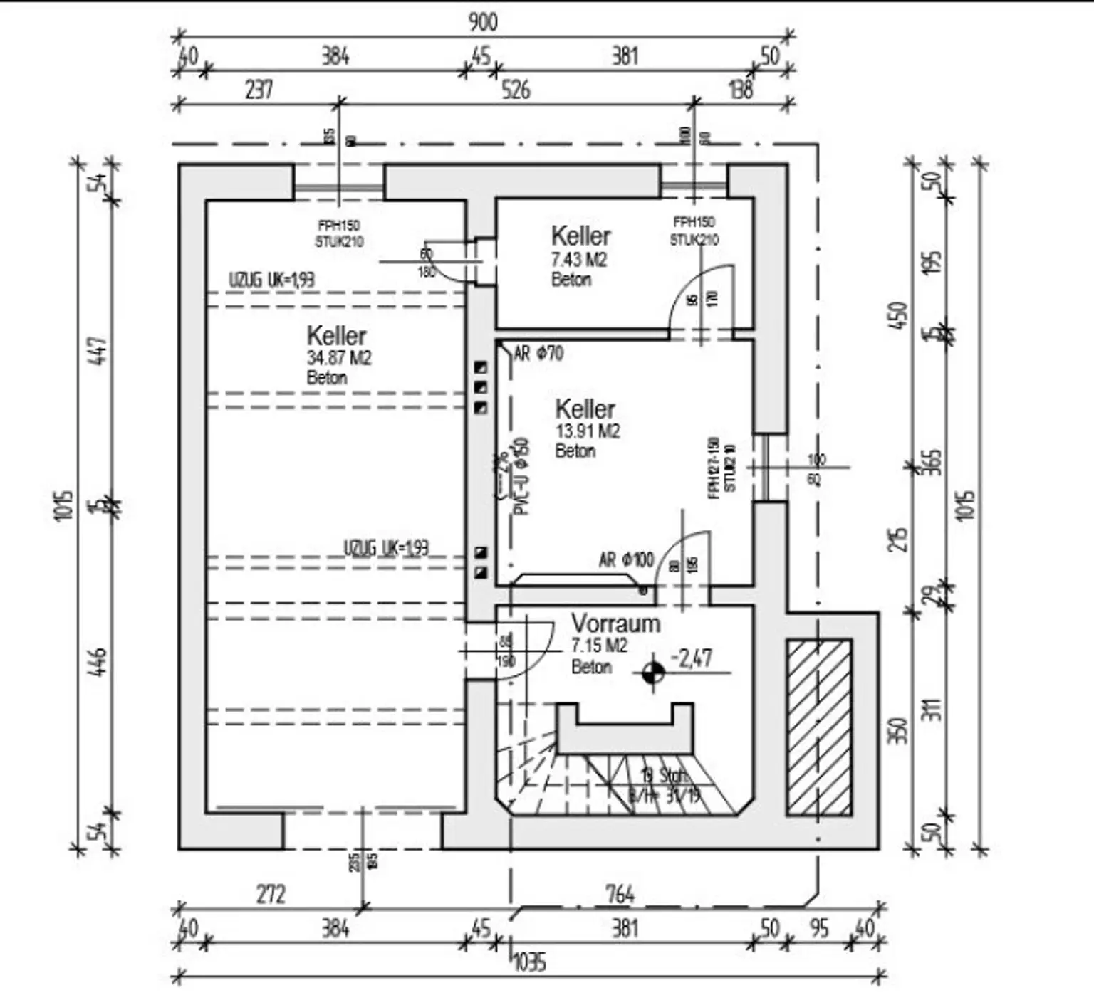
Grundriss KG

Preisinformationen

Kaufpreis:
747.000 €
Vermittlungsprovision:
Ja
Provision:
3% des Kaufpreises zzgl. 20% USt.

Fakten

Objektnummer:
2533/6770
Objekttyp:
Haus
Keller Fläche:
63,36 m²
Wohnfläche:
202,46 m²
Grundstücksfläche:
401 m²
Gesamtfläche:
265,82 m²
Gartenfläche:
296 m²
Zimmer:
4
Badezimmer:
2
Toilette:
3
Altbau:
Ja
Letzte Sanierung:
2023
Zustand:
Teilsaniert
Verfügbarkeit:
Verfügbar

Beschreibung

Dieses freistehende, voll unterkellerte Einfamilienhaus wurde in Massivbauweise mit Sattel- bzw. Mansardendach errichtet und ab 2023 generalsaniert, wobei das gesamte Gebäude mit einer Wärmeschutzfassade sowie mit neuen Kunststofffenstern ausgestattet wurde. Das Dachgeschoß wurde ausgebaut, wobei die Ziegeldeckung erhalten wurde. Im Inneren des Gebäudes wurde die Raumaufteilung durch Abbruch nicht-tragender Wände und Neuerrichtung von Gipskartonwänden optimiert, der Fußbodenaufbau wurde neu hergestellt und eine Fußbodenheizung verlegt. Sämtliche Wasser- und Elektroleitungen wurden erneuert, und eine ca. 20m² große gartenseitige Terrasse wurde geschaffen. Die Liegenschaft ist rechteckig, in Nord-Süd-Ausrichtung, annähernd eben, und von den lokalen Versorgern wie Wasser, Kanal, Gas und Strom voll aufgeschlossen.

 

_Fordern Sie noch heute unser Detailexposé an, welches die genaue Adresse, alle Daten, und noch mehr Bilder enthält. Denken Sie bei Ihrer Anfrage bitte daran, Ihren vollen Namen und alle Kontaktdaten anzugeben, damit wir Sie als ernsthaften Interessenten qualifizieren können._

Hinweis gemäß Energieausweisvorlagegesetz: Ein Energieausweis wurde vom Eigentümer bzw. Verkäufer, nach unserer Aufklärung über die generell geltende Vorlagepflicht, sowie Aufforderung zu seiner Erstellung noch nicht vorgelegt. Daher gilt zumindest eine dem Alter und der Art des Gebäudes entsprechende Gesamtenergieeffizienz als vereinbart. Wir übernehmen keinerlei Gewähr oder Haftung für die tatsächliche Energieeffizienz der angebotenen Immobilie.

Der Vermittler ist als Doppelmakler tätig.

Infrastruktur / Entfernungen

Gesundheit
Arzt 500m
Apotheke 500m
Klinik 500m
Krankenhaus 2.000m

Kinder & Schulen
Schule 500m
Kindergarten 500m
Höhere Schule 1.000m

Nahversorgung
Supermarkt 500m
Bäckerei 1.000m
Einkaufszentrum 1.500m

Sonstige
Bank 1.000m
Geldautomat 1.000m
Post 1.000m
Polizei 1.500m

Verkehr
Bus 500m
U-Bahn 6.500m
Bahnhof 1.500m
Autobahnanschluss 3.500m
Straßenbahn 4.000m

Angaben Entfernung Luftlinie / Quelle: OpenStreetMap
Beschreibung weiterlesen

Lage und Verkehrsanbindung

Ortskern

Grundrisse

Lageplan

2340 Mödling | Mödling

Lade...
Christian Goldschwend

Christian Goldschwend
Immobilienmakler

Börner Ihr Hausmakler GmbH

Anrufen
Lade...

Fotomix

Bild 1 Bild 2 Bild 3 Bild 4 Bild 5 Bild 6 Bild 7