NEU - MÖLLWALDPLATZ, U1-NÄHE, 164 m2 Büro oder Kanzlei, 4 Zimmer, Wohnküche, 2 Bäder, Extraküche, teilsaniert, 1. Liftstock, Belvedere-Nähe

Immobilie zur Miete in 1040 Wien / Objektnummer: 2328
Ausstattung: Boden Fahrstuhl Wohnküche / offene Küche Bad Kabel/Satelliten-TV Abstellraum Zentralheizung Balkon

Preisinformationen

Gesamtmiete (exkl. USt.):
2.889,89 € / Monat
Betriebskosten netto:
369,36 € / Monat
Umsatzsteuer:
577,78 €
Preisinfos:
Gesamtmiete: € 4.009,39 inkl. Betriebskosten, Heizung, Warmwasser, MwSt.
Kaution:
12.050,00 €
Vermittlungsprovision:
Ja
Provision:
3 Bruttomonatsmieten zzgl. 20% USt.

Fakten

Objektnummer:
2328
Balkon:
1
Balkonfläche:
3 m²
Nutzfläche:
164 m²
Zimmer:
5
Badezimmer:
2
Toilette:
2
Stockwerk:
1
Altbau:
Ja
Zustand:
Gepflegt
Verfügbarkeit:
Verfügbar

Beschreibung

AM MÖLLWALDPLATZ GELANGT DIESES 164 M2 ALTBAUBÜRO ODER KANZLEI IM 1. LIFTGESCHOSS ZUR BEFRISTETEN VERMIETUNG

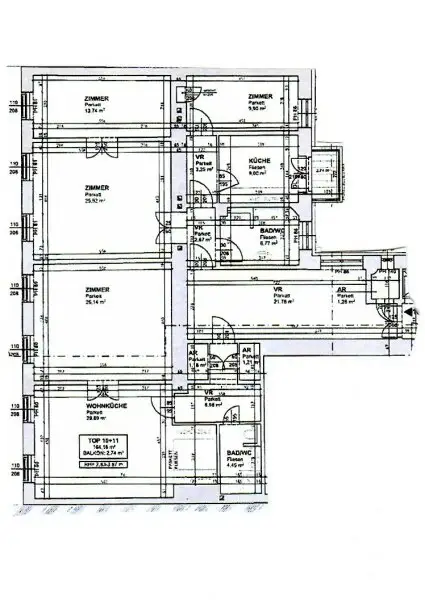
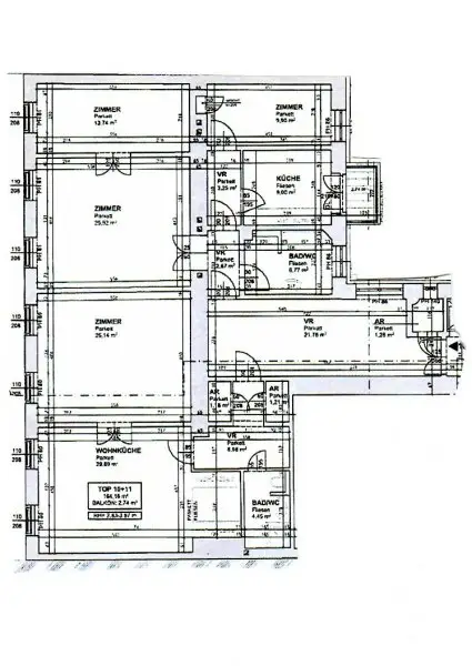
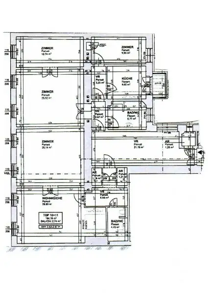
VORZIMMER, 4 ZIMMER, WOHNKÜCHE, EXTRAKÜCHE, CA. 3 M2 BALKON, 2 BÄDER MIT WC, SEPARATES WC, 3 ABSTELLRÄUME

AUSSTATTUNG:

+ 2 KÜCHEN MIT EINBAUGERÄTE
+ 2 BADEZIMMER MIT BADEWANNE ODER DUSCHE, WASCHTISCHE, WC UND WASCHMASCHINENANSCHLUSS
+ PARKETTBÖDEN, LAMINATBODEN, FLIESEN IN DEN NASSRÄUMEN
+ TEILWEISE FLÜGELTÜREN
+ ZENTRALHEIZUNG (FERNWÄRME)
+ TELEKABELANSCHLÜSSE, KABELKANÄLE OBERPUTZ
+ GEGENSPRECHANLAGE
+ KEIN KELLERABTEIL
+ BEZUG AB 01.01.2026 MÖGLICH!

LAGE

MÖLLWALDPLATZ MIT BESTER INFRASTRUKTUR DES 4. BEZIRKS (FAVORITENSTRASSE, GYMNASIUM STIFTUNG THERESIANISCHE AKADEMIE, MAYERHOFGASSE, TILGNERSTRASSE, BRAHMSPLATZ, WALTERGASSE, THERESIANUMGASSE, KARLSPLATZ, GUSHAUSSTRASSE, TAUBSTUMMENGASSE, PRINZ-EUGEN-STRASSE, SCHLOSS BELVEDERE) SOWIE PERFEKTEN VERKEHRSANBINDUNGEN WIE U1-STATION TAUBSTUMMENGASSE, U1/U2/U4-STATIONEN KARLPLATZ SOWIE DIE LINIEN 1, 62, D, WLB, U2Z, 4A + N66 SIND IN UNMITTELBARER NÄHE. DER WIENER HAUPTBAHNHOF MIT DEN S-BAHN-STATIONEN S2, S3, S4, S6, REX 1, RJK, REX 3 SOWIE SÄMTLICHEN REGIONAL- UND FERNVERBINDUNGEN IST IN KÜRZESTER ZEIT ERREICHBAR.

SONSTIGES

GESAMTMIETE: € 3.467,67 INKLUSIVE BETRIEBSKOSTEN, MANIP., 20 % MWST
ZZGL. HEIZUNGS- UND WARMWASSER-AKONTO: € 541,27 INKL. 20 % MWST. PER MONAT

KAUTION: € 12.050,00 PER ÜBERWEISUNG
3 BMM VERMITTLUNGSPROVISION: € 12.028,79 INKL. 20 % MWST.
VERGEBÜHRUNG BEIM FINANZAMT: CA. € 3.888,05
GEBÜHR FÜR ERRICHTUNG UND DURCHFÜHRUNG DES MIETVERTRAGES € 240,00 INKL. MWST. (HV SANTNER GMBH)

AUF 5 JAHRE BEFRISTETE HAUPTMIETE, ABLÖSEFREI, BEZUG PER 01.01.2026 MÖGLICH
1 JAHR KÜNDIGUNGSVERZICHT, 3 MONATE KÜNDIGUNGSFRIST

ANBINDUNG ÖFFENTLICHER VERKEHR

DIE U1-STATION TAUBSTUMMENGASSE, U1/U2/U4-STATIONEN KARLPLATZ SOWIE DIE LINIEN 1, 62, D, WLB, U2Z, 4A + N66 SIND IN UNMITTELBARER NÄHE

ANSPRECHPARTNER: ALEXANDER ROS
MOB.-TEL. +43-664-466 52 02
E-MAIL: ALEXANDER.ROS@ROS-REAL.AT  

Infrastruktur / Entfernungen

Gesundheit
Arzt <250m
Apotheke <500m
Klinik <250m
Krankenhaus <750m

Kinder & Schulen
Schule <250m
Kindergarten <250m
Universität <500m
Höhere Schule <250m

Nahversorgung
Supermarkt <250m
Bäckerei <250m
Einkaufszentrum <500m

Sonstige
Geldautomat <250m
Bank <250m
Post <500m
Polizei <500m

Verkehr
Bus <250m
U-Bahn <250m
Straßenbahn <250m
Bahnhof <250m
Autobahnanschluss <3.000m

Angaben Entfernung Luftlinie / Quelle: OpenStreetMap
Beschreibung weiterlesen

Lage und Verkehrsanbindung

MÖLLWALDPLATZ mit bester Infrastruktur des 4. Bezirks (Favoritenstraße, Gymnasium Stiftung Theresianische Akademie, Mayerhofgasse, Tilgnerstraße, Brahmsplatz, Waltergasse, Theresianumgasse, Karlsplatz, Gushausstraße, Taubstummengasse, Prinz-Eugen-Straße, Schloss Belvedere) sowie perfekten Verkehrsanbindungen wie U1-Station Taubstummengasse, U1/U2/U4-Stationen Karlplatz sowie die Linien 1, 62, D, WLB, U2Z, 4A + N66 sind in unmittelbarer Nähe. Der Wiener Hauptbahnhof mit den S-Bahn-Stationen S2, S3, S4, S6, REX 1, RJK, REX 3 sowie sämtlichen Regional- und Fernverbindungen ist in kürzester Zeit erreichbar.

Favoritenstraße, Gymnasium Stiftung Theresianische Akademie, Mayerhofgasse, Tilgnerstraße, Brahmsplatz, Waltergasse, Theresianumgasse, Karlsplatz, Gushausstraße, Taubstummengasse, Prinz-Eugen-Straße, Schloss Belvedere

Energieeffizienz

HWB:
170,4 kWh/(m²*a)
HWB Klasse:
E
fGEE:
2,72
fGEE Klasse:
E
Energieausweisart:
Energiebedarfs-ausweis

Grundriss

Lageplan

1040 Wien | Wien 4., Wieden

Lade...
Alexander Ros

Alexander Ros
Immobilienberater

ROS REALITÄTEN OG

Lade...

Fotomix

Bild 1 Bild 2 Bild 3 Bild 4 Bild 5 Bild 6 Bild 7 Bild 8 Bild 9 Bild 10 Bild 11 Bild 12 Bild 13 Bild 14 Bild 15 Bild 16 Bild 17 Bild 18 Bild 19 Bild 20 Bild 21 Bild 22 Bild 23 Bild 24 Bild 25 Bild 26 Bild 27 Bild 28 Bild 29 Bild 30 Bild 31 Bild 32 Bild 33 Bild 34 Bild 35 Bild 36 Bild 37 Bild 38 Bild 39 Bild 40 Bild 41 Bild 42