Multifunktionales Gewerbegrundstück direkt auf der Triester Straße | ca. 3.842,53 m² verwertbare Nutzfläche

Grundstück zum Kauf in 1230 Wien - Kaufpreis: 3.070.000 € / Objektnummer: 25171
Ausstattung:

Preisinformationen

Kaufpreis:
3.070.000 €
Vermittlungsprovision:
Ja
Provision:
3% des Kaufpreises zzgl. 20% USt.

Fakten

Objektnummer:
25171
Objekttyp:
Grundstück
Nutzfläche:
3.842,53 m²
Grundstücksfläche:
1.295 m²
Verfügbarkeit:
Verfügbar

Beschreibung

Die Gewerbeliegenschaft liegt direkt an der stark frequentierten Triester Straße, ist optimal angebunden und eignet sich daher ideal als Firmenniederlassung. Eine ideale Werbemöglichkeit sowie Sichtbarkeit ist durch die straßenseitige Lage gegeben.

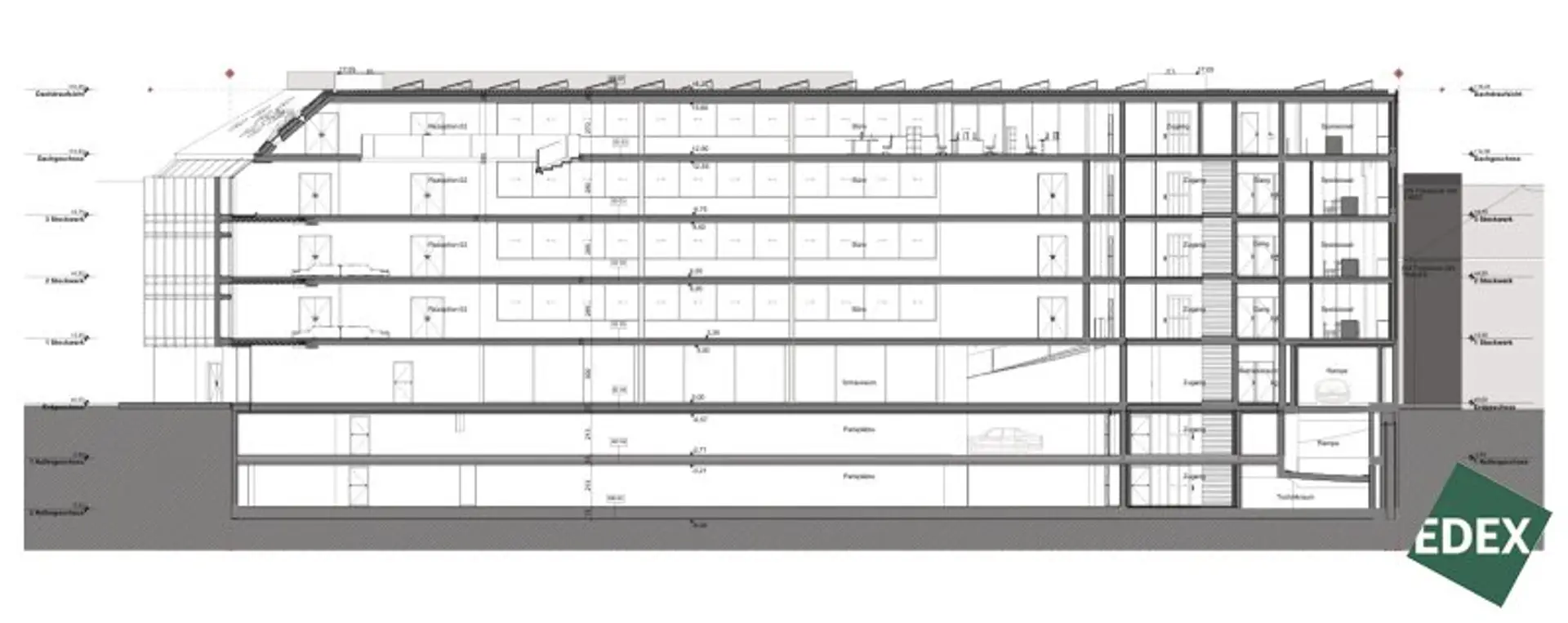
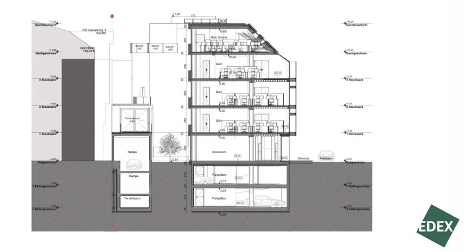
Diese multifunktionale Liegenschaft befindet sich auf einem Grundstück welches zurzeit lediglich als Parkplatz genutzt wird. Aufgrund der geltenden Bebauungsbestimmungen kann diese Betriebsliegenschaft sehr vielseitig genutzt werden. Laut einer vorhandenen Bebauungsstudie (das Projekt ist bereits baugenehmigt aber noch nicht rechtskräftig), kann jedenfalls von einer erzielbaren Nutzfläche, aufgeteilt auf vier Geschosse von insgesamt ca. 3.842,53 m² ausgegangen werden.

Zudem können bis zu 34 Tiefgaragenstellplätze sowie insgesamt ca. 183,39 m² im UG realisiert werden. 

 

Lage

Die Liegenschaft ist verkehrstechnisch ideal über die Triester Hauptstraße, mit der Badner Bahn sowie der Buslinie 64A erreichbar. In der Umgebung befinden sich bereits renommierte Gewerbe- und Industriebetriebe.

Der angeführte Kaufpreis gilt für das Gewerbegrundstück. Das visualisierte Gebäude dient der Veranschaulichung der baulichen Möglichkeiten unter Berücksichtigung des vorgegebenen Flächenwidmungs - und Bebauungsplans. 

 

Öffentliche Verkehrsanbindung

Badner Bahn

Bus: 64A

 

   

 

Infrastruktur / Entfernungen

Gesundheit
Arzt <500m
Apotheke <1.000m
Klinik <2.000m
Krankenhaus <2.000m

Kinder & Schulen
Schule <1.000m
Kindergarten <500m
Universität <5.000m
Höhere Schule <4.500m

Nahversorgung
Supermarkt <500m
Bäckerei <2.000m
Einkaufszentrum <1.000m

Sonstige
Geldautomat <1.000m
Bank <2.000m
Post <1.500m
Polizei <1.500m

Verkehr
Bus <500m
U-Bahn <1.000m
Straßenbahn <2.500m
Bahnhof <500m
Autobahnanschluss <1.000m

Angaben Entfernung Luftlinie / Quelle: OpenStreetMap
Beschreibung weiterlesen

Lage und Verkehrsanbindung

Triester Straße

Zentralfriedhof

Grundrisse

Lageplan

1230 Wien | Wien 23., Liesing

Lade...
Harald Anderlik

Harald Anderlik
Leitung Büroimmobilien

EDEX Immobilien GmbH

Lade...

Fotomix

Bild 1 Bild 2