NEU - Nachhaltig Leben in Top-Lage – ODO25 mit effizienter Energie & cleverer Raumplanung

Wohnung zur Miete in 1160 Wien - Gesamtmiete: 1.250,00 € / Objektnummer: 92498
Ausstattung: Boden Fahrstuhl Wohnküche / offene Küche Bad Klimaanlage Tiefgarage Parkplatz Abstellraum Terrasse

Preisinformationen

Gesamtmiete:
1.250,00 € / Monat
Betriebskosten netto:
114,34 € / Monat
Umsatzsteuer:
113,63 €
Kaution:
3.750,00 €
Provision:
Gemäß Erstauftraggeberprinzip bezahlt der Abgeber die Provision.

Fakten

Objektnummer:
92498
Objekttyp:
Wohnung
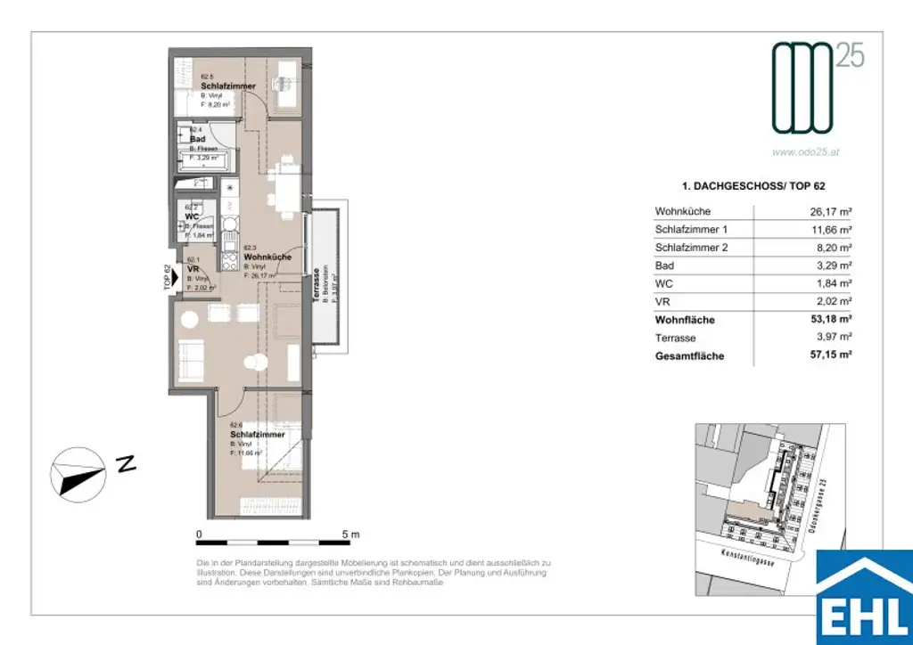
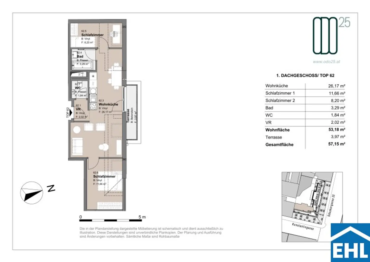
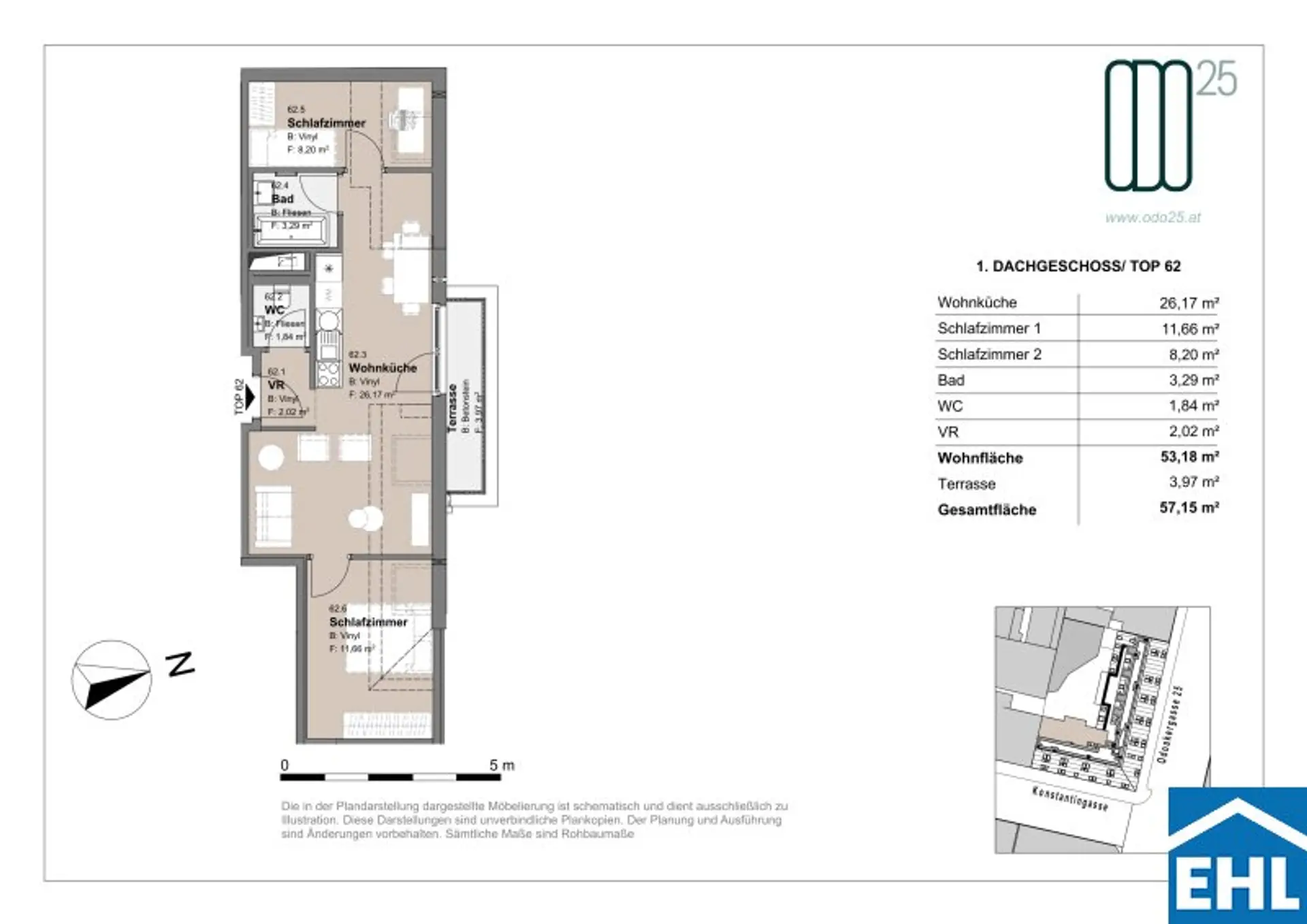
Terrasse:
1
Wohnfläche:
53,18 m²
Zimmer:
3
Badezimmer:
1
Toilette:
1
Stockwerk:
5
Baujahr:
2026
Neubau:
Ja
Zustand:
Erstbezug
Verfügbarkeit:
Verfügbar

Beschreibung

Mit dem ODO25 entsteht in der Odoakergasse 25 im 16. Wiener Gemeindebezirk, am Fuße des Wilhelminenbergs, ein modernes Wohnprojekt, das urbanes Lebensgefühl, zeitgemäße Architektur und nachhaltigen Wohnkomfort vereint. Die Wohnhausanlage richtet sich an Menschen in unterschiedlichen Lebensphasen – von Singles über Paare bis hin zu Familien – und bietet Raum zum Ankommen, Entfalten und Wohlfühlen.

Das Projekt umfasst 61 hochwertige Mietwohnungen sowie eine Atelier- bzw. Büroeinheit im Hofhaus. Die überwiegend 1,5-, 2- sowie 3-Zimmer-Wohnungen mit Wohnflächen von ca. 30 bis 80 m² überzeugen durch durchdachte, kompakte Grundrisse, helle Räume und eine hochwertige Ausstattung. Großzügige bodentiefe Fenster, klare architektonische Linien und teilweise private Freiflächen wie Balkone, Loggien oder Terrassen schaffen ein angenehmes, urbanes Wohnambiente. Ergänzt wird das Angebot durch ausgewählte Dach-Maisonetten, die ein besonders exklusives Wohngefühl bieten.

ODO25 setzt auf ein zukunftsorientiertes, nachhaltiges Gesamtkonzept und strebt eine ÖGNI-/DGNB-Gold-Zertifizierung an.

 

Das Projekt im Überblick

* 61 Mietwohnungen sowie 1 Büro- & Atelierfläche
* 1,5- bis 3-Zimmer-Wohnungen mit ca. 30–80 m² Wohnfläche
* Teilweise private Freiflächen (Balkon, Loggia oder Terrasse)
* Fahrradabstellraum & Kinderspielraum
* Energieeffiziente Bauweise mit Wärmepumpe, Erdwärmesonden und Bauteilaktivierung
* Begrünter Innenhof sowie Fassaden- und Dachbegrünung

 

Ausstattung im Überblick

* Heizung und Kühlung über die Decke mittels Erdwärme
* Voll ausgestattete Küchen
* Vinylboden in Eichenoptik in den Wohnräumen
* Fliesen bzw. Feinsteinzeug in den Sanitärräumen
* Kunststoff-Alu-Fenster
* Außenliegender Sonnenschutz im Dachgeschoß
* Sicherheitstüren WK2/RC2
* Glasfaseranschluss
* Video-Gegensprechanlage

 

Lage – Urbanes Leben mit Nähe zur Natur

ODO25 liegt im Herzen von Ottakring und verbindet urbane Infrastruktur mit naturnaher Erholung. Zahlreiche Grün- und Erholungsgebiete wie der Wilhelminenberg, die Steinhofgründe oder der Kongresspark befinden sich in kurzer Distanz und bieten vielfältige Freizeitmöglichkeiten. Gleichzeitig ist die Anbindung an die Wiener Innenstadt hervorragend: Die U3-Station „Ottakring“ ist fußläufig erreichbar und bringt Sie in kurzer Zeit ins Stadtzentrum.

Zahlreiche Einkaufsmöglichkeiten für den täglichen Bedarf, Restaurants sowie traditionelle Heurige befinden sich in unmittelbarer Umgebung. Kindergärten sowie sämtliche Schultypen sind ebenfalls rasch erreichbar.

Verkehrsanbindung

* Straßenbahn: 2, 10, 33, 44 & 46
* Bus: 45A, 46A, 46B & N46
* S-Bahn: S45
* U-Bahn: U3 Ottakring (ca. 10 Gehminuten)

 

Voraussichtliche Fertigstellung: 01.07.2026

Befristung: 5 Jahre, 1 Jahr Kündigungsverzicht, 3 Monate Kündigungsfrist 

Nebenkosten:  3 BMM Kaution

Den Wohnungen sind keine Kellerabteile zugeordnet.

 

Das Projekt befindet sich derzeit noch im Bau. Wir freuen uns über Ihre Kontaktaufnahme per E-Mail, um einen Besichtigungstermin der Musterwohnung zu vereinbaren!

Wir weisen darauf hin, dass zwischen dem Vermittler und dem zu vermittelnden Dritten ein familiäres oder wirtschaftliches Naheverhältnis besteht.

Der Immobilienmakler erklärt, dass er – entgegen dem in der Immobilienwirtschaft üblichen Geschäftsgebrauch des Doppelmaklers – einseitig nur für den Vermieter tätig ist.

Infrastruktur / Entfernungen

Gesundheit
Arzt <200m
Apotheke <125m
Klinik <775m
Krankenhaus <275m

Kinder & Schulen
Schule <200m
Kindergarten <225m
Universität <1.600m
Höhere Schule <1.275m

Nahversorgung
Supermarkt <150m
Bäckerei <325m
Einkaufszentrum <325m

Sonstige
Geldautomat <150m
Bank <350m
Post <350m
Polizei <400m

Verkehr
Bus <100m
U-Bahn <550m
Straßenbahn <100m
Bahnhof <650m
Autobahnanschluss <4.725m

Angaben Entfernung Luftlinie / Quelle: OpenStreetMap
Beschreibung weiterlesen

Lage und Verkehrsanbindung

Kongresspark

Energieeffizienz

HWB:
26,2 kWh/(m²*a)
HWB Klasse:
B
fGEE:
0,66
fGEE Klasse:
A+
Energieausweisart:
Energiebedarfs-ausweis
Gültig bis:
19.11.2035

Dokumente

Grundriss

Lageplan

1160 Wien | Wien 16., Ottakring

Lade...
Helena Rohrauer

Helena Rohrauer

EHL Wohnen GmbH

Lade...

Fotomix

Bild 1 Bild 2 Bild 3 Bild 4 Bild 5 Bild 6 Bild 7 Bild 8 Bild 9 Bild 10 Bild 11 Bild 12 Bild 13