NEU - Nachhaltige, klimafreundliche Ziegel-Bauweise

Haus zum Kauf in 2320 Schwechat - Kaufpreis: 663.000 € / Objektnummer: 21903
Ausstattung: Boden Bad Gäste-WC Rollladen Parkplatz Außenparkplatz Fußbodenheizung

Preisinformationen

Kaufpreis:
663.000 €

Fakten

Objektnummer:
21903
Objekttyp:
Haus
Keller Fläche:
43,18 m²
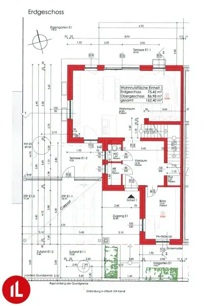
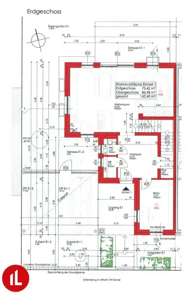
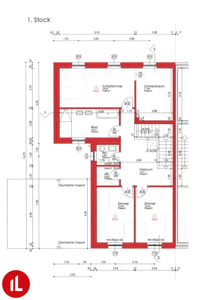
Wohnfläche:
162,4 m²
Grundstücksfläche:
396 m²
Verfügbarkeit:
Verfügbar

Beschreibung

WOHNQUALITÄT & LEBENSGEFÜHL:
Im charmanten Ort Rauchenwarth, umgeben von Ruhe, Weitblick und einer Natur, die sich jeden Tag neu anfühlt, erwartet Sie eine Doppelhaushälfte, die mehr ist als nur ein Zuhause. Hochwertige Ausstattung, durchdachte Raumplanung und ein Ambiente, das sofort Geborgenheit ausstrahlt, verschmelzen hier zu einem Ort, an dem Alltag leichtfällt und Lebensqualität spürbar wird.
Ein Haus, das mit seiner klaren Architektur begeistert, mit seinem Gefühl überzeugt – und in dem jedes Detail die Handschrift sorgfältiger Planung trägt.
 
WOHNHIGHLIGHTS IM ÜBERBLICK:
•    Hochwertige Sanitärausstattungen mit eleganter Markenkeramik und Designarmaturen von Villory & Boch, Baliv und Schütte
•    Fenster Aluplast IDEAL 8000 - alle versperrbar – auch im Keller
•    Alle Fenster mit Außenrollläden
•    Sämtliche Fenster sind mit Reed-Kontakten für Alarmanlage ausgestattet

•    Böden Eiche rustikal Landhausdiele in Premiumqualität
•    In den Schlafräumen hochwertiger Teppichboden
•    Sanitärräume moderne Keramik-Verfliesung 
•    Fußbodenheizung für ein angenehmes Raumklima
•    Heizung mittels Luftwärmepumpe von Wella
•    Kachelofen oder offener Kamin sind sehr gut möglich
•    Viel Platz für Garage und oder Carport
•    Leerverrohrungen für PV-Anlage und E-Ladestation
•    REED-Kontakte bei Türen und Fenstern für Alarmanlage
•    Großzügiger Garten
•    Herrliche Sonnenterrasse mit Licht, Steckdose und Wasseranschluss
•    Grundstück komplett eingezäunt

Kaufpreis: EUR 663.000,-

Verbringen Sie bereits Weihnachten im neuen Zuhause! 

HIER GEHTS ZUR VIDEOBESICHTIGUNG [https://youtu.be/tpIeEOzSpPQ]

RUFEN SIE AN!

Maria Leiner - 0664 116 11 11 [tel:+436641161111]
Alleinbeauftragte Immobilienkanzlei

Ihre Anfrage ist wichtig und wertvoll!

In Entsprechung des FAGG (Fern- und Auswärtsgeschäfte-Gesetz) und des VRUG (Verbraucherrechte-Richtlinie-Umsetzungsgesetz) ist es uns nur mehr möglich, Termine nach Erhalt einer schriftlichen Anfrage mit vollständigen Kontaktangaben (Name, Adresse, Telefon, Email) zu vereinbaren. Dies gilt auch für die Weitergabe relevanter Informationen des Objektes. Wir danken für Ihr Verständnis und freuen uns, Sie bald als Kunde begrüßen zu dürfen.

Infrastruktur / Entfernungen

Gesundheit
Apotheke <4.000m
Arzt <6.500m
Klinik <8.000m
Krankenhaus <5.500m

Kinder & Schulen
Kindergarten <4.000m
Schule <4.000m

Nahversorgung
Supermarkt <3.500m
Bäckerei <5.500m
Einkaufszentrum <6.000m

Sonstige
Bank <4.000m
Geldautomat <4.000m
Post <4.000m
Polizei <5.500m

Verkehr
Bus <1.000m
Straßenbahn <8.500m
Autobahnanschluss <6.000m
Bahnhof <5.500m
Flughafen <4.000m

Angaben Entfernung Luftlinie / Quelle: OpenStreetMap
Beschreibung weiterlesen

Grundrisse

Lageplan

2320 Schwechat | Bruck an der Leitha

Lade...
Maria Leiner

Maria Leiner
Immobilientreuhänder

Immobilienwelt Leiner

Anrufen
Lade...

Fotomix

Bild 1 Bild 2 Bild 3 Bild 4 Bild 5 Bild 6 Bild 7 Bild 8 Bild 9