NEU - NÄHE PRATERSTERN – HELLES 4-ZIMMER DACHGESCHOSSAPARTMENT

Wohnung zur Miete in 1020 Wien - Gesamtmiete: 1.590,00 € / Objektnummer: 9563
Ausstattung: Fahrstuhl Etagenheizung WG geeignet
1 WZ 1
2 WZ
3 KÜ 1
4 KÜ 2
5 Eingang
6 BZ 2
7 SZ (2)
8 Flour
9 Zimmer 1
10 ZI Galerie
11 Galerie ZI 1
12 ZI 1 mit Galerie
13 BZ 2
14 ZI 2 mit Galerie
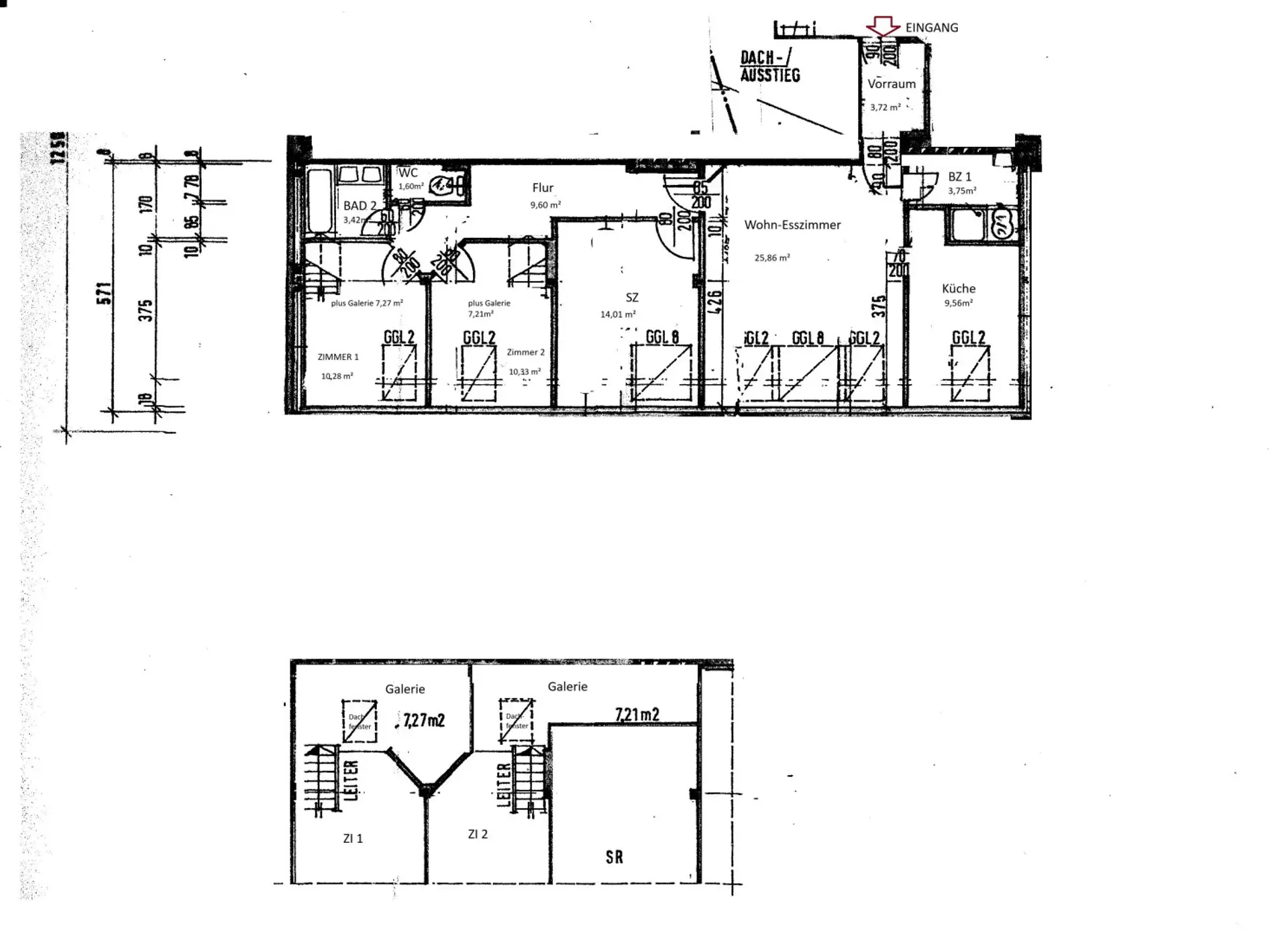
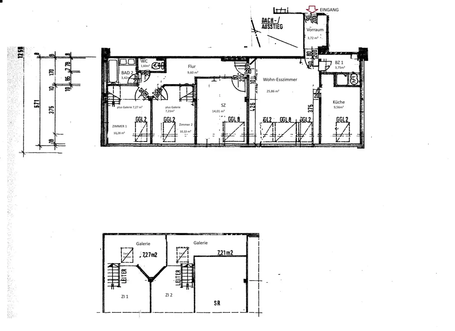
15 Plan

Preisinformationen

Gesamtmiete:
1.590,00 € / Monat
Kaution:
4.500,00 €

Fakten

Objektnummer:
9563
Objekttyp:
Wohnung
Wohnfläche:
106 m²
Zimmer:
4
Badezimmer:
2
Toilette:
2
Stockwerk:
5
Baujahr:
2005
Neubau:
Ja
Zustand:
Gepflegt
Verfügbarkeit:
Verfügbar

Beschreibung

NÄHE PRATERSTERN – HELLES 4-ZIMMER DACHGESCHOSSAPARTMENT

Dieses, sehr helle 4 Zimmer Apartment wird soeben renoviert und ist mit 1. Februar bezugsfertig.
Das Apartment befindet sich in unmittelbarer Nähe zum Praterstern, in der Venediger Au und bietet beste Verkehrsanbindung, sehr gute Infrastruktur sowie Ruhelage.

Die ca. 106 m2 Nutzfläche gliedert sich in:
Vorzimmer, Wohn-Esszimmer, Küche, 1 Badezimmer mit Waschtisch, Dusche und WC, Flur, Schlafzimmer, 2 Zimmer mit je einer ca. 7m² großen Galerie, 1 Badezimmer mit Badewanne und Doppel-Waschtisch, 1 WC extra.

Besonders erwähnenswert sind sowohl die hervorragende Lage (Praterstern U2, Praterallee sowie die Ruhelage. Durch die sehr gute Raumaufteilung ist die Wohnung auch als WG sehr gut geeignet.

Die gediegene Ausstattung reicht von Kunststofffenster, Vinylböden, Küche ist mit allen Geräten ausgestattet, 2 Bäder, 1 WC.

Der Pauschalmietzins beinhaltet: Nettomiete, Betriebskosten und Umsatzsteuer.
Verbraucherkosten wie Strom, Gas, Internet, GIS werden gesondert mit dem jeweiligen Anbieter verrechnet.


Um Sie bemüht:
Fr. Bruckner, Tel.: 0664/1000944, Email: erna.bruckner@smkimmobruckner.at

Es wird darauf hingewiesen, dass die angeführten Daten, ausschließliche auf Informationen des Verkäufers/Vermieter oder Dritter (z.B. Behörden) beruhen, so dass für die Richtigkeit keine Gewähr übernommen werden wird!


Auf Grund der gesetzlichen Nachweispflicht gegenüber dem Eigentümer bitten wir Sie um Verständnis, dass wir nur Anfragen mit vollständigem Namen, korrekter Telefonnummer und E-Mailadresse bearbeiten können. Ihre Daten werden selbstverständlich vertraulich behandelt.
Beschreibung weiterlesen

Energieeffizienz

HWB Klasse:
C
Energieausweisart:
Energiebedarfs-ausweis
Erna Bruckner

Erna Bruckner

SMK Immo Treuhand GmbH

Lade...

Fotomix

1 WZ 1 2 WZ 3 KÜ 1 4 KÜ 2 5 Eingang 6 BZ 2 7 SZ (2) 8 Flour 9 Zimmer 1 10 ZI Galerie 11 Galerie ZI 1 12 ZI 1 mit Galerie 13 BZ 2 14 ZI 2 mit Galerie 15 Plan