NEU - NASCHMARKT-RARITÄTHistorische Mühle aus dem 14.Jhd in TOP Zustand

Haus zum Kauf in 1040 Wien - Kaufpreis: 3.300.000 € / Objektnummer: 56485

Preisinformationen

Kaufpreis:
3.300.000 €
Vermittlungsprovision:
Ja
Provision:
3% des Kaufpreises zzgl. 20% USt.

Fakten

Objektnummer:
56485
Objekttyp:
Haus
Nutzfläche:
508 m²
Altbau:
Ja
Verfügbarkeit:
Verfügbar

Beschreibung

_Ein Stück Geschichte Besitzen   -   Own a Piece of History   -   Станьте владельцем кусочка истории _

 

Willkommen zu einer einmaligen Gelegenheit in einem der begehrtesten Viertel Wiens!

Die Heumühle im 4.Bezirk in Wien ist eine ehemalige Wassermühle, die in ihrer heutigen Form auf das 14. Jahrhundert zurückgeht. Es gilt als der zweitältestes Profanbau-Gebäude Wiens.

Bis Anfang des 21. Jahrhunderts war das in Privatbesitz befindliche, inzwischen unter Denkmalschutz stehende Gebäude weitestgehend dem Verfall preisgegeben. Im Zuge der Revitalisierung der umliegenden Bauwerke wurde auch die historische Mühle (ca. im Jahr 2010) einer umfassenden Sanierung unterzogen. Das Gebäude selbst wird seit 2018 (befristet bis 10.2028) als Schauraum eines Büromöbelunternehmens genutzt.

 

Dieses beeindruckende Bürohaus in 1040 Wien bietet nicht nur eine attraktive Rendite, sondern auch eine hervorragende Lage mit einer Vielzahl an Annehmlichkeiten direkt vor der Tür.

Mit einer großzügigen Fläche von 508m² erstreckt sich dieses Renditeobjekt über mehrere Etagen und bietet Ihnen die Möglichkeit, von den stabilen Mieteinnahmen zu profitieren. Der Kaufpreis von EUR 3.300.00,00 stellt eine hervorragende Investition in die Zukunft dar, insbesondere in einer Stadt, die für ihre hohe Lebensqualität und starke Wirtschaft bekannt ist.

 

Zögern Sie nicht, uns für weitere Informationen oder eine Besichtigung zu kontaktieren. Diese Gelegenheit wird nicht lange verfügbar sein – sichern Sie sich Ihr Renditeobjekt in 1040 Wien und werden Sie Teil eines florierenden Immobilienmarktes!

 

_Eckdaten: _

Stockwerke: 3

Nutzfläche: ca. 508m²

Nettomieterträge p.a. EUR 110.423,76

Kaufpreis: EUR 3.300.000,00

Heizung: GAS

 

 

Provision: 3% vom Kaufpreis zzgl. 20% USt.

 

 

-------------

Zögern Sie nicht und vereinbaren Sie noch heute einen Besichtigungstermin! Ich freue mich auf Ihre Anfrage!

Besuchen Sie auch unsere Homepage unter www.RIWOG.at [http://www.riwog.at/] mit zahlreichen aktuellen TOP-Objekten!

 

 

Hinweis gemäß Energieausweisvorlagegesetz: Ein Energieausweis wurde vom Eigentümer bzw. Verkäufer, nach unserer Aufklärung über die generell geltende Vorlagepflicht, sowie Aufforderung zu seiner Erstellung noch nicht vorgelegt. Daher gilt zumindest eine dem Alter und der Art des Gebäudes entsprechende Gesamtenergieeffizienz als vereinbart. Wir übernehmen keinerlei Gewähr oder Haftung für die tatsächliche Energieeffizienz der angebotenen Immobilie.

Wir weisen darauf hin, dass zwischen dem Vermittler und dem zu vermittelnden Dritten ein familiäres oder wirtschaftliches Naheverhältnis besteht.

Der Vermittler ist als Doppelmakler tätig.

Infrastruktur / Entfernungen

Gesundheit
Arzt <500m
Apotheke <500m
Klinik <500m
Krankenhaus <1.000m

Kinder & Schulen
Schule <500m
Kindergarten <500m
Universität <500m
Höhere Schule <1.000m

Nahversorgung
Supermarkt <500m
Bäckerei <500m
Einkaufszentrum <1.000m

Sonstige
Geldautomat <500m
Bank <500m
Post <500m
Polizei <500m

Verkehr
Bus <500m
U-Bahn <500m
Straßenbahn <500m
Bahnhof <500m
Autobahnanschluss <3.500m

Angaben Entfernung Luftlinie / Quelle: OpenStreetMap
Beschreibung weiterlesen

Lage und Verkehrsanbindung

Naschmarkt

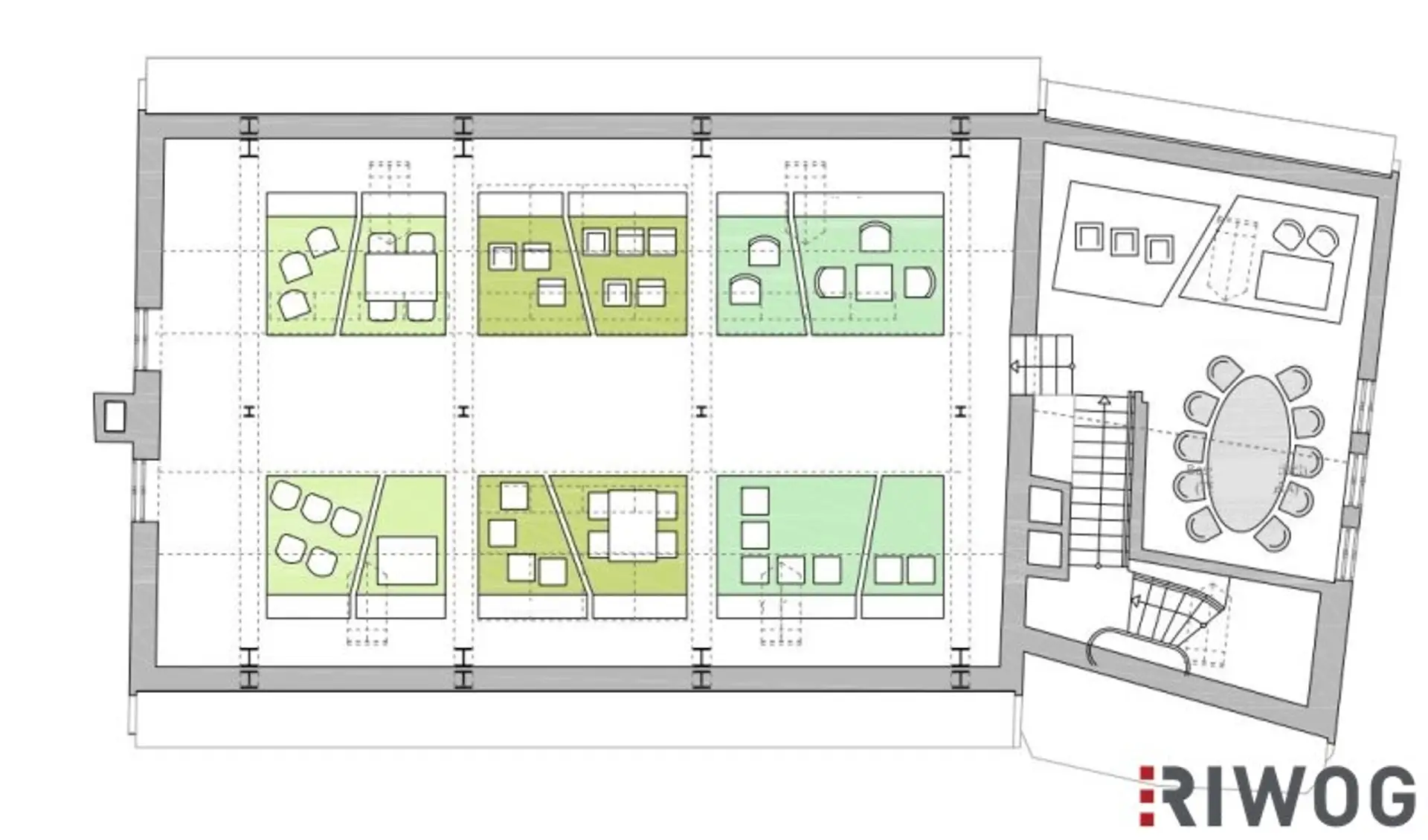
Grundrisse

Lageplan

1040 Wien | Wien 4., Wieden

Lade...
Aurelian Tranc

Aurelian Tranc
Immobilienmakler

RIWOG Real Estate Management GmbH

Lade...

Fotomix

Bild 1 Bild 2 Bild 3 Bild 4 Bild 5 Bild 6 Bild 7 Bild 8 Bild 9 Bild 10 Bild 11 Bild 12 Bild 13 Bild 14 Bild 15 Bild 16 Bild 17 Bild 18 Bild 19 Bild 20