NEU - Nette Single-Wohnung mit Balkon

Wohnung zur Miete in 3042 Würmla - Gesamtmiete: 621,53 € / Objektnummer: 4908
Ausstattung: Barrierefrei Boden Fahrstuhl Kabel/Satelliten-TV Garage Tiefgarage Carport Parkplatz Außenparkplatz Fahrradraum Abstellraum Fußbodenheizung Balkon
Blick von der Küche ins Wohn-Esszimmer
Küche
Schlafzimmer
Bad mit Dusche und WC
Balkon
Kellerabteil mit Waschmaschinenanschluss

Preisinformationen

Gesamtmiete:
621,53 € / Monat
Betriebskosten netto:
129,71 € / Monat
Umsatzsteuer:
56,50 €
Kaution:
2.000,00 €
Provision:
Gemäß Erstauftraggeberprinzip bezahlt der Abgeber die Provision.

Fakten

Objektnummer:
4908
Objekttyp:
Wohnung
Balkon:
1
Balkonfläche:
4,5 m²
Keller Fläche:
4,6 m²
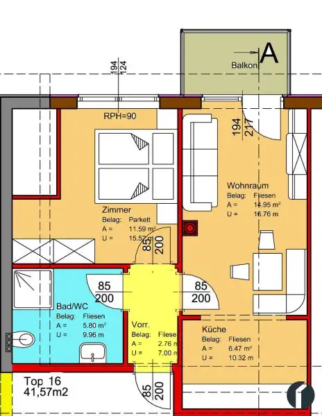
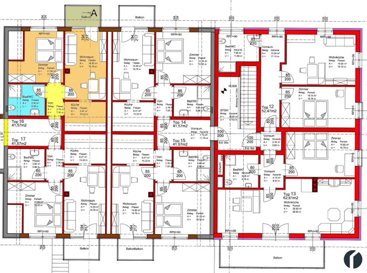
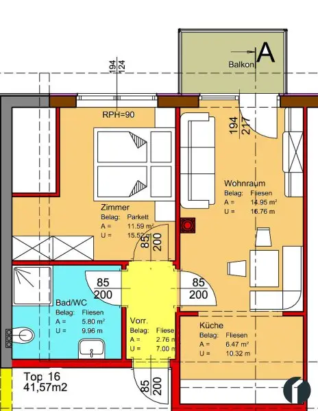
Wohnfläche:
41,57 m²
Gesamtfläche:
41,57 m²
Zimmer:
2
Badezimmer:
1
Toilette:
1
Stockwerk:
1
Baujahr:
2012
Neubau:
Ja
Zustand:
Neuwertig
Verfügbarkeit:
Verfügbar

Beschreibung

Platz für Singles und mehr bietet diese Wohnung auf einer Wohnfläche von ca. 41,57 m²

Zur Vermietung kommt eine 2-Zimmer Wohnung samt Balkon im 2. Stock eines Mehrperteienhauses in Würmla.
Auf insgesamt ca. 41,57 m² Wohnfläche finden Sie hier eine nette kleine  Wohnung für Singles oder ein Paar. Die Räumlichkeiten teilen sich wie folgt auf: Eingangsbereich mit Platz für eine Garderobe / Wohn-Esszimmer / Küche / Schlafzimmer / Bad mit Dusche, WC und Waschbecken / Balkon mit ca. 4,5 m² / Kellerabteil mit ca. 4,6 m²
Das Gebäude wurde zwar 2012 neu, barrierefrei mit Lift und Rampe errichtet, bei dieser Wohnung muss jedoch das letzte Sockwerk in das Dachgeschoß über die Treppe genommen werden. Jede Wohnung wurde unter anderem ausgestattet mit einer kontrollierten Wohnraumlüftung sowie einer Fußbodenheizung über eine Luft-Wärmepumpe. Die Kosten für Strom verrechnen Sie direkt mit einem Energieanbieter Ihrer Wahl.

Ein PKW-Stellplatz ist optional gegen Aufpreis möglich (Carport, Garagenplatz oder Stellplatz im Freien) und direkt mit der Hausverwaltung zu klären.

* Bezug ab sofort möglich
* Balkon ca. 4,5 m²
* Kellerabteil ca. 4,6 m²
* Kontrollierte Wohnraumlüftung
* Fußbodenheizung (Luft-Wärmepumpe)
* PKW-Stellplatz (Carport oder Garagenplatz) optional

Infrastruktur

Kindergarten / Volksschule / Hauptschule / Praktischer Arzt / Kaufhaus / Tennisplatz / Sportplatz / KFZ Werkstatt / Eisenwarenhandlung / Kirche / Gasthäuser / Kaffeehaus /
Herrliche Naturlandschaft und Wanderwege in nächster Umgebung 

Entfernungen zu wichtigen Orten

* Bahnhof Tullnerfeld 13 km
* Neulengbach 14 km
* Tulln 18 km
* St. Pölten 22 km
* Krems 35 km

Alle Angaben ohne Gewährleistungsanspruch!
Die Angaben im Exposé erfolgen im Auftrag unseres Auftraggebers.
Für die Richtigkeit und Vollständigkeit der uns zur Verfügung gestellten Unterlagen/Auskünfte durch Vermieter, Behörden usw. übernehmen wir keine Gewähr.
Eine eigene Haftung ist ausgeschlossen.

 

Der Immobilienmakler erklärt, dass er – entgegen dem in der Immobilienwirtschaft üblichen Geschäftsgebrauch des Doppelmaklers – einseitig nur für den Vermieter tätig ist.

Infrastruktur / Entfernungen

Gesundheit
Arzt 500m
Apotheke 6.000m
Klinik 9.500m

Kinder & Schulen
Schule 500m
Kindergarten 5.500m

Nahversorgung
Supermarkt 500m
Bäckerei 500m
Einkaufszentrum 6.000m

Sonstige
Bank 500m
Geldautomat 500m
Post 500m
Polizei 5.500m

Verkehr
Bus 500m
Bahnhof 6.500m
Autobahnanschluss 9.000m

Angaben Entfernung Luftlinie / Quelle: OpenStreetMap
Beschreibung weiterlesen

Lage und Verkehrsanbindung

Würmla Zentrum

Tulln / St. Pölten Neulengbach

Energieeffizienz

HWB:
38 kWh/(m²*a)
HWB Klasse:
B
Energieausweisart:
Energiebedarfs-ausweis
Gültig bis:
17.10.2022

Grundrisse

Lageplan

3042 Würmla | Tulln

Lade...
Martin Schildberger

Martin Schildberger
Immobilienberater

Immobilien86 KG

Anrufen
Lade...

Fotomix

Blick von der Küche ins Wohn-Esszimmer Küche Schlafzimmer Bad mit Dusche und WC Balkon Kellerabteil mit Waschmaschinenanschluss