NEU - NEU! ++ 2 PKW-Garagenplätze ++ Neubau ++ 1130 Wien ++ Komfortable Zufahrt von der Straße ++

Parken zum Kauf in 1130 Wien - Kaufpreis: 25.000 € / Objektnummer: 28408
Ausstattung: Garage Tiefgarage Parkplatz

Preisinformationen

Kaufpreis:
25.000 €
Vermittlungsprovision:
Ja
Provision:
4% des Kaufpreises zzgl. 20% USt.

Fakten

Objektnummer:
28408
Objekttyp:
Parken
Baujahr:
2015
Neubau:
Ja
Zustand:
Gepflegt
Verfügbarkeit:
Verfügbar

Beschreibung

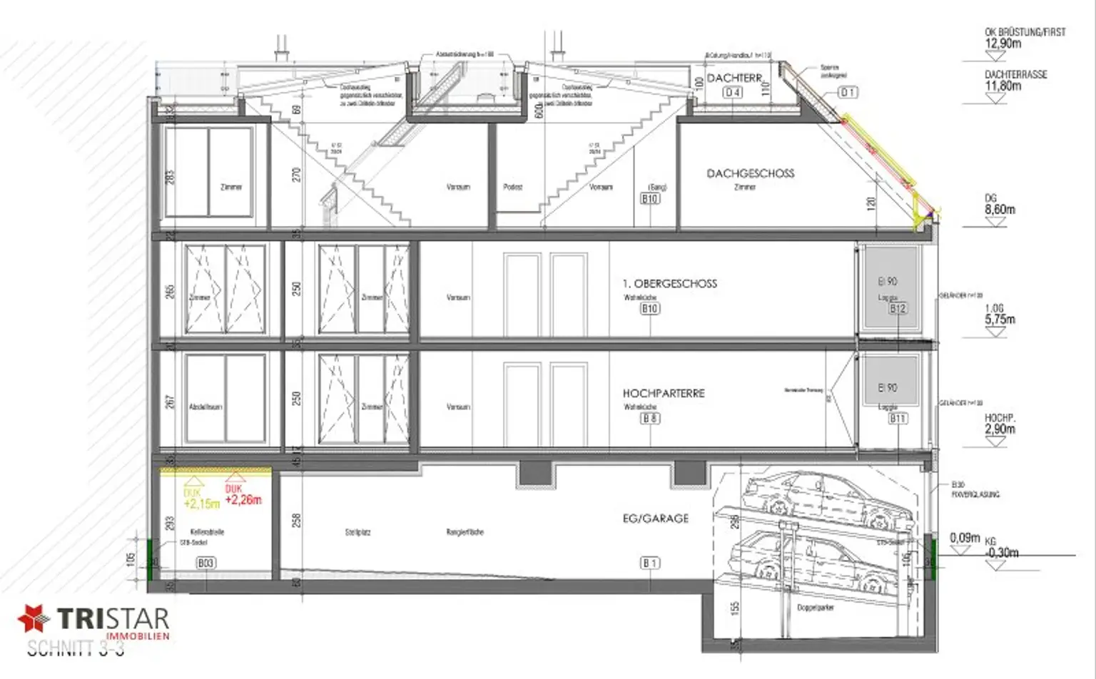
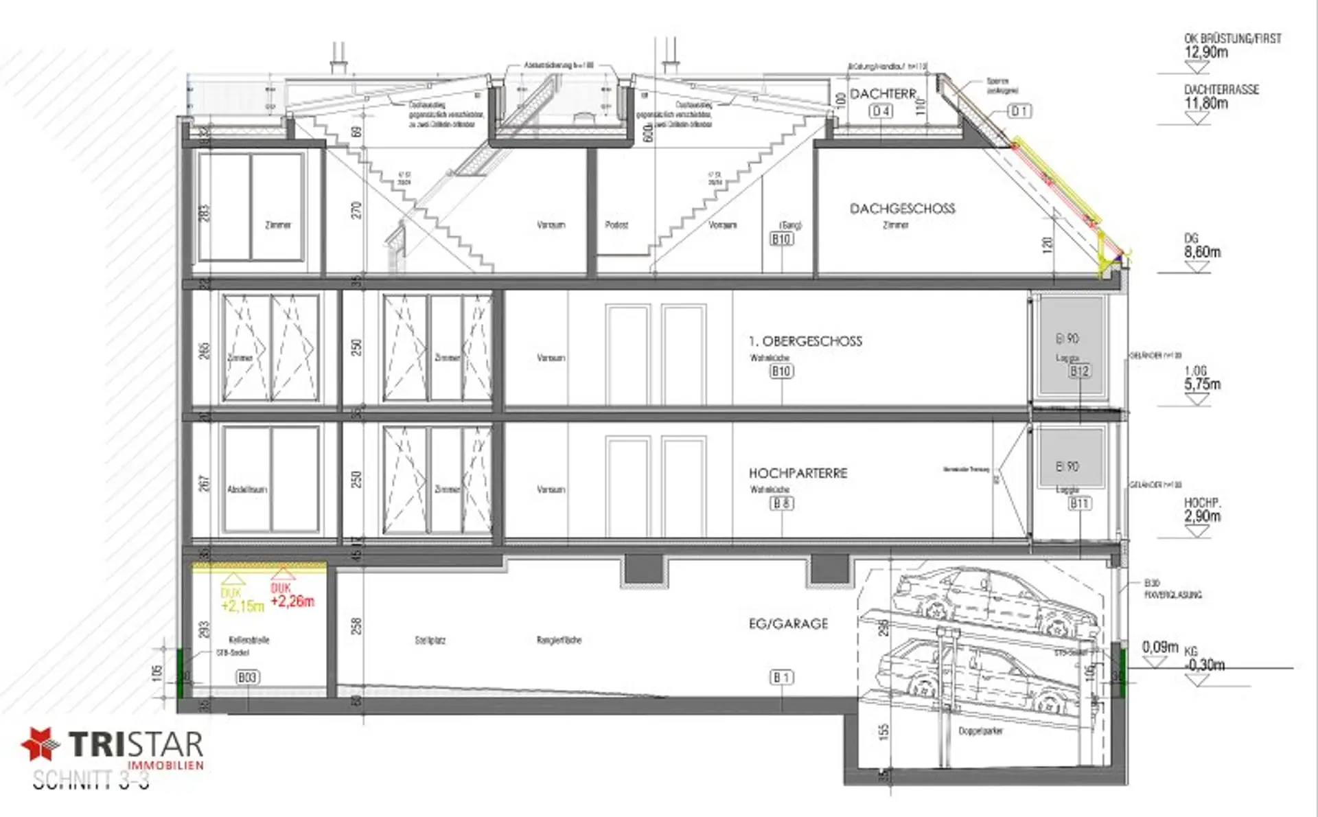
Zum Verkauf gelangen 2 PKW-Garagenplätze in einem Neubau (BJ 2015) in 1130 Wien.

Die Garagenplätze Nr. 2 und Nr. 6 befinden sich im Erdgeschoss eines Neubauhauses in der Hofwiesengasse, sind Stapelparkplätze und verfügen über eine komfortable Zufahrt von der Straße (siehe Fotos).

Der Kaufpreis beträgt EUR 25.000 pro Stellplatz (Eigentum, lastenfrei).

Wir weisen darauf hin, dass zwischen dem Vermittler und dem zu vermittelnden Dritten ein familiäres oder wirtschaftliches Naheverhältnis besteht.

Der Vermittler ist als Doppelmakler tätig.
Beschreibung weiterlesen

Lage und Verkehrsanbindung

1130 Wien, Hofwiesengasse

Grundrisse

Lageplan

1130 Wien | Wien 13., Hietzing

Lade...
TRISTAR Immobilien

TRISTAR Immobilien
Immobilienmakler

TRISTAR Immobilien

Lade...

Fotomix

Bild 1 Bild 2 Bild 3 Bild 4 Bild 5 Bild 6