NEU - ++NEU++ Sanierungsbedürftige 4-Zimmer Altbauwohnung mit Terrasse in fantastischer Lage!

Wohnung zum Kauf in 1200 Wien - Kaufpreis: 499.000 € / Objektnummer: 60780
Ausstattung: Boden Fahrstuhl Zentralheizung Terrasse WG geeignet

Preisinformationen

Kaufpreis:
499.000 €
Betriebskosten netto:
180,80 € / Monat
Vermittlungsprovision:
Ja
Provision:
3% des Kaufpreises zzgl. 20% USt.

Fakten

Objektnummer:
60780
Objekttyp:
Wohnung
Terrasse:
1
Wohnfläche:
88 m²
Zimmer:
4
Badezimmer:
1
Toilette:
1
Stockwerk:
1
Altbau:
Ja
Zustand:
Sanierungsbedürftig
Verfügbarkeit:
Verfügbar

Beschreibung

4-ZIMMER-ALTBAUWOHNUNG IN 1200 WIEN

Ca. 88 m² | Sanierungsbedürftig | EUR 499.000,-

-------------

BESICHTIGUNGSTERMIN

Bitte senden Sie uns _jedenfalls eine schriftliche Anfrage_ zur Vereinbarung eines Besichtigungstermins.
_Wir antworten verlässlich am selben Tag!_

-------------

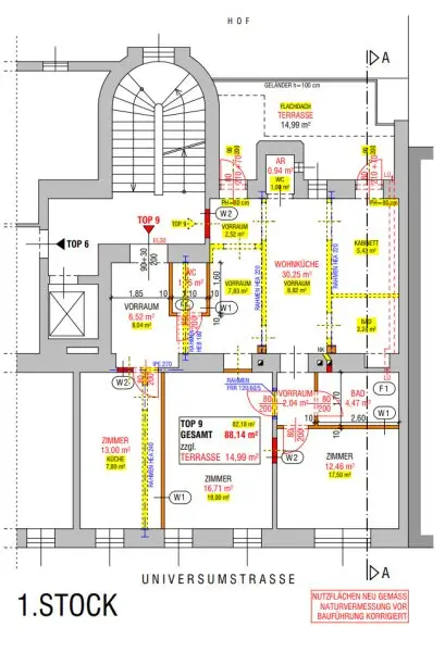
RAUMAUFTEILUNG – TOP 09 | 1. OBERGESCHOSS

*
Vorraum

*
Küche

*
Vorzimmer

*
Badezimmer

*
Zimmer

*
Zimmer

*
Kabinett

*
Terrasse

_(siehe Grundrissplan und Fotos)_

-------------

AUSSTATTUNG

Die Wohnung ist sanierungsbedürftig und wird im aktuellen Zustand verkauft – _wie sie liegt und steht_.

-------------

ZUSTAND DES HAUSES / ALLGEMEINFLÄCHEN

Vor wenigen Jahren wurde im Haus das Dachgeschoss ausgebaut. In diesem Zuge wurde ein Aufzug eingebaut sowie die Fassade und das Stiegenhaus saniert.

-------------

LAGE & INFRASTRUKTUR – UNIVERSUMSTRASSE, 1200 WIEN

Der 20. Bezirk gilt als aufstrebend und zugleich noch leistbar – ideal für Eigennutzer oder Anleger.

ÖFFENTLICHE VERKEHRSANBINDUNG:

*
U6 – Station Dresdner Straße (nur wenige Gehminuten)

*
Straßenbahnen: Linie 2 & 31

*
Bus: Linie 11A

*
Mit dem Auto: gute Anbindung über Handelskai und Dresdner Straße

NAHVERSORGUNG & FREIZEIT:

*
Zahlreiche Geschäfte des täglichen Bedarfs, Restaurants, Banken und Ärzte in der Umgebung

*
Donauufer mit Naherholungsgebiet fußläufig erreichbar

*
Millennium City in Gehdistanz

*
Nähe zur FH Technikum Wien – attraktiv auch für StudentInnen

 

-------------

KAUFPREIS

EUR 499.000,- lastenfrei

RRL-Guthaben per 11.03.2025: € 16.777,20.

 

VERTRAGSERRICHTER

Mag. Markus Wieneroiter
Kosten: _1,5 % des Kaufpreises + Barauslagen + 20 % USt_

 

Sollten Sie Fragen haben oder einen persönlichen Gesprächstermin wünschen, zögern Sie bitte nicht mich zu kontaktieren.

Zur Vereinbarung eines Besichtigungstermins lassen Sie uns bitte jedenfalls eine E-Mailanfrage zukommen!

Bitte achten Sie darauf, dass Sie diese Immobilie, nach Ihrer Anfrage bei Adonia Immobilien, nicht auch bei einem anderen Immobilienmaklerbüro anfragen! Vielen Dank!

Vielen Dank an unsere Kunden! Unser Unternehmen wurde bereits zum Besten Start Up und erneut als Qualitätsmakler 2018 ausgezeichnet!

Wir weisen ausdrücklich auf unser wirtschaftliches Naheverhältnis mit dem Abgeber/ der Abgeberin hin!  Unsere gesetzlichen Pflichten als Doppelmakler werden dadurch jedoch nicht beeinträchtigt. Irrtum und Änderungen vorbehalten.

Alle hier veröffentlichen Informationen basieren auf den uns von dem Abgeber/ der Abgeberin zur Verfügung gestellten Informationen und wurden nicht selbst erhoben.

Der Schutz von personenbezogenen Daten ist uns wichtig und auch gesetzlich gefordert. Die Verarbeitung Ihrer personenbezogenen Daten erfolgt nach den datenschutzrechtlichen Bestimmungen. Auf unserer Homepage (unter Datenschutzinformation) finden Sie eine Übersicht die Sie über die wichtigsten Aspekte der Verarbeitung personenbezogener Daten informieren soll.

Wir weisen darauf hin, dass zwischen dem Vermittler und dem zu vermittelnden Dritten ein familiäres oder wirtschaftliches Naheverhältnis besteht.

Der Vermittler ist als Doppelmakler tätig.

Infrastruktur / Entfernungen

Gesundheit
Arzt <500m
Apotheke <500m
Klinik <500m
Krankenhaus <500m

Kinder & Schulen
Schule <1.000m
Kindergarten <500m
Universität <1.000m
Höhere Schule <1.500m

Nahversorgung
Supermarkt <500m
Bäckerei <500m
Einkaufszentrum <1.000m

Sonstige
Geldautomat <500m
Bank <500m
Post <500m
Polizei <500m

Verkehr
Bus <500m
U-Bahn <500m
Straßenbahn <500m
Bahnhof <500m
Autobahnanschluss <1.500m

Angaben Entfernung Luftlinie / Quelle: OpenStreetMap
Beschreibung weiterlesen

Lage und Verkehrsanbindung

Universumstraße

Energieeffizienz

HWB:
30 kWh/(m²*a)
fGEE:
0,91
Energieausweisart:
Energiebedarfs-ausweis

Grundriss

Lageplan

1200 Wien | Wien 20., Brigittenau

Lade...
Luca Schelodetz

Luca Schelodetz
behördlich konzessionierter Immobilienmakler

Adonia Realitätenvermittlung GmbH

Lade...

Fotomix

Bild 1 Bild 2 Bild 3 Bild 4 Bild 5 Bild 6 Bild 7 Bild 8 Bild 9 Bild 10 Bild 11 Bild 12 Bild 13 Bild 14 Bild 15 Bild 16 Bild 17 Bild 18 Bild 19 Bild 20 Bild 21 Bild 22 Bild 23 Bild 24