NEU - Neubau 4-Zimmergartenwohnung zum Sensationspreis mit Top-Qualität! Graz-Puntigam!

Wohnung zum Kauf in 8055 Graz-Puntigam - Kaufpreis: 359.700 € / Objektnummer: 1746
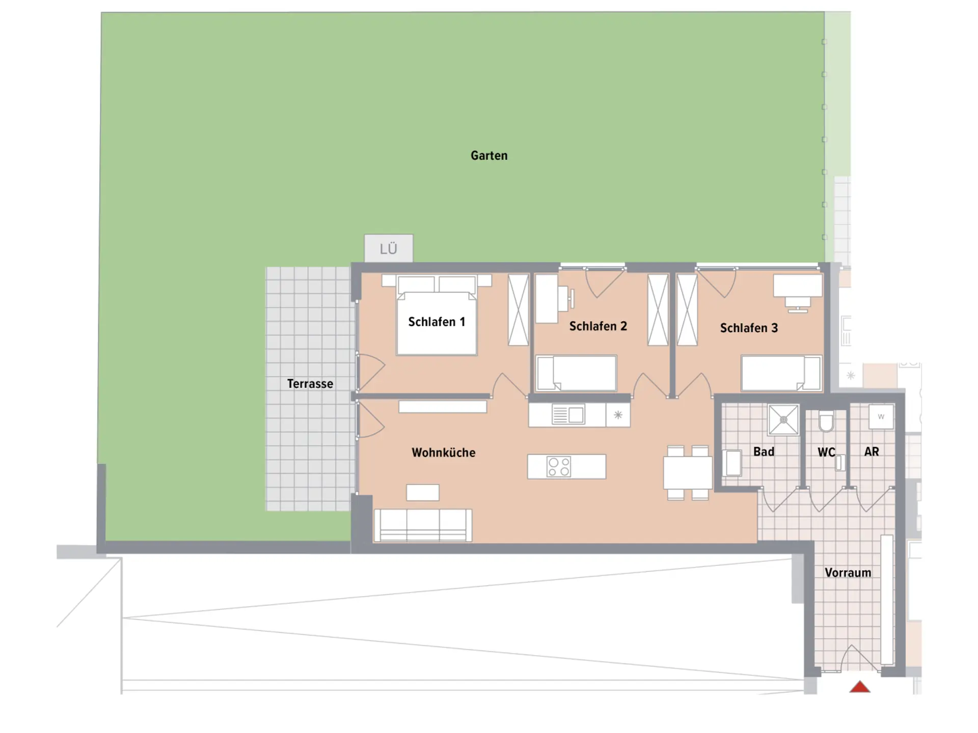
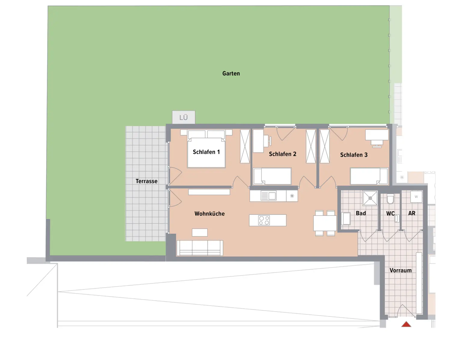
Ausstattung: Fahrstuhl Kabel/Satelliten-TV Etagenheizung Terrasse Garten
project-rhw-bild2-willh
project-Ruthardweg-bild1-willh
project-rhw-top01-floorplan-willh

Preisinformationen

Kaufpreis:
359.700 €

Fakten

Objektnummer:
1746
Objekttyp:
Wohnung
Terrasse:
1
Wohnfläche:
84,31 m²
Gartenfläche:
139,17 m²
Zimmer:
4
Badezimmer:
1
Toilette:
1
Baujahr:
ca. 2028
Zustand:
Erstbezug
Verfügbarkeit:
Verfügbar

Beschreibung

PROVISIONSFREI FÜR KÄUFER!
BAUBEGINN FRÜHJAHR/SOMMER 2026 - FRÜHJAHR 2028
WEITERE INFORMATIONEN GERNE AUF ANFRAGE

Neubauprojekt in Graz-Puntigam – Leistbares Wohnen am Ruthardweg in zweiter Reihe zur Triesterstraße nahe Cineplexx Kino!

In Graz-Puntigam entsteht ein modernes Neubauprojekt der Chronos Wohnbaugruppe mit 35 Eigentumswohnungen sowie einer Tiefgarage. Die Wohnungsgrößen reichen von 42 m² bis 118 m² und bieten die passende Lösung für Singles, Paare und Familien.
Chronos setzt bewusst auf faire Preise, um Wohnen in Graz wieder leistbar zu machen.


Zur Wohnung:
4-Zimmer-Gartenwohnung mit großzügigem Außenbereich:
Diese attraktive Wohnung bietet 84,31 m² Wohnfläche mit optimal geschnittenen Räumen für Paare oder Familien.
Das Highlight ist der großzügige Außenbereich: eine 13 m² große Terrasse sowie ein eingezäunter Eigengarten mit 139 m², der viel Platz zum Entspannen, Spielen und Garteln bietet. Alle Wohnungen werden hochwertig mit Eichenparkett, Feinsteinzeugfliesen sowie Raffstores (Sonnenschutz) ausgeführt.


Highlights des Projekts:
- 35 Neubauwohnungen von 42 m² bis 118 m²
- Jede Einheit mit Balkon oder Terrasse mit Eigengarten
- Tiefgarage im Haus
- Ruhige Lage in zweiter Reihe zur Triesterstraße
- Leistbares Wohnen durch faire Preisgestaltung


Lage & Infrastruktur:
Das Gebäude befindet sich zurückversetzt von der Triesterstraße und ist dadurch angenehm ruhig gelegen.
- Einkaufsmöglichkeiten direkt in der Nähe, u. a. ein Billa Plus fußläufig erreichbar
- Center West nur wenige Autominuten entfernt
- Sehr gute öffentliche Anbindung mit Straßenbahn, Bus und Zug
- Naherholungsgebiet an der Mur: ideal zum Joggen, Radfahren oder Spazieren


Chronos Wohnbau Gruppe – Wir machen Wohnen wieder leistbar!


Grundrisse können vor dem Baubeginn noch auf Ihre Wünsche angepasst werden. Nutzen Sie diese Chance!
Angaben gemäß gesetzlichem Erfordernis:
Heizwärmebedarf: 35.0 kWh/(m²a)
Klasse Heizwärmebedarf: B
Faktor Gesamtenergieeffizienz: 0.82
Beschreibung weiterlesen

Energieeffizienz

HWB:
35 kWh/(m²*a)
HWB Klasse:
B
fGEE:
0,82
Energieausweisart:
Energiebedarfs-ausweis
Patrick Guldenbrein

Patrick Guldenbrein

Immo-Real GmbH

Lade...

Fotomix

project-rhw-bild2-willh project-Ruthardweg-bild1-willh project-rhw-top01-floorplan-willh