NEU - NEUBAU - ERSTBEZUG - Top 20 - Wunderschöne 2 Zimmerwohnung mit großem Balkon und eigenem Tiefgaragenplatz

Wohnung zur Miete in 4600 Wels - Gesamtmiete: 950,72 € / Objektnummer: 1965
Ausstattung: Barrierefrei Boden Fahrstuhl Wohnküche / offene Küche Bad Tiefgarage Parkplatz Fußbodenheizung Balkon

Preisinformationen

Gesamtmiete:
950,72 € / Monat
Kaution:
3.500,00 €
Provision:
Gemäß Erstauftraggeberprinzip bezahlt der Abgeber die Provision.

Fakten

Objektnummer:
1965
Objekttyp:
Wohnung
Balkon:
1
Balkonfläche:
11,96 m²
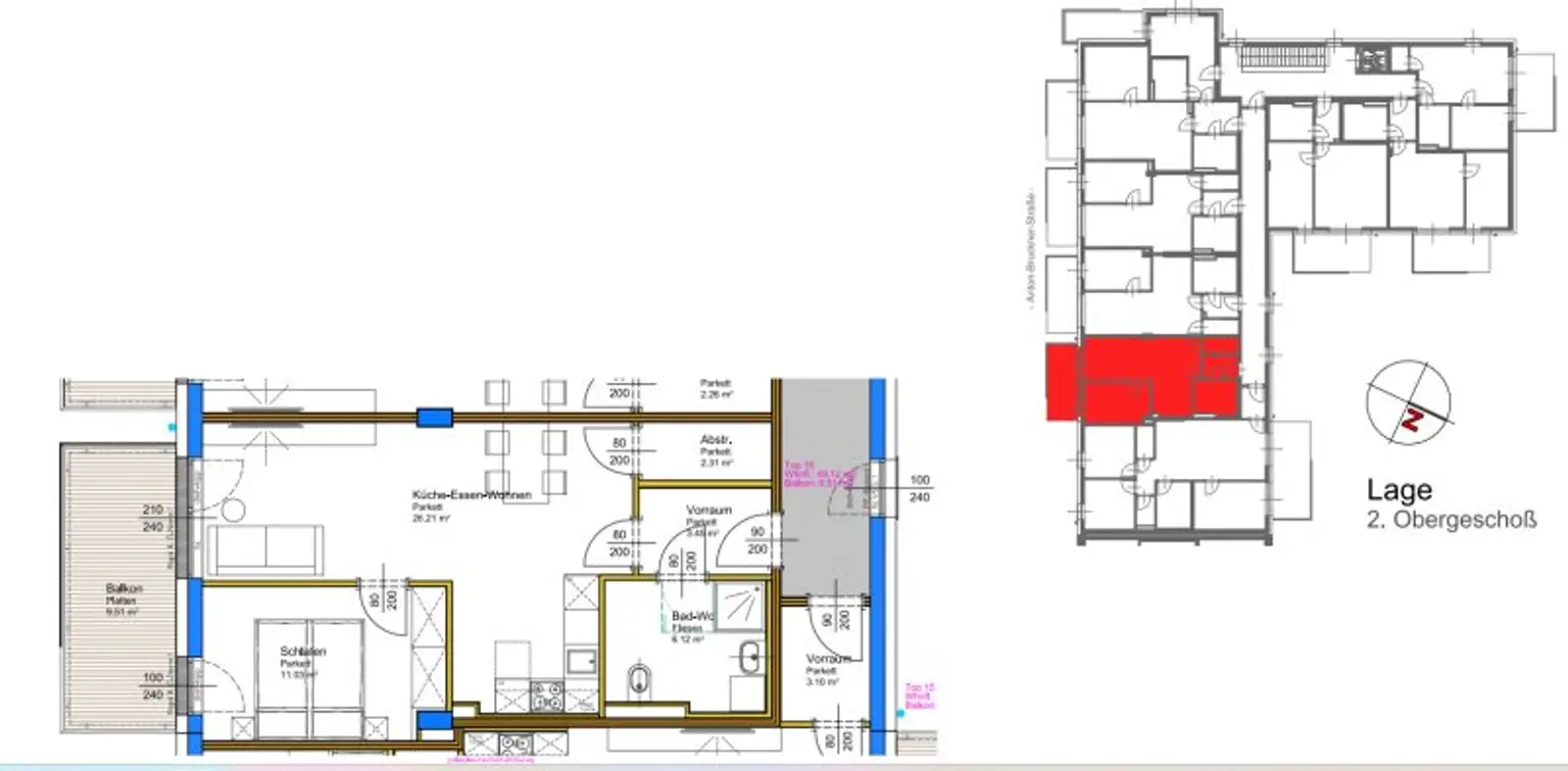
Wohnfläche:
50,93 m²
Zimmer:
2
Baujahr:
2026
Neubau:
Ja
Zustand:
Erstbezug
Verfügbarkeit:
Verfügbar

Beschreibung

Im angegebenen Mietzins für die Top 20 von € 950,72 brutto sind sämtliche Betriebs- und Heizkosten sowie ein eigener Tiefgaragenplatz enthalten.

Stromkosten extra

Kaution: € 3500,-

In der Anton Bruckner Straße 9-11 wird derzeit ein Neubau mit wunderschönen, barrierefreien Wohnungen errichtet.

Beste, innere Neustadtlage in unmittelbarer Nähe zum Klinikum Wels und dem Welser Bahnhof, sämtliche Einkaufsmöglichkeiten sind fußläufig gut erreichbar.

Es werden Eichen-Parkettböden verlegt, Fußbodenheizung durch Fernwärme ( jeder Wohnraum ist einzeln regelbar ), Vorraum und Badezimmer mit schönen Fliesen.

Moderne Marken - Einbauküchen inklusive Geräte ( ablösefrei ), Außenrollläden, Bäder mit großer Dusche und Waschmaschinenanschluss.

Bau- und Ausstattungsbeschreibung befindet sich im Anhang!

Jeder Wohnung ist ein eigenes Kellerabteil zugeteilt, Freiflächen wie z.B. Fahrradabstellplatz und Müllraum sind zur Allgemeinnutzung vorhanden.

Verfügbar zur Miete ( Mietbeginn Mai 2026 ) sind Zweizimmerwohnungen und eine Dreizimmerwohnung, Grundrisse im Anhang.

Wohnflächen der Zweizimmerwohnungen zwischen ca. 40m² und ca. 56m².

Alle Wohnungen verfügen über große Balkone, 2 der Zweizimmerwohnungen im Erdgeschoss ebenfalls über Terrasse und Garten.

Die Mietpreise belaufen sich ab € 788,17 brutto ( ab Wfl. ca. 40m² + Balkon ) bis € 1266,23 brutto ( Wfl. ca. 77m² + Terrasse + Garten ).

In den angegebenen Preisen sind sämtliche Betriebs- und Heizkosten sowie ein eigener Tiefgaragenplatz enthalten ( Vermietung ausschließlich inklusive TG-Platz ).

Preise der einzelnen Wohnungen auf Anfrage

Stromkosten extra! 

Kautionen: € 3000,- / € 3500,- / € 4000,- / Gebühr f. Mietvertragserrichtung € 180,- brutto ( einmalige Zahlung )

Der Immobilienmakler erklärt, dass er – entgegen dem in der Immobilienwirtschaft üblichen Geschäftsgebrauch des Doppelmaklers – einseitig nur für den Vermieter tätig ist.

Infrastruktur / Entfernungen

Gesundheit
Arzt <125m
Apotheke <200m
Klinik <400m
Krankenhaus <425m

Kinder & Schulen
Schule <125m
Kindergarten <100m
Universität <1.000m

Nahversorgung
Supermarkt <75m
Bäckerei <150m
Einkaufszentrum <1.600m

Sonstige
Bank <225m
Geldautomat <225m
Post <200m
Polizei <1.125m

Verkehr
Bus <75m
Autobahnanschluss <1.650m
Bahnhof <500m
Flughafen <1.800m

Angaben Entfernung Luftlinie / Quelle: OpenStreetMap
Beschreibung weiterlesen

Lage und Verkehrsanbindung

Nähe Bahnhof / Klinikum

Bahnhof / Klinikum

Dokumente

Lageplan

4600 Wels | Wels (Stadt)

Lade...
Annemarie Gstöttner

Annemarie Gstöttner

Kramer Immobilien

Lade...

Fotomix

Bild 1 Bild 2 Bild 3 Bild 4 Bild 5 Bild 6 Bild 7 Bild 8 Bild 9 Bild 10 Bild 11 Bild 12