NEU - NEUBAU Kleinwohnanlage mit 2 Häusern und 8 Wohnungen in Waidmannsdorf - Schubertstraße / ERSTBEZUG

Projekt / Wohnung zum Kauf in 9020 Klagenfurt am Wörthersee / Objektnummer: 1273652
Ausstattung: Boden Wohnküche / offene Küche Bad Kabel/Satelliten-TV Fernwärme Zentralheizung Fußbodenheizung

Preisinformationen

Fakten

Objektnummer:
1273652
Objekttyp:
Wohnung
Baujahr:
2026
Neubau:
Ja
Zustand:
Erstbezug
Verfügbarkeit:
Verfügbar
Verfügbar ab:
2027

Beschreibung

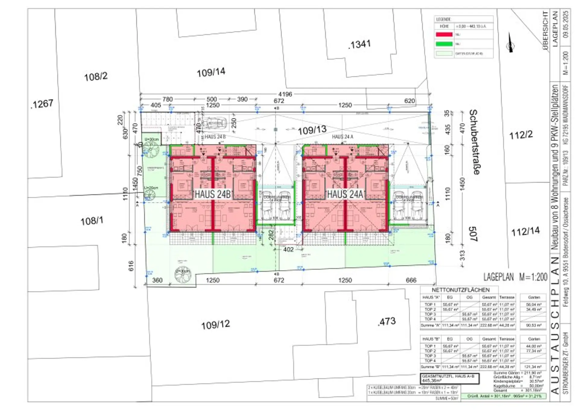
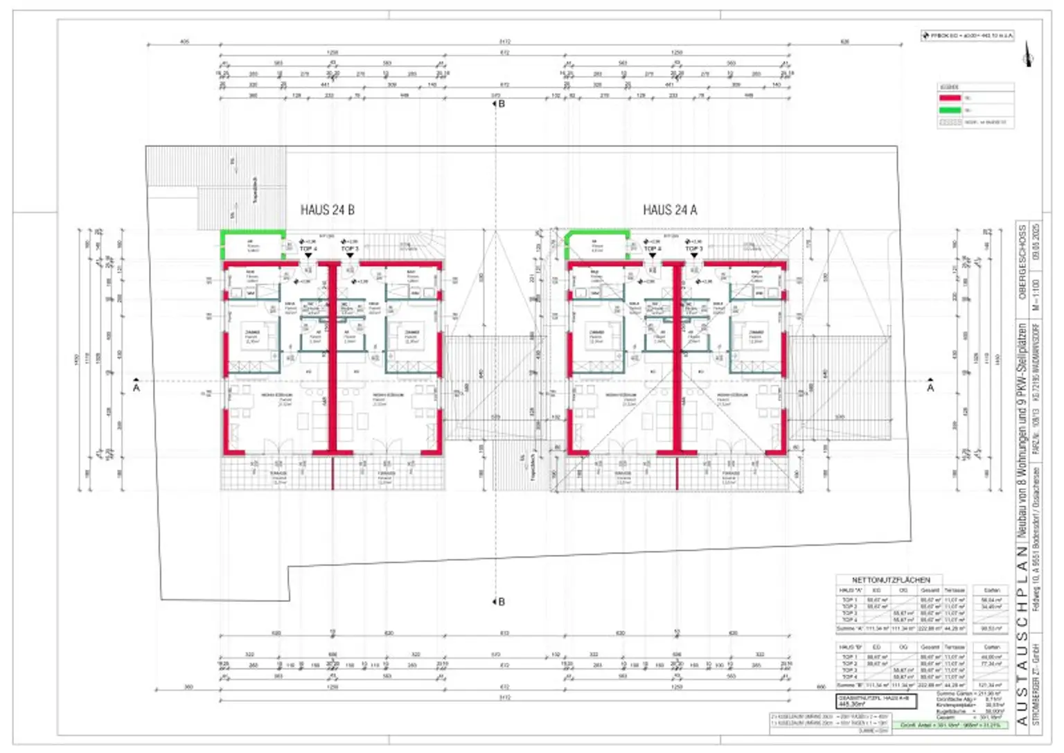
NEUBAU KLEINWOHNANLAGE MIT 2 HÄUSERN UND 8 WOHNUNGEN IN WAIDMANNSDORF - SCHUBERTSTRASSE / ERSTBEZUG

Lage:

Die NEUBAU-Wohnanlage befindet sich in der attraktiven Wohngegend in Waidmannsdorf, geprägt von Einfamilienhäuser und durch eine ausgezeichnete Infrastruktur.

BAUADRESSE befindet sich in der Schubertstraße 24A und 24B, 9020 Klagenfurt am Wörthersee.

Nähe:

Schulen, Ärzte, Einkaufsmöglichkeiten und Freizeitmöglichkeiten befinden sich alle in unmittelbarer Nähe, dennoch überzeugt diese Wohnhausanlage durch die ruhige, sowie sonnige Lage und gute Anbindung zum Wörthersee, Universität Klagenfurt und das Stadtzentrum.

Wohn-/Nutzfläche ca.:

2 Wohnhäuser mit je 4 Wohnungen - Baubewilligtes Projekt!

HAUS A (Walmdach)

* TOP 1 = 55,67m² plus 11,07m² Terrasse plus 56,04m² Eigengarten
* TOP 2 = 55,67m² plus 11,07m² Terrasse plus 34,49m² Eigengarten
* TOP 3 = 55,67m² plus 11,07m² Balkon (1.OG)
* TOP 4 = 55,67m² plus 11,07m² Balkon (1.OG)

 

HAUS B (Flachdach)

* TOP 1 = 55,67m² plus 11,07m² Terrasse plus 44,00m² Eigengarten
* TOP 2 = 55,67m² plus 11,07m² Terrasse plus 77,34m² Eigengarten
* TOP 3 = 55,67m² plus 11,07m² Balkon (1.OG)
* TOP 4 = 55,67m² plus 11,07m² Balkon (1.OG)

Baujahr: NEUBAU 2026/2027 in Ziegel-Massivbauweise

Stockwerk: Erdgeschoss und 1. Obergeschoss

Lift: Nein

Beschreibung:

In der Schubertstraße 25A und 25B entstehen 2 NEUBAU-Wohnhäuser (Kleinwohnhausanlage) mit je 4 modernen 2 Zimmer Wohnungen. Die neue Wohnhausanlage überzeugt durch attraktive Gartenwohnungen mit Terrasse im Erdgeschoss und moderne, sonnige Balkonwohnungen im 1. Obergeschoss. Je nach gewählter Wohneinheit genießen Sie die Privatsphäre Ihres eigenen Gartens oder sonnige Stunden auf Ihrem Balkon. Alle Wohneinheiten werden schlüsselfertig mit hochwertig ausgewählter Ausstattung übergeben. Die Heizung erfolgt mittels Fußbodenheizung über die Fernwärme und das Warmwasser wird zentral ebenfalls über die Fernwärme aufbereitet. Die Ausstattung und die technischen Details können sich ändern!
Stellplätze: Garagenplatz (Hebeanlage) € 22.500 pro PKW-Stellplatz

Zimmer: 2

Böden: Eichenparkett (gebürstet und geölt) und Fliesenböden

Fenster: Kunststofffenster (3-fach Verglasung) mit Außen-Raffstore

Heizung: Die Heizung erfolgt mittels Fußbodenheizung über die Fernwärme

Bad: Mit Dusche und Fenster

Möblierung: Keine

Zustand: NEUBAU 2026/2027

Baubeginn: Ab Juli 2026 & Beziehbar ab Herbst 2027

KAUFPREISE:

 

HAUS A (Walmdach)

* TOP 1 = € 332.000
* TOP 2 = € 332.000
* TOP 3 = € 312.000
* TOP 4 = € 312.000

 

HAUS B (Flachdach)

* TOP 1 = € 332.000 (Reserviert!)
* TOP 2 = € 332.000 (Reserviert!)
* TOP 3 = € 312.000
* TOP 4 = € 312.000

Verkauf: NEUHAUSER IMMOBILIEN, Siebenhügelstraße 107, 9020 Klagenfurt am Wörthersee, Vermittlungsprovision 3,0% zzgl. 20% USt. (3,6% vom Kaufpreis)

Notar & Treuhänder: NOTAR Dr. Wolfgang MILZ & Partner, Widmanngasse 43, 9500 Villach, Nach Bauträgervertragsgesetz (BTVG)

Finanzierung: INFINA-Partner, 9020 Klagenfurt am Wörthersee

Sonstiges: Flächenangaben und Ausstattung können sich ändern!

Vermittlungshonorar: 3,0% vom Kaufpreis zzgl. 20% USt.

Kaufnebenkosten:
3,5% Grunderwerbssteuer
1,1% Grundbucheintragungsgebühr (Eigentumsrecht)
3,0% zzgl. 20% USt. Maklerhonorar
2,0% Kaufvertragskosten laut Notartarif zzgl. 20% USt.
0,1% Barauslagen für Beglaubigungen
1,2% Eintragung des Darlehens ins Grundbuch

Ansprechpartner:

Manfred NEUHAUSER
T: +43 (0) 664.400 77 70
Wir freuen uns auf Ihren Anruf!
-----------------

weitere Angebote unter:

www.neuhauser-immobilien.at [http://www.neuhauser-immobilien.at]
NEUHAUSER IMMOBILIEN KLAGENFURT
-----------------

SIE WOLLEN...
Ihre Immobilie verkaufen oder bewerten lassen, dann sind Sie bei uns um HÄUSER besser dran! Einfach anrufen!

WIDERRUFSRECHT/RÜCKTRITTSRECHT BEI FERN- UND AUSWÄRTSGESCHÄFTEN:
Der Interessent/in wünscht mit der Kontaktaufnahme ein vorzeitiges Tätigwerden des Immobilienbüros NEUHAUSER IMMOBILIEN, Siebenhügelstrasse 107, 9020 Klagenfurt am Wörthersee innerhalb der offenen Rücktrittsfrist und nimmt zur Kenntnis, dass er damit bei vollständiger Vertragserfüllung (Namhaftmachung) das Rücktrittsrecht vom Maklervertrag gem. § 11  FAGG verliert. Eine Pflicht zur Zahlung der Provision besteht aber erst nach Zustandekommen des vermittelten Geschäfts (Kaufvertrag, Mietvertrag) aufgrund der verdienstlichen, kausalen Tätigkeit des Maklers.

ALLGEMEINER HINWEIS:
Die Firma NEUHAUSER IMMOBILIEN, Siebenhügelstrasse 107, 9020 Klagenfurt am Wörthersee ist beauftragt, die oben genannte Immobilie zu vermitteln. Alle Angaben, speziell wie, Flächen, Baujahr, Zustand, Beschaffenheit und Ertrag, etc. sind ohne Gewähr und basieren ausschließlich auf Informationen, die uns von unserem Auftraggeber übermittelt wurden. Wir übernehmen keine Gewähr für die Vollständigkeit, Richtigkeit und Aktualität dieser Angaben. Änderungen, Irrtümer und Zwischenverkauf bleiben vorbehalten. Die Weitergabe und Vervielfältigung dieses Exposees an Dritte ohne unsere Zustimmung löst gegebenenfalls Vermittlungshonorar- bzw. Schadensersatzansprüche aus. Im Übrigen gelten unsere Allgemeinen Geschäftsbedingungen (AGB) lt. Exposé der Firma NEUHAUSER IMMOBILIEN.

Der Vermittler ist als Doppelmakler tätig.

Infrastruktur / Entfernungen

Gesundheit
Arzt <500m
Apotheke <500m
Krankenhaus <1.000m
Klinik <1.000m

Kinder & Schulen
Schule <500m
Kindergarten <500m
Universität <1.500m
Höhere Schule <1.500m

Nahversorgung
Supermarkt <500m
Bäckerei <500m
Einkaufszentrum <2.500m

Sonstige
Bank <500m
Geldautomat <500m
Post <500m
Polizei <500m

Verkehr
Bus <500m
Autobahnanschluss <2.000m
Bahnhof <500m
Flughafen <5.500m

Angaben Entfernung Luftlinie / Quelle: OpenStreetMap
Beschreibung weiterlesen

Lage und Verkehrsanbindung

Nähe Uni- und Wörthersee

Uni- und Wörthersee

Energieeffizienz

HWB:
30 kWh/(m²*a)
HWB Klasse:
B
fGEE:
0,69
fGEE Klasse:
A+
Energieausweisart:
Energiebedarfs-ausweis
Gültig bis:
14.01.2035

Dokumente

Grundrisse

Lageplan

9020 Klagenfurt am Wörthersee | Klagenfurt Land

Lade...
Manfred NEUHAUSER

Manfred NEUHAUSER
Geschäftsinhaber

NEUHAUSER IMMOBILIEN

Lade...

Fotomix

Bild 1 Bild 2 Bild 3 Bild 4 Bild 5