NEU - Neubauprojekt - Nungessergasse | 3 Zimmer | Loggia & Balkon | Belagsfertig | inkl. PKW-Stellplatz | TOP 5

Wohnung zum Kauf in 2700 Wiener Neustadt - Kaufpreis: 346.850 € / Objektnummer: 492
Ausstattung: Barrierefrei Fahrstuhl Kabel/Satelliten-TV Parkplatz Außenparkplatz Zentralheizung Fußbodenheizung Balkon Loggia

Preisinformationen

Kaufpreis:
346.850 €
Vermittlungsprovision:
Ja
Provision:
3% des Kaufpreises zzgl. 20% USt.

Fakten

Objektnummer:
492
Objekttyp:
Wohnung
Balkon:
1
Loggia:
1
Balkonfläche:
10,18 m²
Keller Fläche:
1,9 m²
Wohnfläche:
83,1 m²
Loggia Fläche:
8,17 m²
Zimmer:
3
Badezimmer:
1
Toilette:
1
Stockwerk:
1
Neubau:
Ja
Verfügbarkeit:
Verfügbar

Beschreibung

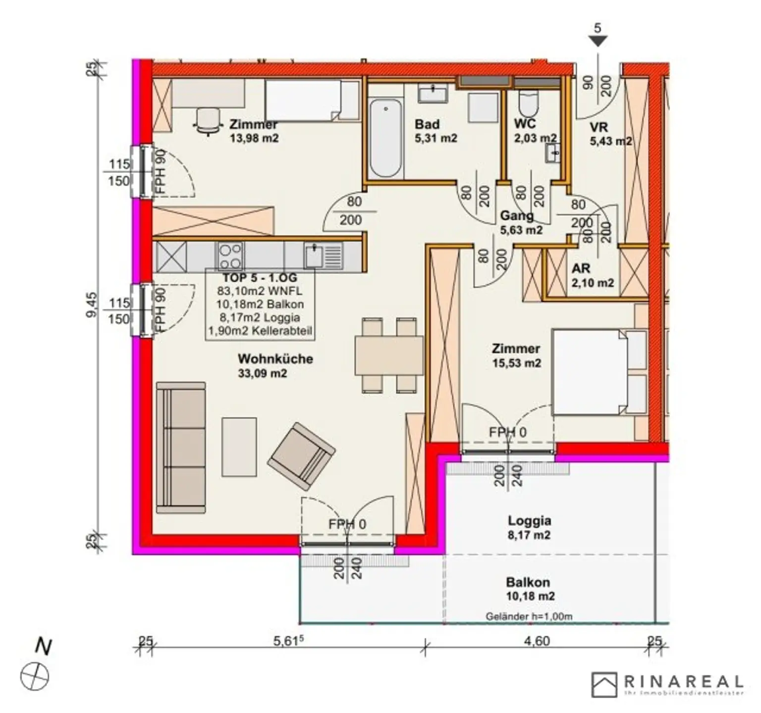
Zum Verkauf gelangt eine gut geschnittene 3 Zimmer Wohnung mit Loggia & Balkon im 1. Liftstock dieses modernen Neubau-Projekts in Wr. Neustadt - Nungessergasse / Illnergasse!

 

Es stehen Ihnen 83 m² Wohnfläche, sowie ca. 18 m² Loggia/Balkon zur Verfügung.

Die Heizung erfolgt mit einer zentralen Luft-Wasserwärmepumpe in Kombination mit einer Photovoltaikanlage, die Wärmeabgabe in der Wohnung über eine Fußbodenheizung.

Raumaufteilung:

* Vorraum
* Wohnküche mit Ausgang auf die Loggia/Balkon (Ausrichtung S)
* Schlafzimmer - ebenso mit Ausgang auf die Loggia/Balkon
* Kinderzimmer / Büro
* Badezimmer mit WM-Anschluss
* separates WC mit Anschluss für Handwaschbecken
* Abstellraum

 

Im Kaufpreis inbegriffen ist ein Abstellplatz für Ihren PKW!

 

Weitere Annehmlichkeiten: Leerverrohrung Klimaanlage vorhanden | Kunststofffenster mit dreischaliger Isolierverglasung | zugehöriges Kellerabteil | Kinderwagenabstellraum | Fahrradabstellmöglichkeit | Kinderspielplatz | Personenlift vorhanden (barrierefrei) | uvm.

 

Ausführungsform: belagsfertig  |  _Angebot schlüsselfertig: gerne auf Anfrage!_

 

Voraussichtlicher Baubeginn: Q2 / 2026 – _bei entsprechender Vorverwertung_

Bauzeit: ca. 18 Monate

 

In dieser Wohnhausanlage stehen noch weitere Wohnungen zum Verkauf - nähere Details finden Sie auf unserer Homepage [https://www.rinareal.at/wohnbauprojekt/11909784].

 

Für nähere Informationen erreichen Sie mich am besten unter: +43 664 14 24 164 oder katharina@rinareal.at - Katharina Hlawaty, MA

 

 

_Die Angaben erfolgen aufgrund der Informationen und Unterlagen, die uns vom Eigentümer und/oder Dritten zur Verfügung gestellt wurden und sind ohne Gewähr. _

Wir weisen darauf hin, dass zwischen dem Vermittler und dem zu vermittelnden Dritten ein familiäres oder wirtschaftliches Naheverhältnis besteht.

Der Vermittler ist als Doppelmakler tätig.

Infrastruktur / Entfernungen

Gesundheit
Arzt <1.500m
Apotheke <1.500m
Klinik <3.000m
Krankenhaus <2.000m

Kinder & Schulen
Schule <500m
Kindergarten <1.500m
Höhere Schule <2.500m
Universität <1.500m

Nahversorgung
Supermarkt <1.000m
Bäckerei <1.500m
Einkaufszentrum <1.500m

Sonstige
Bank <500m
Geldautomat <500m
Post <500m
Polizei <500m

Verkehr
Bus <500m
Autobahnanschluss <4.000m
Bahnhof <1.000m
Flughafen <500m

Angaben Entfernung Luftlinie / Quelle: OpenStreetMap
Beschreibung weiterlesen

Lage und Verkehrsanbindung

Durch die optimale Lage des Wohnhauses bietet diese auch eine tolle Anbindung an das öffentliche Verkehrsnetz. In ca. 300 m Entfernung befindet sich eine Haltestelle der Buslinien 3 und 6, mit der Sie zum Bahnhof Wr. Neustadt Nord gelangen. In direkter Umgebung finden Sie zahlreiche Nahversorger wie Lebensmittelanbieter (Billa, Spar, Hofer, Lidl); Volksschule, FH Wr. Neustadt, Apotheke sowie zahlreiche Ärzte in unmittelbarer Nähe; uvm..

Energieeffizienz

HWB:
26,04 kWh/(m²*a)
HWB Klasse:
B
fGEE:
0,73
fGEE Klasse:
A
Energieausweisart:
Energiebedarfs-ausweis
Gültig bis:
13.01.2031

Grundrisse

Lageplan

2700 Wiener Neustadt | Wiener Neustadt (Stadt)

Lade...
Katharina Hlawaty

Katharina Hlawaty
Geschäftsführung

RINAREAL Immobilien Entwicklungs- und Vermarktungsgesellschaft mbH

Lade...

Fotomix

Bild 1 Bild 2 Bild 3