NEU - Neuwertige 2-Zimmer-Wohnung in Penzing zu vermieten

Wohnung zur Miete in 1140 Wien - Gesamtmiete: 1.100,00 €

Preisinformationen

Gesamtmiete:
1.100,00 € / Monat
Vermittlungsprovision:
Ja

Fakten

Objekttyp:
Wohnung
Terrasse:
1
Nutzfläche:
48 m²
Zimmer:
2
Neubau:
Ja
Verfügbarkeit:
Verfügbar

Beschreibung

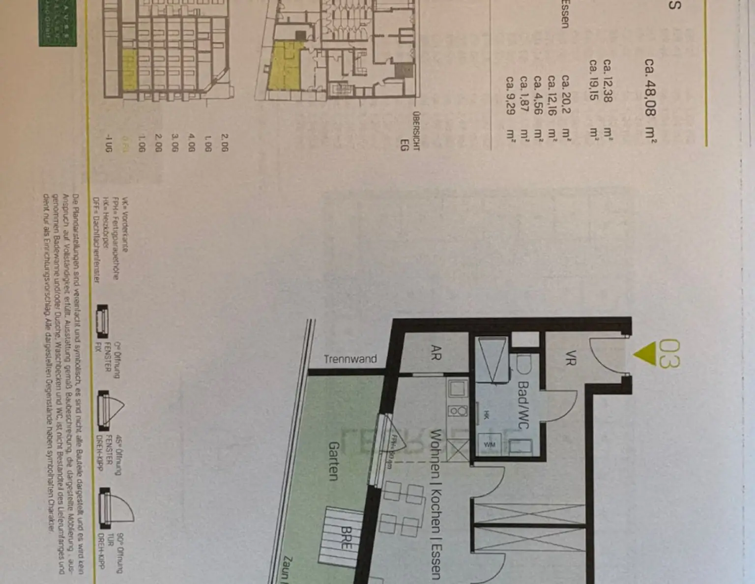
Die neuwertige 2-Zimmer-Wohnung in der Linzer Straße 157 / 14. Bezirk hat ca. 48,08 m2 Wohnfläche sowie einen ca. 19,15 m2 Garten und eine ca. 12,38 m2 Terrasse. Die Wohnung ist zentral begehbar mit folgender Raumaufte…
Lade...

Fotomix

Bild 1 Bild 2 Bild 3 Bild 4 Bild 5