NEU - Neuwertige 2-Zimmer-Wohnung mit Garten & Terrasse in 1200 Wien, Miete €979!

Wohnung zur Miete in 1200 Wien - Gesamtmiete: 979,00 € / Objektnummer: 6912
Ausstattung: Barrierefrei Boden Fahrstuhl Bad Rollladen Kabel/Satelliten-TV Tiefgarage Parkplatz Fahrradraum Fernwärme Fußbodenheizung Terrasse Garten

Preisinformationen

Gesamtmiete:
979,00 € / Monat
Betriebskosten netto:
94,37 € / Monat
Umsatzsteuer:
89,00 €
Kaution:
3 Bruttomonatsmieten
Provision:
Gemäß Erstauftraggeberprinzip bezahlt der Abgeber die Provision.

Fakten

Objektnummer:
6912
Objekttyp:
Wohnung
Terrasse:
1
Nutzfläche:
41,94 m²
Gartenfläche:
19,56 m²
Zimmer:
2
Badezimmer:
1
Toilette:
1
Stockwerk:
1
Baujahr:
2022
Neubau:
Ja
Zustand:
Neuwertig
Verfügbarkeit:
Verfügbar

Beschreibung

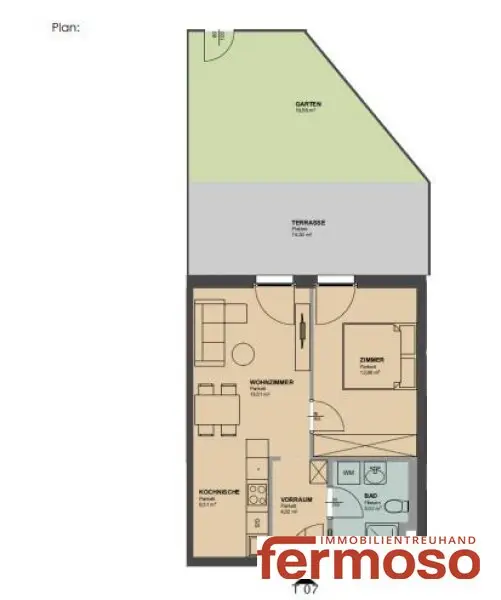
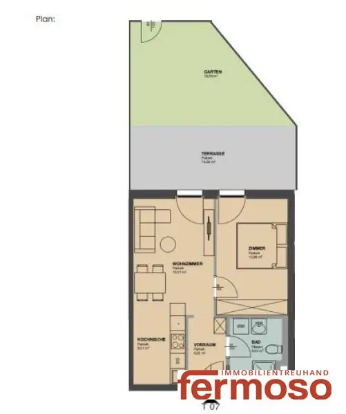
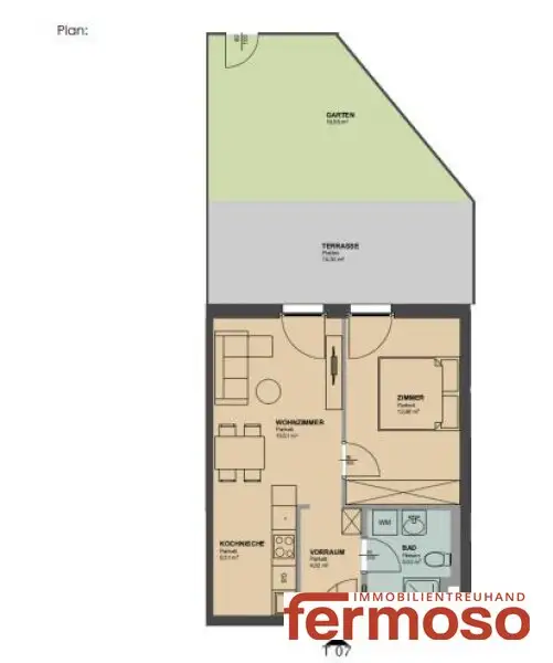
Willkommen in Ihrem neuen Zuhause im begehrten 20. Bezirk in Wien! Diese charmante 2-Zimmer-Wohnung in der 1. Etage verbindet modernes Wohnen mit höchstem Komfort auf 41,94 m² und bietet Ihnen ein neuwertiges Ambiente zum Wohlfühlen.

Die Wohnung beeindruckt durch eine durchdachte Raumaufteilung, die neben einem gemütlichen Wohnbereich auch ein Schlafzimmer umfasst. Hochwertige Materialien wie Parkett und Fliesen sorgen für ein elegantes und zeitloses Wohngefühl. Die Fußbodenheizung garantiert wohlige Wärme an kalten Tagen, während die Fernwärme eine umweltfreundliche und effiziente Energiequelle darstellt.

Ein besonderes Highlight ist die großzügige Terrasse mit angrenzendem Garten, der Ihnen einen privaten Rückzugsort im Grünen bietet – perfekt für entspannte Stunden im Freien oder gesellige Abende mit Freunden und Familie. Die moderne Einbauküche ist komplett ausgestattet und lässt keine Wünsche offen, um Ihre Kochleidenschaft zu entfalten.

Für höchsten Wohnkomfort steht Ihnen ein Personenaufzug zur Verfügung, der Sie bequem in die 1. Etage bringt. Das Badezimmer ist mit einer modernen Dusche ausgestattet und für Ihre Unterhaltung sorgt der Anschluss an Kabel- und Satelliten-TV.

Die Lage könnte nicht besser sein: Dank der hervorragenden Verkehrsanbindung mit Bus, U-Bahn, Straßenbahn, Bahnhof und Autobahnanschluss erreichen Sie alle wichtigen Ziele in Wien und Umgebung schnell und unkompliziert. Auch im Alltag profitieren Sie von der Nähe zu zahlreichen Einrichtungen wie Ärzten, Apotheken, Kliniken, Krankenhäusern sowie einem vielfältigen Bildungsangebot mit Schulen, Kindergärten, Universitäten und höheren Schulen.

Einkaufsmöglichkeiten sind ebenfalls fußläufig erreichbar – Supermärkte, Bäckereien und ein Einkaufszentrum bieten Ihnen alles für den täglichen Bedarf.

Diese Wohnung ist ideal für Singles oder Paare, die ein modernes, komfortables und zentral gelegenes Zuhause mit einer grünen Oase suchen. Die Miete von 979,00 € bietet ein ausgezeichnetes Preis-Leistungs-Verhältnis für diese attraktive Immobilie.

Lassen Sie sich diese Gelegenheit nicht entgehen und vereinbaren Sie noch heute einen Besichtigungstermin! Ihr neues Zuhause im 20. Bezirk wartet auf Sie!

Noch nichts gefunden? Wir informieren Sie über geeignete Immobilienangebote noch vor allen anderen.
Legen Sie jetzt Ihren individuellen Suchagenten unter folgendem Link an. Wir schicken Ihnen passende Immobilien exklusiv vorab zu.
Suchagent anlegen [https://fermoso-immobilientreuhand.service.immo/registrieren/de] - https://fermoso-immobilientreuhand.service.immo/registrieren/de

Wir weisen darauf hin, dass zwischen dem Vermittler und dem zu vermittelnden Dritten ein familiäres oder wirtschaftliches Naheverhältnis besteht.

Der Immobilienmakler erklärt, dass er – entgegen dem in der Immobilienwirtschaft üblichen Geschäftsgebrauch des Doppelmaklers – einseitig nur für den Vermieter tätig ist.

Infrastruktur / Entfernungen

Gesundheit
Arzt <500m
Apotheke <500m
Klinik <500m
Krankenhaus <1.000m

Kinder & Schulen
Schule <500m
Kindergarten <500m
Universität <500m
Höhere Schule <1.000m

Nahversorgung
Supermarkt <500m
Bäckerei <500m
Einkaufszentrum <500m

Sonstige
Geldautomat <500m
Bank <500m
Post <500m
Polizei <500m

Verkehr
Bus <500m
U-Bahn <500m
Straßenbahn <500m
Bahnhof <500m
Autobahnanschluss <1.000m

Angaben Entfernung Luftlinie / Quelle: OpenStreetMap
Beschreibung weiterlesen

Lage und Verkehrsanbindung

Diese Wohnung in 1200 Wien besticht durch ihre hervorragende Lage. In unmittelbarer Nähe befinden sich Arzt, Apotheke, Klinik und Krankenhaus sowie zahlreiche Bildungseinrichtungen wie Kindergarten, Schule, Höhere Schule und Universität. Einkaufsmöglichkeiten wie Supermarkt, Bäckerei und Einkaufszentrum sind schnell erreichbar. Öffentliche Verkehrsmittel wie Bus, U-Bahn, Straßenbahn und Bahnhof garantieren optimale Anbindung. Auch Bank, Geldautomat, Post, Polizei und Autobahnanschluss sind bequem erreichbar – ideal für beste Lebensqualität und Mobilität.

Wohnung bewohnt

Energieeffizienz

HWB:
21,2 kWh/(m²*a)
HWB Klasse:
A
fGEE:
0,79
fGEE Klasse:
A
Energieausweisart:
Energiebedarfs-ausweis
Gültig bis:
05.06.2030

Grundriss

Lageplan

1200 Wien | Wien 20., Brigittenau

Lade...
Ilksev Karakas

Ilksev Karakas
Immobilienberaterin

Fermoso Immobilientreuhand GmbH

Lade...

Fotomix

Bild 1 Bild 2 Bild 3 Bild 4 Bild 5 Bild 6 Bild 7 Bild 8