NEU - Neuwertige 2 Zimmer-Wohnung mit großem Süd-Balkon - Pirchäckerstraße 38 - Top 08

Wohnung zur Miete in 8053 Graz-Neuhart - Gesamtmiete: 663,07 € / Objektnummer: 1939/217394
Ausstattung: Boden Fahrstuhl Bad Möbliert Fahrradraum Abstellraum Zentralheizung Fußbodenheizung Balkon

Preisinformationen

Gesamtmiete:
663,07 € / Monat
Betriebskosten netto:
89,45 € / Monat
Umsatzsteuer:
60,28 €
Kaution:
3 Bruttomonatsmieten
Provision:
Gemäß Erstauftraggeberprinzip bezahlt der Abgeber die Provision.

Fakten

Objektnummer:
1939/217394
Objekttyp:
Wohnung
Balkon:
1
Balkonfläche:
15,17 m²
Keller Fläche:
2 m²
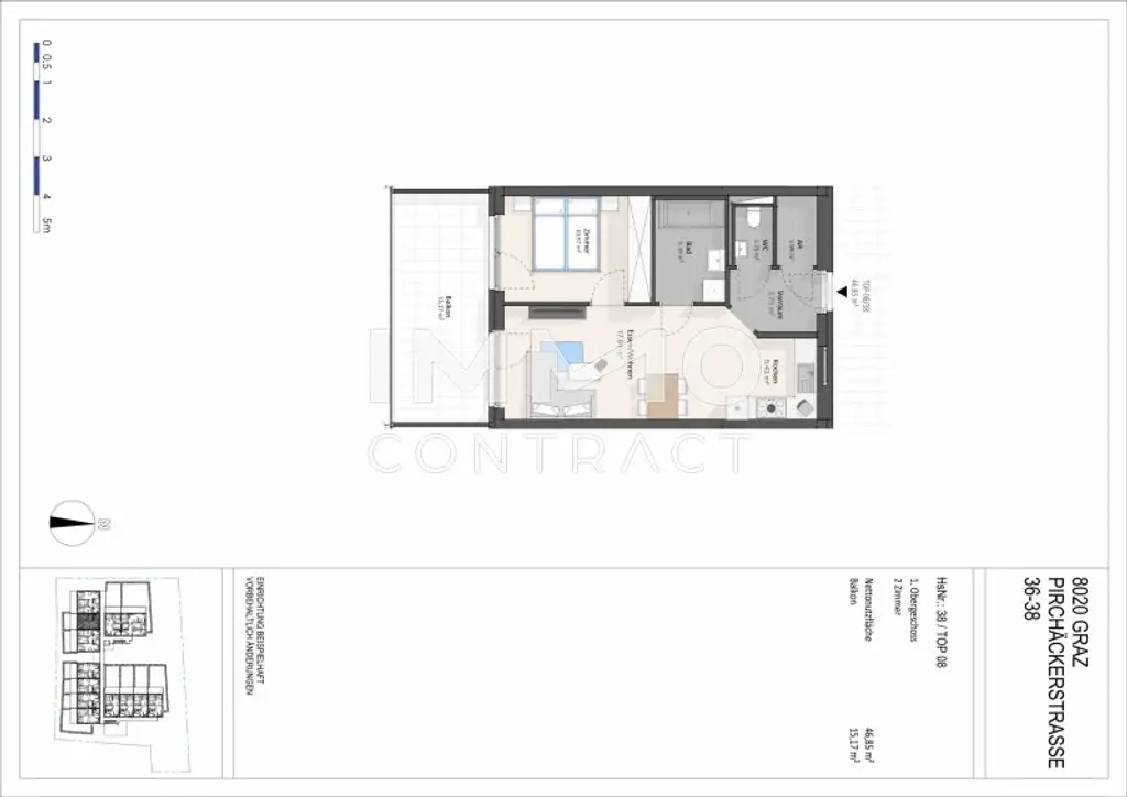
Wohnfläche:
46,85 m²
Zimmer:
2
Badezimmer:
1
Toilette:
1
Stockwerk:
1
Baujahr:
2024
Zustand:
Neuwertig
Verfügbarkeit:
Verfügbar

Beschreibung

Diese ca. 46,85 m² große Wohnung befindet sich im 1. Obergeschoß des Hauses Pirchäckerstraße 36-38 in einer modernen, neuwertigen Wohnanlage.

Mit der geräumigen Wohnküche und dem Schlafzimmern ist diese Wohnung ein perfektes Zuhause für Singles, Paare und Familien. Das helle, freundliche Ambiente und die moderne Ausstattung sorgt dafür, dass Sie sich hier mit Sicherheit wohl fühlen werden!

RAUMAUFTEILUNG: Vorraum, offene Wohnküche, Schlafzimmer, Bad, Toilette, Abstellraum, Kellerabteil, Balkon

AUSSTATTUNG : Die Wohnung ist mit hochwertigen Parkettböden im Wohn- und Schlafbereich, sowie modernen Fliesenböden im Sanitärbereich ausgestattet. Das Badezimmer verfügt unter anderem über eine Badewanne und einen Waschmaschinenanschluss. Darüber hinaus verfügt die Wohnung über eine Einbauküche inklusive Elektrogeräte. Die Wohnung wird mittels Fernwärme beheizt. Das Warmwasser wird ebenfalls zentral über Fernwärme aufbereitet. Der Wohnung ist ein Kellerabteil zugeordnet.

LAGE: zentrale, schöne Lage in der Pirchäckerstraße 36

HEIZUNG: DIE HEIZKOSTEN WERDEN DIREKT VOM WÄRMELIEFERANTEN VERRECHNET UND SIND NICHT IN DEN BETRIEBSKOSTEN ENTHALTEN !

PARKEN: Es besteht die Möglichkeit, Parkplätze ab € 75,00 in der hauseigenen Tiefgarage anzumieten.

Der Immobilienmakler erklärt, dass er - entgegen dem in der Immobilienwirtschaft üblichen Geschäftsgebrauch des Doppelmaklers - einseitig nur für den Vermieter tätig ist.

Wir weisen darauf hin, dass zwischen dem Vermittler und dem zu vermittelnden Dritten ein familiäres oder wirtschaftliches Naheverhältnis besteht.

Der Immobilienmakler erklärt, dass er – entgegen dem in der Immobilienwirtschaft üblichen Geschäftsgebrauch des Doppelmaklers – einseitig nur für den Vermieter tätig ist.

Infrastruktur / Entfernungen

Gesundheit
Arzt <175m
Apotheke <750m
Klinik <2.125m
Krankenhaus <1.125m

Kinder & Schulen
Schule <300m
Kindergarten <200m
Universität <2.800m
Höhere Schule <2.850m

Nahversorgung
Supermarkt <300m
Bäckerei <425m
Einkaufszentrum <1.300m

Sonstige
Geldautomat <300m
Bank <625m
Post <2.100m
Polizei <675m

Verkehr
Bus <350m
Straßenbahn <1.450m
Autobahnanschluss <1.200m
Bahnhof <875m
Flughafen <6.700m

Angaben Entfernung Luftlinie / Quelle: OpenStreetMap
Beschreibung weiterlesen

Lage und Verkehrsanbindung

Das moderne Wohnhaus liegt in der Pirchäckerstraße 36-38 im Bezirk Wetzelsdorf, einem beliebtem Wohnbezirk in Graz. Die Anbindung an das öffentliche Verkehrsnetz ist sehr gut. Einkaufsmöglichkeiten, Schulen und Kindergärten sind in der nahen Umgebung vorhanden und fußläufig erreichbar. Durch die gute Lage und Anbindung ist die Grazer Innenstadt ebenfalls schnell zu erreichen. Naherholungsgebiete sind in der nahen Umgebung vorhanden. Bei Bedarf ist man in kürzester Zeit auf der Autobahn.

Energieeffizienz

HWB:
31,4 kWh/(m²*a)
HWB Klasse:
B
fGEE:
0,68
fGEE Klasse:
A+
Energieausweisart:
Energiebedarfs-ausweis

Grundriss

Lageplan

8053 Graz-Neuhart | Graz (Stadt)

Lade...
Jan Sarkantyu

Jan Sarkantyu
Regionalmanager

IMMOcontract Immobilien Vermittlung GmbH

Lade...

Fotomix

Bild 1 Bild 2 Bild 3 Bild 4 Bild 5 Bild 6 Bild 7 Bild 8 Bild 9