NEU - Neuwertige 71m² Wohnung mit Balkon - WG-tauglich & top ausgestattet

Wohnung zur Miete in 1110 Wien - Gesamtmiete: 1.609,40 € / Objektnummer: 946
Ausstattung: Barrierefrei Rollstuhlgerecht Boden Fahrstuhl Bad Tiefgarage Parkplatz Abstellraum Fußbodenheizung Balkon Loggia WG geeignet

Preisinformationen

Gesamtmiete:
1.609,40 € / Monat
Betriebskosten netto:
151,98 € / Monat
Umsatzsteuer:
146,31 €
Kaution:
3 Bruttomonatsmieten
Provision:
Gemäß Erstauftraggeberprinzip bezahlt der Abgeber die Provision.

Fakten

Objektnummer:
946
Objekttyp:
Wohnung
Balkon:
1
Loggia:
1
Wohnfläche:
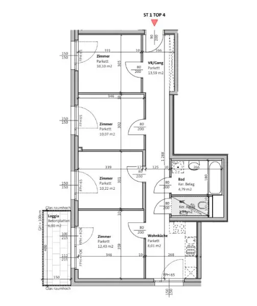
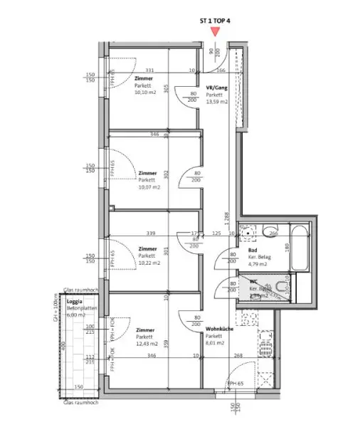
71,15 m²
Loggia Fläche:
6 m²
Zimmer:
4
Badezimmer:
1
Toilette:
1
Stockwerk:
2
Neubau:
Ja
Zustand:
Neuwertig
Verfügbarkeit:
Verfügbar

Beschreibung

Diese neuwertige und äußerst gepflegte 71 m²-Wohnung vereint praktisches Wohnen mit modernem Komfort und einer perfekten, durchdachten Raumaufteilung. Sie bietet nicht nur alle Annehmlichkeiten für einen entspannten Alltag, sondern auch due Flexibilität für ein gemeinsames Leben in einer Wohngemeinschaft.

Ausstattungsmerkmale im Überblick:

· Perfekte Raumaufteilung: Intelligenter Grundriss mit klarer Trennung der Wohnbereiche, ideal für Berufstätige, Paare oder WG-tauglich.
· Moderne DAN-Einbauküche: Der Kochherz schlägt höher! Die hochwertige Einbauküche ist funktional, stylisch und sofort bezugsbereit – kein zusätzlicher Investitionsaufwand.
· Eigene Loggia(6 m²): Ihr privater Freisitz für entspannte Sommerabende, eine Tasse Kaffee am Morgen oder zum gemütlichen Grillen.
· Außenverschattung: Perfekter Sonnen- und Sichtschutz für ein angenehmes Raumklima an heißen Tagen.
· Tiefgaragen-Stellplatz für €100 optional verfügbar. Ein absolutes Premium-Feature in Wien. Ihr Auto steht stets geschützt und Sie sind unabhängig von der Parkplatzsuche.
· Aufzug: Bequeme und barrierefreie Erreichbarkeit Ihrer Wohnetage.
· Zustand: Sauber & neuwertig: Sie ziehen in eine Wohnung, die in einem hervorragenden Zustand ist – makellos und sofort als neues Zuhause nutzbar.
 

 

Der Immobilienmakler erklärt, dass er – entgegen dem in der Immobilienwirtschaft üblichen Geschäftsgebrauch des Doppelmaklers – einseitig nur für den Vermieter tätig ist.

Infrastruktur / Entfernungen

Gesundheit
Arzt 500m
Apotheke 750m
Klinik 1.000m
Krankenhaus 2.500m

Kinder & Schulen
Schule 250m
Kindergarten 500m
Universität 1.750m
Höhere Schule 1.750m

Nahversorgung
Supermarkt 250m
Bäckerei 750m
Einkaufszentrum 750m

Sonstige
Geldautomat 750m
Bank 750m
Post 750m
Polizei 750m

Verkehr
Bus 250m
U-Bahn 750m
Straßenbahn 750m
Bahnhof 500m
Autobahnanschluss 1.000m

Angaben Entfernung Luftlinie / Quelle: OpenStreetMap
Beschreibung weiterlesen

Lage und Verkehrsanbindung

Die Wohnung befindet sich in einer äußerst gefragten und verkehrstechnisch optimal erschlossenen Lage im Herzen von Simmering. Diese Lage vereint die Ruhe eines Wohngebiets mit der Dynamik eines bestens versorgten Stadtteils.

Herausragende Verkehrsanbindung:

Der größte Pluspunkt dieser Adresse ist die exzellente Erreichbarkeit. Alle wichtigen Verkehrsmittel sind in unmittelbarer Nähe:

· U-Bahn Station "Enkplatz" (U3): Nur wenige Gehminuten entfernt. Die U3 verbindet Sie in nur 15 Minuten direkt mit dem Wiener Stadtzentrum (z.B. Stephansplatz) und in die andere Richtung schnell zur U2 (Schottentor) und U6 (Westbahnhof).
· S-Bahn Station "Simmering" (S1, S2, S3, S7): Ebenfalls in kurzer Distanz erreichbar. Ideal für Pendler in umliegende Bundesländer oder zum Hauptbahnhof.
· Straßenbahnlinie 6: Führt direkt vom Simmering über den Ring bis nach Mariahilf und Penzing.
· Autobahnanbindung: Die A4 Ostautobahn und A23 Südosttangente sind in wenigen Autominuten zu erreichen. In Kombination mit dem inkludierten Tiefgaragenplatz ist dies ein perfekter Standort für Autofahrer.

Umgebung & Infrastruktur – Alltagserledigungen leicht gemacht:

In der unmittelbaren Umgebung finden Sie alles, was Sie für den täglichen Bedarf brauchen:

· Einkaufsmöglichkeiten: Mehrere Supermärkte (Hofer, Billa, Penny) sowie ein DM befinden sich in unmittelbarer Gehreichweite.
· Ärzte & Apotheken: Die medizinische Grundversorgung ist mit mehreren Hausarztpraxen und Apotheken in der Nähe gesichert.
· Gastronomie & Cafés: Typische Wiener Beisln, Bistros und internationale Restaurants laden zum Verweilen ein.

Freizeit & Erholung:

Trotz der urbanen Lage kommt die Erholung nicht zu kurz:

· Auer-Welsbach-Park & Haydn-Park: Grünflächen zum Spazieren, Joggen oder Entspannen sind nur einen Steinwurf entfernt.
· Simmeringer Bad: Im Sommer ein beliebtes Ausflugsziel für Abkühlung.
· Donauinsel & Lobau: Sind mit dem Auto oder den öffentlichen Verkehrsmitteln schnell erreichbar und bieten unzählige Freizeitmöglichkeiten.

Lageplan

1110 Wien | Wien 11., Simmering

Lade...
Mathias Urbanek

Mathias Urbanek
Immobilienvermittlung Region Wien

VIVIAMO Immobilien GmbH

Anrufen
Lade...

Fotomix

Bild 1 Bild 2 Bild 3 Bild 4 Bild 5 Bild 6 Bild 7 Bild 8 Bild 9 Bild 10