NEU - Neuwertige Dachgeschoßmaisonette mit Süd-West-Terrassentraum und Garage

Wohnung zum Kauf in 1100 Wien - Kaufpreis: 630.000 € / Objektnummer: 3167
Ausstattung: Boden Fahrstuhl Wohnküche / offene Küche Bad Gäste-WC Garage Parkplatz Fahrradraum Zentralheizung Fußbodenheizung Terrasse

Preisinformationen

Kaufpreis:
630.000 €
Betriebskosten netto:
258,96 € / Monat
Preisinfos:
Unter "Sonstiges" angeführte Kosten: EUR 187,82 Rücklage und EUR 59,98 BK für KFZ-Stellplatz
Vermittlungsprovision:
Ja
Provision:
3% des Kaufpreises zzgl. 20% USt.

Fakten

Objektnummer:
3167
Objekttyp:
Wohnung
Terrasse:
1
Keller Fläche:
1,5 m²
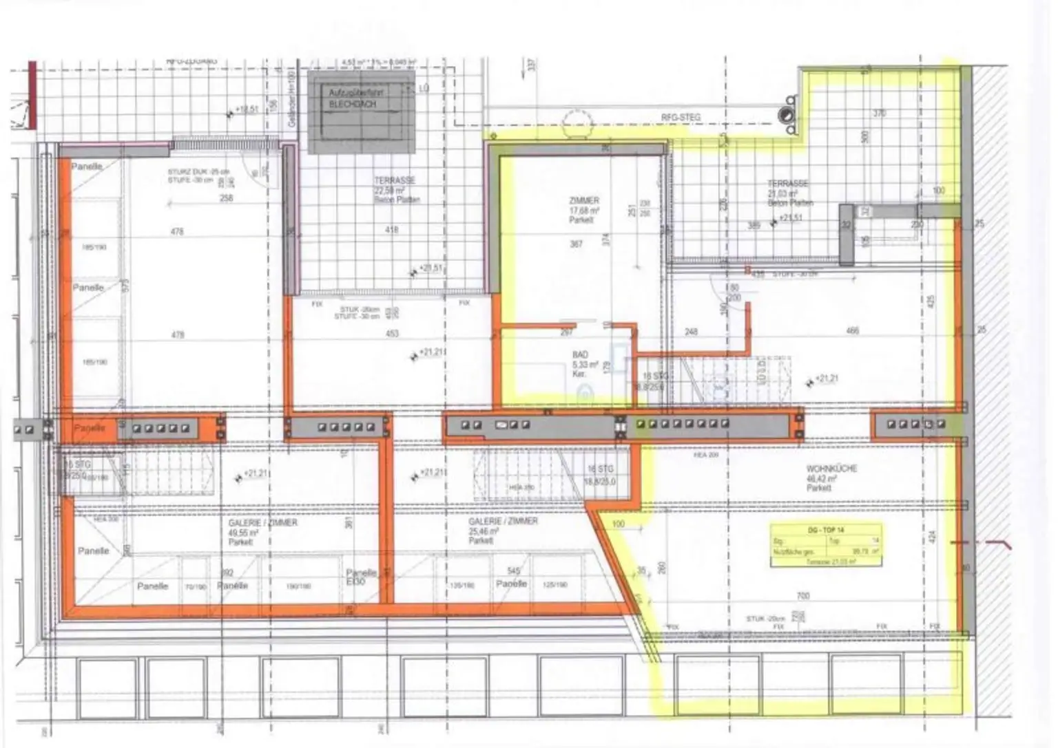
Wohnfläche:
99,79 m²
Zimmer:
3
Badezimmer:
2
Toilette:
2
Stockwerk:
6
Baujahr:
2015
Neubau:
Ja
Zustand:
Neuwertig
Verfügbarkeit:
Verfügbar

Beschreibung

Willkommen in Ihrem neuen Zuhause im Herzen von Wien! Diese beeindruckende Dachgeschoßmaisonette ist der Inbegriff von modernem Wohnen und städtischem Lebensstil. Auf der 6. Etage eines neuwertigen Gebäudes gelegen, bietet diese großzügige Wohnung mit einer Fläche von 99,79 m² Wohnfläche und 21 m2 Süd-West Terrasse alles, was Sie sich wünschen können.

Mit einem Kaufpreis von 630.000,00 € eröffnet sich Ihnen hier die Möglichkeit, in eine lichtdurchflutete 3-Zimmer-Wohnung einzuziehen, die sowohl Komfort als auch Stil vereint. Betreten Sie Ihr neues Zuhause und lassen Sie sich von der offenen Wohnküche begeistern, die mit einer hochwertigen Einbauküche ausgestattet ist – perfekt für gesellige Abende mit Familie und Freunden. Der offene Grundriss schafft ein einladendes Ambiente und ermöglicht Ihnen, das Leben in vollen Zügen zu genießen.

Ein weiteres Highlight dieser Wohnung ist die exklusive Terrasse, die Ihnen einen atemberaubenden Stadt- und Fernblick bietet. 

Die Wohnung ist mit zwei modernen Bädern und zwei WCs ausgestattet, was Ihnen und Ihrer Familie den nötigen Komfort und Privatsphäre bietet. Die hochwertige Ausstattung, darunter edles Parkett und Fußbodenheizung, sorgt für ein behagliches Wohngefühl zu jeder Jahreszeit. Die Bäder als Wohlfühloasen bieten Badewanne mit Whirlpool und eine Regendusche.

Auch die Infrastruktur rund um die Immobilie lässt keine Wünsche offen. In der Nähe finden Sie alles, was Sie für den täglichen Bedarf benötigen: Ärzte, Apotheken, Schulen, Kindergärten, Supermärkte und Bäckereien sind bequem zu Fuß erreichbar. 

Zusätzlich verfügt die Wohnung über einen Stellplatz in der hauseigenen Garage, was Ihnen das Parken in der Stadt erheblich erleichtert. 

Wir weisen darauf hin, dass zwischen dem Vermittler und dem zu vermittelnden Dritten ein familiäres oder wirtschaftliches Naheverhältnis besteht.

Der Vermittler ist als Doppelmakler tätig.

Infrastruktur / Entfernungen

Gesundheit
Arzt <200m
Apotheke <300m
Klinik <550m
Krankenhaus <600m

Kinder & Schulen
Schule <200m
Kindergarten <75m
Universität <1.250m
Höhere Schule <1.225m

Nahversorgung
Supermarkt <150m
Bäckerei <175m
Einkaufszentrum <1.525m

Sonstige
Geldautomat <500m
Bank <500m
Post <575m
Polizei <925m

Verkehr
Bus <75m
U-Bahn <400m
Straßenbahn <75m
Bahnhof <375m
Autobahnanschluss <2.575m

Angaben Entfernung Luftlinie / Quelle: OpenStreetMap
Beschreibung weiterlesen

Energieeffizienz

HWB:
30,6 kWh/(m²*a)
HWB Klasse:
B
fGEE:
0,8
fGEE Klasse:
B
Energieausweisart:
Energiebedarfs-ausweis
Gültig bis:
30.06.2034

Grundrisse

Lageplan

1100 Wien | Wien 10., Favoriten

Lade...
Erhard Rottensteiner

Erhard Rottensteiner

RAAB & RAAB Makler/innen Immobilien GmbH

Lade...

Fotomix

Bild 1 Bild 2 Bild 3 Bild 4 Bild 5 Bild 6 Bild 7 Bild 8 Bild 9 Bild 10 Bild 11 Bild 12 Bild 13 Bild 14 Bild 15 Bild 16 Bild 17 Bild 18 Bild 19 Bild 20 Bild 21 Bild 22 Bild 23 Bild 24 Bild 25