NEU - Neuwertiges Büro/Praxis in 1050 Wien: 188 m², modern, zentral und bestens ausgestattet!

Immobilie zur Miete in 1050 Wien / Objektnummer: 16199
Ausstattung: Barrierefrei Boden Fahrstuhl Wohnküche / offene Küche Bad Klimaanlage Tiefgarage Parkplatz Abstellraum Zentralheizung

Preisinformationen

Gesamtmiete (exkl. USt.):
3.975,95 € / Monat
Betriebskosten netto:
474,87 € / Monat
Heizkosten netto:
188,82 €
Umsatzsteuer:
795,19 €
Miete/m² netto:
18,60 €
Kaution:
3 Bruttomonatsmieten
Vermittlungsprovision:
Ja
Provision:
14.313,42 € inkl. 20% USt.

Fakten

Objektnummer:
16199
Keller Fläche:
26,84 m²
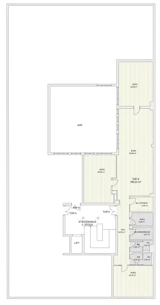
Nutzfläche:
188,23 m²
Zimmer:
4
Badezimmer:
2
Toilette:
2
Stockwerk:
2
Baujahr:
1994
Neubau:
Ja
Letzte Sanierung:
2025
Zustand:
Neuwertig
Verfügbarkeit:
Verfügbar

Beschreibung

ZUR VERMIETUNG GELANGT EINE HOCHWERTIG SANIERTE BÜRO- BZW. GESCHÄFTSFLÄCHE IN AUSGEZEICHNETER LAGE DES 5. WIENER GEMEINDEBEZIRKS, NAHE DER WIEDNER HAUPTSTRASSE. DIE ZENTRALE POSITION IN 1050 WIEN ÜBERZEUGT DURCH EINE HERVORRAGENDE INFRASTRUKTUR SOWIE EINE OPTIMALE ANBINDUNG AN DAS ÖFFENTLICHE VERKEHRSNETZ (U-BAHN, STRASSENBAHN UND BUS).

AKTUELL UMFASST DIE RAUMAUFTEILUNG:

*
5 Büroräume

*
Flexible Gestaltungsmöglichkeiten – zusätzliche Raumunterteilungen durch Leichtbauwände realisierbar

*
Separate Sanitärbereiche für Damen und Herren

*
Teeküche

*
Lagerfläche

Die durchdachte Grundstruktur ermöglicht eine individuelle Anpassung an unterschiedliche Nutzungskonzepte – von klassischen Einzel- oder Doppelbüros bis hin zu strukturierten Praxisräumlichkeiten oder offenen Arbeitsbereichen.

-------------

AUSSTATTUNG

Die Immobilie wurde neu saniert und präsentiert sich in modernem, gepflegtem Zustand. Die Ausstattung umfasst:

*
Hochwertige Fliesen- und Parkettböden

*
Zentralheizung

*
Klimaanlage für ein angenehmes Raumklima

*
Moderne Sanitäranlagen

*
Personenaufzug

Die hellen und freundlich gestalteten Räume schaffen ein professionelles Arbeitsumfeld mit hoher Aufenthaltsqualität für Mitarbeiter und Kunden.

-------------

LAGE & INFRASTRUKTUR

Die Liegenschaft befindet sich in zentraler Lage von 1050 Wien mit ausgezeichneter Erreichbarkeit. Öffentliche Verkehrsmittel sind in wenigen Gehminuten erreichbar und gewährleisten eine rasche Anbindung an das Stadtzentrum sowie andere Bezirke.

Die unmittelbare Umgebung bietet eine umfassende Infrastruktur:

*
Medizinische Einrichtungen und Apotheken

*
Nahversorger und Supermärkte

*
Gastronomie und Bäckereien

*
Bildungseinrichtungen

Die hohe Frequenzlage und die gute Sichtbarkeit machen das Objekt besonders attraktiv für Unternehmen mit Kundenverkehr.

-------------

WIRTSCHAFTLICHE ECKDATEN

*
Nutzfläche: ca. 188,23 m²

*
Lage: 2. Obergeschoss

*
Monatliche Gesamtmiete: € 4.771,14

Fernwärmeheizung: Monatliches HK-Akonto wird eingehoben, jährliche Abrechnung

Es können zudem Stellplätze in der Garage angemietet werden zu brutto € 164,93 / Monat

(jedoch erst ein Monat nach Mietbeginn möglich)

-------------

ÖFFENTLICHE VERKEHRSANBINDUNG

Die Wohnung ist optimal an das öffentliche Verkehrsnetz angebunden:

*
U4 Pilgramgasse

*
Buslinien 12A, 13A, 14A

Damit sind sowohl das Stadtzentrum als auch die umliegenden Bezirke schnell erreichbar.

-------------

Nebenkosten

* 3 BMM Kaution
* 3 BMM Provision zzgl. 20% USt.

-------------

Kontakt
Für weitere Informationen oder zur Vereinbarung eines Besichtigungstermins kontaktieren Sie bitte
Frau Julia Koch persönlich unter +43 660 664 7444 oder per E-Mail an koch@moritz-immobilien.at.

Unser Büro erreichen Sie unter office@moritz-immobilien.at.

 

_Maklervereinbarung: _Wir ersuchen um Verständnis, dass wir bei Anfragen zur Objektadresse, bzw. Besichtigungstermin  aufgrund neuer gesetzlicher Bestimmungen Unterlagen erst dann zusenden können, wenn Sie vorab bestätigen, dass Sie unser sofortiges Tätigwerden wünschen und über Ihre Rücktrittsrechte aufgeklärt wurden. Sie bekommen nach Ihrer schriftlichen Anfrage mit vollständiger Angabe des Namens, Anschrift und Telefonnummer ein Email, in dem Sie diese Punkte bestätigen müssen.

_Haftungsausschluss:  _Wir weisen darauf hin, dass sämtliche Daten im vorliegenden Angebot sowie die von unserem Büro an Sie weitergegebenen Auskünfte, vom Eigentümer der Immobilie zur Verfügung gestellt wurden. Ebenso sind Informationen von Dritten (z.B. behördliche Informationen) eingeholt worden, auch für diese können wir unsererseits keinerlei Haftung für deren uneingeschränkte Richtigkeit übernehmen.

Wir weisen darauf hin, dass zwischen dem Vermittler und dem zu vermittelnden Dritten ein familiäres oder wirtschaftliches Naheverhältnis besteht.

Infrastruktur / Entfernungen

Gesundheit
Arzt <500m
Apotheke <500m
Klinik <500m
Krankenhaus <500m

Kinder & Schulen
Schule <500m
Kindergarten <500m
Universität <500m
Höhere Schule <500m

Nahversorgung
Supermarkt <500m
Bäckerei <500m
Einkaufszentrum <500m

Sonstige
Geldautomat <500m
Bank <500m
Post <500m
Polizei <500m

Verkehr
Bus <500m
U-Bahn <500m
Straßenbahn <500m
Bahnhof <500m
Autobahnanschluss <3.500m

Angaben Entfernung Luftlinie / Quelle: OpenStreetMap
Beschreibung weiterlesen

Lage und Verkehrsanbindung

Margaretenstraße, 1040 Wien

Wiedner Hauptstraße

Energieeffizienz

HWB:
57,9 kWh/(m²*a)
HWB Klasse:
C
fGEE:
1,1
fGEE Klasse:
C
Energieausweisart:
Energiebedarfs-ausweis
Gültig bis:
29.05.2029

Grundriss

Lageplan

1050 Wien | Wien 5., Margareten

Lade...
Julia Koch

Julia Koch
Immobilienberaterin

Moritz Immobilien

Lade...

Fotomix

Bild 1 Bild 2 Bild 3 Bild 4 Bild 5 Bild 6 Bild 7 Bild 8 Bild 9 Bild 10 Bild 11 Bild 12 Bild 13 Bild 14 Bild 15 Bild 16 Bild 17 Bild 18 Bild 19 Bild 20 Bild 21 Bild 22 Bild 23 Bild 24 Bild 25 Bild 26 Bild 27 Bild 28 Bild 29 Bild 30 Bild 31 Bild 32 Bild 33 Bild 34 Bild 35 Bild 36 Bild 37