NEU - Nußdorf5 - Wohnen am schönsten See Österreichs - elegantes Eck-Reihenhaus 21c

Wohnung zum Kauf in 4865 Nußdorf am Attersee - Kaufpreis: 638.100 € / Objektnummer: 337
Ausstattung: Parkplatz Außenparkplatz Fußbodenheizung Garten
b3d-nu5_cam05-01
b3d-nu5_cam02-01
b3d-nu5_cam05-01
b3d-nu5_cam12-01

Preisinformationen

Kaufpreis:
638.100 €
Kaufpreis/m²
5.894,69 €
Vermittlungsprovision:
Ja
Provision:
3% des Kaufpreises zzgl. 20% USt.

Fakten

Objektnummer:
337
Objekttyp:
Wohnung
Wohnfläche:
108,25 m²
Gartenfläche:
131,28 m²
Baujahr:
2026
Neubau:
Ja
Verfügbarkeit:
Verfügbar

Beschreibung

Nußdorf5. In Zell in der Gemeinde Nußdorf am Attersee errichtet die _Nu5 Projekt GmbH_ ein Doppelhaus mit zwei und ein Reihenhaus mit drei Wohneinheiten, wahlweise in belags- oder in schlüsselfertiger Ausführung. 

In absoluter Ruhelage am Westufer des Attersees mit der malerischen Bergkulisse des Salzkammerguts im Hintergrund entsteht ein hochwertiges Doppel- und Reihenhaus im Wohnungseigentum in ansprechender Architektur. Bei den südseitig ausgerichteten Einheiten wurde bei der Planung, unter bestmöglicher Berücksichtigung der Rahmenbedingungen und örtlichen Gegebenheiten, auf ein modernes Raumkonzept mit besonderem Augenmerk auf praktikable Nutzbarkeit geachtet. Ausgewählte Materialien, hochwertige Boden- und Wandbeläge, modernes Heizungssystem (Luftwärmepumpe / FB-Heizung) in Kombination mit einer Photovoltaikanlage bieten ein Höchstmaß an Komfort und Bequemlichkeit.

Lage / Entfernungen:

* Mitterweg 21c, 4865 Zell - Gem. Nußdorf am Attersee
* Seeufer Attersee in nur ca. 300 m Luftlinie Entfernung
* nächster öffentl. Badeplatz ~ 550 m
* Zentrum Nußdorf ~ 2500 m

Highlights:

* exklusive Ruhelage in Seenähe
* tlw. mit Seeblick
* großzügige Terrassen und Eigengärten
* 2 KFZ Stellplätze je Wohneinheit (davon 1 Carport)
* ressourcenschonende Bauweise mit Wärmedämmung
* energieeffiziente Haustechnik
* hochwertige Ausstattung

 

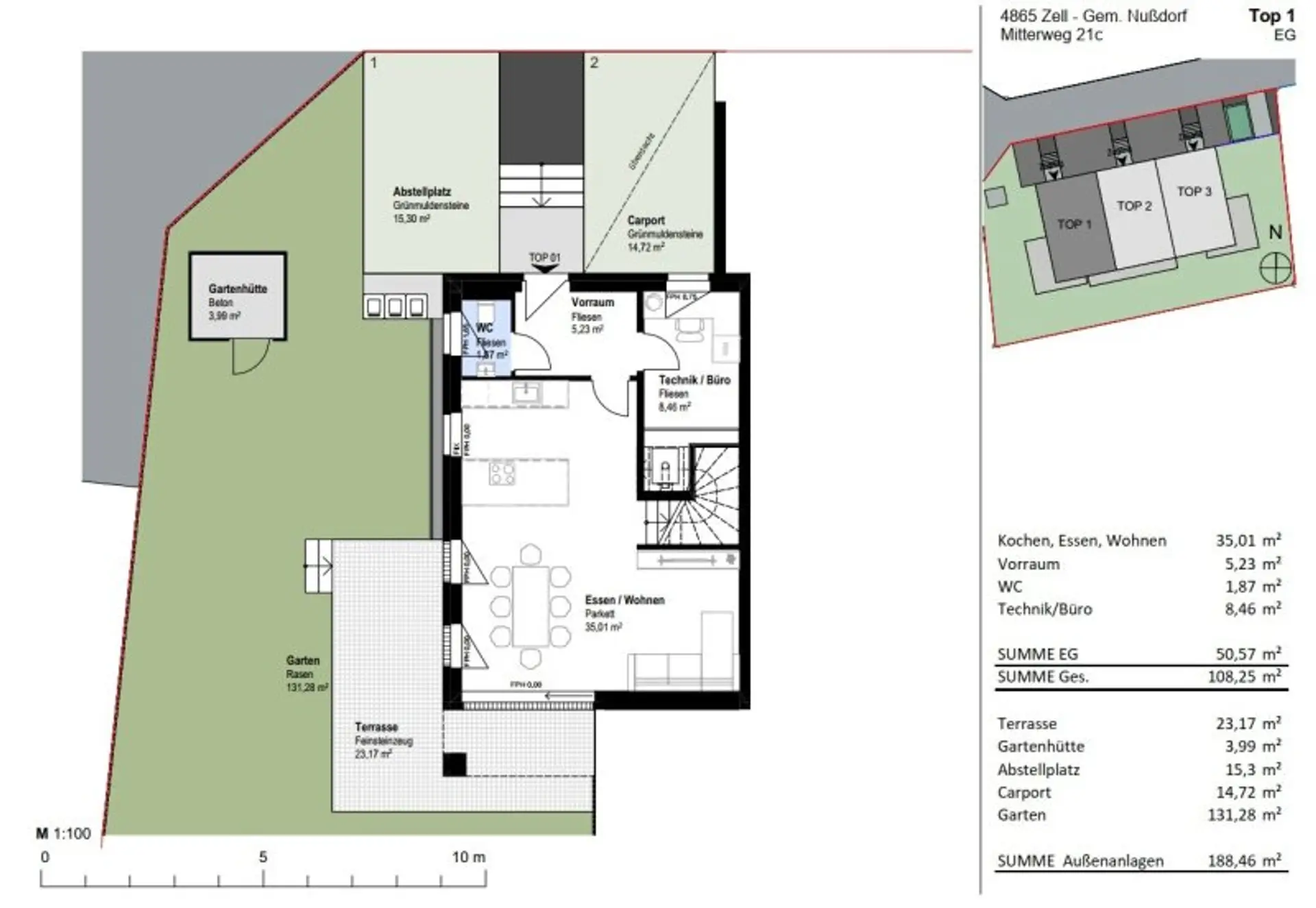
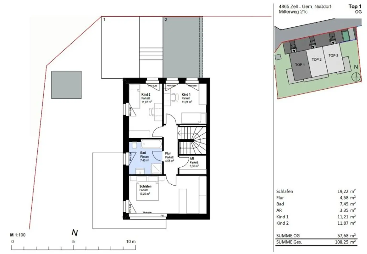
Reihenhaus 21c
Wohnfläche: ca. 108,25 m²
Terrasse: ca. 23,17 m²
Garten: ca. 131,28 m²
2 KFZ-Freistellplätze 

Kaufpreis belagsfertig: EUR 638.100,-
Kaufpreis schlüsselfertig: EUR 683.600,-

Die von der Gemeinde vorgeschriebenen Infrastrukturkosten (Verkehrsflächenbeitrag, Aufschließung- und Anschlusskosten etc.) sind im Kaufpreis nicht inkludiert, diese werden gesondert verrechnet.

In der Gemeinde Nußdorf am Attersee ist verpflichtend Hauptwohnsitz zu melden.

 

Sehr gerne laden wir Sie zu einem persönlichen Beratungsgespräch in unser Büro in Wels ein, dabei möchten wir Ihnen das gesamte Projekt vorstellen, Ihre Fragen, eventuelle Sonderwünsche sowie die weiteren Schritte besprechen.
Kontaktieren Sie uns, damit wir einen Termin vereinbaren können! Wir freuen uns auf Sie!

Ihr SPERER Immobilien Team 

 

Wir weisen darauf hin, dass zwischen dem Vermittler und dem zu vermittelnden Dritten ein familiäres oder wirtschaftliches Naheverhältnis besteht.

Der Vermittler ist als Doppelmakler tätig.

Infrastruktur / Entfernungen

Gesundheit
Arzt <2.250m
Klinik <9.750m
Apotheke <7.500m

Kinder & Schulen
Schule <2.000m
Kindergarten <3.250m

Nahversorgung
Supermarkt <2.750m
Bäckerei <2.250m

Sonstige
Bank <2.250m
Geldautomat <2.250m
Post <2.500m
Polizei <7.000m

Verkehr
Bus <500m
Bahnhof <6.000m
Autobahnanschluss <6.250m

Angaben Entfernung Luftlinie / Quelle: OpenStreetMap
Beschreibung weiterlesen

Lage und Verkehrsanbindung

Attersee

Energieeffizienz

HWB:
50 kWh/(m²*a)
HWB Klasse:
C
fGEE:
0,71
fGEE Klasse:
A
Energieausweisart:
Energiebedarfs-ausweis
Gültig bis:
09.01.2034

Dokumente

Grundrisse

Lageplan

4865 Nußdorf am Attersee | Vöcklabruck

Lade...
Stefan Pichler

Stefan Pichler
Projektleitung | Verkauf

SPERER Immobilien GmbH

Anrufen
Lade...

Fotomix

b3d-nu5_cam05-01 Bild 2 Bild 3 b3d-nu5_cam02-01 Bild 5 Bild 6 b3d-nu5_cam05-01 Bild 8 b3d-nu5_cam12-01 Bild 10 Bild 11