NEU - OPEN HOUSE 14.–15.03. | 1230 Neubau Erstbezug | 1–2 Zimmer | Balkon/Loggia/Terrasse | ab € 176.147 netto

Wohnung zum Kauf in 1230 Wien - Kaufpreis: 176.147 € / Objektnummer: 2178
Ausstattung: Fahrstuhl Zentralheizung Balkon Loggia
Hofseite
Zimmer mit Kochgel
Loggia & Balkon
Zimmer mit Kochgel
Badezimmer
Vorraum
1 Obergeschoss
Plan Top 10
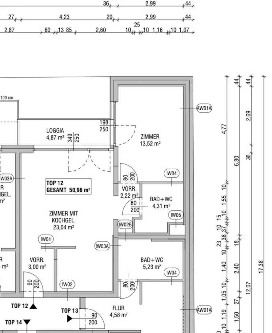
Plan Top 12

Preisinformationen

Kaufpreis:
176.147 €
Preisinfos:
Fixpreis
Provision:
3.00 %

Fakten

Objektnummer:
2178
Objekttyp:
Wohnung
Balkon:
1
Loggia:
1
Wohnfläche:
31 m²
Zimmer:
1
Badezimmer:
1
Baujahr:
2024
Neubau:
Ja
Zustand:
Erstbezug
Verfügbarkeit:
Verfügbar

Beschreibung

OPEN HOUSE: 14.–15. März – Besichtigung nur nach Terminvereinbarung
Leopoldigasse 1A, 1230 Wien (Liesing).

Modernes Neubau-Wohnhaus (Baujahr 2024) mit 1–2-Zimmer-Eigentumswohnungen. Wohnflächen ca. 30–54 m², viele Einheiten mit Loggia, Balkon oder Terrasse. Teilweise hofseitig, weitere Wohnungen in einer ruhigen Seitengasse.

Ausstattung:

*
Luft-Wärmepumpe + Photovoltaik (energieeffizient)

*
Fußbodenheizung mit Kühlfunktion

*
Lift

*
Glasfaseranschluss vorbereitet

*
Waschmaschinenanschluss in jeder Wohnung

Preise:
• Anlegerpreise ab € 176.147 netto zzgl. 20 % USt (bei Vorsteuerabzugsberechtigung)
• Eigennutzerpreise ab € 192.000
• Preise je nach Top/Größe/Freifläche/Ausrichtung unterschiedlich

Hinweis: Fotos zeigen eine Musterwohnung/Beispieleinheit. Grundrisse & Preisliste der verfügbaren Tops senden wir gerne zu. Link zur 360°-Tour auf Anfrage.

Wir weisen darauf hin, dass zwischen dem Vermittler und dem zu vermittelnden Dritten ein familiäres oder wirtschaftliches Naheverhältnis besteht.

Der Vermittler ist als Doppelmakler tätig.
Angaben gemäß gesetzlichem Erfordernis:
Heizwärmebedarf: 32.2 kWh/(m²a)
Klasse Heizwärmebedarf: B
Faktor Gesamtenergieeffizienz: 0.64
Klasse Faktor Gesamtenergieeffizienz: A+

Interesse am Maklerberuf?
Informationen beim MAKLERFRÜHSTÜCK
am Samstag, Termin nach Vereinbarung um 10.00 Uhr im RE/MAX Büro Schwechat.
Info: office@remax-vital.at oder 01/70 70 900.
Beschreibung weiterlesen

Energieeffizienz

HWB:
32,2 kWh/(m²*a)
HWB Klasse:
B
fGEE:
0,64
fGEE Klasse:
A+
Energieausweisart:
Energiebedarfs-ausweis

Lageplan

1230 Wien | Wien 23., Liesing

Lade...
Daniel KIS

Daniel KIS

RE/MAX Vital

Lade...

Fotomix

Hofseite Zimmer mit Kochgel Loggia & Balkon Zimmer mit Kochgel Badezimmer Vorraum 1 Obergeschoss Plan Top 10 Plan Top 12