Perfekt aufgeteilte 3-Zimmerwohnung mit Terrasse in einem zentral gelegenen Wohnhaus

Wohnung zum Kauf in 5020 Salzburg - Kaufpreis: 390.000 € / Objektnummer: 11849
Ausstattung: Wohnküche / offene Küche Bad Fußbodenheizung Terrasse

Preisinformationen

Kaufpreis:
390.000 €
Betriebskosten netto:
235,20 € / Monat
Heizkosten netto:
124,10 €
Preisinfos:
Die Rücklage ist ein Vorschauwert. Die genaue Berechnung erfolgt von der Hausverwaltung.
Vermittlungsprovision:
Ja
Provision:
14.040,00 € inkl. 20% USt.

Fakten

Objektnummer:
11849
Objekttyp:
Wohnung
Terrasse:
1
Keller Fläche:
3,04 m²
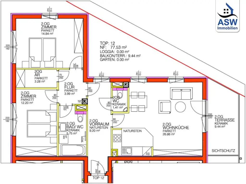
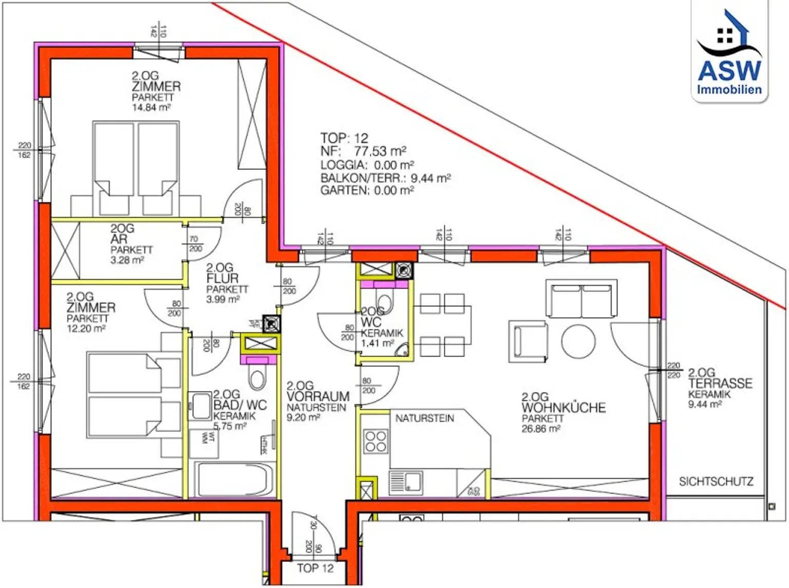
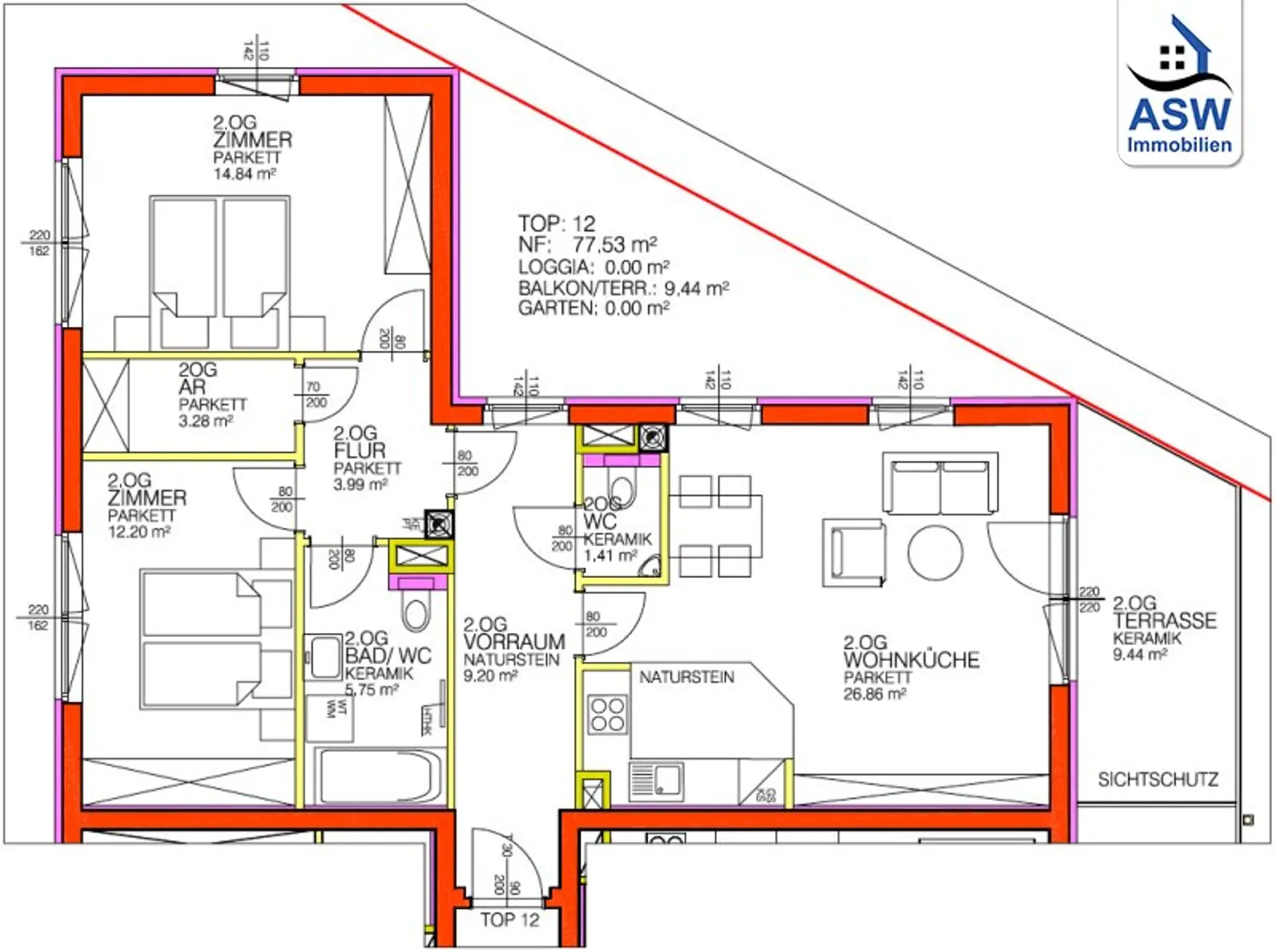
Wohnfläche:
77,56 m²
Zimmer:
3
Badezimmer:
1
Toilette:
2
Stockwerk:
2
Baujahr:
2006
Zustand:
Gepflegt
Verfügbarkeit:
Verfügbar
Verfügbar ab:
sofort

Beschreibung

Moderne Wohnanlage in attraktiver Lage – Peilsteinerstraße 1, 5020 Salzburg

Die im Jahr 2006 fertiggestellte Liegenschaft befindet sich in zentraler Lage in Salzburg und umfasst insgesamt 17 hochwertig ausgestattete Wohneinheiten sowie ein Büro im Erdgeschoss. Das Gebäude erstreckt sich über ein Kellergeschoss mit Tiefgarage (17 Stellplätze) und Parteienkeller, ein Erdgeschoss sowie zwei Obergeschosse. Alle Wohnungen überzeugen durch eine moderne Ausstattung. Echtholzparkett in Wohn-, Ess- und Schlafbereichen, verflieste, voll ausgestattete Nassräume sowie komplett möblierte Einbauküchen mit Elektrogeräten. Jeder Wohnung ist ein eigenes Kellerabteil zugeordnet. Viele Einheiten verfügen zusätzlich über Freiflächen wie Terrassen, Balkone oder Loggien, die zum Entspannen im Freien einladen.

Die Kombination aus durchdachter Architektur, moderner Ausstattung und einer gefragten Wohnlage macht diese Liegenschaft zu einer besonders attraktiven Wohn- und Investitionsmöglichkeit.

Diese schöne 3-Zimmerwohnung in einem sehr zentral gelegenen Gebäude steht zum Verkauf:

- großzügiger Wohn-/Essbereich mit Zugang zur Terrasse
- Komplettküche inkl. E-Geräten
- 2 Schlafzimmer
- Badezimmer mit Badewanne, WC und Waschmaschinenanschluss, zusätzliche Toilette
- großzügiger Vorraum/Eingangsbereich, Abstellraum

Ein Stellplatz in der hauseigenen Tiefgarage ist verpflichtend anzukaufen.

Dieser Wohnung ist der Tiefgaragenstellplatz Nr. 08 zugeordnet:
Kaufpreis: € 25.000,-
Mietvertrag: nicht vermietet
Monatl. Kosten: € 19,60 Betriebskosten + € 8,76 Rücklage

Lassen auch Sie sich von dieser Wohnung überzeugen und vereinbaren Sie einen unverbindlichen Beratungs- und Besichtigungstermin per E-Mail unter r.lakovsek@aswimmo.at
Wir möchten höflich darauf hinweisen, dass im Falle eines Kaufs eine ortsübliche Maklerprovision zu bezahlen ist.

Wir weisen darauf hin, dass zwischen dem Vermittler und dem zu vermittelnden Dritten ein familiäres oder wirtschaftliches Naheverhältnis besteht.

Der Vermittler ist als Doppelmakler tätig.

Infrastruktur / Entfernungen

Gesundheit
Arzt <250m
Apotheke <500m
Klinik <1.250m
Krankenhaus <500m

Kinder & Schulen
Schule <500m
Kindergarten <500m
Universität <1.250m
Höhere Schule <1.250m

Nahversorgung
Supermarkt <250m
Bäckerei <750m
Einkaufszentrum <1.000m

Sonstige
Bank <250m
Geldautomat <250m
Post <1.000m
Polizei <750m

Verkehr
Bus <250m
Bahnhof <750m
Autobahnanschluss <1.250m
Flughafen <3.000m

Angaben Entfernung Luftlinie / Quelle: OpenStreetMap
Beschreibung weiterlesen

Lage und Verkehrsanbindung

Das Gebäude befindet sich in zentraler Lage im beliebten Stadtteil Lehen, nur wenige Schritte vom Christian-Doppler-Universitätsklinikum entfernt. Zahlreiche Geschäfte des täglichen Bedarfs sowie weitere infrastrukturelle Einrichtungen befinden sich in unmittelbarer Umgebung. Die Anbindung an den öffentlichen Nah- verkehr ist hervorragend: Bus- und S-Bahnhaltestellen sowie der Bahnhof Salzburg-Taxham – direkt am bekannten Einkaufszentrum Europark gelegen – sind fußläufig erreichbar. Auch die Autobahn A1 (Anschluss- stelle Knoten Kleßheim) ist in nur wenigen Fahrminuten erreichbar. Die Red Bull Arena, das Messezentrum Salzburg sowie der nahegelegene Lehener Park bieten zusätzliche Freizeit- und Erholungsmöglichkeiten.

Europark, RedBull Arena, Messezentrum

Energieeffizienz

HWB:
54 kWh/(m²*a)
HWB Klasse:
C
fGEE:
0,9
fGEE Klasse:
B
Energieausweisart:
Energiebedarfs-ausweis
Gültig bis:
25.01.2026

Grundrisse

Lageplan

5020 Salzburg | Salzburg (Stadt)

Lade...
Roland Lakovsek

Roland Lakovsek
Immobilienberater

ASW Immobilien Service & Consulting GmbH

Lade...

Fotomix

Bild 1 Bild 2 Bild 3 Bild 4 Bild 5 Bild 6 Bild 7 Bild 8 Bild 9 Bild 10 Bild 11 Bild 12 Bild 13 Bild 14