NEU - Perfekte Anlage oder Eigenheim mit 3 Zimmer und 19 m² Freifläche! Erstbezug.

Wohnung zum Kauf in 1210 Wien - Kaufpreis: 312.500 € / Objektnummer: 296456
Ausstattung: Barrierefrei Boden Fahrstuhl Wohnküche / offene Küche Bad Gäste-WC Kabel/Satelliten-TV Garage Parkplatz Fahrradraum Zentralheizung Fußbodenheizung Terrasse WG geeignet

Preisinformationen

Kaufpreis:
312.500 €
Kaufpreis/m²
4.229,26 €
Betriebskosten netto:
152,50 € / Monat
Vermittlungsprovision:
Ja
Provision:
3% des Kaufpreises zzgl. 20% USt.

Fakten

Objektnummer:
296456
Objekttyp:
Wohnung
Terrasse:
1
Wohnfläche:
64,3 m²
Nutzfläche:
73,89 m²
Zimmer:
3
Badezimmer:
1
Toilette:
1
Baujahr:
2024
Neubau:
Ja
Zustand:
Erstbezug
Verfügbarkeit:
Verfügbar

Beschreibung

Hier freuen Sie sich jeden Tag auf´s Heimkommen...

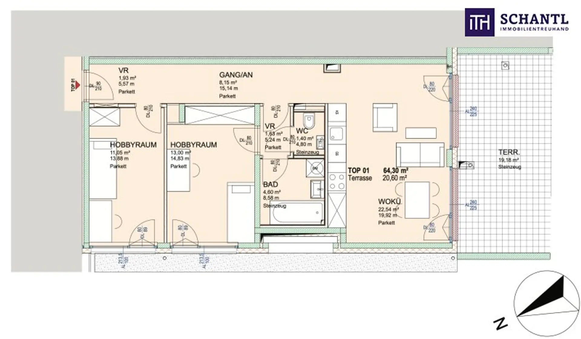
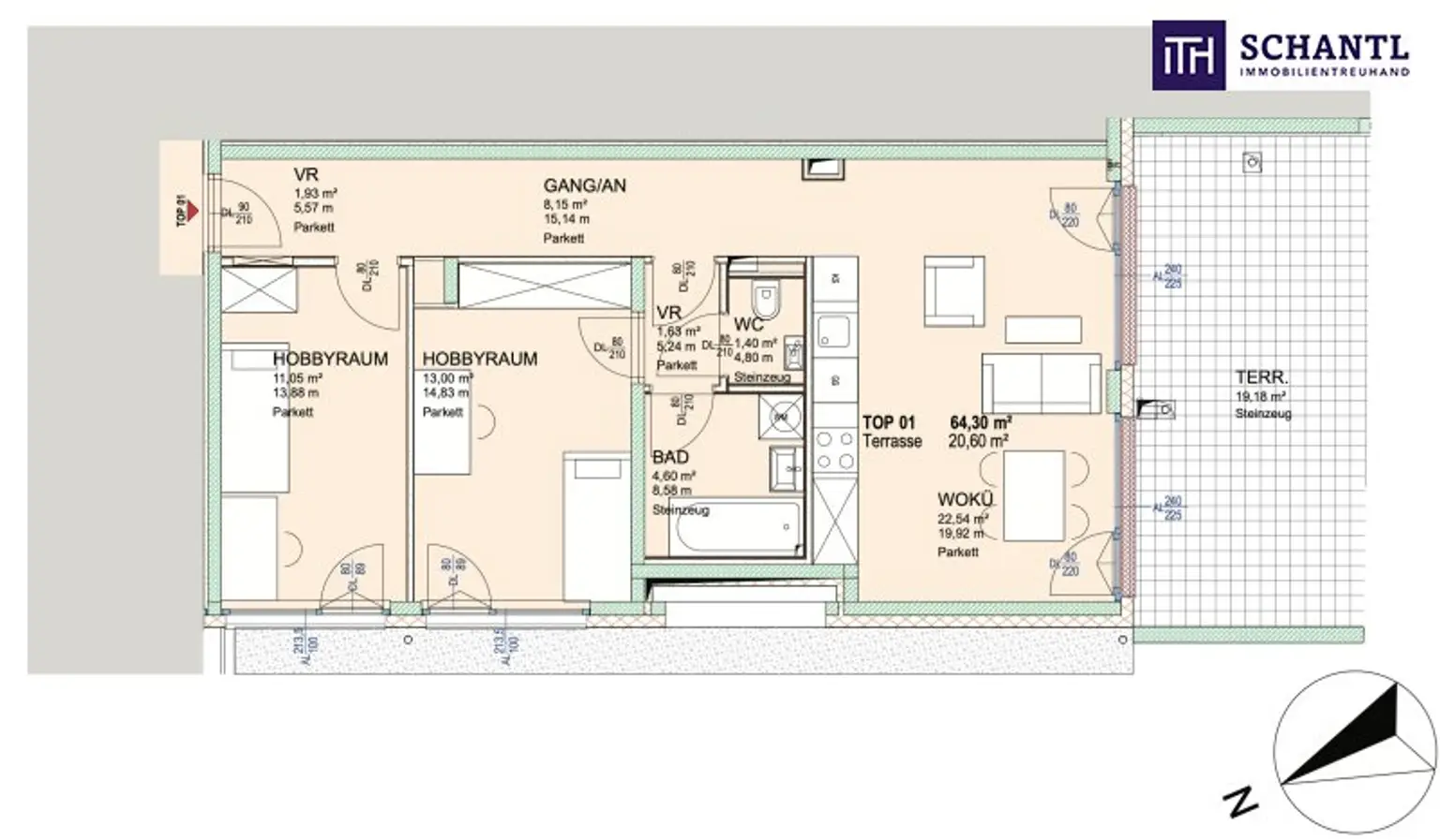
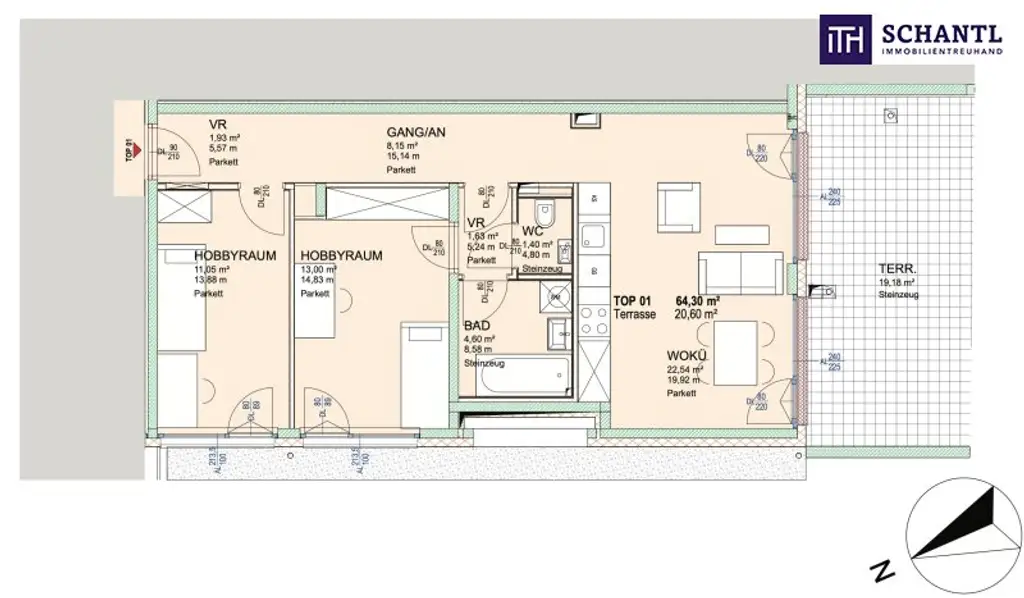
Diese charmante Drei-Zimmer-Wohnung im Erdgeschoss überzeugt durch ihre durchdachte Raumaufteilung und eine private Terrasse, die zusätzlichen Wohnraum im Freien schafft.

Auf rund 64,3 m² Wohnfläche bietet die Wohnung ein angenehm großzügiges Wohnzimmer mit ca. 23 m² sowie zwei gut geschnittene Schlafzimmer mit etwa 13 m² und 11 m². Die zentrale Begehbarkeit sorgt für eine optimale Nutzung der Räume und ein angenehmes Wohngefühl.

Das Badezimmer ist mit einer Badewanne ausgestattet, das WC ist separat – ein klarer Pluspunkt im Alltag. Die ca. 19 m² große Terrasse lädt zu entspannten Stunden im Freien ein und erweitert den Wohnraum auf ideale Weise.

Dank der modernen, zeitlosen Ausstattung eignet sich diese Wohnung sowohl perfekt zur Eigennutzung als auch als attraktive Anlage mit sehr guter Vermietbarkeit.

Als Erstbezug präsentiert sich die Wohnung in hochwertiger Ausführung mit stilvollem Fischgrät-Echtholzparkett, 3-Scheiben Isolierverglasung, elektrische Rollläden, Fußbodenheizung sowie effizienter Luftwärmepumpe – ein zukunftsorientiertes Wohnkonzept mit besonderem Wohngefühl.

Eine ideale Kombination aus kompaktem Wohnen und großzügigem Freiraum – ruhig gelegen und dennoch bestens angebunden.

Wohnfläche: ca. 64,3 m² + Terrasse: ca. 19,18 m² + Kellerabteil 

Kaufpreis (netto für Anleger): € 312.500,- zzgl. 20% Ust. 

Kaufpreis Endverbraucher: € 319.000,- 

KP Garage (optional): € 21.500,-

Provision: 3% zzgl. 20% Ust.

 

Vereinbaren Sie heute noch einen Termin - wir beraten Sie gerne und zeigen Ihnen alle verfügbaren Einheiten!

www.schantl-ith.at

Bei konkretem Interesse senden wir Ihnen sehr gerne weiterführende Dokumente zu, wie:

o Grundbuchauszug

o Wohnungseigentumsvertrag

o Nutzwertgutachten

o Eigentümerversammlungsprotokoll (Falls vorhanden) etc...

 

Unser Service für Sie: Wenn Sie sich für diese Immobilie entschieden haben, begleiten wir Sie gerne vom Kaufanbot weg inkl. Klärung von Sonderwünschen und der Vertragsunterzeichnung über die Wohnungsübergabe bis hin zu diversen Ummeldungen wie Strom und Gas. Entsprechende Formulare oder auch Meldezettel stellen wir Ihnen sehr gerne zur Verfügung.

Gerne unterstützen wir Sie auch bei der Finanzierung Ihres Traumobjekts und finden mit unseren langjährigen Partnern die besten Konditionen für Sie.

www.schantl-ith.at

Wir weisen darauf hin, dass zwischen dem Vermittler und dem zu vermittelnden Dritten ein familiäres oder wirtschaftliches Naheverhältnis besteht.

Der Vermittler ist als Doppelmakler tätig.

Infrastruktur / Entfernungen

Gesundheit
Arzt <250m
Apotheke <750m
Klinik <2.500m
Krankenhaus <1.000m

Kinder & Schulen
Schule <500m
Kindergarten <250m
Universität <1.250m
Höhere Schule <3.500m

Nahversorgung
Supermarkt <750m
Bäckerei <750m
Einkaufszentrum <1.750m

Sonstige
Bank <1.000m
Geldautomat <1.000m
Post <1.500m
Polizei <1.000m

Verkehr
Bus <250m
U-Bahn <3.250m
Straßenbahn <250m
Bahnhof <2.000m
Autobahnanschluss <2.250m

Angaben Entfernung Luftlinie / Quelle: OpenStreetMap
Beschreibung weiterlesen

Lage und Verkehrsanbindung

Hier vereint auf charmante Weise ruhiges Wohnen mit urbaner Lebensqualität. Inmitten einer gewachsenen, angenehmen Wohngegend im 21. Bezirk genießen Sie hier eine entspannte Atmosphäre, während Einkaufsmöglichkeiten, Schulen und öffentliche Verkehrsmittel bequem erreichbar sind.
Die Nähe zu Grünflächen und Naherholungsgebieten schafft einen perfekten Ausgleich zum Alltag und lädt zu erholsamen Momenten im Freien ein.
Eine Lage, die Ruhe, Lebensqualität und gute Anbindung harmonisch miteinander verbindet.
Öffentliche Verkehrsanbindung: Straßenbahnlinien 30, 31// Buslinien 30A, 32A

Brünner Straße, Jedlersdorfer Straße

Energieeffizienz

HWB:
35,3 kWh/(m²*a)
HWB Klasse:
B
fGEE:
0,77
fGEE Klasse:
A
Energieausweisart:
Energiebedarfs-ausweis
Gültig bis:
28.09.2030

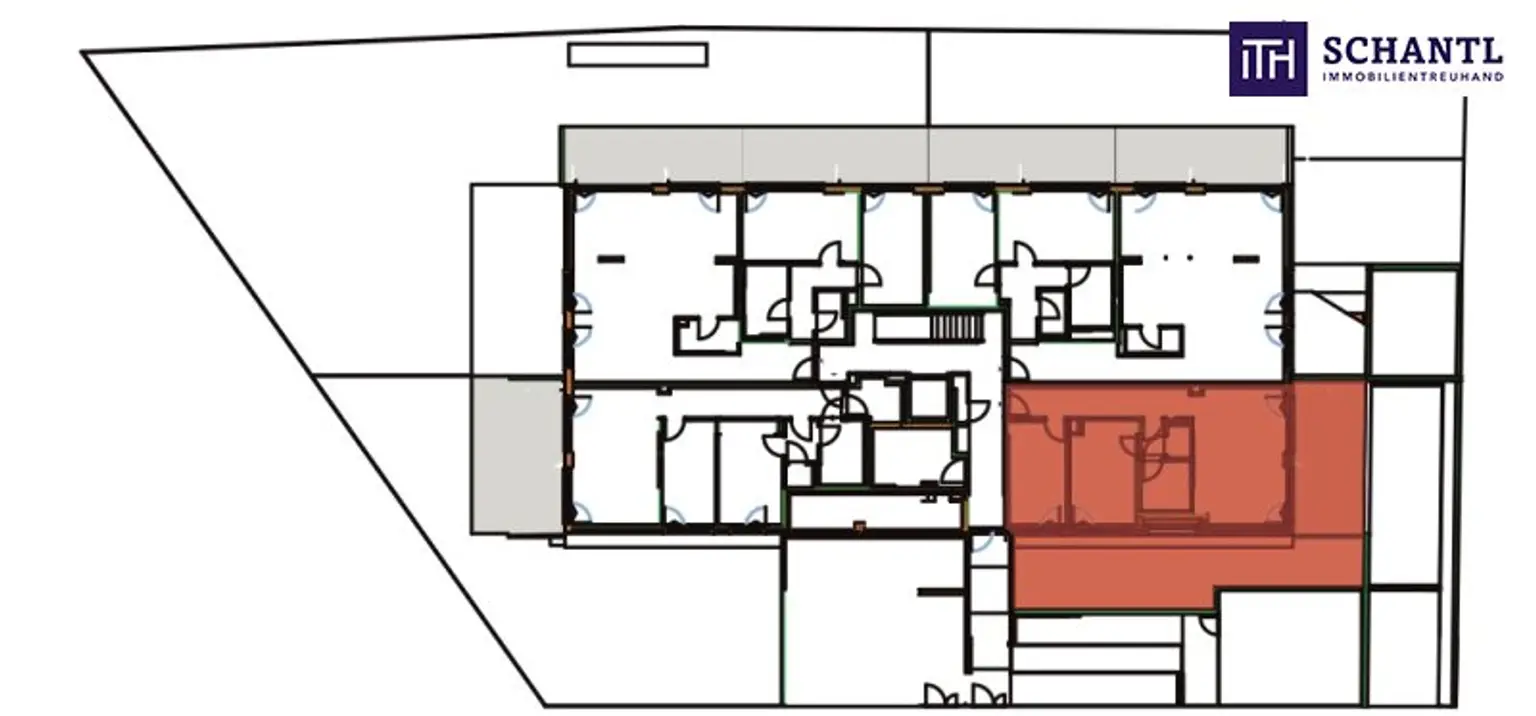
Grundrisse

Lageplan

1210 Wien | Wien 21., Floridsdorf

Lade...
Mark Prettenthaler

Mark Prettenthaler
Projektmanagement und Immobilienvermittlung

Schantl ITH Immobilientreuhand GmbH

Lade...

Fotomix

Bild 1 Bild 2 Bild 3 Bild 4 Bild 5 Bild 6 Bild 7 Bild 8 Bild 9 Bild 10