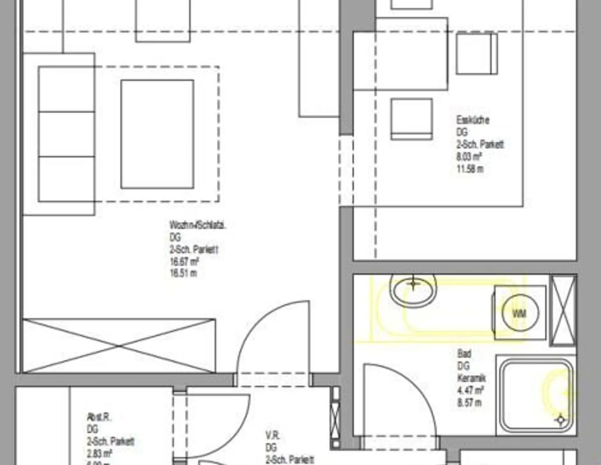
NEU - ++PERFEKTE RAUMAUFTEILUNG++Schöne 1-Zimmer-Wohnung, mit extra Küche, in Weiz

Wohnung zur Miete in 8160 Weiz - Gesamtmiete: 506,28 €

Preisinformationen

Gesamtmiete:
506,28 € / Monat
Vermittlungsprovision:
Ja

Fakten

Objekttyp:
Wohnung
Nutzfläche:
35 m²
Zimmer:
1
Neubau:
Ja
Verfügbarkeit:
Verfügbar

Beschreibung

Die  1-Zimmer-Wohnung + extra Küche punktet   mit einer sehr lichtdurchfluteten Atmosphäre . Sie besticht durch eine sehr gute Raumaufteilung und der tollen Lage  - ein ideales Zuhause für Singles oder Pärchen. Die…

Immo Circle GesBR

Lade...

Fotomix

Bild 1 Bild 2 Bild 3 Bild 4 Bild 5 Bild 6