NEU - POG 81 - Hochwertige 3-Zimmer Wohnung im Neubau-Viertel nahe Gewerbepark Stadlau und Kagraner Platz! Ab Mai verfügbar - JETZT ANFRAGEN

Wohnung zur Miete in 1220 Wien - Gesamtmiete: 1.199,99 € / Objektnummer: 1523008
Ausstattung: Boden Fahrstuhl Bad Garage Tiefgarage Parkplatz Außenparkplatz Fahrradraum Fußbodenheizung Terrasse WG geeignet

Preisinformationen

Gesamtmiete:
1.199,99 € / Monat
Betriebskosten netto:
125,93 € / Monat
Umsatzsteuer:
109,09 €
Kaution:
3 Bruttomonatsmieten

Fakten

Objektnummer:
1523008
Objekttyp:
Wohnung
Terrasse:
1
Wohnfläche:
64,89 m²
Nutzfläche:
70,95 m²
Gesamtfläche:
70,89 m²
Zimmer:
3
Badezimmer:
1
Toilette:
1
Stockwerk:
6
Baujahr:
2022
Neubau:
Ja
Zustand:
Neuwertig
Verfügbarkeit:
Verfügbar

Beschreibung

POG 81 - Hochwertige Wohnungen nahe Gewerbepark Stadlau im ruhigen Neubau-Viertel!

 

Inmitten eines liebevoll gestalteten, resortähnlichen Wohnensembles erwartet Sie modernes Wohngefühl auf höchstem Niveau. Die im Jahr 2022 errichtete Wohnanlage bietet ein durchdachtes Konzept für Menschen, die urbanes Leben mit entspannter Wohnqualität verbinden möchten.

Lage & Anbindung
Die Anlage befindet sich in hervorragender Lage nahe dem Gewerbepark Stadlau. Die öffentliche Anbindung ist ideal: Der Bus 22A hält nur rund 100 Meter entfernt und bringt Sie in nur drei Stationen direkt zum Kagraner Platz mit U1-Anschluss. Auch die Straßenbahnlinie 26 ist fußläufig in etwa 9 Minuten erreichbar – eine Station bringt Sie direkt zum Gewerbepark. So sind Arbeitsplätze, Einkaufsmöglichkeiten und die Wiener Innenstadt schnell und bequem erreichbar.

Wohnen in entspannter Atmosphäre
Die Gebäude fügen sich harmonisch in eine grüne, weitläufige Anlage ein – mit maximal 3 bis 4 Stockwerken pro Haus, begrünten Wegen, Freiflächen und einem kleinen Spielplatz mit Sandkiste. Hier entsteht ein Wohngefühl, das an Urlaub erinnert – ruhig, familienfreundlich und dennoch gut angebunden.

Ausstattung
Alle Wohnungen verfügen über private Freiflächen – ob Balkon, Loggia, Terrasse oder Garten – und bieten durchdachte Grundrisse für unterschiedlichste Lebensphasen. Von kompakten 1-Zimmer-Apartments bis hin zu großzügigen 4-Zimmer-Wohnungen ist für jeden Bedarf das Passende dabei.
Die hochwertige Ausstattung umfasst unter anderem:

*
Fußbodenheizung mit energieeffizienter Wärmepumpe

*
Stützkühlung für angenehmes Raumklima im Sommer

*
Echtholzparkett in Wohnräumen

*
BOSCH-Einbauküchen inklusive Markengeräten

*
Elektrischer, außenliegender Sonnenschutz

*
Kellerabteile, Fahrrad- und Kinderwagenraum sowie eine Tiefgarage im Haus

*
Badezimmer mit Waschmaschinenanschluss und wohnungsabhängig mit Badewanne oder Walk-in-Dusche 

Highlights 

*
Neubau aus 2022 in resortähnlicher, ruhiger Anlage mit viel Grün

*
Top-Anbindung: 100 m zum Bus 22A (U1 Kagraner Platz in 3 Stationen)

*
Nur 9 Gehminuten zur Straßenbahnlinie 26 (1 Station zum Gewerbepark Stadlau)

*
Kleine, charmante Wohnhäuser mit max. 3–4 Stockwerken

*
Grünflächen, Spazierwege und Spielplatz – familienfreundlich & entspannend

*
Moderne Haustechnik: Wärmepumpe, Fußbodenheizung & Stützkühlung

*
Echtholzparkettböden

*
Alle Wohnungen mit Freifläche – Balkon, Loggia, Terrasse oder Garten

*
BOSCH-Einbauküchen inklusive hochwertiger Geräte

*
Elektrischer Sonnenschutz außenliegend – effektiver Hitzeschutz

*
Kellerabteil, Fahrrad- & Kinderwagenraum, Tiefgarage im Haus

*
1- bis 4-Zimmer-Wohnungen – ideal für Singles, Paare & Familien

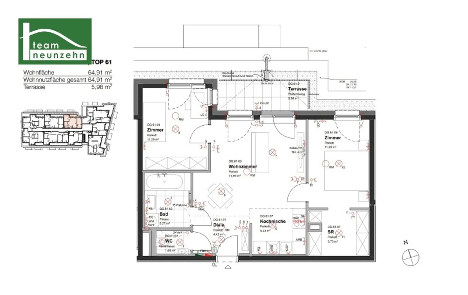
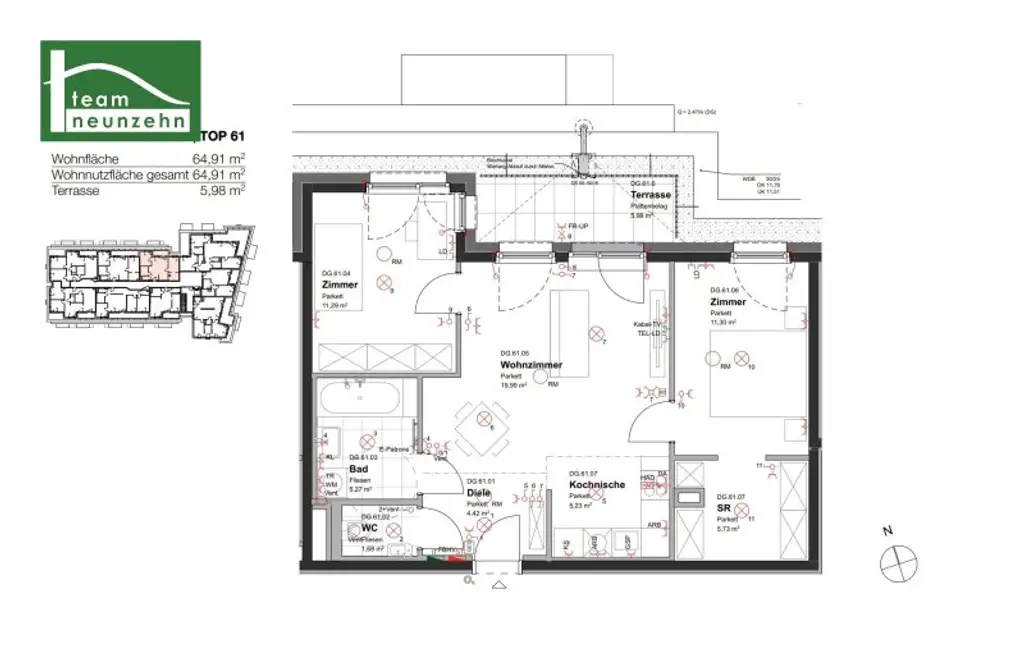
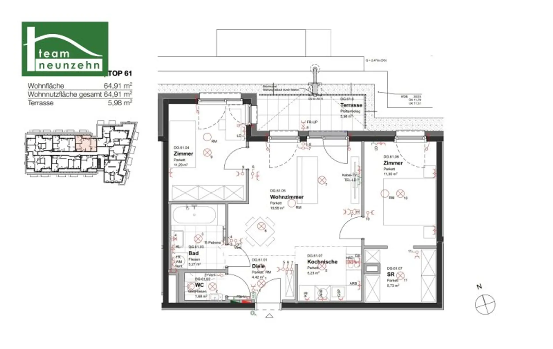
Wohnung Top 61

Die Wohnung hat folgende Raumaufteilung:

* Vorraum/Diele: 4,42 m²
* Wohnzimmer: 19,99 m²
* Kochnische: 5,23 m²
* Zimmer: 11,30 m²
* Schrankraum: 5,73 m²
* Zimmer: 11,29 m²
* Bad: 5,27 m²
* WC: 1,68 m²
* Terrasse: 5,98 m²

 

Wir weisen höflichst darauf hin, dass es sich bei den Fotos anbei um Musterfotos handelt. Die Wohnung wird gleich oder gleichwertig übergeben, es befindet sich im Badezimmer eine Duschkabine statt der abgebildeten Badewanne.

 

Der Küchenbereich ist mit einer modernen Hochglanz - Eckküche ausgestattet inklusive sämtlicher Geräte (Spüle, Geschirrspüler, Cerankochfeld, Backrohr). Die Toilette ist über das Vorzimmer begehbar und räumlich vom Badezimmer getrennt. Sowohl im Sanitärbereich als auch im Vorzimmer ist Platz für ausreichend Stauraum! Zusätzlich steht aber noch ein Einlagerungsraum im Keller zu Verfügung! Im Badezimmer befindet sich eine Badewanne, ein Waschbecken und ein Waschmaschinenanschluss.

In der gesamten Wohnung wurde ein hochklassiger Parkettboden (Eiche) verlegt, der Sanitärbereich ist mit ebenso hochwertigen Fliesen versehen. Bei den Fenstern handelt es sich um Fenster mit einer 3-Fach Isolierverglasung – nicht zu vergessen die elektronisch bedienbaren Außenrollläden, die Schutz vor der Sonne bieten! Beheizt wird die Wohnung mittels einer Fußbodenheizung über eine hauseigene Wärmepumpe mittels Grundwasserbrunnen. Diese besitzt auch eine Stützkühlung! Das Warmwasser wird über eine Grauwasser Wärmepumpe sowie Grundwasserwärmepumpe geliefert.

 

Mietkosten:

monatliche Mietkosten: 1.200,00 € (inkl. Betriebskosten & Umsatzsteuer)

Zusätzlich kann ein Stellplatz in der Tiefgarage zu einem Mietpreis von 109,80 € inkl. USt. Erworben werden. 

Die monatlichen Kosten für Heizung, Warmwasser und Strom richten sich nach dem tatsächlichen Verbrauch und fallen gesondert an.

 

Nebenkosten:

Kaution: 3 Bruttomonatsmieten

Einmalige Mietvertragserrichtungsgebühr: 349,00 € inkl. USt. 

Einmalige Mietvertragserrichtungsgebühr - Stellplatz: 199,00 € (inkl. 20% USt.)

PROVISIONSFREI

 

Infrastruktur:

Ihre neue Nachbarschaft zeichnet sich durch folgende Annehmlichkeiten aus:

 

-Einkaufsmöglichkeiten:

Supermarkt, Apotheken, Bank, etc. in Gehnähe

 

-Ärzte und Apotheken:

Allgemeinmediziner, Kinderärzte, Zahnarzt, etc. in unmittelbarerer Umgebung

 

-Schulen und Kindergarten:

Volksschule LIFE, Kindergarten LIFE, FIDS (Zentrum für den Fachbereich Inklusion Diversität und Sonderpädagogik) , Mittelschule Kagran, Business Academy Donaustadt

 

-Öffentliche Verkehrsanbindungen:

Straßenbahnlinien 26

Buslinie 22A, 24A, 87A

 U-Bahn – 1,4km entfernt: U1 Kagraner Platz

 

Energieausweis:

Der Heizwärmebedarf beträgt 23,10 kWh/m²a und entspricht somit der Klasse A. 

 

Gerne steht Ihnen Christoph Kolar bei weiteren Fragen oder Wunsch nach einer Besichtigung über das Anfrage-Feld, via E-Mail unter kolar@teamneunzehn.at oder telefonisch unter +43676 852 243 541 zur Verfügung.

Wir weisen darauf hin, dass zwischen dem Vermittler und dem zu vermittelnden Dritten ein familiäres oder wirtschaftliches Naheverhältnis besteht.

Der Immobilienmakler erklärt, dass er – entgegen dem in der Immobilienwirtschaft üblichen Geschäftsgebrauch des Doppelmaklers – einseitig nur für den Vermieter tätig ist.

"Leben braucht Raum" * T19-RE Real Estate GmbH & Co KG * www.teamneunzehn.at [https://www.teamneunzehn.at]

Doppelmakler

Wir werden als Immobilienmakler kraft bestehenden Geschäftsgebrauchs als Doppelmakler tätig und haben sohin beide Seiten des Vertrages (Verkäufer-Käufer, Vermieter-Mieter) zu unterstützen.

Wirtschaftliches Naheverhältnis

Es wird bekannt gegeben, dass folgendes wirtschaftliches Naheverhältnis zwischen der teamneunzehn-Gruppe und dem Verkäufer/der vermietenden Partei besteht: ständige und dauerhafte Beauftragung mit der Vermittlung des bestehenden Immobilienportfolios

Haftungserklärung zum Inserat

Irrtum und Änderungen vorbehalten! Sofern es sich bei Bildern um Visualisierungen handelt, können Abänderungen zur tatsächlichen Ausführung resultieren. Wir weisen ausdrücklich darauf hin, dass das auf Fotos oder Visualisierungen ersichtliche Mobiliar bzw. Inventar nicht Bestandteil des inserierten Preises ist.

 

 

Maßgefertigte Tischlerküchen zum fairen Preis

Vollkommen transparent mit Fingerspitzengefühl und individuell sorgen wir für die Verwirklichung der auf Ihre Immobilie und Wünsche zugeschnittenen Maßküchen- und Möbel, welche insbesondere durch attraktive Preise bei höchster Qualität punkten können. Gerne beraten wir auch Sie, bitte wenden Sie sich zur anschließenden Kontaktaufnahme an kueche@teamneunzehn.at

Passender Versicherungsschutz für Ihre Immobilie?

Sie haben eine Immobilie erworben oder angemietet und benötigen nun einen passenden Versicherungsschutz, welcher Sie im Schadensfall vor unerwarteten Kosten schützt? Wir können Ihnen ein unverbindliches und günstiges Angebot von einem unabhängigen Kooperationspartner zukommen lassen. Die Zusendung und Kommunikation erfolgt direkt mit unserem Kooperationspartner, die Unterlagen zu Ihrer Wohnung erhält der Kooperationspartner jedoch im Vorfeld bereits direkt von uns (Ihr Zeitaufwand soll ja schlussendlich möglichst geringgehalten werden). Bei Interesse freuen wir uns auf Ihre Kontaktaufnahme unter versicherung@teamneunzehn.at

Gründliche und professionelle Reinigung Ihrer Immobilie

Jede Immobilie ist besonders und hat Ihre Vorzüge, eine gereinigte Wohnung ist definitiv begehrter und ermöglicht einen besseren Verwertungserfolg. Wir möchten unseren Kunden stets Immobilien im gereinigten Zustand präsentieren und stehen für Rückfragen bzw. bei Bedarf zu unserem Serviceangebot gerne unter reinigung@teamneunzehn.at zur Verfügung

Infrastruktur / Entfernungen

Gesundheit
Arzt <725m
Apotheke <450m
Klinik <1.550m
Krankenhaus <2.775m

Kinder & Schulen
Schule <175m
Kindergarten <825m
Universität <2.275m
Höhere Schule <1.275m

Nahversorgung
Supermarkt <100m
Bäckerei <825m
Einkaufszentrum <450m

Sonstige
Geldautomat <1.075m
Bank <1.075m
Post <1.200m
Polizei <1.600m

Verkehr
Bus <175m
U-Bahn <1.225m
Straßenbahn <350m
Bahnhof <1.225m
Autobahnanschluss <400m

Angaben Entfernung Luftlinie / Quelle: OpenStreetMap
Beschreibung weiterlesen

Lage und Verkehrsanbindung

Leopold-Kohr-Straße, Noskoweg, Wiltweg, Raffenstättergasse

Energieeffizienz

HWB:
23,1 kWh/(m²*a)
HWB Klasse:
A
fGEE:
0,61
fGEE Klasse:
A+
Energieausweisart:
Energiebedarfs-ausweis

Grundriss

Lageplan

1220 Wien | Wien 22., Donaustadt

Lade...
Christoph Kolar

Christoph Kolar
Immobilienvermittlung

teamneunzehn-Gruppe

Lade...

Fotomix

Bild 1 Bild 2 Bild 3 Bild 4 Bild 5 Bild 6 Bild 7 Bild 8 Bild 9 Bild 10 Bild 11 Bild 12 Bild 13 Bild 14 Bild 15 Bild 16 Bild 17 Bild 18 Bild 19 Bild 20