NEU - PORTALLOKAL IN TOP-FREQUENZLAGE ! BRANCHENFREI !

Einzelhandel zur Miete in 2544 Leobersdorf - Gesamtmiete: 1.672,11 € / Objektnummer: 1606
Ausstattung: Barrierefrei Kabel/Satelliten-TV Klimaanlage Zentralheizung
Blick zum Parkplatz
Verkaufsraum
Verkaufsraum
Installationen Wasser, Abwasser, Steckdosen
Kleine Niesche f. Garderobe
Zugang zu Nebenräumen
Nebenraum m. Therme u. WC
Ausblick in den Hof
E-Verteiler
Thermostat Heizung
Portallokal - 3D Foto
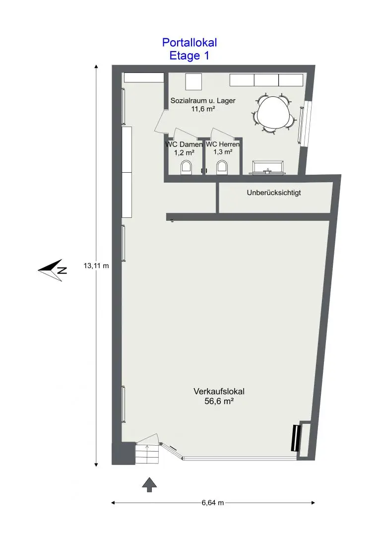
Portallokal, 2D-Plan

Preisinformationen

Gesamtmiete:
1.672,11 € / Monat
Gesamtmiete (exkl. USt.):
1.663,40 € / Monat
Betriebskosten netto:
93,40 € / Monat
Umsatzsteuer:
8,71 €
Kaution:
5.000,00 €

Fakten

Objektnummer:
1606
Objekttyp:
Einzelhandel
Nutzfläche:
70 m²
Toilette:
2
Baujahr:
ca. 1966
Neubau:
Ja
Zustand:
Erstbezug
Verfügbarkeit:
Verfügbar

Beschreibung

HANDEL | ATELIER | GASTRO | BÜRO – neu saniert & individuell nutzbar!

Hohe Kundenfrequenz, modernes Interieur, viel Tageslicht, innovative Beleuchtung und Parkplätze direkt vor dem Lokal – all das sind entscheidende Erfolgsfaktoren für ein florierendes Geschäft.
Wir freuen uns, Ihnen genau diese Möglichkeit zu bieten: ein hochwertig saniertes Portallokal mit Nutzfläche von 70m² in bester Lage im Zentrum von Leobersdorf.

AUSSTATTUNG AUF HÖCHSTEM NIVEAU

• Moderner Bodenbelag: Innovativer, fugenloser und hygienische Oberflächenbeschichtung von Rhode.
• Sanitärbereich: Zwei neue Toiletten, verfliest bis 2 Meter Höhe, mit leistungsstarker Entlüftung.
• Elektrik: Erneuerte Leitungen, Verteiler, FI-Schutzschalter und zahlreiche Steckdosen; positiver E-Befund liegt vor.
• Beleuchtung: Effizientes Lichtsystem im Verkaufslokal sowie individuell verstellbare Spot-Beleuchtung für die Auslage.
• Lüftung: Automatisches Belüftungssystem mit Wandlüftern.
• Fenster & Eingang: Neues Auslagenfenster und moderne Glas-Eingangstür.
• Installationen: Erneuerte Wasser- und Abwasserleitungen im gesamten Lokal und den Nebenräumen.
• Heizung & Warmwasser: Neue Saunier Duval-Therme mit Kaminbefund.
• Wände & Decken: Komplett saniert für eine ansprechende, moderne Optik.
• Individuelle Gestaltung: Die Portalrahmung kann nach Absprache mit dem Eigentümer gestaltet werden.
• Werbemöglichkeiten: Drei Flächen für Ihre Werbeschilder an der Fassade.
• Energieausweis: In Ausarbeitung und wird nachgereicht.


TOP-STANDORT IN STARK FREQUENTIERTER LAGE

Das Zentrum von Leobersdorf ist ein beliebter Anziehungspunkt für rund 75.000 Einwohner aus den umliegenden Gemeinden, darunter Baden, Bad Vöslau, Berndorf, Enzesfeld-Lindabrunn, Felixdorf, Kottingbrunn, Matzendorf, Schönau an der Triesting und Sollenau.
Die Region bietet zahlreiche Einkaufsmöglichkeiten und Attraktionen:
• Ared-Park und ZIWA-Shopping mit 19 Geschäften und einem Interspar
• DIE PASSAGE in direkter Nachbarschaft
• Vielfältige saisonale Märkte am Leobersdorfer Hauptplatz
Hier ist immer etwas los – ideal für Ihr Geschäft!
Die Kombination aus optimaler Größe, erstklassiger Lage, flexibler Gestaltung und attraktiven Mietkonditionen macht dieses Portallokal zu einer einzigartigen Gelegenheit. Dank der hervorragenden Sichtbarkeit und Erreichbarkeit profitieren Sie von hoher Kundenfrequenz. Zusätzlich stehen Parkplätze direkt vor dem Geschäft zur Verfügung – sowohl kostenpflichtige als auch kostenfreie.
Nutzen Sie diese einmalige Chance und sichern Sie sich dieses exklusive Geschäftslokal für Ihren Erfolg!







KOSTEN

Kaution: € 5.000,-
Miete: € 1.570,- (ohne USt.)
Betriebskosten: € 102,11 (inkl. 10 bzw. 20% USt.)
Zuzüglich verbrauchsabhängige Kosten wie Gas, Strom, Internet etc. sind vom Mieter zu bezahlen.
Nebenkosten:
Vergebührung Finanzamt
Makler Provision: 3 MM zzgl. 20% USt.
Befristung: 5 Jahre, eine Verlängerung ist möglich.
Eventuelle gewerberechtliche Genehmigungen sind allein vom Mieter zu erfüllen. Die Angaben zum Objekt basieren auf uns zur Verfügung gestellten Informationen. Eine Haftung unsererseits ist hierfür ausgeschlossen.
Wir informieren Sie darüber, dass wir bei diesem Objekt eine Doppelmaklertätigkeit ausüben. (§ 5 Abs. 3 MaklerG).
Detailfragen werden im Zuge von Besichtigungen besprochen, geklärt oder nachgereicht.

Wir bitten um Verständnis, dass wir aufgrund der Nachweispflicht gegenüber dem Eigentümer, nur Anfragen mit vollständigen Kontaktdaten (Name, Anschrift, Tel.-Nr., E-Mail) beantworten können.
Gerne unterstütze ich Sie bei der Realisierung Ihrer Interessen!
Angaben gemäß gesetzlichem Erfordernis:
Miete 1570
Betriebskosten 16,82 zzgl 20% USt.
Kanal 38,97 zzgl 10% USt.
Müll 14,47 zzgl 10% USt.
Versicherung 23,14
Umsatzsteuer 8,71
---------------------------------
Gesamtbetrag 1672,11

Sie finden alle unsere Objekte 2 Tage früher auf www.remax.at!
Beschreibung weiterlesen

Lageplan

2544 Leobersdorf | Baden

Lade...
Brigitta Grausam

Brigitta Grausam

RE/MAX Welcome in Baden

Anrufen
Lade...

Fotomix

Blick zum Parkplatz Verkaufsraum Verkaufsraum Installationen Wasser, Abwasser, Steckdosen Kleine Niesche f. Garderobe Zugang zu Nebenräumen Nebenraum m. Therme u. WC Ausblick in den Hof E-Verteiler Thermostat Heizung Portallokal - 3D Foto Portallokal, 2D-Plan