NEU - PRAXIS / THERAPIE / BÜRO IN ABSOLUTER RUHELAGE NÄHE SCHWEDENPLATZ UND STEPH...

Immobilie zur Miete in 1010 Wien / Objektnummer: 19292
Ausstattung: Boden Fernwärme Terrasse

Preisinformationen

Gesamtmiete (exkl. USt.):
936,83 € / Monat
Betriebskosten netto:
114,08 € / Monat
Umsatzsteuer:
187,37 €
Kaution:
3.400,00 €
Vermittlungsprovision:
Ja
Provision:
3.372,59 € inkl. 20% USt.

Fakten

Objektnummer:
19292
Terrasse:
1
Wohnfläche:
32,91 m²
Zimmer:
1
Badezimmer:
1
Toilette:
1
Baujahr:
1802
Letzte Sanierung:
2007
Zustand:
Neuwertig
Verfügbarkeit:
Verfügbar

Beschreibung

BÜRO/PRAXIS/ORDINATION IN BESTER LAGE IM DACHGESCHOSS MIT TERRASSE UND TOLLER INFRASTRUKTUR

Verfügbar ab sofort!

In einem denkmalgeschützten klassizistischen Haus (Baujahr 1802, Grundfeste Ende des 16. Jhdts.) wurde 2007 mit viel Bedacht und Fingerspitzengefühl von Stararchitekt Adolf Krischanitz ein Wohnprojekt der Extraklasse verwirklicht. Auf drei Etagen wurden 22 Einheiten mit hochwertiger Ausstattung errichtet, welche sich durch die Verbindung von Individualität und Gemeinschaft auszeichnen. Durch die offene Bauweise wird ein Miteinander ermöglicht, wobei die einzelnen Wohnungen den Bewohnern auch Rückzug und Geborgenheit bieten. 

Für das luxuriöse Ambiente sorgen eine 400m2 große Dachterrasse, ein Teil davon kann von den Mietern genutzt werden, mit atemberaubendem Ausblick über die Dächer der Innenstadt zum Stephansdom, eine Gemeinschaftsküche (gegen Reservierung und Reinigungspauschale), Fahrradraum und Waschküche.

Ein attraktives Angebot für Menschen mit Interesse an fernöstlichen Lebensweisen rundet dieses Projekt ab. Ein Meditationsraum ist vorhanden, fallweise findet Yoga auf der Dachterrasse statt und es gibt bereits unterschiedliche Therapie-Angebote sowie Büros (vorwiegend EPU) im Haus.

Selbstverständlich stehen den Mietern Lift, Fahrradraum sowie ein jeweils zugeordnetes Kellerabteil zur Verfügung. 

LAGE UND UMGEBUNG

Das Haus befindet sich im Herzen Wiens Nähe Lugeck und Hoher Markt. Nahversorgung und Freizeitmöglichkeiten lassen in dieser Lage keine Wünsche offen und auch die Anbindung an das öffentliche Verkehrsnetz ist perfekt - U1, U4, 1, 2, 2A befinden sich in unmittelbarer Nähe.

AUSSTATTUNG

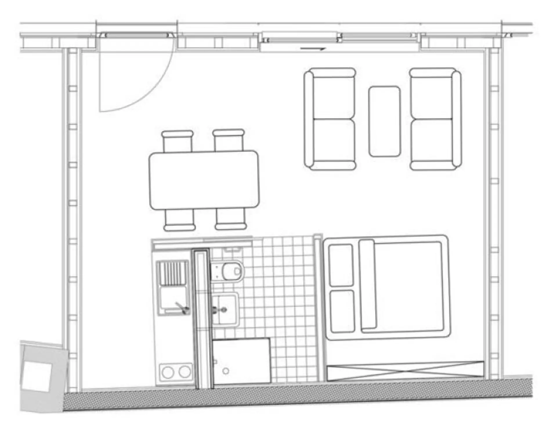
* ca. 32,91m² 
* 1 Raum
* Küchenzeile mit Ober- und Unterschränken, Herd, Backrohr, Kühlschrank, Geschirrspüler
* Badezimmer mit Dusche, WC und Waschmaschinenanschluss
* zugeordnetes Kellerabteil (ca. 1m²) und Fahrradraum
* hochwertige Eichenparkettböden im Wohn- und Schlafbereich, Fliesen im Badezimmer
* Holzisolierglasfenster mit teilweise Verdunklungsjalousien
* Fernwärme
* Gegensprechanlage

VERMIETUNG

Die Einheit kann ab sofort angemietet werden, Besichtigungstermine sind nach Vereinbarung möglich.

Der Mietvertrag wird auf 5 Jahre befristet abgeschlossen, Verlängerung möglich. Der monatliche Bruttomietzins ist wertgesichert und beträgt EUR 1.124,20, Kaution EUR 3.400, Vermittlungsprovision 3 BMM zzgl. 20%USt, Vergebührung Mietvertrag ca. EUR 600,-.

ENERGIEAUSWEIS

Gültig bis 5.7.2033, HWB C 56,8 kWh/m²a, fGEE C 1,04

Ich freue mich auf Ihre Anfragen unter hartl@immoagency.at oder 0660/4549848 und stehe Ihnen für einen Besichtigungstermin gerne zur Verfügung!

Wir weisen darauf hin, dass zwischen dem Vermittler und dem zu vermittelnden Dritten ein familiäres oder wirtschaftliches Naheverhältnis besteht.

Der Vermittler ist als Doppelmakler tätig.
Beschreibung weiterlesen

Lage und Verkehrsanbindung

Lugeck

Energieeffizienz

HWB:
56,8 kWh/(m²*a)
HWB Klasse:
C
fGEE:
1,04
fGEE Klasse:
C
Energieausweisart:
Energiebedarfs-ausweis
Gültig bis:
05.07.2033

Grundriss

Lageplan

1010 Wien | Wien 1., Innere Stadt

Lade...
Alexandra Hartl

Alexandra Hartl
Schwerpunkt: klassische Wiener ALTBAUWOHNUNGEN

IMMO AGENCY GmbH

Anrufen
Lade...

Fotomix

Bild 1 Bild 2 Bild 3 Bild 4 Bild 5 Bild 6 Bild 7 Bild 8 Bild 9 Bild 10 Bild 11 Bild 12 Bild 13 Bild 14 Bild 15 Bild 16 Bild 17