NEU - Premium-Altbau mit 4 Zimmern in absoluter Spitzenlage

Wohnung zum Kauf in 1090 Wien - Kaufpreis: 665.000 € / Objektnummer: 101/18654
Ausstattung: Etagenheizung
1
2
3
4
5
6
7
8
9
10
öblichgasse 9_70dpi
Löblhgasse 9_70dpi
Löblichgae 9_70dpi
Löble 9_70dpi
Löblichgass 9_70dpi
Löblichgasse 9_
Löblichgasse 9_70dpi
Lse 9_70dpi
asse 9_70dpi
Top 10

Preisinformationen

Kaufpreis:
665.000 €
Kaufpreis/m²
6.526,65 €
Betriebskosten netto:
280,94 € / Monat
Vermittlungsprovision:
Ja
Provision:
3%

Fakten

Objektnummer:
101/18654
Objekttyp:
Wohnung
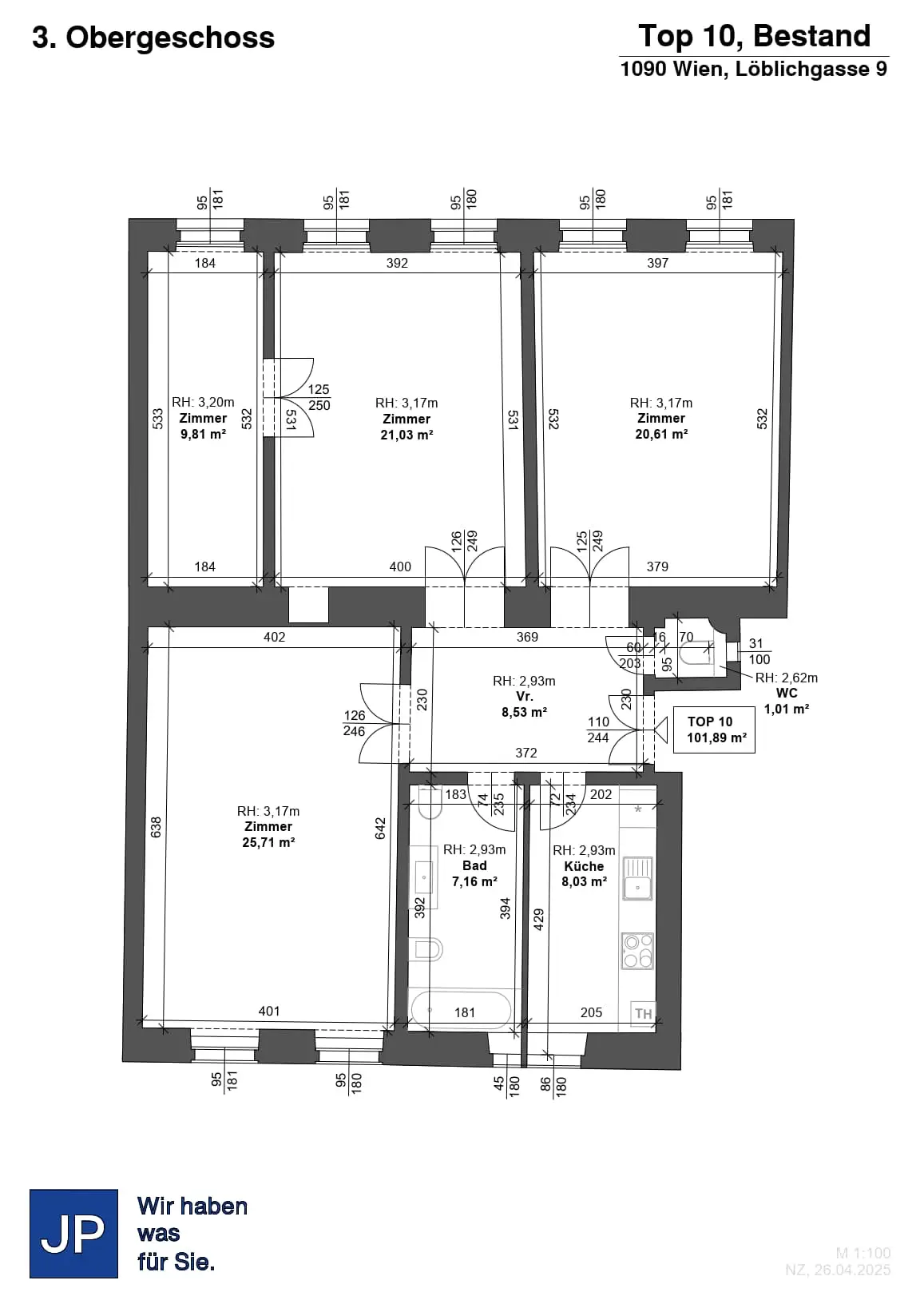
Wohnfläche:
101,89 m²
Zimmer:
4
Badezimmer:
1
Toilette:
1
Stockwerk:
3
Altbau:
Ja
Verfügbarkeit:
Verfügbar

Beschreibung

Diese klassische Altbauwohnung im 3. Obergeschoss überzeugt durch ihre großzügige Raumstruktur und mehrere gut geschnittene Zimmer. Die Wohnung verfügt über vier Zimmer, eine separate Küche, ein Badezimmer, ein getrenntes WC sowie einen zentralen Vorraum. Die hohen Räume und die klassischen Altbaudetails – wie Parkettböden und Flügeltüren – verleihen der Wohnung ein repräsentatives Wohngefühl und unterstreichen den typischen Wiener Altbaucharakter. Der Zustand ist grundsätzlich gepflegt, entspricht jedoch nicht mehr vollständig einem zeitgemäßen Standard. Für eine optimale Nutzung empfiehlt sich eine Modernisierung der Oberflächen sowie eine Adaptierung von Küche, Bad und technischen Installationen. Eine große Altbauwohnung mit mehreren Zimmern und attraktivem Entwicklungspotenzial in begehrter Lage des 9. Bezirks. Ihre Highlights auf einen Blick: - Stilvolles Gründerzeithaus mit Altbaucharakter - Teilweise saniert – teilweise mit Entwicklungspotenzial - Top-Lage im 9. Bezirk - U-Bahn und Nahversorgung in unmittelbarer Nähe Lage Die Liegenschaft in der Löblichgasse 9 befindet sich in ausgezeichneter Lage des 9. Wiener Gemeindebezirks (Alsergrund), einem der gefragtesten innerstädtischen Wohnbezirke Wiens. Die Umgebung ist geprägt von repräsentativen Altbauten, gepflegten Wohnhäusern und einer gewachsenen städtischen Infrastruktur. Die Nahversorgung ist umfassend gesichert: Supermärkte, Bäckereien, Apotheken sowie diverse Fachgeschäfte befinden sich in fußläufiger Distanz. Darüber hinaus bietet die nahegelegene Nußdorfer Straße eine Vielzahl an Gastronomiebetrieben, Cafés und Dienstleistungsangeboten. Durch die Nähe zur Innenstadt profitieren Bewohner von einem urbanen Umfeld mit hoher Lebensqualität. Die öffentliche Verkehrsanbindung ist sehr gut. Mehrere Straßenbahnlinien (u. a. 37, 38, 40, 41, 42) sowie Busverbindungen sind rasch erreichbar und gewährleisten eine schnelle Anbindung an das Stadtzentrum sowie an weitere Bezirke. Die U-Bahn-Stationen der Linien U6 (Währinger Straße/Volksoper bzw. Nußdorfer Straße) befinden sich in komfortabler Reichweite. Erholungs- und Freizeitmöglichkeiten sind ebenfalls gegeben: Der nahegelegene Liechtensteinpark sowie der Donaukanal bieten Grünflächen und Möglichkeiten zur Freizeitgestaltung im Freien. Bildungseinrichtungen, darunter Universitäten, Schulen und Kindergärten, befinden sich im direkten Umfeld, was die Lage zusätzlich attraktiv macht. Ansprechpartner Frau Doris Kurzweil || +43 699 17 55 66 16 || dk@jpi.at Herr Iman Ajdari || +43 699 17 55 66 68 || ia@jpi.at Wir weisen darauf hin, dass wir mit dem Abgeber in ständiger Geschäftsbeziehung stehen und schon aus diesem Grund ein wirtschaftliches Naheverhältnis vorliegt.
Beschreibung weiterlesen

Lage und Verkehrsanbindung

Währinger Straße

Energieeffizienz

HWB:
216,5 kWh/(m²*a)
HWB Klasse:
F
fGEE:
2,94
fGEE Klasse:
E

Grundriss

Iman Ajdari

Iman Ajdari

JP Immobilien

Lade...

Fotomix

1 2 3 4 5 6 7 8 9 10 öblichgasse 9_70dpi Löblhgasse 9_70dpi Löblichgae 9_70dpi Löble 9_70dpi Löblichgass 9_70dpi Löblichgasse 9_ Löblichgasse 9_70dpi Lse 9_70dpi asse 9_70dpi