NEU - Premium Miete - mit Garten am Fuße des Karwendels

Wohnung zur Miete in 6067 Absam - Gesamtmiete: 2.245,00 € / Objektnummer: 42451
Ausstattung: Boden Fahrstuhl Bad Parkplatz Außenparkplatz Fernwärme Garten
DSC00094_hdr.jpg
DJI_20250702115420_0116_D.jpg
DSC00104_hdr.jpg
DSC00079_hdr.jpg
DSC00059_hdr.jpg
DSC00179_hdr.jpg
DSC09937_hdr (1).jpg
DSC09878_hdr.jpg
DSC09917_hdr (1).jpg
GR RG gesamt.png
GR UG.png

Preisinformationen

Gesamtmiete:
2.245,00 € / Monat
Betriebskosten netto:
265,00 € / Monat
Provision:
Gemäß Erstauftraggeberprinzip bezahlt der Vermieter/Verpächter die Provision.

Fakten

Objektnummer:
42451
Objekttyp:
Wohnung
Keller Fläche:
31,64 m²
Nutzfläche:
120,82 m²
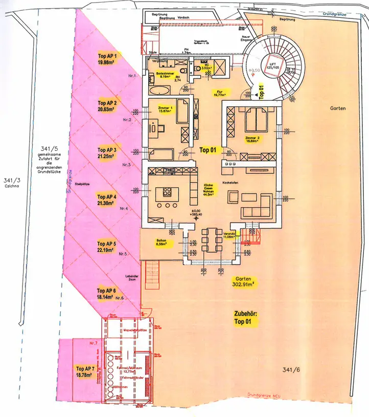
Gartenfläche:
302,91 m²
Zimmer:
3
Badezimmer:
1
Toilette:
2
Baujahr:
2024
Neubau:
Ja
Zustand:
Erstbezug
Verfügbarkeit:
Verfügbar

Beschreibung

Hier einige kurze Informationen zur Immobilie:

  • Nutzfläche ca. 120,82 m² über das gesamte Erdgeschoß.
  • Südausrichtung mit ca. 302,91 m² großem Garten.
  • Offenes Wohnkonzept mit Design-Küche, Essbereich und Wohnzimmer mit herrlichem Ausblick auf die umliegende Bergwelt
  • Moderne Einbauküche mit hochwertigen Geräten für gehobene Ansprüche.
  • Kachelofen für ein gemütliches Wohnerlebnis.
  • Hochwertige Ausstattung durch Holz- und Fliesenböden.
  • Optimal genutztes Badezimmer mit Fenster, Badewanne, stilvoller Ausstattung, WC
  • Drei Kellerräume, welche sogar vom eigenen Garten begehbar sind (insgesamt ca. 31,64 m²) – vielfältig nutzbar, z. B. als Lager, Atelier oder Hobbyraum
  • 2 KFZ-Abstellplätze im Freien vorhanden 
  • Lehmputz im Keller sorgt für ein gutes Raumklima und natürliche Luftfeuchtigkeit
  • Fernwärmeheizung – zentral, effizient und zukunftssicher
  • Wohnungseigentum - nur 3 Einheiten im Objekt
  • Haus in Eigenverwaltung – schlanke Struktur, volle Kontrolle, niedrige Betriebskosten
  • Die Wohnung ist ab Jänner 2026 beziehbar.

Die Miete setzt sich zusammen aus:

Nettomiete - € 1.800,-
Umsatzsteuer - € 180,-
Betriebskosten - ca. € 265,-

Infina, Österreichs beliebtester Wohnbau-Finanz-Experte, begleitet Sie ganzheitlich rund um Ihr Immobilienvorhaben.

Die Entscheidung, ob man eine Immobilie mieten oder kaufen möchte, sollte gut überlegt sein. Unser Mieten-oder-Kauf-Vergleichsrechner bietet Ihnen eine optimale finanzielle Entscheidungsgrundlage. Der Vergleich lohnt sich. Jetzt bei Infina

Mietpreis gesamt EUR 2.245,00
(Sämtliche o.a. m²-Angaben laut Nutzwertgutachten gem. Kauf & Wohnungseigentumsvertrag bzw. Einreichplanung)

Für weitere Informationen fordern Sie bitte unser ausführliches Exposé an.

Nina Prock, MA
nina.prock@infina-partner.at

Was kann Infina noch für Sie tun?

Wenn Sie eine Finanzierung für Ihre Traumimmobilie wünschen, begleiten wir Sie gerne von der strategischen Planung bis zur Realisierung und darüber hinaus. Wir sind Österreichs beliebtester Wohnbau-Finanz-Experte und unsere Mission lautet: Jeder Kunde hat das Recht auf den besten Kredit.

  • Infina kooperiert mit über 120 Banken in Österreich und Deutschland
  • Über 600 Kreditprodukte im Vergleich
  • Über 100-mal vor Ort in ganz Österreich

Ebenso unterstützen wir unsere Kunden beim Verkauf und der Vermietung Ihrer Immobilien sowie bei der Immobiliensuche durch unsere Immobilienexperten.


Wir weisen Sie darauf hin, dass die gemachten Angaben und Informationen lediglich unverbindliche Vorabinformationen sind und daher ohne Gewähr erfolgen. Der Immobilienmakler erklärt, dass er – entgegen dem in der Immobilienwirtschaft üblichen Geschäftsgebrauch des Doppelmaklers – einseitig nur für den Vermieter tätig ist.

Beschreibung weiterlesen

Lage und Verkehrsanbindung

Die Schillerstraße befindet sich in ruhiger, sonniger Lage von Absam, einer der begehrtesten Wohngegenden im Raum Hall in Tirol. Umgeben von gepflegten Häusern und charmantem Dorfflair, bietet die Lage Privatsphäre und Ruhe bei gleichzeitig exzellenter Infrastruktur.
Nahversorger, Apotheke, Schulen, Kindergarten, Öffis und viele Freizeitangebote sind fußläufig erreichbar. Die Stadt Hall ist in wenigen Minuten erreichbar, Innsbruck liegt nur ca. 15 Fahrminuten entfernt.
Ob Wandern im Halltal, Skitouren im Winter oder ein entspannter Spaziergang im Naherholungsgebiet: Diese Wohnlage steht für aktive Entspannung, Naturgenuss und hohe Lebensqualität. Die Aussicht auf die Tiroler Alpenkulisse ist allgegenwärtig und beeindruckt täglich aufs Neue.

Energieeffizienz

HWB:
97,8 kWh/(m²*a)
HWB Klasse:
C
fGEE:
1,19
fGEE Klasse:
C
Energieausweisart:
Energiebedarfs-ausweis
Gültig bis:
15.04.2033

Grundrisse

Lageplan

6067 Absam | Innsbruck-Land

Lade...
Nina Prock

Nina Prock
Infina Partnerin, Immobilienexpertin

Anrufen
Lade...

Fotomix

DSC00094_hdr.jpg DJI_20250702115420_0116_D.jpg DSC00104_hdr.jpg DSC00079_hdr.jpg DSC00059_hdr.jpg DSC00179_hdr.jpg DSC09937_hdr (1).jpg DSC09878_hdr.jpg DSC09917_hdr (1).jpg