NEU - Premium Miete - Penthouse am Fuße des Karwendels

Wohnung zur Miete in 6067 Absam - Gesamtmiete: 2.330,00 € / Objektnummer: 42447
Ausstattung: Boden Fahrstuhl Bad Parkplatz Außenparkplatz Fernwärme Balkon
DSC09210_hdr.jpg
DJI_20250702115353_0114_D.jpg
DJI_20250702115420_0116_D.jpg
DSC09370_hdr.jpg
DSC09335_hdr.jpg
DSC09320_hdr.jpg
DSC09390_hdr.jpg
DSC09180_hdr.jpg
DSC09090_hdr.jpg
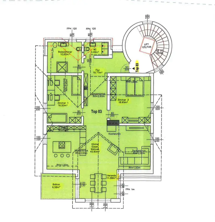
Grundriss Top 3 Absam.png
GR UG.png

Preisinformationen

Gesamtmiete:
2.330,00 € / Monat
Betriebskosten netto:
350,00 € / Monat
Provision:
Gemäß Erstauftraggeberprinzip bezahlt der Vermieter/Verpächter die Provision.

Fakten

Objektnummer:
42447
Objekttyp:
Wohnung
Balkon:
1
Balkonfläche:
6,58 m²
Keller Fläche:
16,16 m²
Nutzfläche:
126,1 m²
Zimmer:
3
Badezimmer:
1
Toilette:
2
Baujahr:
2024
Neubau:
Ja
Zustand:
Erstbezug
Verfügbarkeit:
Verfügbar

Beschreibung

Hier einige kurze Informationen zur Immobilie:

  • Nutzfläche ca. 126 m² in traumhafter Dachgeschoßlage
  • Süd-Westausrichtung mit großer Terrasse und Weitblick auf die Berge, Stadt und Grünflächen
  • Offenes Wohnkonzept mit Design-Küche, Essbereich und Wohnzimmer mit Kaminanschluss
  • Moderne Einbauküche mit hochwertigen Geräten für gehobene Ansprüche
  • Hochwertiger Kunststoffboden – pflegeleicht, vielseitig und visuell zeitlos
  • Großes Badezimmer mit Fenster, Dusche, stilvoller Ausstattung, WC
  • Personenlift direkt ins Dachgeschoß – barrierefreier Zugang zur Wohnung
  • Großer, Kellerraum (ca. 16 m²) – vielfältig nutzbar, z. B. als Lager, Atelier oder Hobbyraum
  • KFZ-Abstellplatz im Freien vorhanden 
  • Lehmputz im Keller sorgt für ein gutes Raumklima und natürliche Luftfeuchtigkeit
  • Fernwärmeheizung – zentral, effizient und zukunftssicher
  • Wohnungseigentum - nur 3 Einheiten im Objekt  - Erstbezug
  • Haus in Eigenverwaltung – schlanke Struktur, volle Kontrolle, niedrige Betriebskosten
  • Beziehbar ab sofort

Die Miete setzt sich zusammen aus:

Nettomiete - € 1.800,-
Umsatzsteuer - € 180,-
Betriebskosten - ca. € 350,-

Infina, Österreichs beliebtester Wohnbau-Finanz-Experte, begleitet Sie ganzheitlich rund um Ihr Immobilienvorhaben.

Die Entscheidung, ob man eine Immobilie mieten oder kaufen möchte, sollte gut überlegt sein. Unser Mieten-oder-Kauf-Vergleichsrechner bietet Ihnen eine optimale finanzielle Entscheidungsgrundlage. Der Vergleich lohnt sich. Jetzt bei Infina

Mietpreis gesamt EUR 2.330,00
(Sämtliche o.a. m²-Angaben laut Nutzwertgutachten gem. Kauf & Wohnungseigentumsvertrag bzw. Einreichplanung)

Für weitere Informationen fordern Sie bitte unser ausführliches Exposé an.

Nina Prock, MA
nina.prock@infina-partner.at

Was kann Infina noch für Sie tun?

Wenn Sie eine Finanzierung für Ihre Traumimmobilie wünschen, begleiten wir Sie gerne von der strategischen Planung bis zur Realisierung und darüber hinaus. Wir sind Österreichs beliebtester Wohnbau-Finanz-Experte und unsere Mission lautet: Jeder Kunde hat das Recht auf den besten Kredit.

  • Infina kooperiert mit über 120 Banken in Österreich und Deutschland
  • Über 600 Kreditprodukte im Vergleich
  • Über 100-mal vor Ort in ganz Österreich

Ebenso unterstützen wir unsere Kunden beim Verkauf und der Vermietung Ihrer Immobilien sowie bei der Immobiliensuche durch unsere Immobilienexperten.


Wir weisen Sie darauf hin, dass die gemachten Angaben und Informationen lediglich unverbindliche Vorabinformationen sind und daher ohne Gewähr erfolgen. Der Immobilienmakler erklärt, dass er – entgegen dem in der Immobilienwirtschaft üblichen Geschäftsgebrauch des Doppelmaklers – einseitig nur für den Vermieter tätig ist.

Beschreibung weiterlesen

Lage und Verkehrsanbindung

Die Schillerstraße befindet sich in ruhiger, sonniger Lage von Absam, einer der begehrtesten Wohngegenden im Raum Hall in Tirol. Umgeben von gepflegten Häusern und charmantem Dorfflair, bietet die Lage Privatsphäre und Ruhe bei gleichzeitig exzellenter Infrastruktur.
Nahversorger, Apotheke, Schulen, Kindergarten, Öffis und viele Freizeitangebote sind fußläufig erreichbar. Die Stadt Hall ist in wenigen Minuten erreichbar, Innsbruck liegt nur ca. 15 Fahrminuten entfernt.
Ob Wandern im Halltal, Skitouren im Winter oder ein entspannter Spaziergang im Naherholungsgebiet: Diese Wohnlage steht für aktive Entspannung, Naturgenuss und hohe Lebensqualität. Die Aussicht auf die Tiroler Alpenkulisse ist allgegenwärtig und beeindruckt täglich aufs Neue.

Energieeffizienz

HWB:
97,8 kWh/(m²*a)
HWB Klasse:
C
fGEE:
1,19
fGEE Klasse:
C
Energieausweisart:
Energiebedarfs-ausweis
Gültig bis:
15.04.2033

Grundrisse

Lageplan

6067 Absam | Innsbruck-Land

Lade...
Nina Prock

Nina Prock
Infina Partnerin, Immobilienexpertin

Anrufen
Lade...

Fotomix

DSC09210_hdr.jpg DJI_20250702115353_0114_D.jpg DJI_20250702115420_0116_D.jpg DSC09370_hdr.jpg DSC09335_hdr.jpg DSC09320_hdr.jpg DSC09390_hdr.jpg DSC09180_hdr.jpg DSC09090_hdr.jpg