NEU - Premium-Wohnen über den Dächern: Stilvolle Neubauwohnung mit Masterbedroom, Ankleide, Bad mit Fenster und großer Dachterrasse!

Wohnung zum Kauf in 2514 Traiskirchen - Kaufpreis: 468.000 € / Objektnummer: 293557
Ausstattung: Barrierefrei Boden Fahrstuhl Bad Garage Parkplatz Fahrradraum Abstellraum Fußbodenheizung Terrasse

Preisinformationen

Kaufpreis:
468.000 €
Kaufpreis/m²
4.418,43 €
Betriebskosten netto:
132,40 € / Monat
Vermittlungsprovision:
Ja
Provision:
3% des Kaufpreises zzgl. 20% USt.

Fakten

Objektnummer:
293557
Objekttyp:
Wohnung
Terrasse:
2
Wohnfläche:
80,63 m²
Nutzfläche:
105,92 m²
Zimmer:
2
Badezimmer:
1
Toilette:
1
Stockwerk:
2
Baujahr:
2025
Neubau:
Ja
Zustand:
Erstbezug
Verfügbarkeit:
Verfügbar

Beschreibung

Erstbezug I bezugsfertig I hochwertig ausgestattet: Modernes Neubauprojekt im Herzen von Traiskirchen!

In zentraler Lage von Traiskirchen präsentiert sich dieses moderne Neubauprojekt als perfekte Kombination aus zeitgemäßem Wohnkomfort, durchdachter Architektur und urbaner Lebensqualität.

Hier finden Sie Ihre neue Traumwohnung mit 2 bis 4 Zimmern, deren Größen zwischen 49 und 130 m² variieren. Fast alle Wohneinheiten werden mit privaten Freibereichen, darunter Eigengärten, Terrassen, Loggien und Balkone ausgestattet.

Die Wohnungen sind erstbezugsfertig und bieten ein Wohngefühl, dass sowohl Eigennutzer als auch Anleger begeistert – stilvoll, komfortabel und nachhaltig.
 

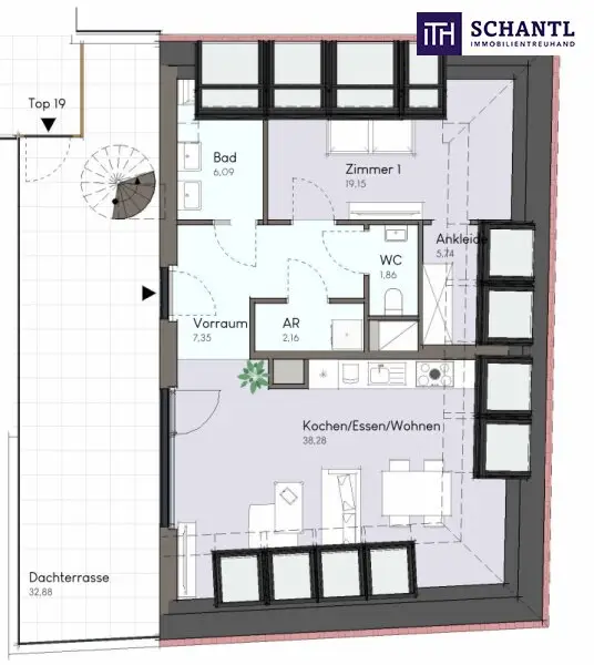
Exzellent durchdachte Raumaufteilung Top 19:

* großzügiger Vorraum mit Platz für Garderobe
* praktischer Abstellraum für zusätzlichen Stauraum mit Waschmaschinenanschluss
* getrennt begehbares, hochwertig ausgeführtes WC
* stilvolles Badezimmer mit bodenebener Dusche, Doppelwaschbecken
* außergewöhnlich großzügige Wohnküche mit offenem Wohn- und Essbereich und Zugang zur Terrasse
* außenliegender Zugang auf die sonnige Dachterrasse
* repräsentatives Schlafzimmer mit angeschlossener Ankleide
* klare Trennung von Wohn- und Privatbereich für maximale Wohnqualität

 

Wohnfläche: ca. 80,63 m² + Terrasse: ca. 32,88 m² + Dachterrasse: ca. 29,49 m² + Kellerabteil

Kaufpreis Anleger: € 468.000.- netto + UST

Kaufpreis Eigennutzer: € 529.000.-

Kaufpreis Garagenplatz: ab € 18.500.- (je Wohnung zwei Plätze verpflichtend)

Bezug: ab sofort!

Ausstattungs-Highlights auf einen Blick

- Massivbauweise für Langlebigkeit und hohe Wertbeständigkeit

- Edle Eichenparkett-Dielen in den Wohnräumen

- Moderne, großformatige Fliesen in Bädern und Nebenräumen

- Hochwertige Sanitärausstattung in Markenqualität

- Elektrische Außenbeschattung für optimalen Sonnen- und Sichtschutz

- Fußbodenheizung mittels effizienter Luftwärmepumpe

- Freiflächen (Balkon, Terrasse oder Garten) bei nahezu allen Wohnungen

- Tiefgarage mit mindestens 2 PKW-Stellplätzen pro Wohneinheit

Machen Sie den ersten Schritt zu Ihrem neuen Zuhause und Ihrem neuen Glück und sichern Sie sich Ihre Traumwohnung!

Top 4, 5, 6, 7, 8, 12 und 13 haben bereits glückliche Besitzer gefunden!

 

Wir unterstützen Sie gerne bei der Finanzierung und finden individuelle Lösungen mit den besten Konditionen am Markt!

Worauf warten Sie noch? Wir beraten Sie gerne und beraten Sie über alle verfügbaren Einheiten!

www.schantl-ith.at

 

Bei konkretem Interesse senden wir Ihnen sehr gerne weiterführende Dokumente zu, wie:

o Grundbuchauszug

o Wohnungseigentumsvertrag

o Nutzwertgutachten

o etc...

 

Unser Service für Sie: Wenn Sie sich für diese Immobilie entschieden haben, begleiten wir Sie gerne vom Kaufanbot weg inkl. Klärung von Sonderwünschen und der Vertragsunterzeichnung über die Wohnungsübergabe bis hin zu diversen Ummeldungen wie Strom und Gas. Entsprechende Formulare oder auch Meldezettel stellen wir Ihnen sehr gerne zur Verfügung.

Gerne unterstützen wir Sie auch bei der Finanzierung Ihres Traumobjekts und finden mit unseren langjährigen Partnern die besten Konditionen für Sie.

Vereinbaren Sie noch heute einen Termin, wir beraten Sie gerne!

www.schantl-ith.at

Wir weisen darauf hin, dass zwischen dem Vermittler und dem zu vermittelnden Dritten ein familiäres oder wirtschaftliches Naheverhältnis besteht.

Der Vermittler ist als Doppelmakler tätig.

Infrastruktur / Entfernungen

Gesundheit
Arzt <250m
Apotheke <250m
Klinik <3.500m
Krankenhaus <3.250m

Kinder & Schulen
Schule <250m
Kindergarten <500m
Höhere Schule <6.250m

Nahversorgung
Supermarkt <250m
Bäckerei <250m
Einkaufszentrum <1.000m

Sonstige
Bank <250m
Geldautomat <250m
Polizei <500m
Post <250m

Verkehr
Bus <250m
Bahnhof <250m
Autobahnanschluss <1.750m
Straßenbahn <1.750m
Flughafen <6.250m

Angaben Entfernung Luftlinie / Quelle: OpenStreetMap
Beschreibung weiterlesen

Lage und Verkehrsanbindung

Die Lage im Zentrum von Traiskirchen steht für ein Wohngefühl, das Alltag und Lebensfreude perfekt verbindet. Alles, was man täglich braucht – Nahversorger, medizinische Versorgung, Schulen, Geschäfte und Lokale – liegt nur wenige Schritte entfernt und macht das Leben angenehm unkompliziert.
Gleichzeitig sorgt die hervorragende Anbindung an öffentliche Verkehrsmittel (300m zum Bahnhof) sowie an das überregionale Straßennetz für maximale Flexibilität in Richtung Baden, Wien und Umgebung.
Besonders attraktiv ist das vielfältige Freizeitangebot direkt vor der Haustüre: Im Sommer lädt das nahegelegene Freibad zu erfrischenden Stunden ein, während der Eislaufplatz im Winter für sportliche Abwechslung und familiäre Freizeitmomente sorgt.
Ergänzt durch Grünräume, Rad- und Spazierwege sowie die Thermen- und Weinregion entsteht ein Standort, der das ganze Jahr über Lebensqualität auf höchstem Niveau bietet.

Zentrum, Bahnhof

Energieeffizienz

HWB:
37,3 kWh/(m²*a)
HWB Klasse:
B
fGEE:
0,68
fGEE Klasse:
A+
Energieausweisart:
Energiebedarfs-ausweis
Gültig bis:
27.06.2033

Grundrisse

Lageplan

2514 Traiskirchen | Baden

Lade...
Patrick Spreitzer, BA, MA

Patrick Spreitzer, BA, MA
Immobilienvermittlung & Immobilienbewertung

Schantl ITH Immobilientreuhand GmbH

Lade...

Fotomix

Bild 1 Bild 2 Bild 3 Bild 4 Bild 5 Bild 6 Bild 7 Bild 8 Bild 9 Bild 10