NEU - Premium Wohnung mit Blick über Innsbruck – ready to live

Wohnung zur Miete in 6020 Innsbruck - Gesamtmiete: 2.249,00 € / Objektnummer: 293804
Ausstattung: Barrierefrei Boden Fahrstuhl Bad Gäste-WC Zentralheizung Balkon

Preisinformationen

Gesamtmiete:
2.249,00 € / Monat
Betriebskosten netto:
155,58 € / Monat
Umsatzsteuer:
215,74 €
Garage Kosten brutto:
110,00 €
Parkplatz Kosten brutto:
14,14 €
Preisinfos:
MV-Erstellungskosten € 360,-- brutto einmalig
Kaution:
6.500,00 €
Provision:
Gemäß Erstauftraggeberprinzip bezahlt der Abgeber die Provision.

Fakten

Objektnummer:
293804
Objekttyp:
Wohnung
Balkon:
1
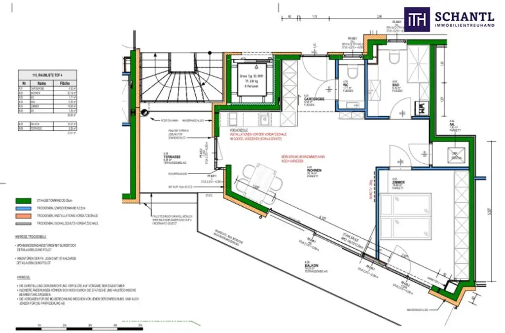
Wohnfläche:
59 m²
Nutzfläche:
68,11 m²
Zimmer:
2
Badezimmer:
1
Toilette:
2
Baujahr:
2020
Neubau:
Ja
Zustand:
Neuwertig
Verfügbarkeit:
Verfügbar

Beschreibung

PREMIUM WOHNUNG MIT BLICK ÜBER INNSBRUCK – READY TO LIVE

Zur Vermietung gelangt ab März 2026 eine luxuriöse Wohnung in der Josef Schraffl Strasse 15. Die Wohnung ist Bestandteil einer Wohnhausanlage aus insgesamt 5 Wohnungen, die im Zuge einer privaten, exklusiven Bauherrengemeinschaft Ende 2020 errichtet wurde. Das Grundstück, auf dem sich die Wohnhausanlage befindet, zählt zweifelsfrei zu den exklusivsten Adressen Innsbrucks. Am Wohnhaus endet die Straße und die Fuß- und Wanderwege auf die Hungerburg bzw. Alpenzoo (Schillerweg) beginnen direkt vor Ihrer Haustüre.

Die Wohnung wird voll möbliert und hochwertig ausgestattet übergeben: Ready to live!

DIE AUSSTATTUNG DER WOHNUNG LÄSST KEINE WÜNSCHE OFFEN - ÜBERZEUGEN SIE SICH SELBST:

*
Parkettboden: Casaparc 181/45 in Creme-Eiche

*
Wohnbereich: großzügige Hebe-Schiebetüre im Wohnzimmer

*
Sonnenschutz: elektrische Raffstores, komfortabel per Fernbedienung steuerbar

*
Innentüren: hochwertige Josko-Türen mit innenliegenden Scharnieren, Raumhöhe 220 cm

*
Sanitärausstattung: Design-Armaturen von Hansgrohe in Bad, WC und Küche

*
Küche: exklusive DAN-Einbauküche mit hochwertigen Markengeräten
_(u. a. Bosch Dampfgarer HSG856XC7)_

*
Möblierung: maßgefertigte Tischlermöbel

*
Outdoor-Bereich: stilvolle Outdoor-Möbel von BoConcept

*
Wohnmöbel: Couch von Bullfrog (Sonderanfertigung)

*
Essbereich: Eichentisch und Sessel von BoConcept

*
Technik & Entertainment:
Samsung _The Frame_ TV sowie Harman Kardon Standlautsprecher
_(Citation Tower & Citation 500)_

*
Außenbeläge: Terrassen- und Balkonbelag aus edlem Travertinstein

*
Fassade: exklusive Glitzerfassade

*
Extras: und vieles mehr

FACTS:

*
Wohnfläche: ca. 59 m², aufgeteilt in zwei Zimmer, inklusive Gäste-WC

*
Außenflächen: Terrasse ca. 10 m² sowie großzügiger Balkon mit ca. 18 m²

*
Kellerabteil: ca. 6 m² mit Stromanschluss

*
Tiefgaragenplatz: ca. 13,4 m², ausgestattet mit Steckdose für E-KFZ
_(Anmietung optional – Wohnung auch ohne TG-Platz möglich)_

*
Allgemeinflächen: Müllraum und Fahrradabstellraum vorhanden

*
Lift: vorhanden

*
Beziehbar: ab März 2026, nach Vereinbarung eventuell auch früher

*
Mietdauer: befristet auf 3 Jahre, kürzere Mietdauer nach Vereinbarung möglich

*
Heizung: Fußbodenheizung mittels Luft-Wärmepumpe

*
Zustand: neuwertig

*
Haustiere: nicht erlaubt

WORAUF NOCH WARTEN?

Vereinbaren Sie noch heute eine Besichtigung oder eine persönliche Beratung mit uns!

Sie wollen Ihre Immobilie verkaufen? Dann sind Sie bei uns goldrichtig!
Wir sind gerne für Sie da und unterstützen Sie unverbindlich bei der Bewertung Ihrer Immobilie. Mit viel Sorgfalt stellen wir Ihnen alle wichtigen Informationen und Unterlagen zusammen, damit Sie die besten Entscheidungen treffen können.

In Kooperation mit unserer SFI Vermögenstreuhand begleiten wir Sie bei der Verwirklichung Ihres Traumobjekts und unterstützen Sie beim nachhaltigen Vermögensaufbau. Mit unseren erfahrenen Experten sorgen wir dafür, dass Sie die besten Konditionen erhalten – damit Ihre Träume Wirklichkeit werden!

HTTP://WWW.SCHANTL-ITH.AT [http://www.schantl-ith.at] IN KOOPERATION MIT WWW.SFI-INVEST.COM  [http://sfi-invest.com]

_Die Angaben über das angebotene Objekt erfolgen mit der Sorgfalt eines ordentlichen Immobilienmaklers; für die Richtigkeit solcher Angaben, die auf Informationen der über das Objekt Verfügungsberechtigten beruhen, wird keine Gewähr geleistet!_

Wir weisen darauf hin, dass zwischen dem Vermittler und dem zu vermittelnden Dritten ein familiäres oder wirtschaftliches Naheverhältnis besteht.

Der Immobilienmakler erklärt, dass er – entgegen dem in der Immobilienwirtschaft üblichen Geschäftsgebrauch des Doppelmaklers – einseitig nur für den Vermieter tätig ist.

Infrastruktur / Entfernungen

Gesundheit
Arzt <750m
Apotheke <500m
Klinik <1.500m
Krankenhaus <750m

Kinder & Schulen
Schule <500m
Kindergarten <500m
Universität <1.500m
Höhere Schule <1.000m

Nahversorgung
Supermarkt <1.250m
Bäckerei <1.250m
Einkaufszentrum <1.500m

Sonstige
Bank <1.250m
Geldautomat <1.250m
Post <1.500m
Polizei <1.250m

Verkehr
Bus <250m
Straßenbahn <1.000m
Autobahnanschluss <3.750m
Bahnhof <500m
Flughafen <5.500m

Angaben Entfernung Luftlinie / Quelle: OpenStreetMap
Beschreibung weiterlesen

Lage und Verkehrsanbindung

Die Wohnung in der Josef-Schraffl-Straße 15, Top 4, im 1. Stock, befindet sich in einer äußerst begehrten Lage im Herzen von Innsbruck, der Hauptstadt der Alpen. Diese zentrale Lage bietet eine ideale Mischung aus städtischem Komfort und naturnahen Erholungsmöglichkeiten.

Die Umgebung zeichnet sich durch eine ausgezeichnete Anbindung an das öffentliche Verkehrsnetz aus. Die nahegelegenen Haltestellen ermöglichen eine schnelle und bequeme Anreise zu allen wichtigen Punkten in Innsbruck, sowohl in die Innenstadt als auch in die umliegenden Stadtteile. Zudem ist der Bahnhof Innsbruck in wenigen Minuten erreichbar, was eine hervorragende Anbindung an Fernverkehrs- und Regionalzüge garantiert.

Die Nachbarschaft ist ruhig und gepflegt, während gleichzeitig zahlreiche Annehmlichkeiten in unmittelbarer Nähe zur Verfügung stehen. Einkaufsmöglichkeiten für den täglichen Bedarf, Cafés, Restaurants sowie diverse Freizeitmöglichkeiten sind fußläufig erreichbar und bieten eine hohe Lebensqualität.

Für Naturliebhaber ist die Lage ebenfalls ideal, da sich in der Umgebung zahlreiche Grünflächen und Wanderwege befinden. Besonders die Nähe zu den Alpen und die beeindruckende Bergkulisse machen diese Adresse zu einem attraktiven Wohnort für all jene, die eine Balance zwischen urbanem Leben und Natur suchen.

Insgesamt bietet die Wohnung in der Josef-Schraffl-Straße 15 eine perfekte Kombination aus zentraler Lage, guter Erreichbarkeit von Arbeitsplätzen, Freizeitangeboten sowie einer hohen Lebensqualität durch die unmittelbare Nähe zur Natur und den Alpen. Ideal für Singles oder Paare, die sowohl die Vorzüge der Stadt als auch die Schönheit der Natur genießen möchten.

Energieeffizienz

HWB:
43,17 kWh/(m²*a)
HWB Klasse:
B
fGEE:
0,67
fGEE Klasse:
A+
Energieausweisart:
Energiebedarfs-ausweis
Gültig bis:
03.09.2027

Grundrisse

Lageplan

6020 Innsbruck | Innsbruck-Stadt

Lade...
Maria Schantl, BA, MSc

Maria Schantl, BA, MSc
Geschäftsführende Gesellschafterin

Schantl ITH Immobilientreuhand GmbH

Lade...

Fotomix

Bild 1 Bild 2 Bild 3 Bild 4 Bild 5 Bild 6 Bild 7 Bild 8 Bild 9 Bild 10 Bild 11 Bild 12 Bild 13 Bild 14 Bild 15 Bild 16 Bild 17 Bild 18 Bild 19 Bild 20 Bild 21 Bild 22 Bild 23 Bild 24 Bild 25 Bild 26