PROVISIONSFREI! Für hohe Ansprüche – elegante Eigentumswohnungen mit Gärten, Terrassen und Balkone! Garagenplatz inklusive! Schlüsselfertig!

Wohnung zum Kauf in 2380 Perchtoldsdorf - Kaufpreis: 734.500 € / Objektnummer: 19505
Ausstattung: Barrierefrei Rollstuhlgerecht Boden Fahrstuhl Wohnküche / offene Küche Bad Kabel/Satelliten-TV Tiefgarage Parkplatz Fahrradraum Fußbodenheizung Loggia Terrasse Garten
Hausansicht
Hausansicht
www.bieberundsohn.at
Lageplan
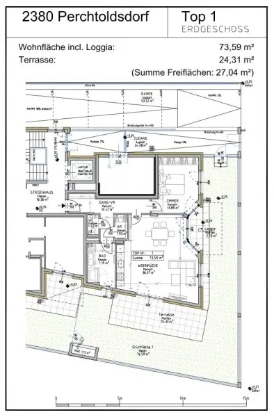
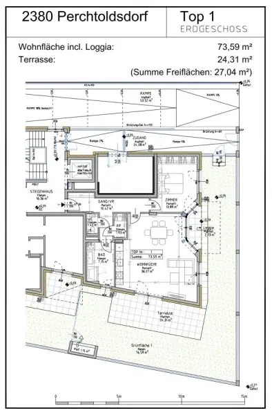
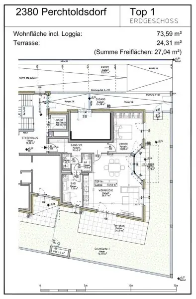
Grundriss Top 1

Preisinformationen

Kaufpreis:
734.500 €
Preisinfos:
Betriebskosten ca. 2,30 € / NW + 10% USt. Instandhaltung ca. 1,06 € / NW (reduzierbar)
Provision:
Provisionsfrei

Fakten

Objektnummer:
19505
Objekttyp:
Wohnung
Terrasse:
1
Loggia:
1
Keller Fläche:
4,2 m²
Wohnfläche:
73,59 m²
Loggia Fläche:
2,73 m²
Nutzfläche:
97,9 m²
Gartenfläche:
76,59 m²
Zimmer:
2
Badezimmer:
1
Toilette:
1
Baujahr:
2027
Neubau:
Ja
Zustand:
Erstbezug
Verfügbarkeit:
Verfügbar

Beschreibung

Exklusiv und architektonisch aufwendig wird diese dreigeschoßige Erstbezugs-Wohnhausanlage in ruhiger Perchtoldsdorfer Wohnlage, mit viel Grün, errichtet und bietet optimalen Lebensraum sowie Erholung und Freizeitaktivitäten an.

Die Wohnhausanlage besteht aus 10 Eigentumswohnungen (Wohnnutzflächen zwischen 51,24 m² und 190,05 m²) mit Gärten und Terrassen oder mit großzügigen Balkonen.

Das Bauprojekt wird voraussichtlich ab ca. 3.Qu. 2027 bezugsfertig sein.

Jede der geschmackvoll ausgestatteten Wohnungen verfügt im Innenbereich über einen großzügigen Vorraum, helle, freundliche Wohnräume, eine offen gehaltene Küche im Wohnzimmer (nur Anschlüsse vorhanden), ein Bad mit Dusche oder Wanne, ein oder zwei WC, separat oder im Bad integriert, sowie teilweise einen Abstellraum.

Geplant sind PKW-Stellplätze in der Tiefgarage.

Die Ziegelbauweise sorgt für ein behagliches Wohnklima bei geringem Energieverbrauch.

Die hochwertige Ausstattung umfasst unter anderem wunderschöne Parkettböden aus Eiche, elegante Fliesen im Vorzimmer und in den Nassräumen, moderne sanitäre Design-Anlagen von Villeroy-Boch, 3-fach Isolierglasfenster inkl. Rollläden, Klimaanlage oder Klimavorbereitung, Internet-, Telefon-, TV- Anschlüsse und vieles mehr, wie z.B. auch einen Wasseranschluss im Garten und auf den Terrassen/ Balkonen. Die schlüsselfertige Ausstattung entspricht dem heutigen, gehobenen Standard.

Die Beheizung (Fußbodenheizung) und Warmwasser-Aufbereitung erfolgt über die zentrale Luftwärmepumpe!

Im Untergeschoß stehen die Kellerabteile, sowie Kinderwagen- und Fahrradabstellräume zur Verfügung.

Die perfekte Bauweise und die darauf abgestimmte Ausstattung ermöglichen es, dass die Betriebskosten äußerst geringgehalten werden können.

Der Bauträger ist bekannt dafür, Wohnimmobilien zu errichten, die den hohen Ansprüchen seiner Kunden gerecht werden! Bereits erfolgreich vermittelte Projekte des Bauträgers RUDOLF Wohnbau GmbH.: Stetten, Rudolf Eisler-Straße; Langenzersdorf, Weisses Kreuz Straße; Korneuburg, Roseggerstraße/Jaro Schmied-Straße, Kreizensteinerstraße; Putzing am See; Wien: Handelskai, Kalmusweg, Am Hackenberg, zwei Einfamilienhäuser.

Perchtoldsdorf verfügt über alle infrastrukturellen Einrichtungen und Geschäfte des täglichen Bedarfes wie Ärzte, Banken, Frisöre, Bäckereien, Einkaufsmöglichkeiten, Freizeitzentrum, Volksschule und Kindergarten in der Nähe und vieles mehr. Die nahe gelegenen Wanderwege laden zu ausgedehnten Spaziergängen für Erholungs- und Ruhesuchende ein. 

In wenigen Fahrminuten erreichbar, bietet der S-Bahnhof ideale Anschlussmöglichkeiten an das öffentliche Verkehrsnetz Richtung Wien und Süden. Die Anbindung über den Autobahnanschluss gewährleistet schnelle Verbindungen auf die A2 und A4.

Die Wohnungen stehen in verschiedenen Größen und Ausrichtungen zur Verfügung. Die Bau- und Ausstattungsbeschreibung des Projektes sowie die Flächenaufstellungen der einzelnen TOPs inkl. Kaufpreise werden als separates Dokument gesendet.

Alle Wohnungen können auch als Vorsorgewohnungen gekauft werden.

Im Zuge der Bauausführung können geringfügige Flächenänderungen (+/- 3%) entstehen, welche sich jedoch nicht auf die Verkaufspreise auswirken. Die Kosten für Aufschließung der Anschlüsse an Kanal, Strom und Wasser sowie an hochwertige Telekommunikationsinfrastruktur sind im Kaufpreis enthalten.

Geschätzte Betriebskosten:
ca. 2,30 EUR pro Nutzwertanteil + 10% USt. (laufende Betriebskosten pro Monat)


Instandhaltungsrücklage:
1,06 EUR pro Nutzwertanteil (reduzierbar)

Kaufpreis Top 1: 734.500,00 EUR

Kaufnebenkosten:
Provisionsfrei für den Käufer!
3,5% Grunderwerbsteuer
1,1% Grundbuchseintragungsgebühr
1,5% Treuhand-Kaufabwicklung -Treuhändische Kaufabwicklung & Wohnungseigentumsbegründung: Notariat Mag. Werner Kilian, Hauptplatz 6-7, 2100 Korneuburg

Gerne senden wir Ihnen auf Wunsch weitere Informationen zu!
Beschreibung weiterlesen

Energieeffizienz

HWB:
34,2 kWh/(m²*a)
HWB Klasse:
B
fGEE:
0,75
Energieausweisart:
Energiebedarfs-ausweis
Gültig bis:
21.09.2032

Grundriss

Lageplan

2380 Perchtoldsdorf | Mödling

Lade...
Anita Hofmann

Anita Hofmann

Bieber Immobilien GmbH

Anrufen
Lade...

Fotomix

Hausansicht Hausansicht www.bieberundsohn.at Lageplan